
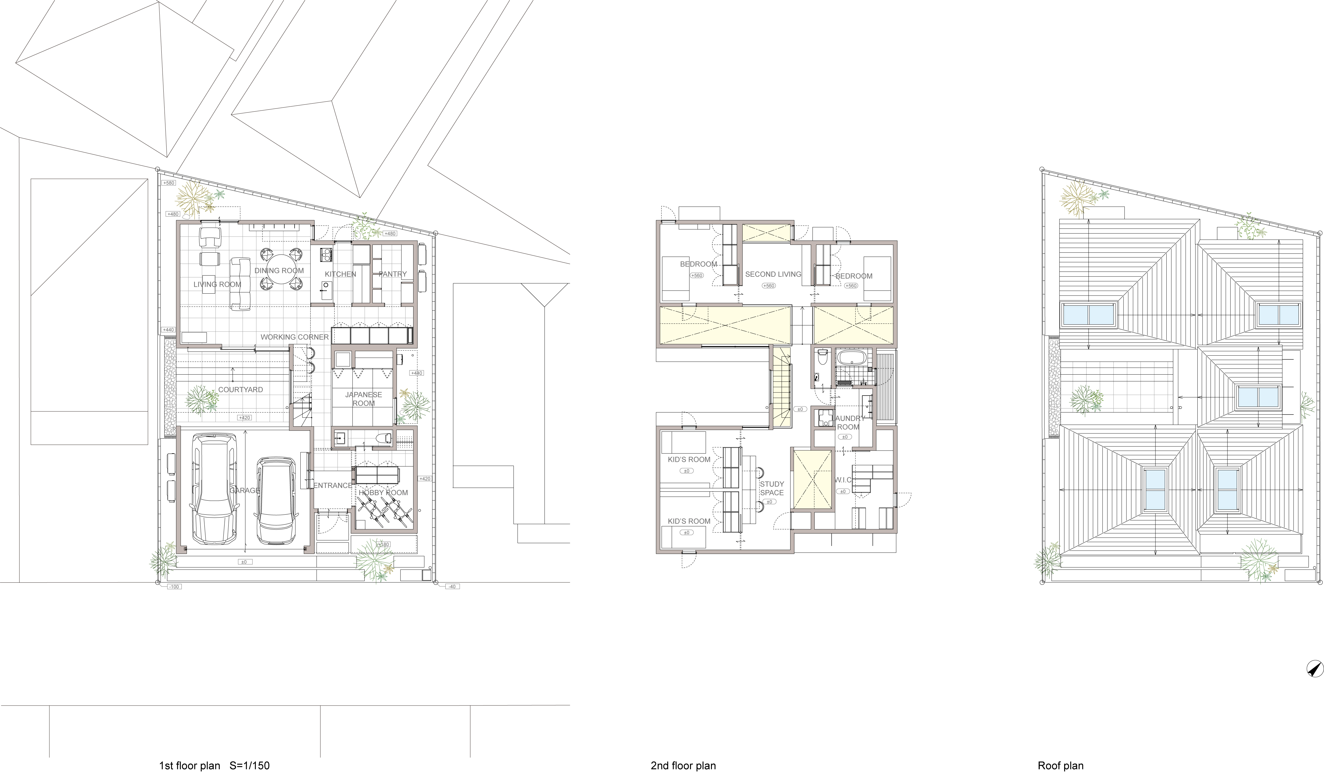
House in Chikusa is a new-build home, located in Nagoya, Japan. The site sits within a dense urban context and is surrounded by residential buildings, making this a challenging plot to consider a design that is outward-looking to the city. The architecture responds to this restrictive setting with an intricate massing consisting of five ‘boxes’ with a diverse range of openings that carefully bring in daylight, air and views into the house without disrupting the neighbouring landscape. These ‘boxes’ are connected to provide continuous spaces, ensuring an internal environment that is full of choices. This encourages each inhabitant to interpret the spaces differently and select their own comfortable distance between each other through dwelling experience.
The volumes follow the gently sloping topography with altering ceiling heights and emphasize the expansive horizontal depth at both levels. Uninterrupted views within the house are maximized in distance as this helps the feel of being in an ‘internal landscape’. A rooflight and an automated side-window form a ‘chimney’ that is positioned at the top of each ‘box’, which bring ever-changing natural light and flowing air into the dwelling. Shadows that respond to the seasons and climate inter-play with the sense of depth within the continuous internal environment. An external approach to the living emerges when the shutter to the garage is open, creating a buffer between the city and the private space.
The meaning and value of home changes over time for any individual or family, which was further highlighted by the latest Covid pandemic. The primary consideration throughout the project journey was to ensure there is coexistence of spatial diversity in the design and a comfortable connection with society so that the house is capable of responding to the evolving living pattern of the family and their ways of seeing habitable landscape.

치쿠사 하우스는 일본 나고야에 있는 신축 주택이다. 주변은 과밀한 도심 주거용 건물로 둘러싸여 있었고, 도시를 바라보는 뷰를 가지기 어려운 상황이었다. 치쿠사 하우스는 제한된 조건 아래 주변 경관을 저해하지 않으면서 햇빛, 공기와 전망이 집 안으로 자연스럽게 들어오는 5개의 천창이 있는 ‘박스’를 가진 집으로, ‘박스’는 다양한 내부 환경을 조성하며 공간과 공간을 이어준다.
치쿠사 하우스는 거주자들이 경험에 따라 공간을 다르게 해석하고 서로 간에 편안한 거리를 선택할 수 있다. 완만하게 경사진 지형에 따라 지어진 집은 천장에 따라 변하는 높이를 가진다. 거리에서 집으로 들어가는 부분은 중정처럼 탁 트인 빈 곳인데, 이는 거주자들에게 공간의 경험을 증폭시킨다. 지붕에는 자동으로 열리는 창문이 있다. 약간 굴뚝같은 같은 천창들은 계속해서 변화하는 자연 채광과 자연스러운 공기의 흐름을 주거 공간 내부로 들어오게 한다. 계절과 날씨에 따라 달라지는 그림자는 내부 환경의 깊이감을 조절한다. 차고의 셔터를 열면 거리와 바로 연결되며, 도시라는 공간과 개인의 거주 거주 공간 사이를 완충해주는 역할을 한다.
집의 의미와 가치는 개인이나 가족에 따라, 또는 시간에 따라 변한다. 최근 코로나19로 인해 더욱 강조되고 있다. 치쿠사 하우스는 주택으로 보여줄 수 있는 다양한 공간을 통해 사회와의 자연스러운 연결되며, 가족의 변화하는 생활 패턴과 삶의 풍경을 어떻게 볼 수 있을지 제안하는 집이다.
















Architects Suzuki Takama Architects
Location Nagoya-shi, Aichi, Japan
Site area 207.49㎡
Building area 122.55㎡
Gross floor area 219.02㎡
Building scope 2F
Structure Timber
Building to land ratio 59.06%
Floor area ratio 89.99%
Construction period 2020. 06 - 2021 .01
Completion 2021
Principal architect Takama Suzuki
Project architect Takama Suzuki
Design team Suzuki Takama Architects
Structural engineer mono Nobuyuki Morinaga
Mechanical engineer Takama Suzuki
Electrical engineer Takama Suzuki
Construction Maeda Construction
Photographer ToLoLo studio
해당 프로젝트는 리빙즈, 디테일 03호에 게재되었습니다.
The project was published in LIVINGS, Detail 03
[BOOK] LIVINGS, Detail 리빙즈, 디테일 03호, 04호
<LIVINGS, Detail 리빙즈, 디테일 03호, 04호> 72개의 형태와 라이프스타일을 담은 주거공간, 국내외 “디테일한 주택 프로젝트”의 엮음 매월 국내외 다양한 건축물들을 소개해 온 <월간 건축문화>가 <
www.masilwide.com
'Architecture Project > Single Family' 카테고리의 다른 글
| FENDALTON HOUSE (0) | 2022.05.23 |
|---|---|
| TTARO TTO GACHI HOUSE (0) | 2022.05.20 |
| HOUSE JIPYEONG (0) | 2022.05.17 |
| NAEMAM-IDANG (0) | 2022.05.16 |
| ONGI HOUSE (0) | 2022.05.13 |
마실와이드 | 등록번호 : 서울, 아03630 | 등록일자 : 2015년 03월 11일 | 마실와이드 | 발행ㆍ편집인 : 김명규 | 청소년보호책임자 : 최지희 | 발행소 : 서울시 마포구 월드컵로8길 45-8 1층 | 발행일자 : 매일



