
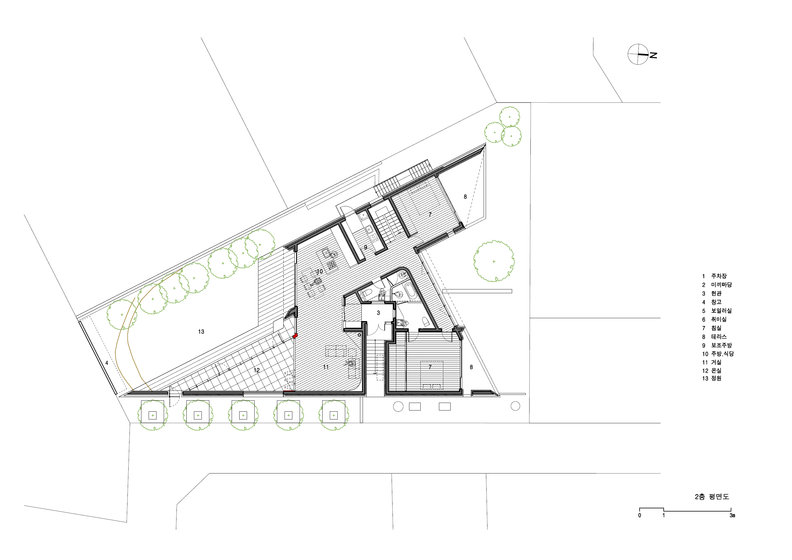
The land is a little less than 200 pyeong, divided into two axes 3.5m high, and has a pointed triangular shape in the south. The requirement of the owner who cultivated flowers and trees and enjoyed calligraphy was a yard with a small greenhouse, and the greenhouse was connected to the corner of the living room to complete ‘Dongchun Greenhouse’.

대지는 200평이 조금 안 되는 땅으로, 3.5m 높이의 두 개의 축대로 나뉘어 있는 남쪽이 뾰족한 삼각형 모양이다. 꽃과 나무를 가꾸고 붓글씨를 즐기는 건축주의 요구사항은 작은 온실이 있는 마당이었고, 이 온실을 거실 모서리에 연결시켜 ‘동춘온실 東春溫室’을 완성했다.


















Architects admobe architect
Location Dongchun-dong, Yeonsu-gu, Incheon, Republic of Korea
Site area 617.80㎡
Building area 233.78㎡
Gross floor area 294.471㎡
Building scope 2F
Building to land ratio 37.84%
Floor area ratio 47.66%
Design period 2019. 11 - 2020. 07
Construction period 2020. 08 – 2021. 04
Principal architect Jaehyuk Yi
Structural engineer Hub structural engineering Co., Ltd.
Mechanical engineer Keosaneng ENG, Youyeong Facility echnology research institute
Electrical engineer Keosaneng ENG, Youyeong Facility echnology research institute
Construction Woorimaeul A&C
Photographer Changmook Kim
해당 프로젝트는 리빙즈, 디테일 03호에 게재되었습니다.
The project was published in LIVINGS, Detail 03
[BOOK] LIVINGS, Detail 리빙즈, 디테일 03호, 04호
<LIVINGS, Detail 리빙즈, 디테일 03호, 04호> 72개의 형태와 라이프스타일을 담은 주거공간, 국내외 “디테일한 주택 프로젝트”의 엮음 매월 국내외 다양한 건축물들을 소개해 온 <월간 건축문화>가 <
www.masilwide.com
'Architecture Project > Single Family' 카테고리의 다른 글
| MONTAUK HOUSE (0) | 2022.05.11 |
|---|---|
| SISEONJAE (0) | 2022.05.10 |
| DJ HOUSE (0) | 2022.05.06 |
| OHE HOUSE (0) | 2022.05.04 |
| HOURGLASS CORRAL (0) | 2022.05.03 |
마실와이드 | 등록번호 : 서울, 아03630 | 등록일자 : 2015년 03월 11일 | 마실와이드 | 발행ㆍ편집인 : 김명규 | 청소년보호책임자 : 최지희 | 발행소 : 서울시 마포구 월드컵로8길 45-8 1층 | 발행일자 : 매일



