
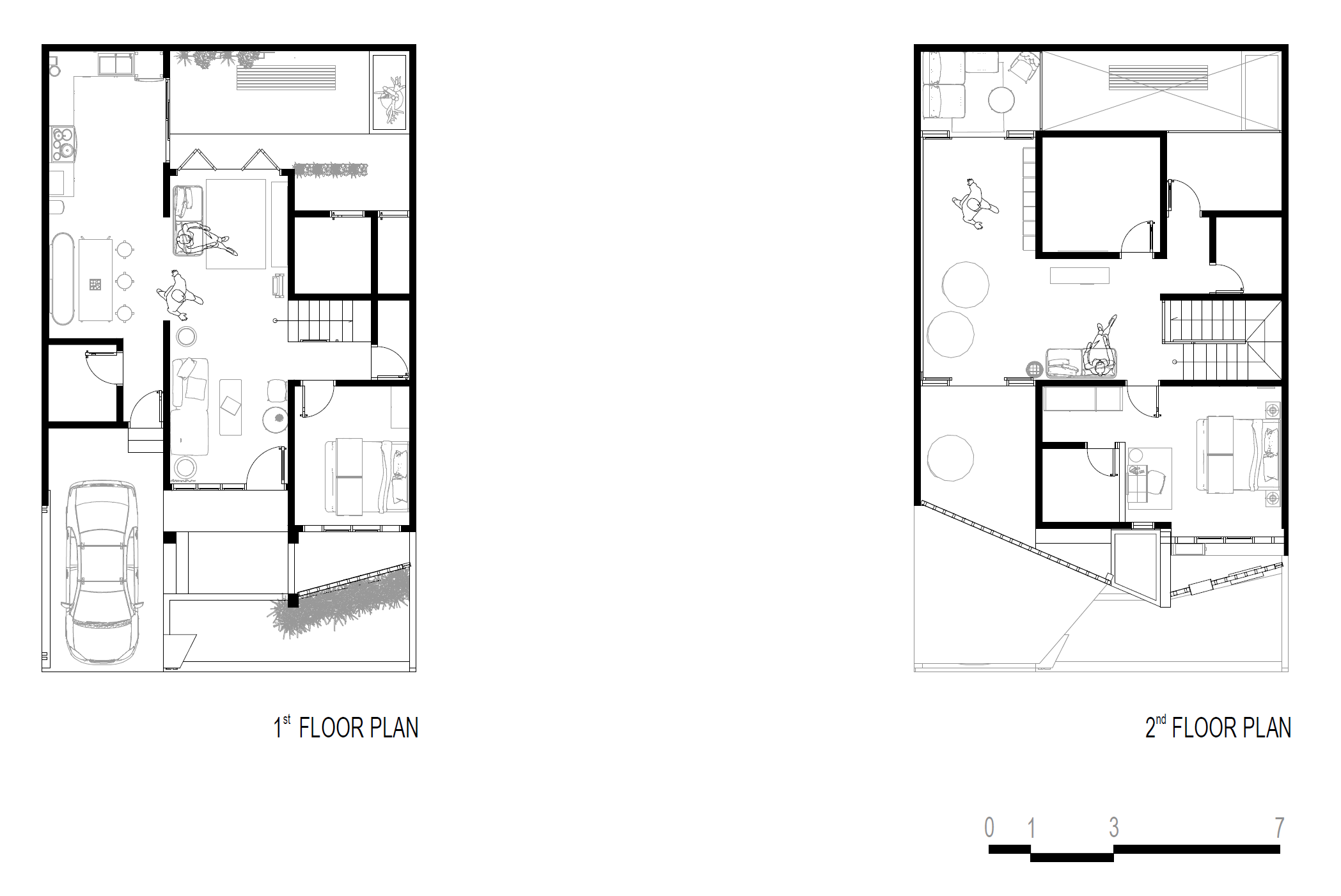
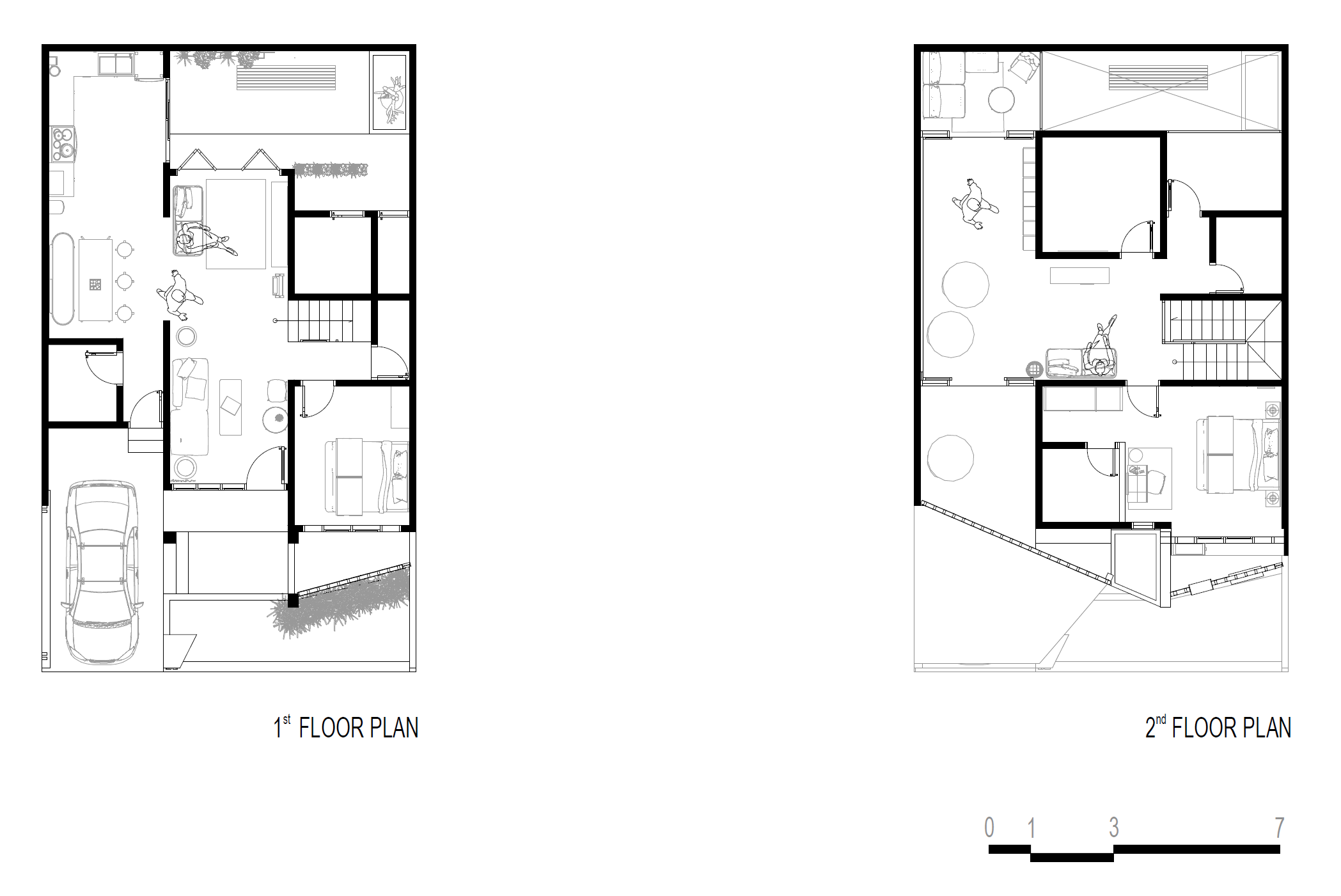
This project is a residential renovation project located in Tangerang Indonesia which has a tropical climate and is quite hot and humid. The existing building cannot meet the client's needs both in terms of space programs and in terms of design desires. Seeing this, we created a design by combining the needs of the occupants and the building itself, where the front of the building directly faces west so that the rooms in the front area have a hot air temperature until the evening. Therefore we added a layer on the facade of the building which aims to filter the light that enters the house. Because the name of the occupant is DJ, we also make the analogy of making the shape of the building as if it were two separate parts between the right and left sides like a turntable.
We use a lot of exposed materials on the exterior and interior to give a different feel from the existing building and provide visual satisfaction to clients who are young families. The dominant material in this project is brick, especially on the facade. There are two types of bricks used, namely interlock bricks and outboard bricks. The technique of installing interlock bricks on the facade is of course by adding iron reinforcement as a binder between the bricks to make it more sturdy with the shape of a brick arrangement that is spaced to form a perforated plane as air flow and forming shadows from sunlight. natural, namely using exposed cement on the walls, and gray floors.
This renovation does not cost much because we try to make minimal changes to the structure and walls of the existing building. So the client is very satisfied with the final result because the renovation target has been achieved, namely changing the total appearance of the building by minimizing work items.

덥고 습한 열대 기후를 가진 인도네시아 탄게랑에 옛 주택을 개조하여 만들어진 DJ 하우스가 있다. 대지에 있던 옛 주택은 저녁에도 무더운 이 지역의 기후와 맞지 않는 부분이 많았으며, 시각적으로 노후화되어 있는 상태였다. 건축가는 젊은 가족인 건축주를 위하여 완전히 새로운 외관과 햇볕을 막고 공기의 순환을 돕는 몇가지를 제안했다.
외관은 노출된 벽돌과 콘크리트가 주로 사용됐으며, 특히 입구 부분에는 태양빛을 막고 사생활을 보호하기 위해 가벽같은 것이 하나 더 세워졌다. 벽돌은 두 종류가 사용됐는데, 벽돌을 파사드에 고정하면서 일정 부분은 공기가 흐를 수 있도록 특별한 배열 형태를 가지고 있다. 독특한 배열은 벽돌 사이에 철강 보강재를 넣어서 견고한 구조를 가지고, 햇볕을 통해 들어오는 다양한 그림자를 만들며 심미적으로도 우수하다.













Architects STUDIÉ
Location Tangerang, Indonesia
Gross floor area 164.3㎡
Completion 2021
Principal architect Ivan Eldo
Project architect Ivan Eldo
Photographer Ernest Theofilus
해당 프로젝트는 리빙즈, 디테일 03호에 게재되었습니다.
The project was published in LIVINGS, Detail 03
[BOOK] LIVINGS, Detail 리빙즈, 디테일 03호, 04호
<LIVINGS, Detail 리빙즈, 디테일 03호, 04호> 72개의 형태와 라이프스타일을 담은 주거공간, 국내외 “디테일한 주택 프로젝트”의 엮음 매월 국내외 다양한 건축물들을 소개해 온 <월간 건축문화>가 <
www.masilwide.com
'Architecture Project > Single Family' 카테고리의 다른 글
| SISEONJAE (0) | 2022.05.10 |
|---|---|
| DONGCHUN GREENHOUSE (0) | 2022.05.09 |
| OHE HOUSE (0) | 2022.05.04 |
| HOURGLASS CORRAL (0) | 2022.05.03 |
| HOUSE IN HOJO (0) | 2022.05.02 |
마실와이드 | 등록번호 : 서울, 아03630 | 등록일자 : 2015년 03월 11일 | 마실와이드 | 발행ㆍ편집인 : 김명규 | 청소년보호책임자 : 최지희 | 발행소 : 서울시 마포구 월드컵로8길 45-8 1층 | 발행일자 : 매일



