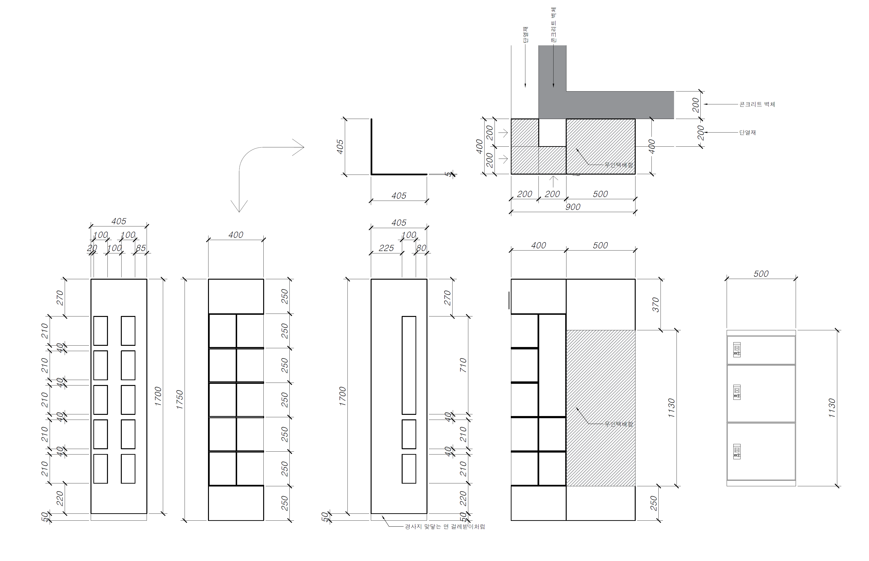
CLOUD HOUSE
Cloud House is a multi-unit dwelling built for the client to live with their children who have moved out. In the new multi-unit dwelling, the families that have now grown more gather and live toget..
anc.masilwide.com





Architects YOAP architects
Location Gangnam-daero, Seocho-gu, Seoul, Republic of Korea
Completion 2020. 02
Photographer Inkeun Ryoo
반응형
'Detail' 카테고리의 다른 글
| [Exterior Wall] FIVE CORNERS HOUSE (0) | 2022.04.27 |
|---|---|
| [Exterior Wall, Window] SAMJEON-DONG BLANC BLANC (0) | 2022.04.26 |
| [Exterior Wall Window, Terrace Parapet] YULMOKJAE (0) | 2022.04.20 |
| [Foundation] I.M NEUNGDONG (0) | 2022.04.19 |
| [Roof, Terrace, Window] MW-HOUSING (0) | 2022.04.18 |
마실와이드 | 등록번호 : 서울, 아03630 | 등록일자 : 2015년 03월 11일 | 마실와이드 | 발행ㆍ편집인 : 김명규 | 청소년보호책임자 : 최지희 | 발행소 : 서울시 마포구 월드컵로8길 45-8 1층 | 발행일자 : 매일



