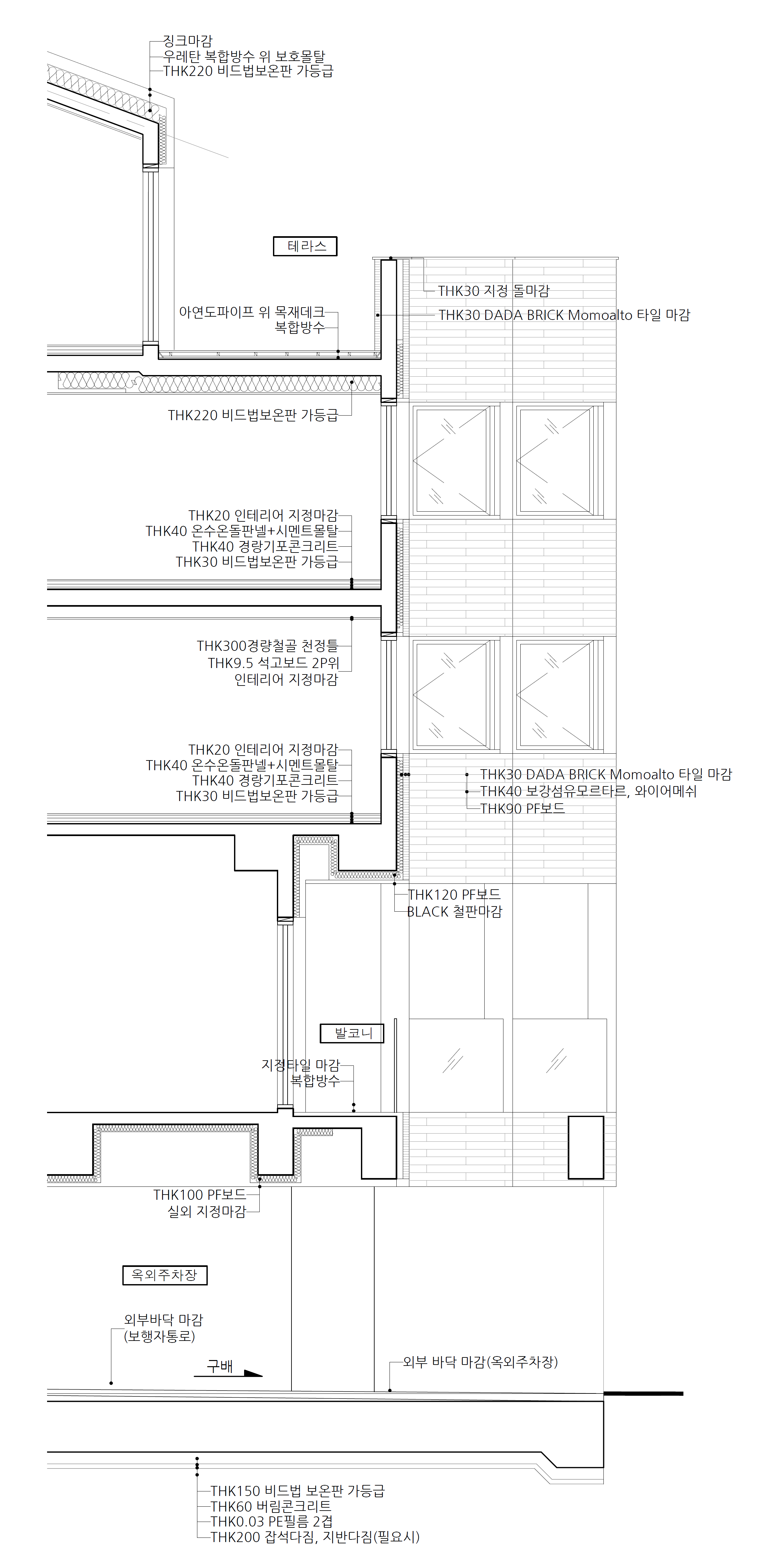
FIVE CORNERS HOUSE
The site is an old town in the northeast of Seoul. This town faces The Jungnang river on the west side and the Yongma mountain on the east side. Although the beautiful natural environment, the a..
anc.masilwide.com


Architects ’Snow AIDe
Location Neungdong-ro, Gwangjin-gu, Seoul, Republic of Korea
Completion 2020
Photographer Jaeyoun Kim
반응형
'Detail' 카테고리의 다른 글
| [Exterior Wall] GAHWAMANSASEONG (0) | 2022.04.29 |
|---|---|
| [Roof] POEMS HOUSE (0) | 2022.04.28 |
| [Exterior Wall, Window] SAMJEON-DONG BLANC BLANC (0) | 2022.04.26 |
| [Post box] CLOUD HOUSE (0) | 2022.04.21 |
| [Exterior Wall Window, Terrace Parapet] YULMOKJAE (0) | 2022.04.20 |
마실와이드 | 등록번호 : 서울, 아03630 | 등록일자 : 2015년 03월 11일 | 마실와이드 | 발행ㆍ편집인 : 김명규 | 청소년보호책임자 : 최지희 | 발행소 : 서울시 마포구 월드컵로8길 45-8 1층 | 발행일자 : 매일


