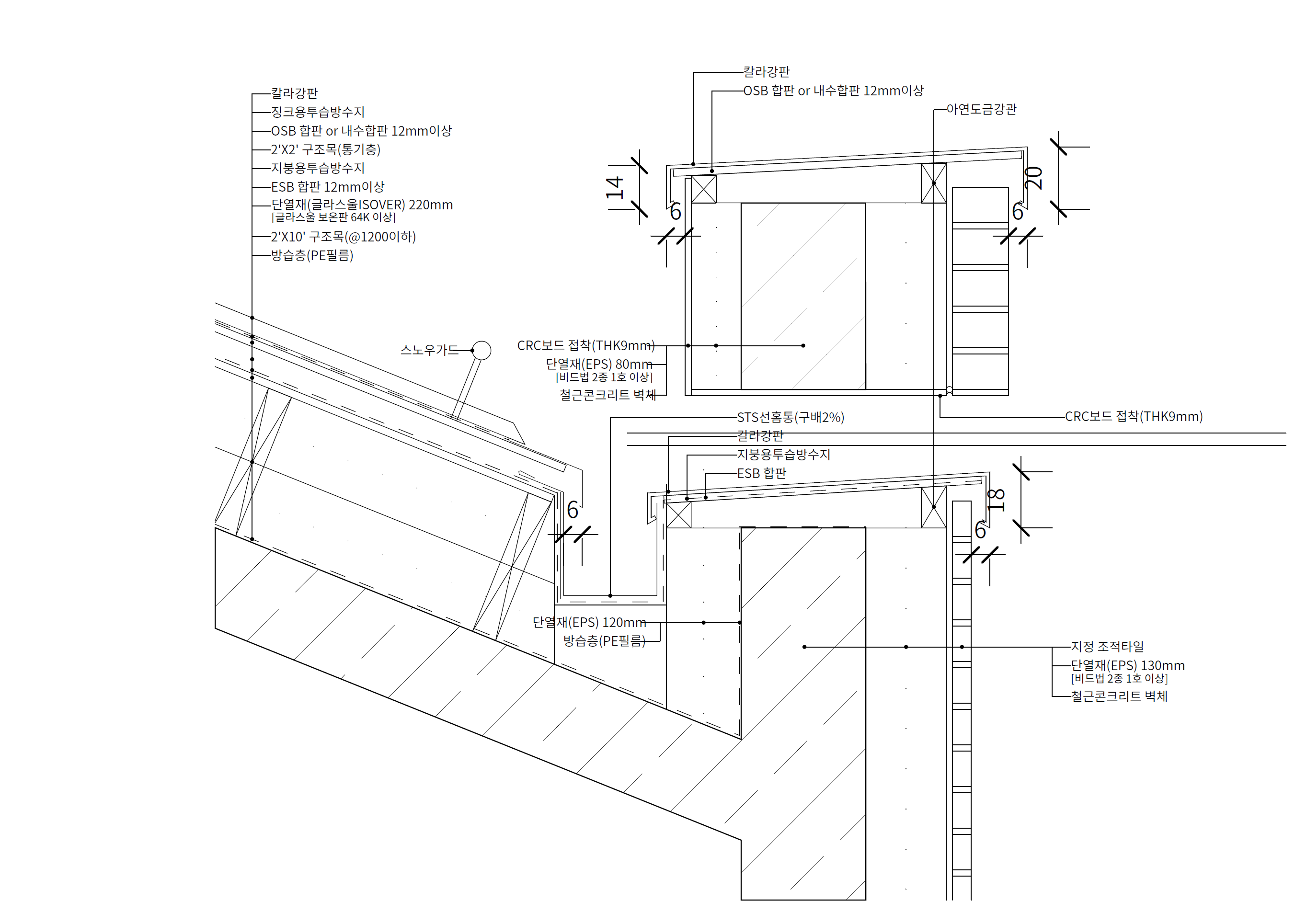
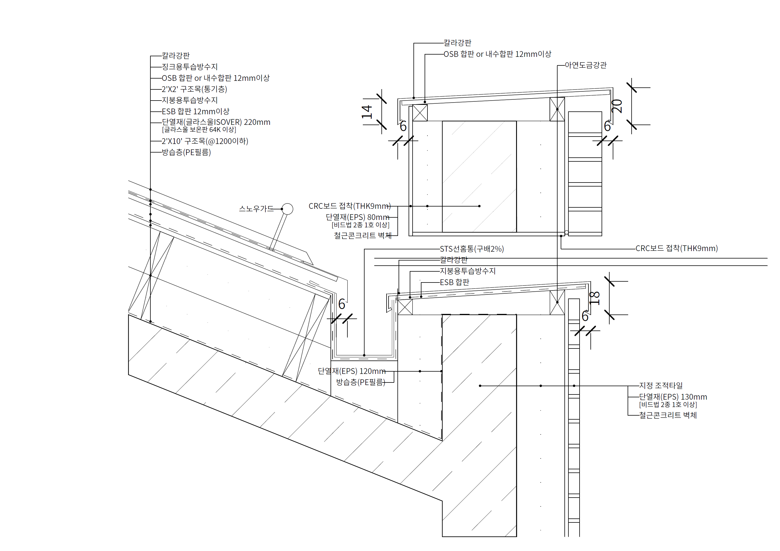
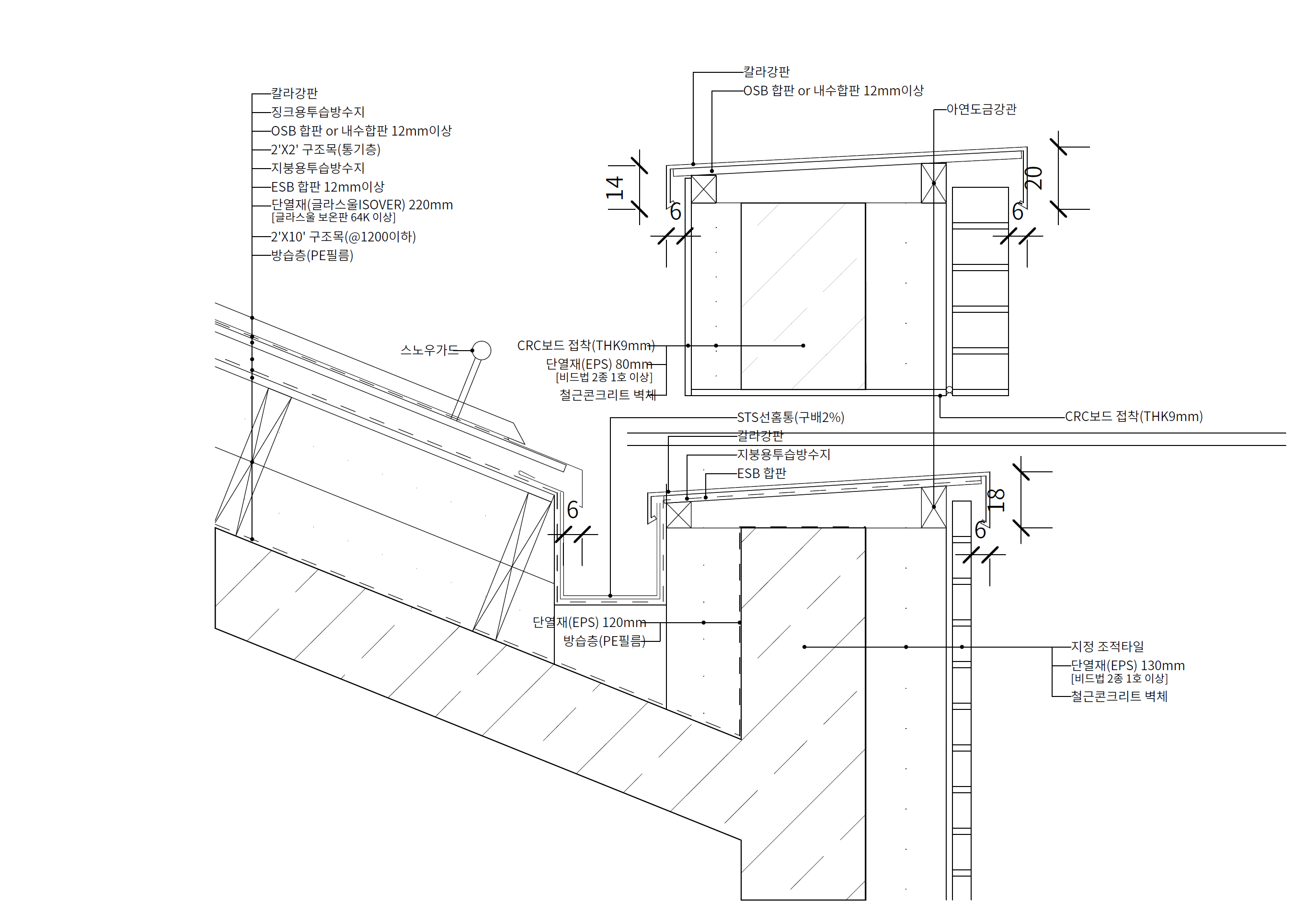
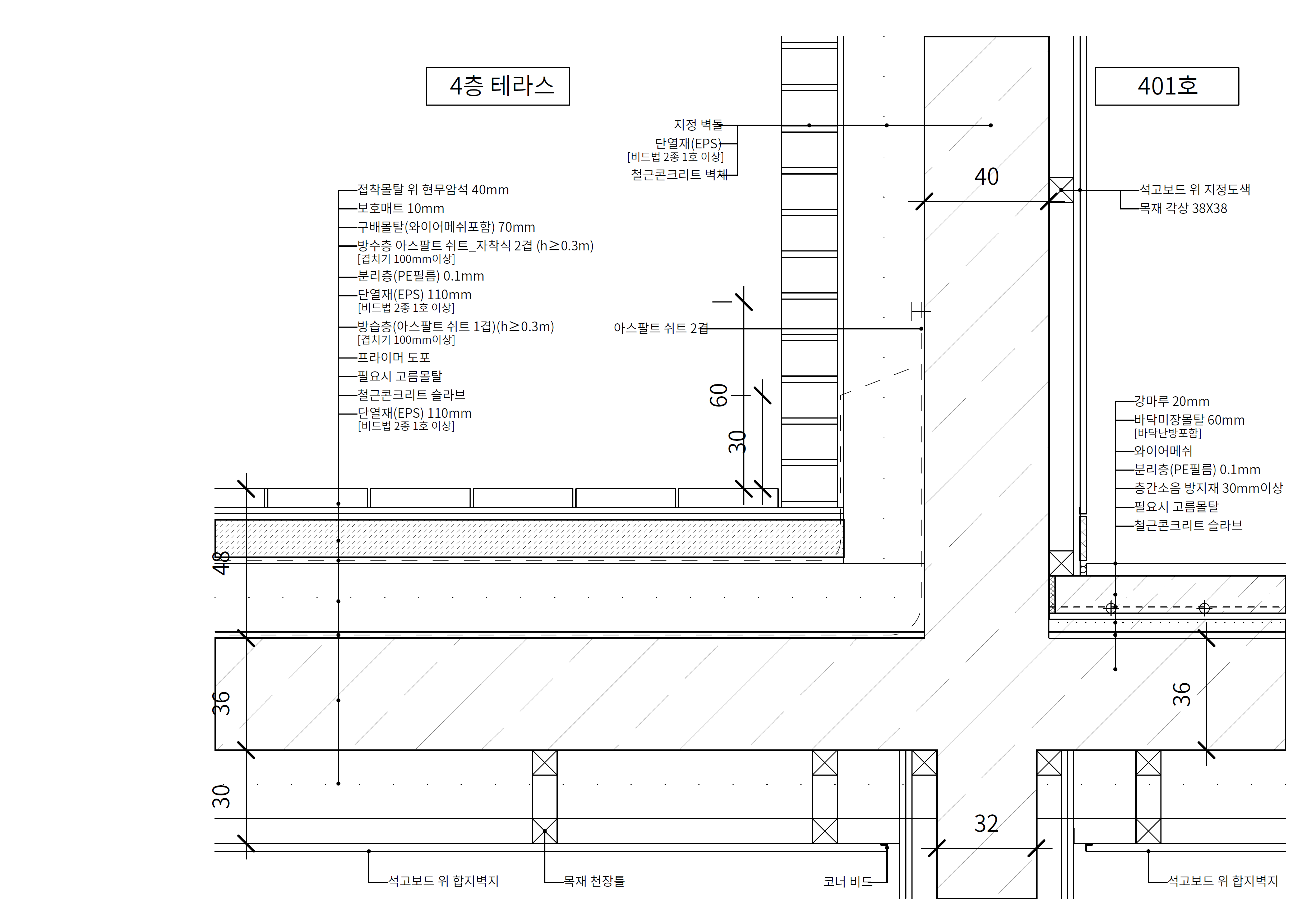
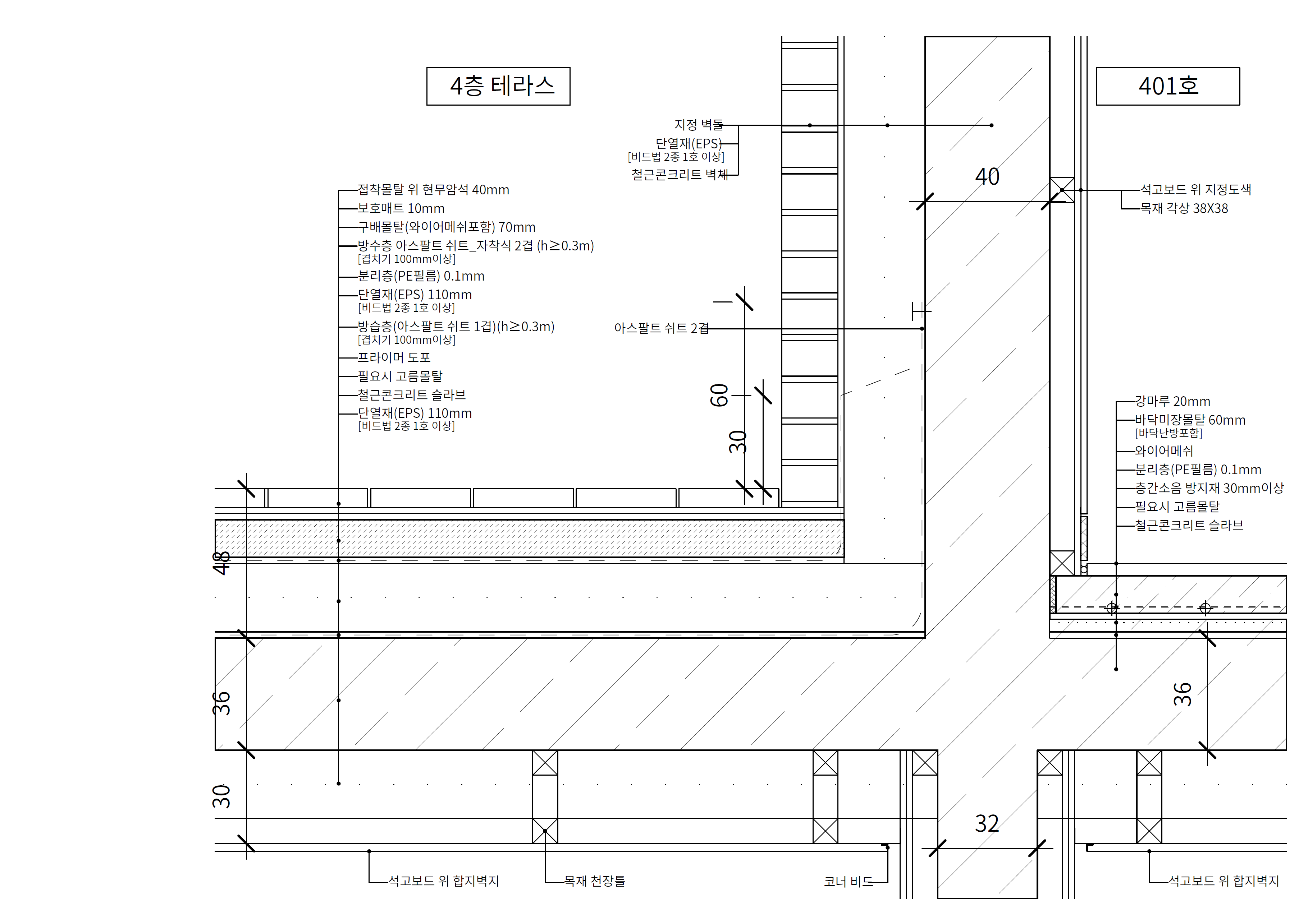
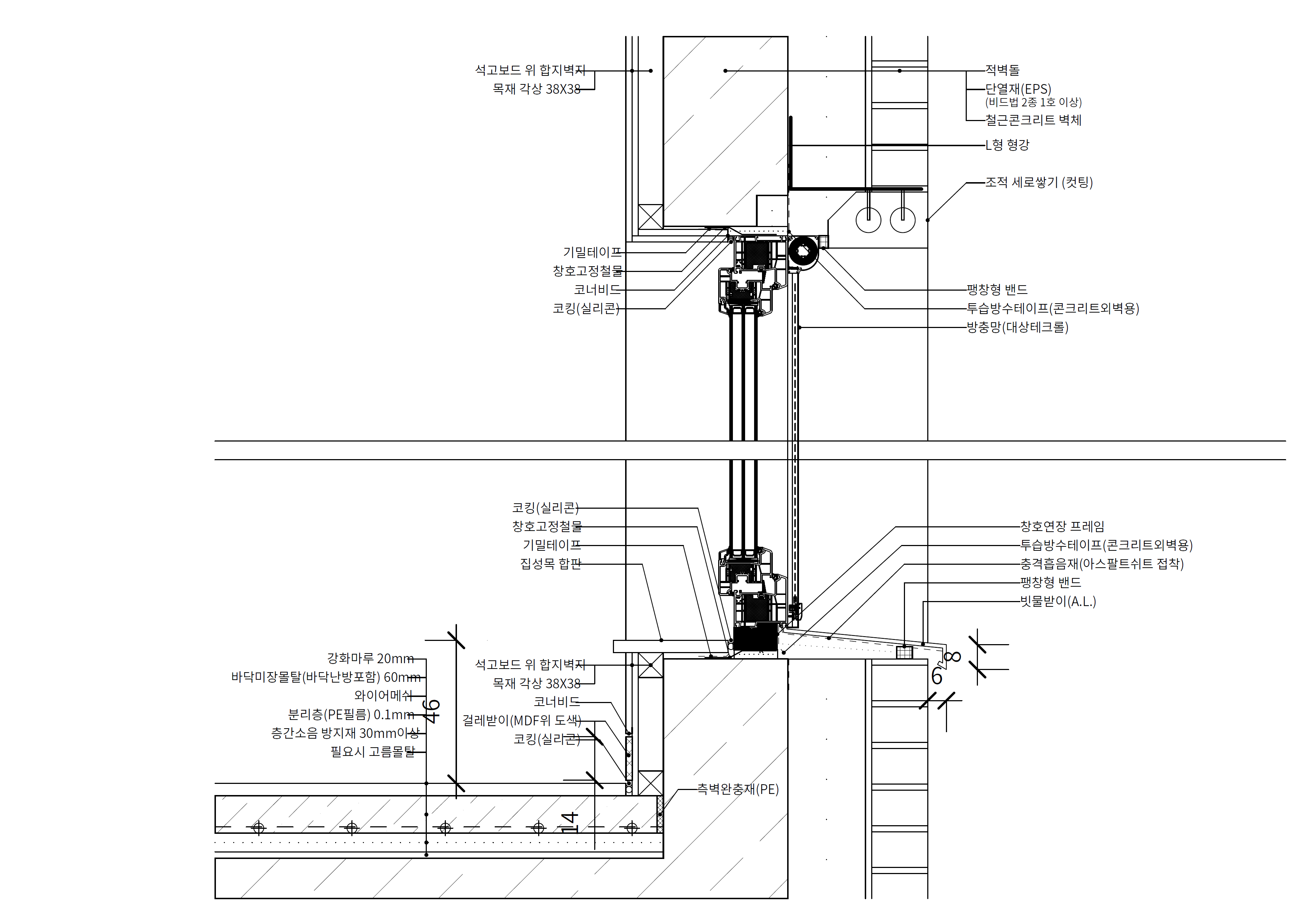
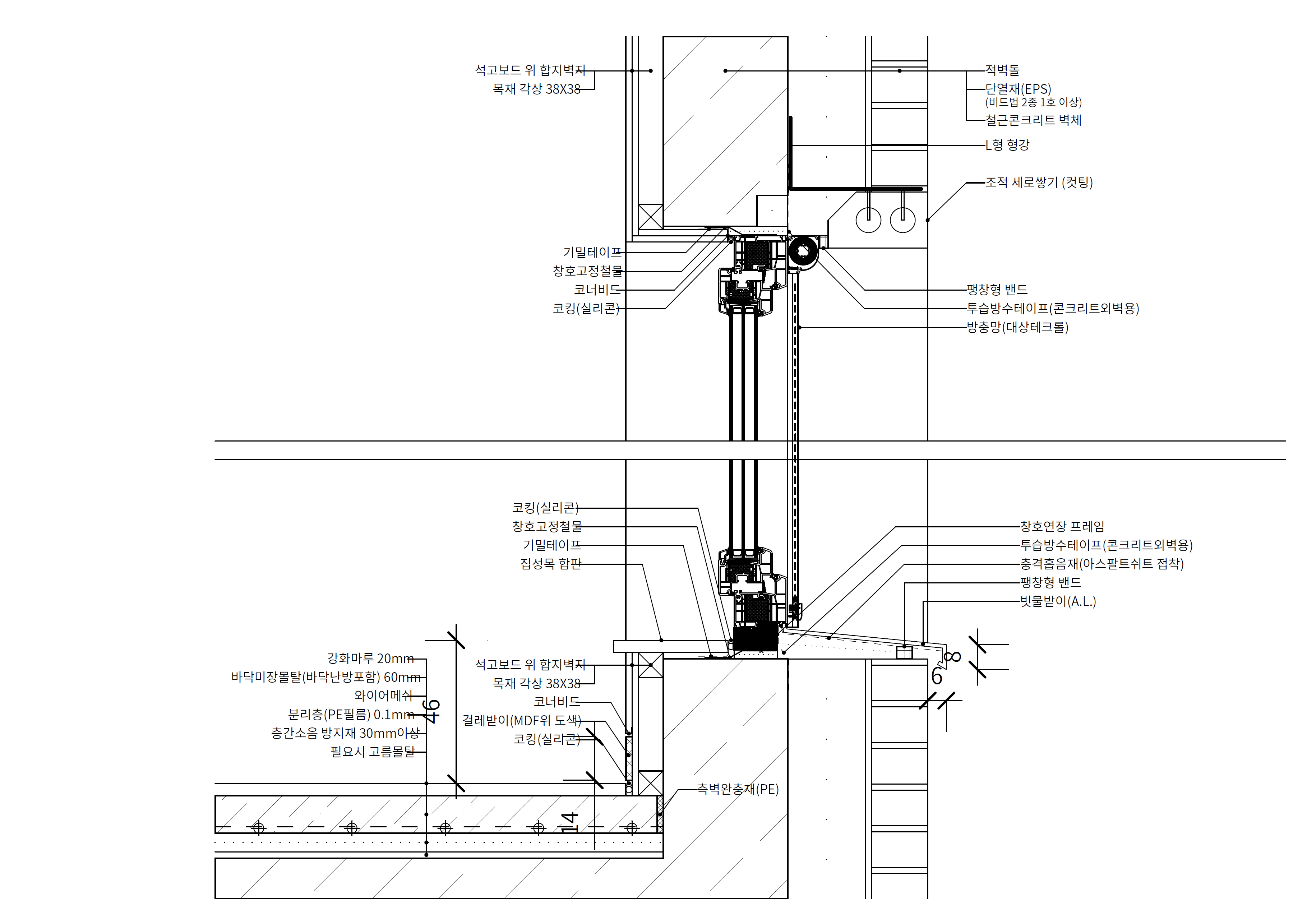
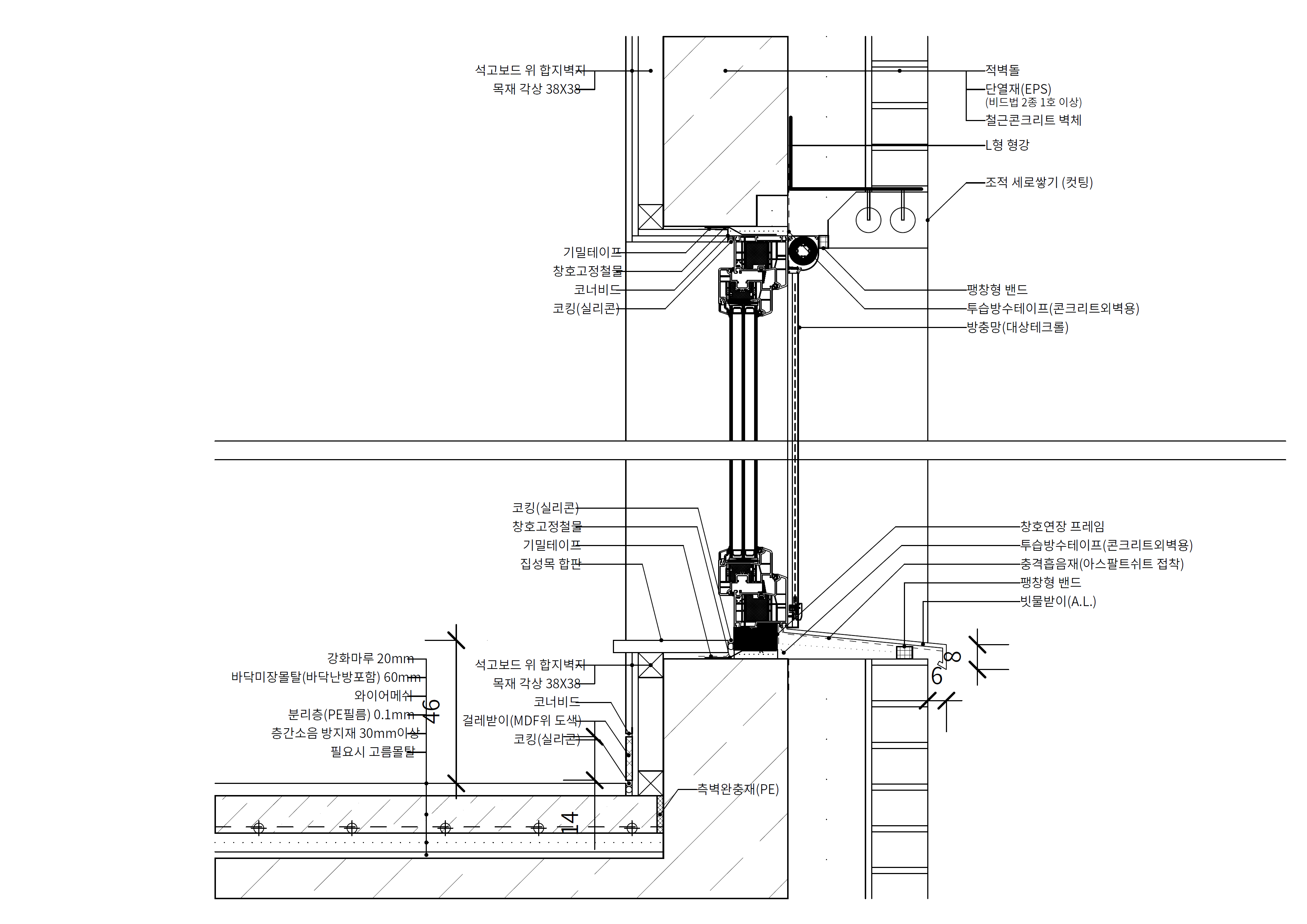
MW-HOUSING
The MW-Housing in Mangwol-dong is a multi-family house with a mass of homogeneous and detail form. The client didn’t want to live in the multi-family house which has a similar look with surroundin..
anc.masilwide.com






Architects HJP Architects
Location Mangwol-dong, Hanam-si, Gyeonggi-do, Republic of Korea
Completion 2019. 08
Photographer Donggwon Ha
반응형
'Detail' 카테고리의 다른 글
| [Exterior Wall Window, Terrace Parapet] YULMOKJAE (0) | 2022.04.20 |
|---|---|
| [Foundation] I.M NEUNGDONG (0) | 2022.04.19 |
| [Parapet, Piloti, Louver] MARISTELLA (0) | 2022.04.15 |
| [Exterior wall] TAESHIN'S HOUSE (0) | 2022.04.14 |
| [Sunken] CHEONGYEONJAE (0) | 2022.04.13 |
마실와이드 | 등록번호 : 서울, 아03630 | 등록일자 : 2015년 03월 11일 | 마실와이드 | 발행ㆍ편집인 : 김명규 | 청소년보호책임자 : 최지희 | 발행소 : 서울시 마포구 월드컵로8길 45-8 1층 | 발행일자 : 매일



