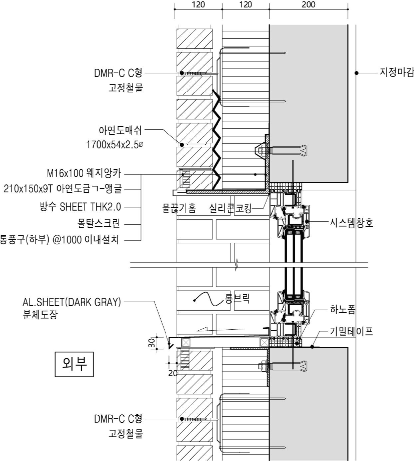
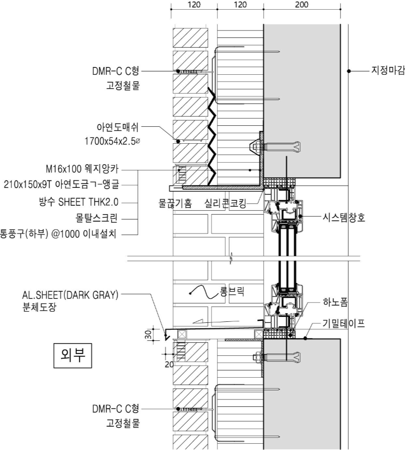
YULMOKJAE
Yulmokjae is a multiplex house in which a total of 6 households can live. The client couple live on the fifth floor with the attic, and the client’s grandparents live on the second floor. The rema..
anc.masilwide.com




Architects DAYPLACE
Location Burim-dong, Gwacheon-si, Gyeonggi-do, Republic of Korea
Completion 2020 . 10
Photographer Hyosook Chin
반응형
'Detail' 카테고리의 다른 글
| [Exterior Wall, Window] SAMJEON-DONG BLANC BLANC (0) | 2022.04.26 |
|---|---|
| [Post box] CLOUD HOUSE (0) | 2022.04.21 |
| [Foundation] I.M NEUNGDONG (0) | 2022.04.19 |
| [Roof, Terrace, Window] MW-HOUSING (0) | 2022.04.18 |
| [Parapet, Piloti, Louver] MARISTELLA (0) | 2022.04.15 |
마실와이드 | 등록번호 : 서울, 아03630 | 등록일자 : 2015년 03월 11일 | 마실와이드 | 발행ㆍ편집인 : 김명규 | 청소년보호책임자 : 최지희 | 발행소 : 서울시 마포구 월드컵로8길 45-8 1층 | 발행일자 : 매일



