
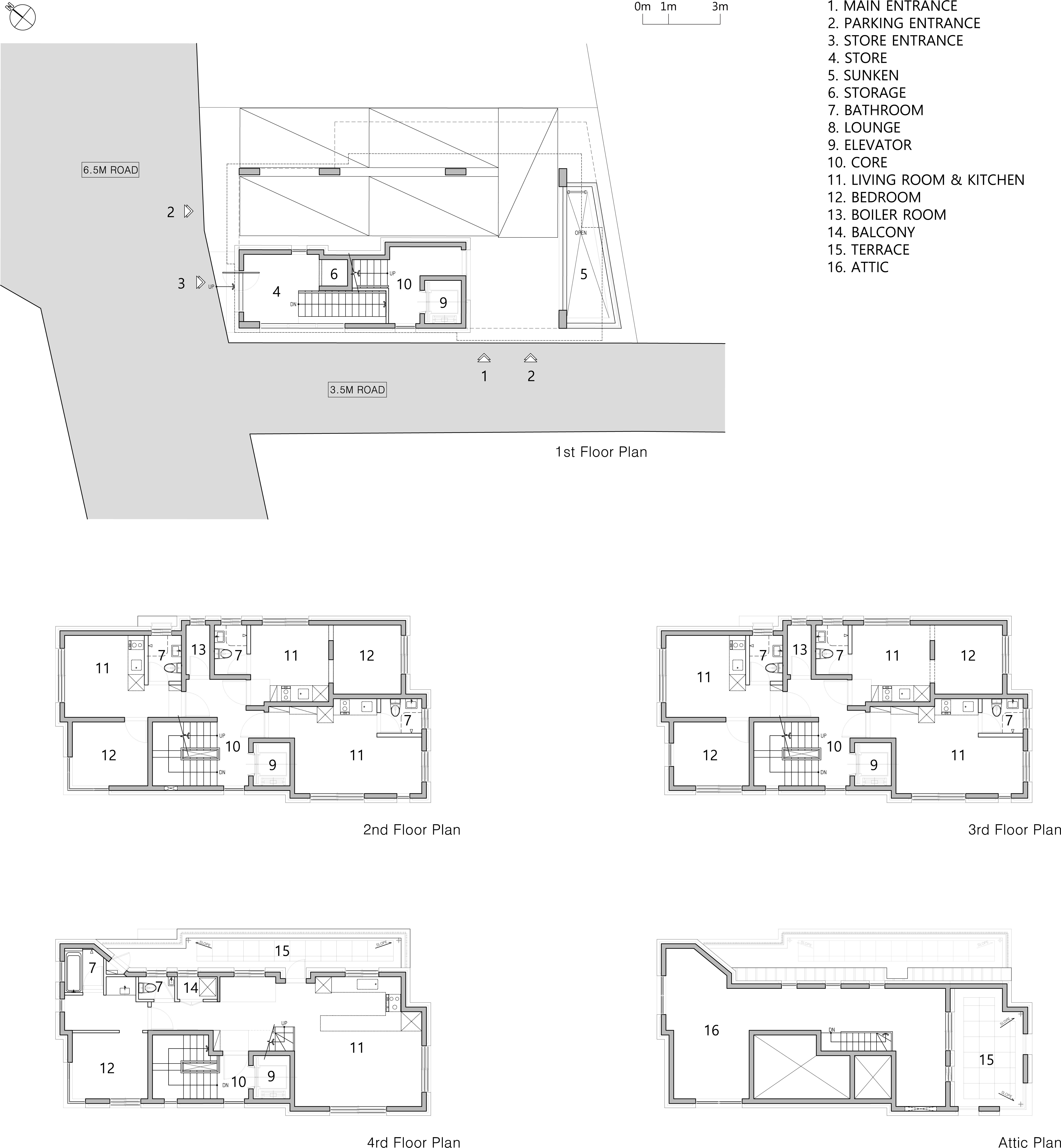
I.M Neungdong is a multiplex housing with the 1st floor is used as a job-house integrated space and the basement floor is used as an office along with the sunken space. This building emphasizes the advantages of the corner land and a unique green space where various flowers, trees and silver grass can be met as the leftover space was formed as a flower garden. By installing a front gate, which is difficult to have in a small, detached house within the city center, a semi-public space that is a passage into the house as well as a shelter was formed, creating a space like a yard in the gate where one can rest and have conversations. Sunken areas were placed at the border between neighbors the border between the basement and first floors, and tall bamboos that are always green throughout the year were planted to cross the borders. White bricks were used for the exterior wall material to further emphasize the image of the building between the gray and faded red-brick buildings. The cafe-like space on the first floor is a space of rest for the office as well as a place to drink tea, but it is also used as a space of communication with the town residents, and it was formed as a transparent and open space to allow anyone to look around. On the top floor, a terrace is placed to the south side, which overlooks the Children’s Grand Park, and corner frames and square frames were placed to attract the green space of the Children’s Grand Park as a borrowed scenery, and the appearance of Achasan mountain in the distance is brought in through the frames on the north side.

I.M 능동은 직주일체의 공간으로 1층과 지하층는 선큰 공간과 함께 사무실로 쓰이는 다가구주택이다. 소규모 다가구주택으로 구성된 이 건축물은 코너의 땅이 가지는 장점을 부각시키고 자투리의 공간은 화단으로 조성하여 다양한 화초와 나무, 억새를 만날 수 있는 이색적인 초록 공간이 있는 곳이다. 도심의 소규모 다가구주택에는 보기 어려운 대문이 마련되어 있고, 대문을 지나 각 세대로 출입하는 통로이며 안식처인 공용공간이 별도로 마련되어 있다는 점이 특징이다. 이 반(半) 공용공간(Semi-public)은 주민들 간의 휴식과 담화가 가능한 대문 안쪽의 작은 마당 같은 공간이다. 이웃과의 경계와 지하와 1층의 경계에 선큰은 사계절 푸른 키높이 대나무가 심어져 있어 건축물 내외부의 경계를 넘나든다. 외벽 재료는 흰색 벽돌을 사용하여 회색 빛과 빛바랜 적벽돌 건물 사이에서 한층 더 건물의 이미지를 강조한다. 1층의 카페 같은 공간은 1층 사무실의 휴게 공간이자 동시에 동네 주민들도 접근할 수 있는 투명하게 열린 소통의 공간이다. 최상층에는 어린이대공원이 보이는 동측 면으로 테라스가 있고, 코너 프레임과 사각의 프레임을 통해 어린이대공원의 초록색 자연 공간을 차경으로 끌어들인다. 북측 면의 프레임을 통해 멀리 아차산의 모습도 바라볼 수 있다.














Architects ISMORE & CREATIVE ARCHITECT
Location Neungdong-ro, Gwangjin-gu, Seoul, Republic of Korea
Site area 144㎡
Building area 86.18㎡
Gross floor area 306.04㎡
Building scope B1, 4F
Building to land ratio 59.85%
Floor area ratio 149.74%
Construction period 2018. 08 - 2019. 03
Completion 2019. 03
Principal architect Younga Mun
Project architect Younga Mun
Design team Sora Kim, Dongjun Jin, Taekwan Jeon
Structural engineer CH Structural engineer
Mechanical engineer KUNCHANG Engineering
Electrical engineer KUNCHANG Engineering
Photographer Changmook Kim
해당 프로젝트는 리빙즈, 디테일 02호에 게재되었습니다.
The project was published in LIVINGS, Detail 02
[BOOK] LIVINGS, Detail 리빙즈, 디테일 01호, 02호
단행본 발행 67개의 형태와 라이프스타일을 담은 주거공간, 국내외 "디테일한 주택 프로젝트"의 엮음
www.masilwide.com
'Architecture Project > Multifamily' 카테고리의 다른 글
| CLOUD HOUSE (0) | 2022.04.21 |
|---|---|
| YULMOKJAE (0) | 2022.04.20 |
| MW-HOUSING (0) | 2022.04.18 |
| MARISTELLA (0) | 2022.04.15 |
| CASA d’POÇO (0) | 2022.04.15 |
마실와이드 | 등록번호 : 서울, 아03630 | 등록일자 : 2015년 03월 11일 | 마실와이드 | 발행ㆍ편집인 : 김명규 | 청소년보호책임자 : 최지희 | 발행소 : 서울시 마포구 월드컵로8길 45-8 1층 | 발행일자 : 매일



