
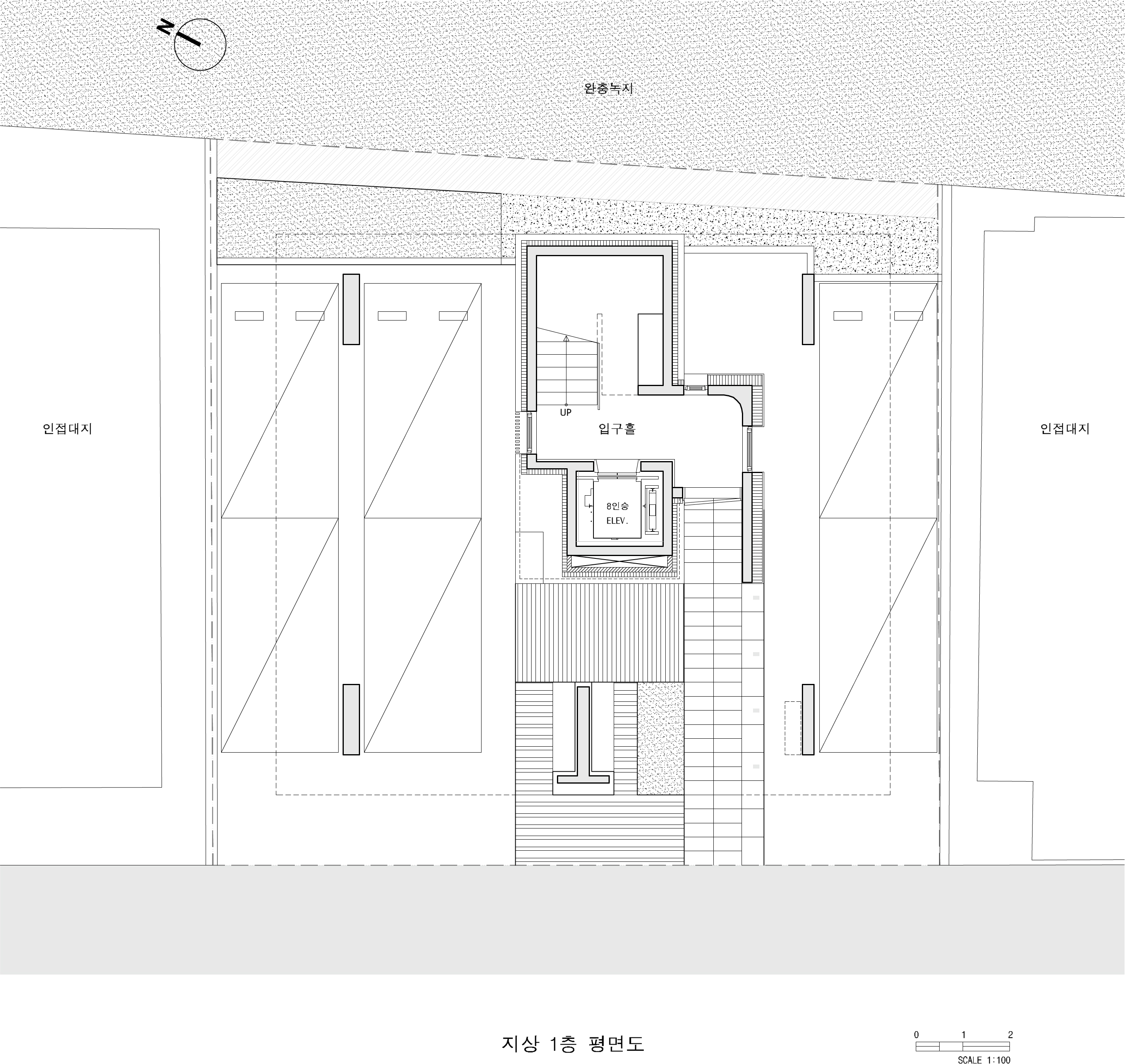
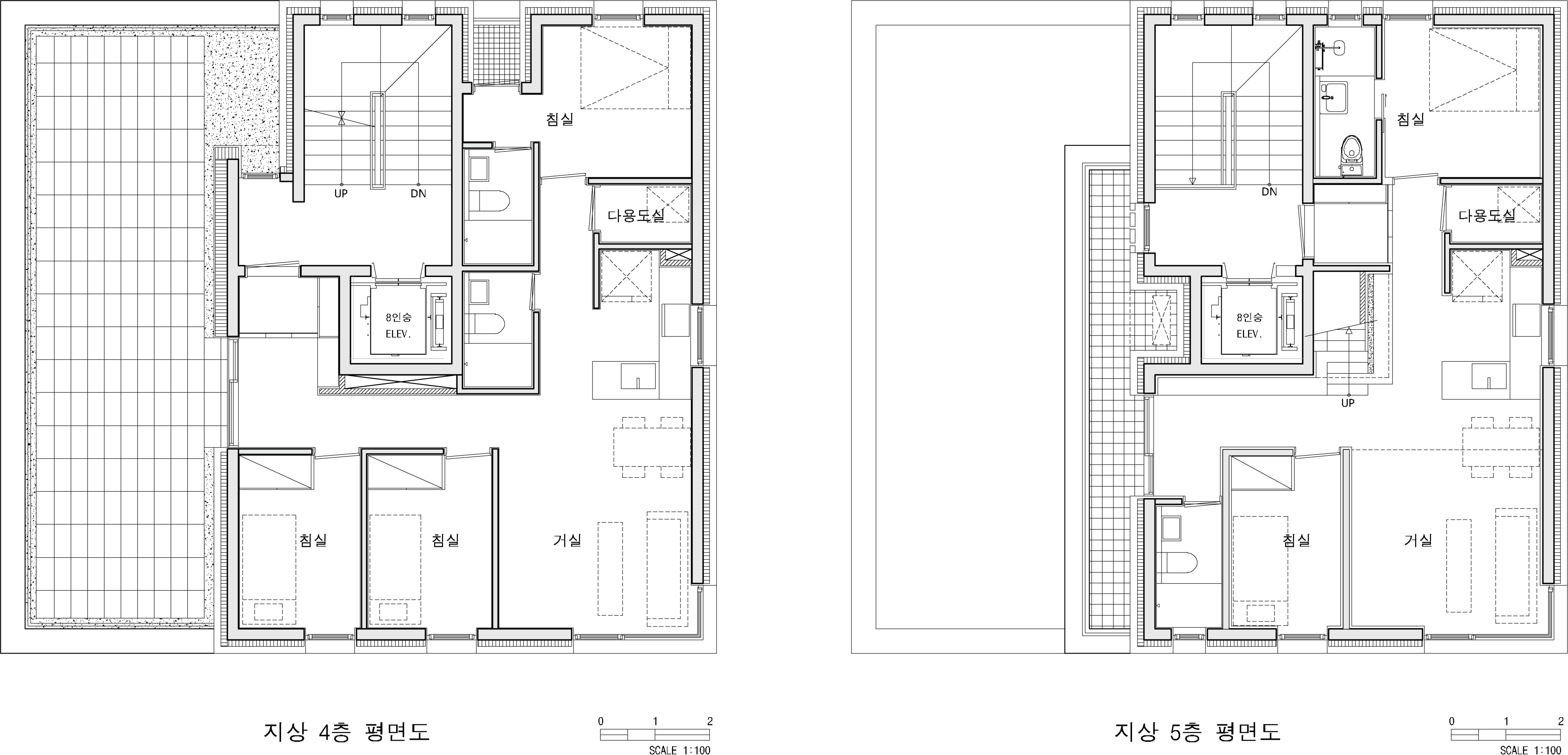
Yulmokjae is a multiplex house in which a total of 6 households can live. The client couple live on the fifth floor with the attic, and the client’s grandparents live on the second floor. The remaining four households are rental units. It is a place where Gwanaksan mountain and Seoul Racecourse Park can be seen, and since a buffer zone and pine grove are formed between the housing site and the road in the back, it is a land where an atmosphere unique to this place can be felt.
The building expresses the history of the deep and dense lives of the three generations, who have lived here for 40 years, contained in this place. The elevation is partitioned by the vertical windows that repeat in a familiar scale, the slender bricks that are artlessly and candidly stacked in a horizontal pattern, the ipe wood that alludes to the verticality of the pine grove, the vertical walnut affix windows that pair up with the ipe wood, etc., and Yulmokjae’s unique, simple and well-organized form is emphasized. and the round windows, vertical windows, affix windows, and skylight selectively bring in the natural light that changes depending on the time and reveal the shades of the light sleeping in the space. In the common spaces, such as the stair hall, a soft and peaceful light gradually soaks in through the vertical louver, perforated brick stacking, and the horizontally long window attached to the floor. From the stair landing, which is finished with pine exposed concrete, the pine grove can be viewed like a framed picture. Each household has a balcony overlooking the forest as well as a separate utility room. A small built-in chair is installed on the pillar area of the first floor piloti, which is the entrance of the building. This small space is a small shelter for the residents and people in the town. Although it is just a small chair, it serves as a guest room for people to gather in multiplex residences in Korea that lack amenities for residents. The stairs that lead up to the attic from the fifth floor also have an image where the lower storage, bookcases, chairs, stairs and lights are integrated, and contain various scenes of everyday life as they are called by various names.

율목재는 총 6세대가 거주 가능한 다세대주택이다. 다락 있는 5층에는 건축주 부부가, 2층에는 건축주의 조부모가 거주하고 있다. 나머지 4세대는 임대용 세대다. 관악산과 경마공원을 조망할 수 있는 곳이자, 뒤편에는 택지와 도로 사이에 완충녹지인 소나무숲이 조성되어 있어 이 장소만의 고유한 분위기를 느낄 수 있는 땅이다.
건물은 3대가 40년을 이어 살아온 이 장소에 담겨있는 깊고 조밀한 삶의 이력을 표현한다. 친밀한 스케일로 반복되는 수직창, 기교 없이 정직하게 쌓은 가로 패턴의 세장한 벽돌, 소나무숲의 수직성을 암시하고 있는 이페목, 이페목과 쌍을 이룬 월넛 수직 덧창 등으로 입면이 분할되어 율목재만의 단순하고 정연한 조형을 강조한다. 거실과 다락, 2개 층이 개방된 주인세대는 원형창, 수직창, 덧창, 천창이 시간에 따라 변화하는 자연광을 선택적으로 끌어들이며 공간에 잠들어 있는 빛의 농담을 드러낸다. 계단실 등의 공용공간에는 수직루버, 영롱쌓기, 바닥에 붙은 가로로 긴 창 등을 통해 부드럽고 안온한 빛이 조금씩 스며든다. 송판 노출콘크리트로 마감된 계단참에서는 소나무숲을 액자처럼 조망할 수 있다. 각 세대마다 숲을 조망할 수 있는 발코니와 별도의 다용도실이 있다. 건축물의 입구인 1층 필로티 기둥 부분에는 작은 붙박이 의자가 설치되어 있다. 이 작은 공간은 거주자와 마을 사람들이 쉬어가는 작은 쉼터다. 작은 의자에 불과하지만, 주민편의시설이 부족한 국내 다세대 주거지에서 사람들이 모이는 사랑방 역할을 한다. 이 사랑방은 건물 정면을 구성하는 벽의 일부지만 측면에서 보면 의자, 후면에서 보면 기둥인 복합적 사물이다. 다락 계단 역시 하부장, 책장, 의자, 계단, 조명이 하나의 조형으로 통합되어 일상의 다양한 장면을 담아낸다.


















Architects DAYPLACE
Location Burim-dong, Gwacheon-si, Gyeonggi-do, Republic of Korea
Site area 232.6㎡
Building area 139.5㎡
Gross floor area 441.9㎡
Height 17.5m
Building to land ratio 59.9%
Floor area ratio 189.9%
Construction period 2020. 02 - 10
Completion 2020 . 10
Principal architect Sangmoon Nam
Project architect Sangmoon Nam
Structural engineer eden structural consultant
Mechanical engineer sung-ji E&C
Electrical engineer sung-ji E&C
Construction woorimaeul A&C
Photographer Hyosook Chin
해당 프로젝트는 리빙즈, 디테일 02호에 게재되었습니다.
The project was published in LIVINGS, Detail 02
[BOOK] LIVINGS, Detail 리빙즈, 디테일 01호, 02호
단행본 발행 67개의 형태와 라이프스타일을 담은 주거공간, 국내외 "디테일한 주택 프로젝트"의 엮음
www.masilwide.com
'Architecture Project > Multifamily' 카테고리의 다른 글
| SAMJEON-DONG BLANC BLANC (0) | 2022.04.26 |
|---|---|
| CLOUD HOUSE (0) | 2022.04.21 |
| I.M NEUNGDONG (0) | 2022.04.19 |
| MW-HOUSING (0) | 2022.04.18 |
| MARISTELLA (0) | 2022.04.15 |
마실와이드 | 등록번호 : 서울, 아03630 | 등록일자 : 2015년 03월 11일 | 마실와이드 | 발행ㆍ편집인 : 김명규 | 청소년보호책임자 : 최지희 | 발행소 : 서울시 마포구 월드컵로8길 45-8 1층 | 발행일자 : 매일



