
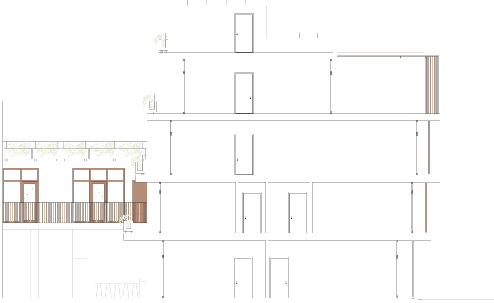
At the Casa d’Poço, the façade of the five-storey building acts as a reflection onto the archipelago’s São Vicente and Santo Antão islands and their distinct cultural and environmental markers. A response to São Vicente’s notable stone-dominated architecture, the street-facing side is clad with three-dimensional wooden shades as a warmer, more welcoming alternative, one in touch with the island’s reputation as the beating heart of the annual Carnival. The hybrid panels, made of Mahogany wood, provide shaded protection from the sun and heat. Alternatively open and shut, a musicality emanates from the vertical shutters as they become the shifting background and scenery of the Carnival, echoing the constantly changing and vivacious costumes of the performers that inhabit the streets.
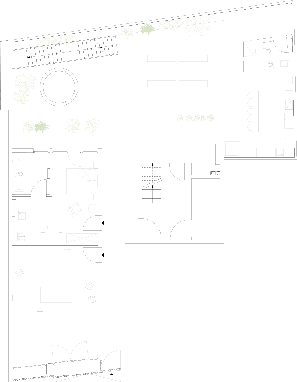
The rear façade, fixed with cascading terraces, opening up the courtyard below, calls to the farming landscape of the neighboring Santo Antão island and its galloping mountains. Endowed with an abounding nature, the result of a humid climate that opposes that of São Vicente, the island’s hills are punctuated with overlaying plateaus, forming basins that collect water from the heavy rains. In a refreshing homage to this system, the Casa d’Poço’s interior terraces hold overflowing pots of whispering wheat and maize; flood-like rainfall pours down onto these balconies and the courtyard nestled in the garden. Collected in a cistern, the water is also used to grow plants in drier seasons.
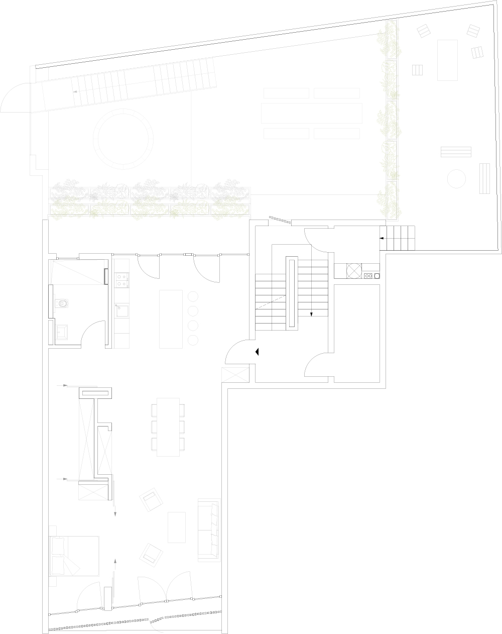
Bringing together São Vicente’s urban touch and Santo Antão’s greenery, the design furthers its dialogue with Cabo Verde’s cultural and natural traits through other structural choices. The island’s imposing sun grows into a valuable resource as it illuminates the solar panels laid across the flat roof and which power the space. The windowless vertical tower at the side of the building, which encloses the stairs connecting the five floors, is set in plaster, an inexpensive and common material on the island. As it enters from the bottom entrance, wind is channeled upwards through it and used to refresh the various floors before exiting at the seam – another recurring practice in Cabo Verdean structures. Reflecting this structural hybridity, the building’s function is widely versatile, bringing together cultural, residential and hospitality spaces. While the bottom floor houses a gallery space, open to local cultural events, the upper floors welcome a diversity of inhabitants, permanent residents and temporary travelers alike. Coming together in the interior courtyard, where a communal exterior kitchen and long benches are towered by the lush balconies, all occupants gather in this sheltered space, tucked away from the street, yet deeply connected to it. At the Casa d’Poço, public and private communicate as do nature and culture, all hailing their profound Cabo Verdean identity as cultivating a profound sense of community.

압제적인 목재 프레임으로 특징 지어지는 '카사 드 포코'
이 5층 건물의 파사드는 상비센트와 산투안탕 섬의 독특한 문화와 주변 환경을 반영하고 있다. 상비센트의 대표적인 석재 건축물들의 영향을 받았고 거리를 향한 면은 따뜻한 기후를 반영하여 입체적인 목재로 그늘을 만들어 환영받을 만한 대안이 되고 카니발의 고동치는 심장이라는 섬의 명성과 어울린다. 마호가니 목재로 만든 하이브리드 패널은 그늘을 만들어 태양과 열로부터 보호해준다.
열리고 닫힘이 일어나면서 카니발의 변화하는 모습과 풍경이 나타나며 수직 루버 사이로 음악이 흘러 나오고 거리 공연자들의 생생한 의상과 다채로운 풍경의 변화가번져 나간다. 계단식 테라스로 고정된 후면 파사드는 안뜰 아래로 열려 있으며 이웃한 산투안탕 섬과 질주하는 듯한 산의 경작지 풍경이 보인다. 상비센트와는 반대되는 습한 기후와 풍부한 자연을 갖춘 이 섬의 언덕은 고원이 겹쳐지고 구두점이 만들어지며 폭우가 올 때 물을 모으는 역할을 하는 분지가 있다. 이러한 시스템에 영감을 받아 내부 테라스에는 밀과 옥수수 화분들을 줄지어 설치했다. 홍수가 날듯한 비가 이 발코니와 정원에 자리 잡은 안뜰에 쏟아지면 저수조에 물을 모으고 건기에 식물을 키우는 데 사용된다. 상비센트의 도시적 감각과 산투안탕의 녹지를 결합한 이 디자인은 다른 구조적 선택을 통해 카보베르데의 문화 및 자연적 특성이 어우러지게 한다. 섬으로 내리쬐는 태양은 평평한 지붕에 놓인 태양 전지판을 비추고 이것은 건물에 전력을 공급할 때 귀중한 자원이 된다. 5개 층을 연결하는 계단을 둘러싸고 있는 건물 측면의 창문 없는 수직 타워는 저렴하고 섬에서 흔하게 사용되는 석고를 사용했다. 아래 입구에서 바람이 들어와 다른 층이 마주하기 전, 위쪽까지 신선한 공기를 채워준다. 이는 카보베르데의 건물 구조에서 자주 사용된다.
구조적 다양성을 반영한 이 건물은 문화, 주거, 환기 공간을 광범위하게 다용도로 사용할 수 있게 한다. 아래층에는 지역 문화 행사를 할 수 있는 갤러리 공간이 있고 위층에는 다양한 지역 주민과 거주자, 여행자들도 사용할 수 있는 공간이 있다. 발코니에 공동 외부 주방과 긴 벤치가 있는 내부 안뜰에 모든 거주자가 모인 이 보호된 공간은 거리에서 떨어져 있지만, 거리와 깊이 연결되어 있다. 이곳에서 공공과 개인은 자연과 문화와 마찬가지로 소통하며 심오한 공동체 의식을 배양함으로써 그들은 카보베르데로서의 정체성을 받아들인다.





















Architect Heim Balp Architekten
Location Rua Lopes da Silva Guine-Bissau, Mindelo, São Vicente, Cabo Verde
Program Residential, Cultural, Hospitality
Gross floor area 580㎡
Completion 2021
Design Team Michael Heim, Pietro Balp, Lia Janela, Matteo Rossi, Lisa Desager
Photography Francesca Iovene
해당 프로젝트는 건축문화 2022년 1월호(Vol. 488)에 게재되었습니다.
The project was published in the January, 2022 recent projects of the magazine(Vol. 488).
January 2022 : vol. 488
Contents : RECORDS NEW PROPOSAL FOR THE HOUSING PROBLEM IN SEOUL FOUND IN RURAL AREA 서울 주거 문제의 새로운 대안, 농촌에서 찾다 : NEWS / COMPETITION / BOOKS : SKETCH MY HOUSE ..
anc.masilwide.com
'Architecture Project > Multifamily' 카테고리의 다른 글
| MW-HOUSING (0) | 2022.04.18 |
|---|---|
| MARISTELLA (0) | 2022.04.15 |
| TAESHIN'S HOUSE (0) | 2022.04.14 |
| CHEONGYEONJAE (0) | 2022.04.13 |
| COTTON HOUSE (0) | 2022.04.12 |
마실와이드 | 등록번호 : 서울, 아03630 | 등록일자 : 2015년 03월 11일 | 마실와이드 | 발행ㆍ편집인 : 김명규 | 청소년보호책임자 : 최지희 | 발행소 : 서울시 마포구 월드컵로8길 45-8 1층 | 발행일자 : 매일



