
The site is an hour’s drive away through the East from Bangkok; Chachoengsao, in which the suburb’s living environment is closed to a city, many factories and the sea (Gulf of Thailand), which produces excessive level of soil salinity. A non-terrain land with an artificial pond is where the villa is located. This man-made pond was built to be used as consuming water as well as an atmospheric visualization and all relaxation senses. As mentioned above, saline soil causes brackish water in the pond, which the water was no longer used for consuming not only for household use, but also agricultural use. In order to alter this low biodiversity water into freshwater, rainwater is needed to dilute an existing water in the pond.
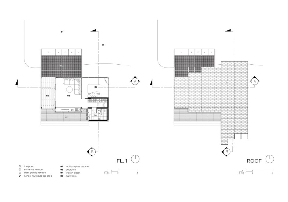
An architecture is considered to live along and be part of this water treatment process, therefore, shape and approach are designed to support this development. The designed is originated by a simple cube which is diagonally slashed in half to provide the largest slanted cantilevered surface which act as a roof and wall for draining water, together with all the functions serve what a single-family residence needed within a small, affordable, and useful house, as well as sustainability. An open-plan living space which is arrangeable to multipurpose use, such as family gathering, dining, and extension sleeping area, connects to both private and semi-public area. A waterside edge, in which a bedroom and an outdoor terrace are located, is serratedly subtracted to act as a shading element as well as gaining hierarchical openness; the highest openness at the entrance terrace allows taking sight in standing position, while middle and low for living space and bedroom allows panoramic view in sitting and laying down position, respectively. The other shading elements, a durable aluminum trellis, are apply for the rest wall for heat protection.
Steel structure with asphalt shingle roof is used for quick and easy installation with lightweight and durability for water drainage. Steel grating is applied for a cantilevered outdoor terrace, which allows rainwater falls directly to the pond, as well as, cooling the air above the floor from water evaporation. Aluminum trellis is not only durable, low maintenance and last-longer used material, but also can easily be re-used for another building because of a clip-lock installation.

대지 환경에 적응하도록 정수 과정의 일부가 된 '빌라 백야드'
차층사오는 방콕에서 동쪽으로 한 시간 정도 차를 타면 도착할 수 있는 곳이다. 도시와 단절된 이곳은 기준치 이상의 토양 염분을 만들어내는 태국만과 수많은 공장이 있다. '빌라 백야드'는 땅이 아닌 인공 연못 위에 지어져 있다. 인공 연못은 시각적인 분위기를 조성하고 안정을 느끼게 해줄 뿐만 아니라 물을 사용하기 위해 만들어졌다. 앞서 말했듯이 염분이 있는 토양 탓에 연못의 물도 염분이 섞여 가정용이나 농업용으로 사용할 수 없다. 생물 다양성이 낮은 물을 담수로 만들기 위해선 기존 연못의 물을 희석할 빗물이 필요했다. 건축물이 물을 정수하는 과정 일부가 되도록 형태와 접근으로 설계되었다.
디자인은 단순한 정육면체를 대각선으로 반 자른 형태에서 시작했다. 가장 큰 경사 캔틸레버 면은 지붕과 벽이면서 물을 배수하는 역할을 한다. 이 작고 저렴하면서 유용한 주택은 지속가능한 단독주택으로서 기능한다. 가족 모임, 식사, 확장되는 침실처럼 다목적 사용이 가능한 개방형 생활 공간은 개인 공간과 공용 공간을 연결해준다. 침실과 야외 테라스가 있는 물가 쪽에는 빛을 가릴 수 있도록 차양을 두면서 단계적으로 개방했다. 입구 테라스는 짧은 차양으로 서 있을 때도 시야를 확보할 수 있고, 거실 공간과 침실은 중간 높이와 낮은 높이로 개방해 앉거나 누워 전경을 볼 수 있도록 했다. 다른 차양을 이루는 내구성 있는 알루미늄 격자는 열 보호를 위해 나머지 벽에 사용되었다.
아스팔트 싱글 지붕과 철골 구조를 사용하여 빠르고 쉬운 설치가 가능했고 가볍고 내구성이 우수한 덕분에 배수 또한 잘된다. 강철 격자는 캔틸레버로 된 야외 테라스에 사용되어 빗물이 연못으로 직접 떨어질 뿐만 아니라 물 증발로 인해 바닥 위의 공기를 냉각시켜준다. 알루미늄 격자는 지금까지 가장 오랫동안 사용되는 재료로서 내구성도 좋고 유지 보수 비용이 적게 든다. 그뿐만 아니라 클립 잠금장치 설치로 인해 다른 건물에도 손쉽게 다시 사용할 수 있다.


















Architect TOUCH Architect
Location Muang, Chachoengsao, Thailand
Program Residential
Site area 11,200㎡
Building area 90㎡
Gross floor area 90㎡
Building scope 1F
Completion 2021
Principal architect Setthakarn Yangderm, Parpis Leelaniramol
Project architect Setthakarn Yangderm, Parpis Leelaniramol
Design team Pitchaya Tiyapitsanupaisan, Tanita Panjawongroj
Client Krittaya + DIAGRAM Bandhit Pakham
Photographer Anan Naruphantawat
해당 프로젝트는 건축문화 2022년 1월호(Vol. 488)에 게재되었습니다.
The project was published in the January, 2022 recent projects of the magazine(Vol. 488).
January 2022 : vol. 488
Contents : RECORDS NEW PROPOSAL FOR THE HOUSING PROBLEM IN SEOUL FOUND IN RURAL AREA 서울 주거 문제의 새로운 대안, 농촌에서 찾다 : NEWS / COMPETITION / BOOKS : SKETCH MY HOUSE ..
anc.masilwide.com
'Architecture Project > Single Family' 카테고리의 다른 글
| ASO HILLS (0) | 2022.04.26 |
|---|---|
| CASA D’EN JAUME (0) | 2022.04.22 |
| NONG HO 17 HOUSE (0) | 2022.04.13 |
| Country House Inpuente Iglesias (0) | 2022.04.12 |
| YEONPUNGJAE (0) | 2022.04.05 |
마실와이드 | 등록번호 : 서울, 아03630 | 등록일자 : 2015년 03월 11일 | 마실와이드 | 발행ㆍ편집인 : 김명규 | 청소년보호책임자 : 최지희 | 발행소 : 서울시 마포구 월드컵로8길 45-8 1층 | 발행일자 : 매일



