
The house is located on one of the slopes near the Cauca River in the Department of Antioquia. Located
at an altitude of 750 meters above sea level, and close to the municipality of Puente Iglesias, it is arranged in such a way that it can capture landscape attributes of great value such as the Cauca River, the La pintada cliffs and Cerro La Mama.
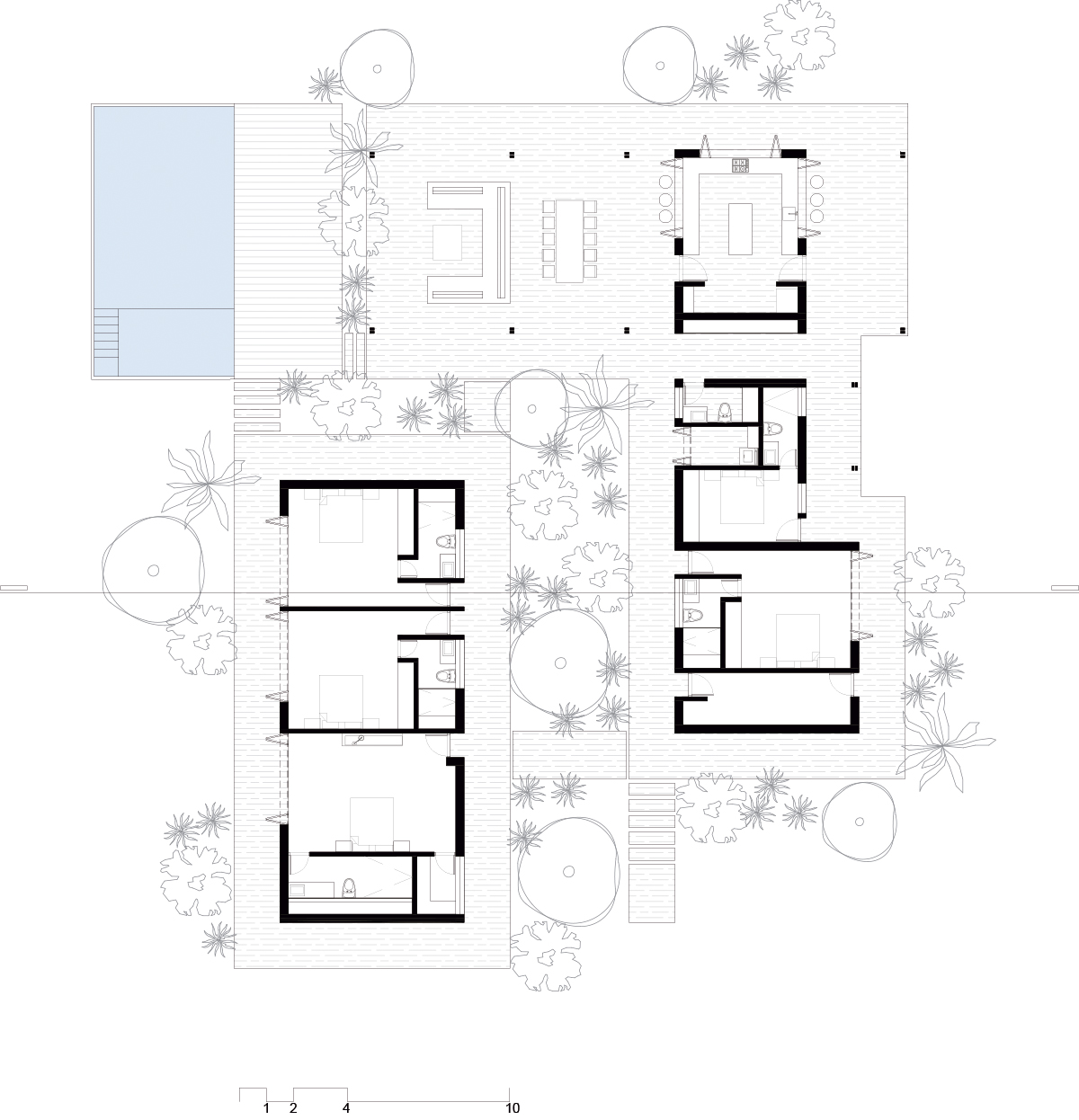
Despite having a wide availability to choose the precise place of construction, the existence of 2 centennial trees, called ear pinions, serve as a prelude to the configuration of the place. Then you arrive, after going down a small curved slope, which opens the landscape again, and later, to the reception garden of the house.
The general arrangement seeks to establish 2 main warehouses with wide perimeter corridors accompanied by lush vegetation. The typical proposal of the Antioquia corridor house complied with the aforementioned landscape attributes to which the house had to respond, in addition to a language that sought, at the client’s request, certain reminiscences of the critical regionalism of Latin American architecture in terms of sobriety and character.
To complement the scheme, it is proposed to place a tectonic emphasis on the design of the roofs. In the
task of covering the wide corridors as well as the social area, it was decided to advance in the design of a structure in scissor wooden trusses, in order to achieve the most important artisan effect of the project. In addition to this, a height is defined after which, in height, everything will be developed through the same material.
The details and specifications finish giving the house a certain sense of austerity mixed with a constant presence of tropical vegetation. The landscape design proposes intermingling and naturalness as well as points of color and areas of shadows suitable for the place and the occasion.
Finally, the social area of the house is configured with the strictly necessary elements: a large elongated dining table and a u-shaped unit in masonry that serves as a room open to the landscape and that in turn precedes the area of the pool. This one, built in natural black slate, seeks to contrast strongly with the deck, also in wood, and give the greatest feeling of naturalness possible. Thus, the visitor remains here in an open space surrounded by plants, giving way to one of the most important geographical landmarks in the region: Los farallones de la pintada.

라틴 아메리카의 주택양식을 볼 수 있는 푸엔테 이글레시아스 전원주택
푸엔테 이글레시아스 주택은 안티오키아 주의 카우카 강 근처 경사지에 세워졌다. 시내와 가깝고 해발 750m의 고도에 위치 하고 있어서 카우카 강, 라 핀타다 절벽, 세로 라마마와 같이 가치 있는 경관을 볼 수 있는 지리적 장점을 가지고 있다. 주택이 들어서기 위한 대지 위치 선정에는 피니언이라고 불리는 200년 된 나무가 영향을 줬다. 작은 등고 경사를 따라 내려가면 풍경이 그려지며 집 내부에 마련된 넓은 마당을 만날수 있다. 집은 무성한 초목들과 함께 넓은 둘레의 복도를 가진 2개의 주요 창고를 가지고 있다. 안티오키아 복도형 주택의 전형적인 제안은 건축주의 요청에 따라 라틴 아메리카 건축의 중요한 특징인 집 안으로 스미는 조경을 고려하여 설계한 결과다. 지붕을 설계할 때는 구조적으로 튼튼해야 했고, 목재 트러스 구조가 채택됐다. 이 목구조로 덮인 부분이 프로젝트의 가장 중요하면서 예술적인 공간을 만들어내는 부분이기 때문이다. 이 외에도 높이가 정의되고 난 후, 높이에 관한 모든 것은 동일한 재료로 구축됐다.
집에 열대식물들이 지속적으로 존재하도록 하기 위해 주변 경관과 디자인적인 측면에서는 장소와 상황에 적합한 색상 포인트와 그림자의 혼합, 자연스러움을 보여준다. 마지막으로 집의 사회적 공간은 반드시 필요한 요소로 구성되어 있다. 크고 긴 식탁과 ㄷ자 모양의 벽돌로 된 유닛은 풍경을 향해 열려 있는 방 역할을 하고 수영장 앞에 위치한다. 천연 블랙 슬레이트로 제작된 이 제품은 목재 데크와의 강한 대비를 나타내며 자연스러움을 선사한다.




















Architect MDE studio + Hernán Arango
Location Antioquia, Colombia
Program Country house
Building area 580㎡
Project period 2019 - 2020
Construction period 2020
Project architect MDE studio, Hernán Arango
Photographer Mauricio Carvajal
해당 프로젝트는 건축문화 2022년 1월호(Vol. 488)에 게재되었습니다.
The project was published in the January, 2022 recent projects of the magazine(Vol. 488).
January 2022 : vol. 488
Contents : RECORDS NEW PROPOSAL FOR THE HOUSING PROBLEM IN SEOUL FOUND IN RURAL AREA 서울 주거 문제의 새로운 대안, 농촌에서 찾다 : NEWS / COMPETITION / BOOKS : SKETCH MY HOUSE ..
anc.masilwide.com
'Architecture Project > Single Family' 카테고리의 다른 글
| VILLA BACKYARD (0) | 2022.04.14 |
|---|---|
| NONG HO 17 HOUSE (0) | 2022.04.13 |
| YEONPUNGJAE (0) | 2022.04.05 |
| THE NANUM (0) | 2022.04.04 |
| PEACEFUL STREAMS (0) | 2022.04.01 |
마실와이드 | 등록번호 : 서울, 아03630 | 등록일자 : 2015년 03월 11일 | 마실와이드 | 발행ㆍ편집인 : 김명규 | 청소년보호책임자 : 최지희 | 발행소 : 서울시 마포구 월드컵로8길 45-8 1층 | 발행일자 : 매일



