
With just one meeting with the client who prepared to build a house for a long time, I was able to fully understand the appearance of the house drawn by the family. The family of couples and two children later hoped for a duplex house where their children could get married and live for two households.
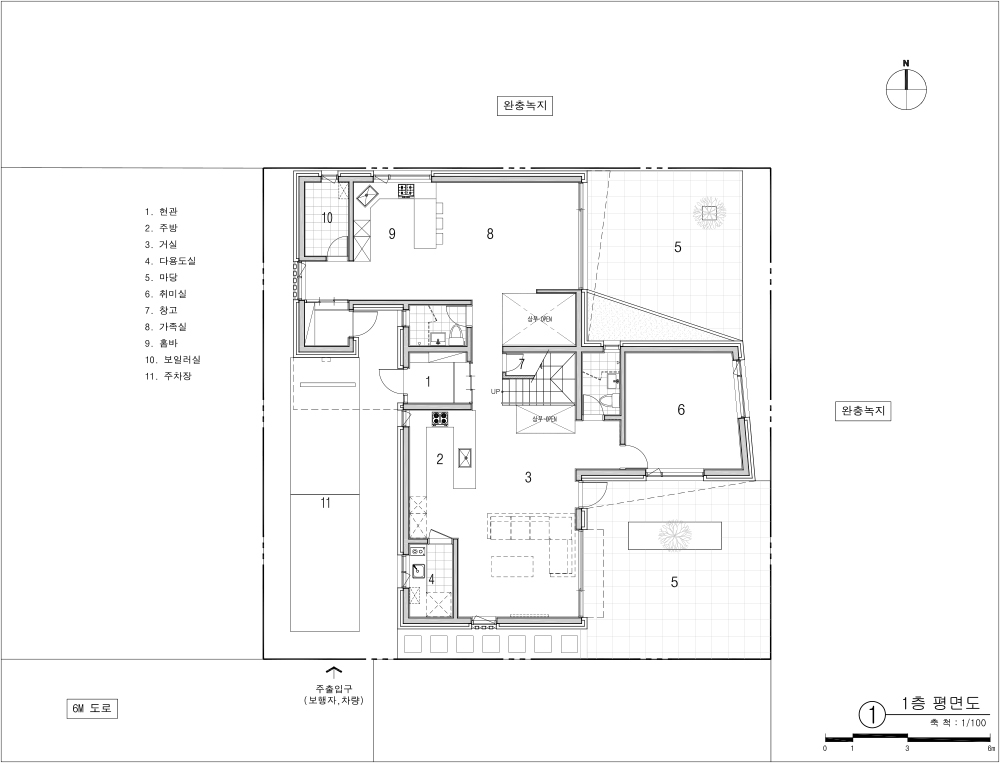
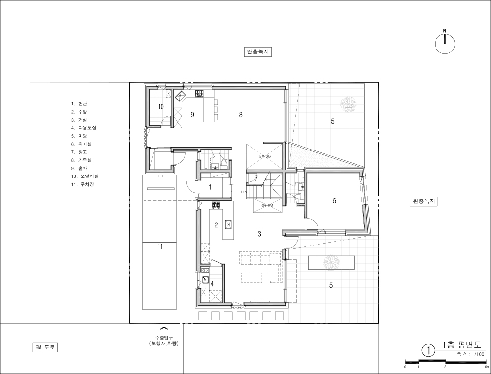
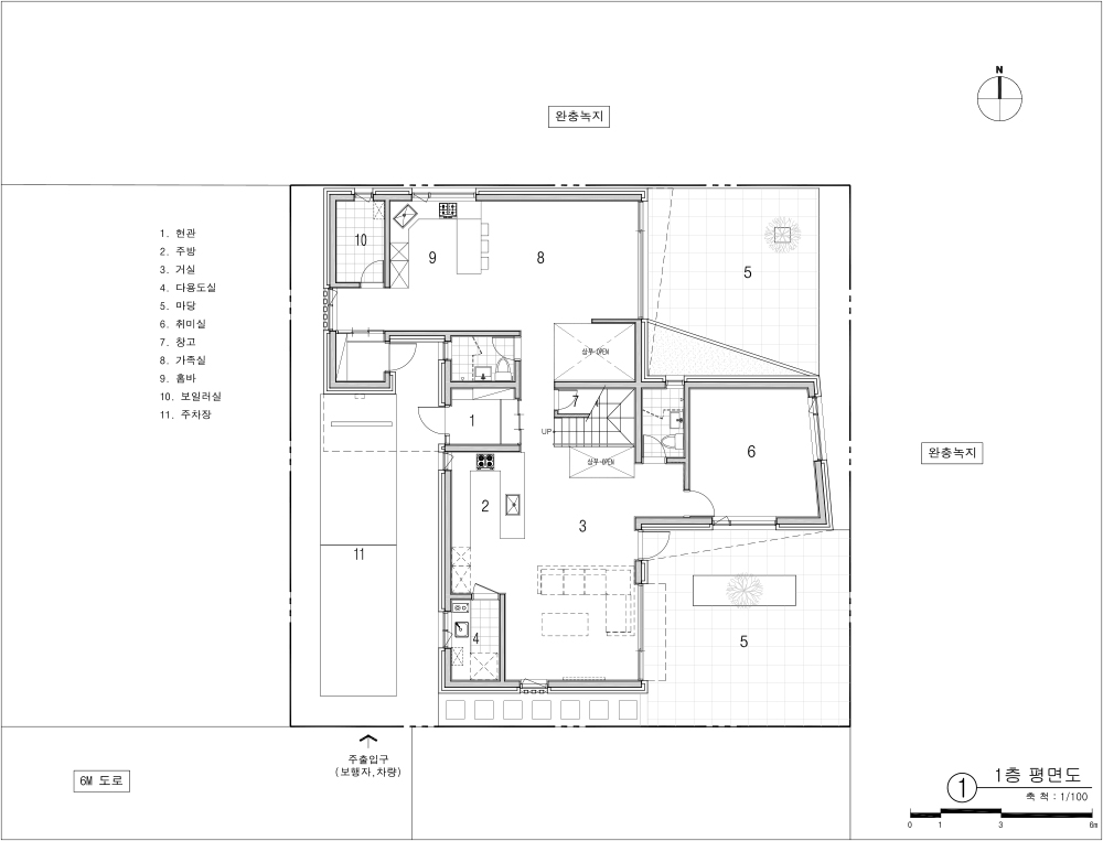
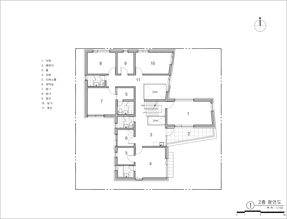
Due to the nature of the land facing the buffer green area to the northeast and adjacent site to the southwest, it has a very narrow access road, including parking spaces. In addition, the yard was naturally placed in the east because the architecture restrict line had to be legally separated to secure a public walking passage at the eastern adjacent site boundary. A strategy was taken to maximize scalability and visual openness by linking adjacent buffer green areas with the yard. The introduced green environment intrudes into the building, making the space richer.
Space started as a family and planned in a way of sharing and sharing with the growth and marriage of children in mind in the near future. First of all, the yard was divided into two yards based on the hobby room and arranged to be linked to the living room and the family room on the first floor. The family room on the first floor can be interpreted as a child's living room, leaving room for a new family home in the future. In addition, the entrance was divided into two and the space was divided into one, but the entrance was different so that their movements could be separated and shared if necessary.
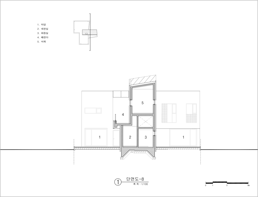
Two households should share public spaces other than household division through separation by floor, but if necessary, they were considered to have different characteristics as houses of one household to two households. In the case of hobby rooms, that was planned to be more higher than other spaces at the request of the client, and through this, the study room placed above makes a more special. The study room, located on the skip floor, is another independent space separated from other rooms and is also an elevation element that adds strength to the building. On the second floor, there are a total of four rooms, including the master room, which is also a series of sharing of new dreams to be drawn in the future.

오랜 시간 집 짓기를 준비한 건축주와의 한 차례의 미팅만으로도 가족이 그리는 주택의 모습을 충분히 이해할 수 있었다. 부부와 두 자녀로 구성된 가족은 후에 자녀가 결혼해서 2대가 생활할 수 있는 듀플렉스 주택을 희망했다.
북동쪽으로는 완충녹지, 남서쪽으로는 인접 대지가 면해 있는 대지의 특성상 주차공간을 포함한 매우 협소한 주 출입 접근로를 갖는다. 또한, 동쪽 인접대지 경계선에서 공공보행 통로 확보를 위해 법적으로 건축선을 이격해야 하므로 마당은 자연스럽게 동쪽에 배치하게 되었다. 인접한 완충녹지들을 마당과 연계시켜 확장성과 시각적 개방감을 극대화하는 전략을 취했다. 유입된 녹지환경은 건물 내부로 관입되어 공간을 더 풍요롭게 만든다.
공간은 하나의 가족으로 시작하여 머지않은 미래에 자녀의 성장과 결혼을 염두에 두고 나눔과 공유의 방식으로 계획했다. 가장 먼저 마당을 취미실을 기준으로 2개의 마당으로 분리하고 거실, 1층 가족실과 연계되도록 배치했다. 1층 가족실은 자녀의 거실로 해석될 것이며, 미래의 새로운 가정의 보금자리가 될 여지를 남겨 둔 것이다. 또한, 2개로 분리된 현관으로 공간은 하나로 통하지만, 입구를 달리하여 필요에 따라서는 그들의 동선을 분리하고 공유되기도 한다. 층별 분리를
통한 세대 간 분할이 아닌 공용공간은 2대가 공유하되, 필요에 따라서 한 가구에서 두 가구의 집으로 서로 다른 성격의 공간으로 구분될 수 있다. 취미실의 경우, 건축주의 요구사항으로 층고를 높게 계획하였는데, 이를 통해 위에 배치되는 서재 공간은 보다 이색적인 제스처를 취하게 된다. 스킵플로어를 통해 2.5층에 있는 서재 공간은 다른 실과 분리되면서 또 하나의 독립된 공간으로서 건물 매스에 힘을 더해주는 입면 요소이기도 하다. 2층에는 안방을 포함한 총 4개의 방이 위치하며 이 또한 미래에 그릴 새로운 꿈에 대한 나눔의 연속이다.















Architect Atelier CIUM│건축사사무소 시움
Location Cheongna-dong, Seo-gu, Incheon, Republic of Korea
Program House
Site area 330.80㎡
Building area 164.59㎡
Gross floor area 264.16㎡
Building scope 2F
Building to land ratio 49.76%
Floor area ratio 79.85%
Design period 2020. 11 - 2021. 2
Construction period 2021. 4 - 11
Completion 2021. 12
Principal architect Jinho Kim
Project architect Shinwoo Kim
Design team Junewoo Baek, Minseok Kang, Howon Yun
Structural engineer BASE Structural Consultants
Mechanical engineer / Electrical engineer HANBUK Technology team
Construction JUWANG Build
Interior design Joohwan Lee
Client Youngchan Kim, Kyungmi Kim
Photographer Jinbo Choi
해당 프로젝트는 건축문화 2022년 1월호(Vol. 488)에 게재되었습니다.
The project was published in the January, 2022 recent projects of the magazine(Vol. 488).
January 2022 : vol. 488
Contents : RECORDS NEW PROPOSAL FOR THE HOUSING PROBLEM IN SEOUL FOUND IN RURAL AREA 서울 주거 문제의 새로운 대안, 농촌에서 찾다 : NEWS / COMPETITION / BOOKS : SKETCH MY HOUSE ..
anc.masilwide.com
'Architecture Project > Single Family' 카테고리의 다른 글
| Country House Inpuente Iglesias (0) | 2022.04.12 |
|---|---|
| YEONPUNGJAE (0) | 2022.04.05 |
| PEACEFUL STREAMS (0) | 2022.04.01 |
| ROOM 36.5℃ (0) | 2022.03.31 |
| HAESOLDANG (0) | 2022.03.30 |
마실와이드 | 등록번호 : 서울, 아03630 | 등록일자 : 2015년 03월 11일 | 마실와이드 | 발행ㆍ편집인 : 김명규 | 청소년보호책임자 : 최지희 | 발행소 : 서울시 마포구 월드컵로8길 45-8 1층 | 발행일자 : 매일



