
'Room 36.5°C' is a home where a family of five young multi-child couples’ lives, which is rare these days, meaning that the warmth of a person is ingrained and the characteristics of each family member are contained. The house was interpreted as 'Room' as a unit of space that can contain the characteristics of each family member, and each unique 'Room' was set as a 'house in the house,' meaning that it gathers and forms a single house.
“I think that a plan is a society of rooms.” - Louis Kahn
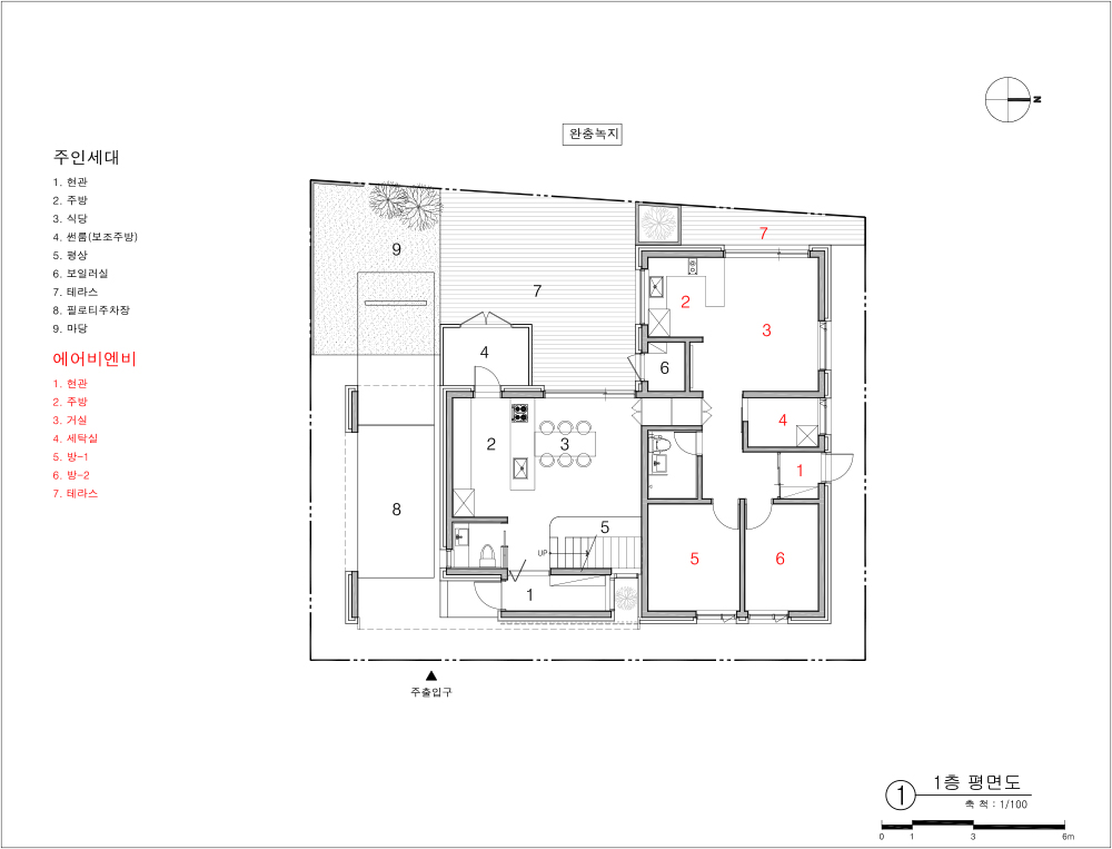
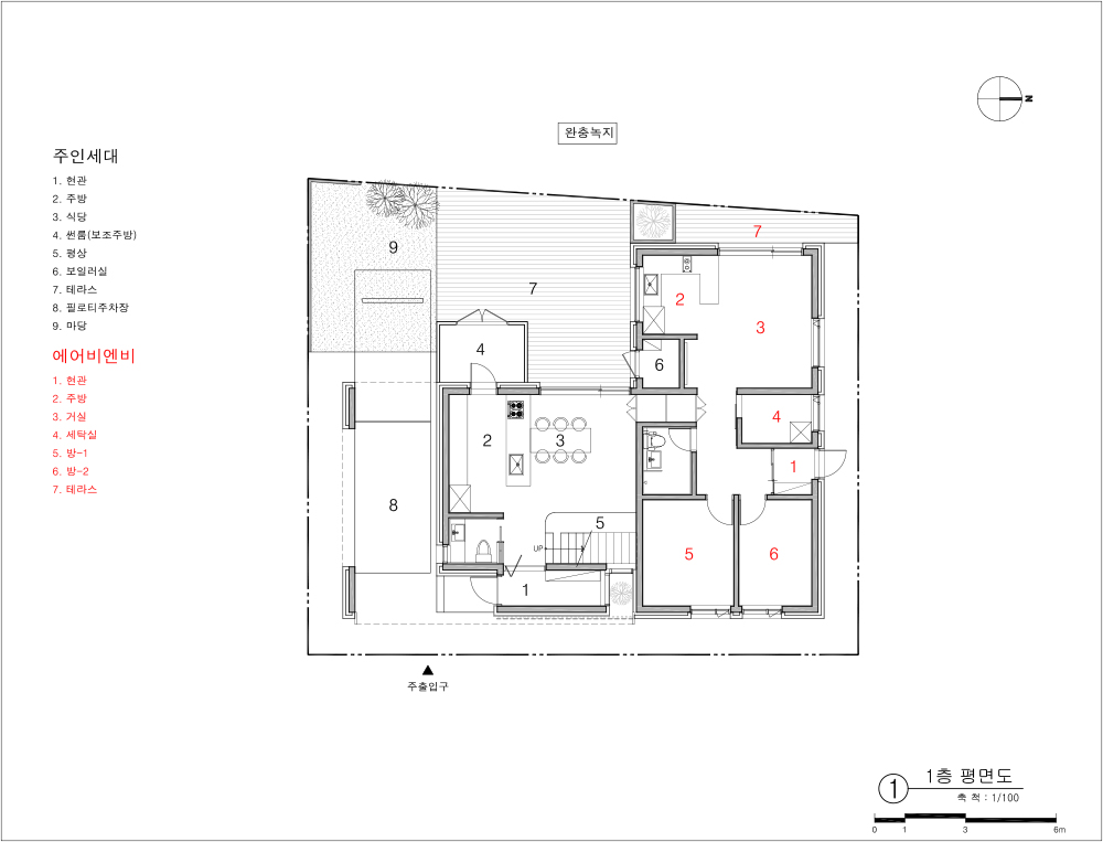
The house offers a wonderful sunset, and a courtyard is planned on the west side of the site adjacent to the buffer green area to secure privacy from the perspective of the front road and adjacent site, and has an expanded external space. The movement line from the main entrance of the front road to the piloti parking lot complements the narrowness of the land, and the open buffer green area adjacent to the yard becomes a bonus yard. The wonderful sunset scenery of Cheongna, Incheon, is delivered to the inside through the building of a large living room window, making the entire house cozy. Independent yards and decks have also been set up for future generations to use as Airbnb accommodations. In order to symbolically express the form of a small village where fathers, mothers, daughters, sons, and youngest houses gather to form a small village, the entrance is the same as the interior space composition, mass was constructed by overlapping and connecting the sloping roofs of various slopes of a roof. With the feeling of well-baked pottery, decorative elements were minimized and finished with only reasonably priced bricks.
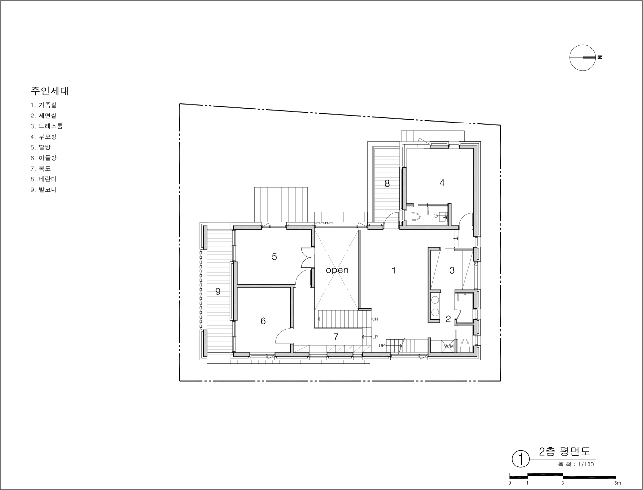
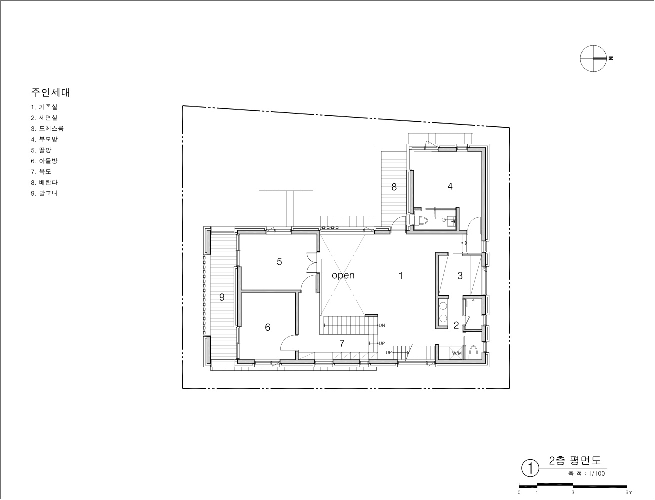
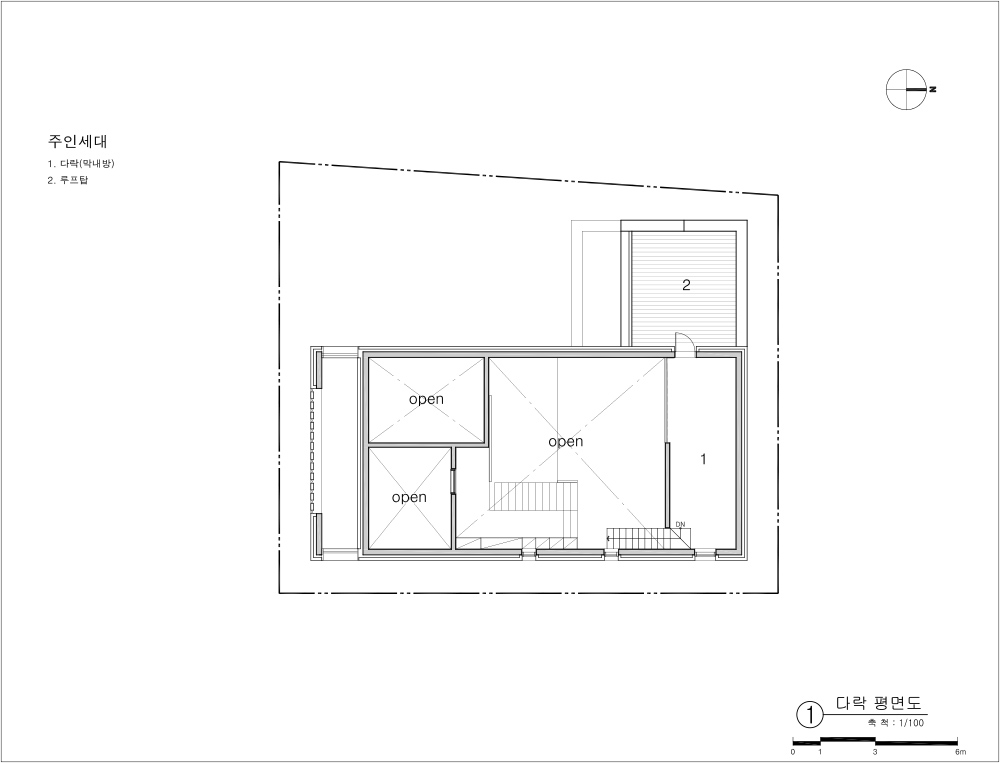
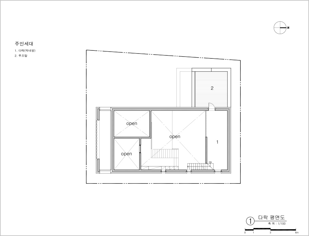
The space is separated into a dad's and mom's house, a daughter's house, a son's house, and an attic's youngest house, centering on the vertically connected dining room, kitchen, and family room on the second floor. The level difference on the floor secures the individuality and sharing of space. In each room, an inner window overlooking dining rooms, kitchens, and family rooms was planned to realize that houses huddled together in small village alleys communicate through small windows. The family room is a community space shared by the family, and a large beam screen in the concept of a public theater is installed to revitalize the indoor space and to efficiently respond to changes in family members in the future. The attic is a space for the youngest 5-year-old, where you can camp at home by installing ceiling, wall beds, and storage spaces and connecting them to the rooftop.
The interior concept excludes special objects or textures, sets the basic atmosphere with the hierarchy and continuity of space, and is decorated with windows and bookcases of various sizes. The sliding louver door installed in the piloti, the main entrance to the house, is also the point of the house with great care.

‘Room 36.5°C’는 요즘 보기 드문 다둥이 젊은 부부의 5인 가족이 거주하는 보금자리로, 사람의 온기가 배어 있고 가족 구성원 개개인의 특성이 담겨있다는 뜻이다. 집은 가족 구성원 개개인의 특성을 담을 수 있는 공간의 단위를 ‘Room’으로 해석되어 개성 있는 각각의 ‘Room’들이 모이고, 하나의 집을 이룬다는 의미를 지닌 ‘집 속의 집’으로 설정하였다.
“룸은 건축을 구성하는 기본단위이며 독립된 구조와 빛을 갖는 공간이다.”- 루이스 칸
집은 멋진 일몰을 볼 수 있고 완충녹지와 인접한 대지 서쪽에 안마당을 계획되어 전면도로와 인접 대지의 시선에서 프라이버시를 확보하며 확장된 외부공간을 가진다. 전면도로 주 출입구에서 필로티 주차장을 통하여 마당과 완충녹지로 연결되는 동선은 대지의 협소함을 보완해주며, 마당과 인접한 열린 완충녹지는 덤으로 생긴 마당이 된다. 인천 청라의 멋진 일몰 풍경은 커다란 거실 창의 영롱 쌓기를 통해 내부로 전달되어 집안 전체를 아늑하게 만든다. 추후 에어비엔비 숙소로 사용할 세대에도 독립된 마당과 데크를 마련했다. 입면은 내부 공간 구성과 동일하게 아빠, 엄마 집, 딸 집, 아들 집, 막내 집들이 모여 작은 마을을 이루는 형태를 상징적으로 표현하기 위해 다양한 물매의 경사지붕을 중첩 및 연결하여 매스를 구성하였다. 잘 구워진 도자기의 느낌으로 장식적인 요소를 최소화하고 합리적인 가격의 벽돌로만 마감하였다.
수직적으로 연결된 1층 다이닝룸과 주방, 2층 가족실을 중심으로 아빠 엄마 집, 딸 집, 아들 집, 다락 막내 집으로 공간은 분리된다. 바닥의 레벨 차는 공간의 개별성과 공유성을 확보한다. 각각의 방에는 다이닝룸과 주방, 가족실이 내려다보이는 내부 창을 계획하여 마치 작은 마을 골목길에 옹기종기 모여 사는 집들이 작은 창을 통해 소통하는 모습을 구현했다. 가족실은 가족이 공유하는 커뮤니티 공간으로 공용 극장 개념의 대형 빔 스크린을 설치하여 실내공간에 활력을 불어넣고 공용세면실, 공용드레스룸, 공용세탁실을 인접 배치하여 추후 가족 구성원 변화에 효율적으로 대응할 수 있도록 고려했다. 다락은 5살 막내의 공간으로 천창 및 벽 침대, 수납공간을 설치하고 루프탑과 연결시켜 집에서도 캠핑을 할 수 있는 공간이다. 인테리어 콘셉트는 특별한 오브제나 텍스처를 배제하고 공간의 위계와 연속성으로 기본적인 분위기를 잡고 다양한 크기의 창호와 책장으로 장식했다. 주택의 주출입구 필로티에 설치한 슬라이딩 루버도어도 정성을 기울인 이 집의 포인트다.


















Architect Atelier CIUM│건축사사무소 시움
Location 40-6, Cheongna-dong, Seo-gu, Incheon, Republic of Korea
Program House
Site area 275㎡
Building area 136.84㎡
Gross floor area 199.62㎡
Building scope 2F
Building to land ratio 49.76%
Floor area ratio 72.59%
Design period 2019. 11 - 2020. 3
Construction period 2020. 04 - 11
Completion 2020. 11
Principal architect Jinho Kim
Project architect Junewoo
Design team Shinwoo Kim, Minseok Kang
Structural engineer BASE Structural Consultants
Mechanical engineer JEONGIN MEC
Electrical engineer DAEKYUNG Electrical Design Office
Construction JUWANG Build
Client Wonil Park, Jua Nam
Photographer Jinbo Choi
해당 프로젝트는 건축문화 2022년 1월호(Vol. 488)에 게재되었습니다.
The project was published in the January, 2022 recent projects of the magazine(Vol. 488).
January 2022 : vol. 488
Contents : RECORDS NEW PROPOSAL FOR THE HOUSING PROBLEM IN SEOUL FOUND IN RURAL AREA 서울 주거 문제의 새로운 대안, 농촌에서 찾다 : NEWS / COMPETITION / BOOKS : SKETCH MY HOUSE ..
anc.masilwide.com
'Architecture Project > Single Family' 카테고리의 다른 글
| THE NANUM (0) | 2022.04.04 |
|---|---|
| PEACEFUL STREAMS (0) | 2022.04.01 |
| HAESOLDANG (0) | 2022.03.30 |
| SANGDAE-DONG HOUSE (0) | 2022.03.25 |
| THE FRIYAH (0) | 2022.03.25 |
마실와이드 | 등록번호 : 서울, 아03630 | 등록일자 : 2015년 03월 11일 | 마실와이드 | 발행ㆍ편집인 : 김명규 | 청소년보호책임자 : 최지희 | 발행소 : 서울시 마포구 월드컵로8길 45-8 1층 | 발행일자 : 매일



