
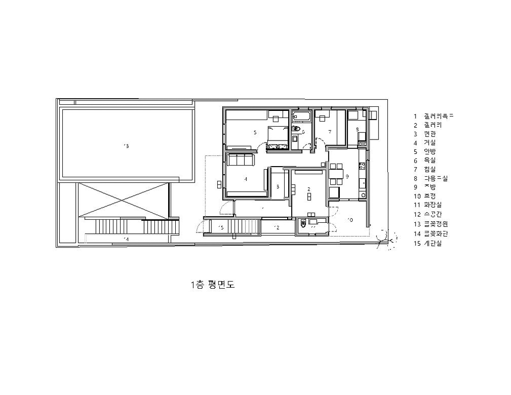
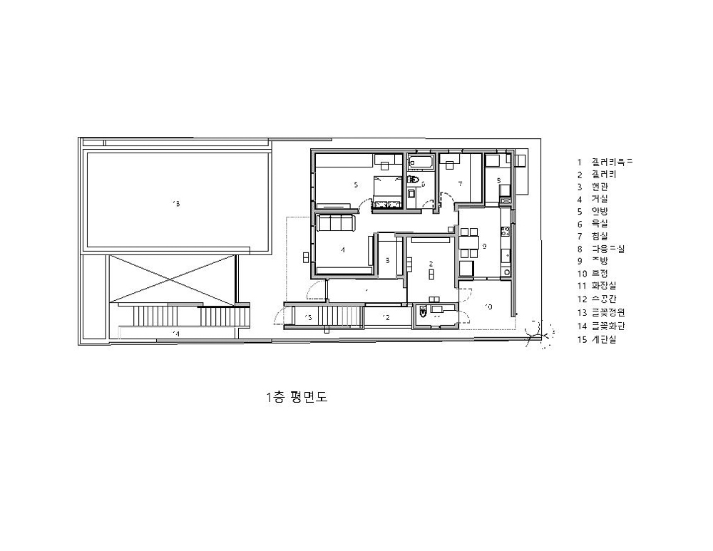
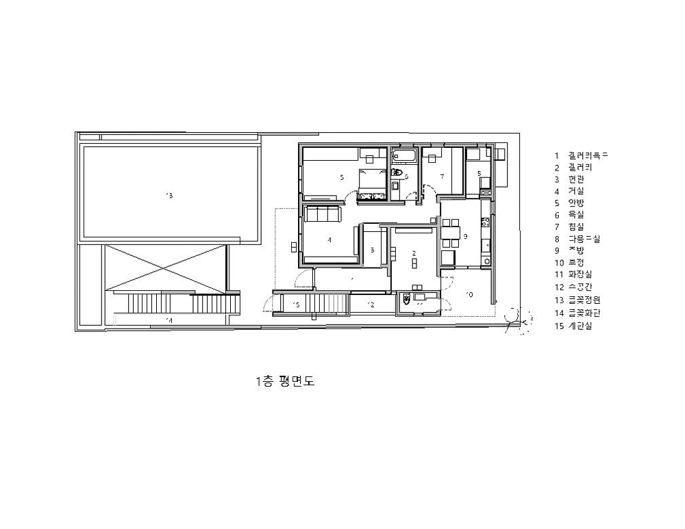
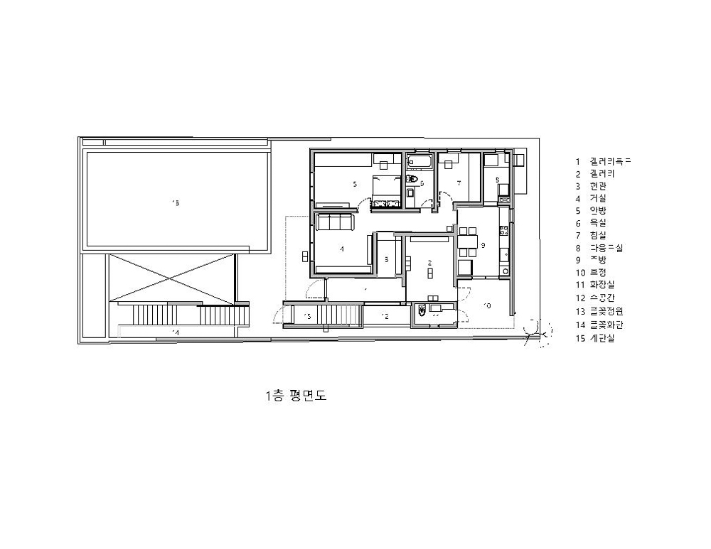
Aso hills is a small gallery built on a site with a slope of about 15° and a residential facility for three generations. It is a three-generation residential complex with a generation of parents connected to a grass garden and a small gallery on the roof floor and a generation of children on the upper floor. The residential space is divided into a gallery and an entrance. It slowly begins with the establishment of the movement line by the axis of the outer stairs from the road and the natural attraction by the grass flower bed and entrance wall that lie on the extension line. Located at the center of the land, the grass garden is a place that captures the past and present of the wildflower gallery, which has been a long-standing space for the owner. In addition to it, it is a space of relaxation for 3 generation family members and it will also serve as a community space for visitors using the gallery. Due to the stepwise hierarchy of the grass garden and entrance stairs formed in the front of the residential space deeply separated from the southern road, the upper residential households can secure minimum privacy in dense urban dwellings. The low-rise volume, which is shape-integrated with the entry wall, was designed as a simple exposed concrete box of hexahedrons to become another “place of memory” for visitors remembering the previous grass flower gallery (Aso). As soon as you enter the entrance wall, the sky-colored scenery and the white volume that seems to float in the residential generation face the gaze through the vertically empty void space. And the exterior staircase which is located in the grass flower bed in the barrier of public space (neighborhood living facility) and personal space(residence) takes a role of entrance axis which eases the barrier of inside and outside naturally. The part of the axis is connected with the small gallery related to parents’ space on the 2nd floor, and the other part of the axis connects with the 3rd floor, which is the space kids live in. In addition, it was hoped that each space could constantly have a close relationship through various architectural devices that allow horizontal expansion of internal and external spaces along the land boundary line.

아소힐스는 약 15°의 경사도를 가진 대지에 세워진 작은 갤러리이자, 3세대를 위한 주거 시설이다. 지붕층에 풀꽃 정원과 작은 갤러리가 연결되는 부모 세대를 그리고 그 상부층에 자녀 세대를 배치한 3세대 주거형식의 복합공간이다. 주거 공간은 갤러리와 진입부에서 구분되어 있다. 도로로부터 외부계단의 축선에 의한 동선의 설정과 그 연장선상에 놓여있는 풀꽃화단과 진입 가벽에 의한 자연스러운 이끌림으로 천천히 시작된다. 대지의 중심축에 위치한 풀꽃 정원은 건축주의 오랜 삶의 공간이었던 야생화갤러리의 과거와 현재를 담아내는 장소이다. 또한, 3세대 가족 구성원의 휴식 공간이면서 갤러리를 이용하는 방문객들을 위한 커뮤니티 공간의 역할을 한다. 남측도로에서 깊게 이격된 주거공간의 전면에 형성된 풀꽃 정원과 진입 계단의 단계적 위계설정으로, 상층부의 주거세대는 밀집된 도심지 주거에서 최소한의 프라이버시를 확보할 수 있게 되었다. 진입가벽과 형태적으로 일체화된 저층부 볼륨은 육면체의 단순한 노출콘크리트박스로 디자인하여 이전의 풀꽃갤러리(아소)를 추억하는 방문객들에게 또 다른 ‘기억의 장소’가 되었으면 했다. 진입가벽을 들어서는 순간, 수직으로 비워진 보이드 공간을 통해 하늘빛 풍경과 부유(浮遊)하는 듯한 주거세대 백색의 볼륨을 마주하게 된다. 그리고 공적공간(근생)과 사적공간(주거)의 경계에 있는 풀꽃 화단과 외부계단은 안과 밖의 경계를 자연스럽게 완화해주는 진입축의 역할을 한다. 그 축의 일부는 2층 부모 세대의 공간과 작은 갤러리에 연결되고, 일부는 3층 자녀가 거주하는 공간과 연결된다. 또한, 대지경계선을 따라 전체를 순환하는 연결 동선과 내외부공간의 수평적인 확장이 가능한 다양한 건축적 장치를 통해 각 공간이 끊임없이 긴밀한 관계성을 가질 수 있기를 바랐다.















Architects 에이엠건축사사무소 | AM ARCHITECT
Location Dongwon-Ro, Suseong-Gu, Daegu, Republic Of Korea
Program Single Family House
Site area 366.6㎡
Building area 153.47㎡
Gross floor area 478.86㎡
Building scope B1, 2F
Building to land ratio 41.86%
Floor area ratio 63.24%
Design period 2020. 1 - 4
Construction period 2020. 5 - 2021. 2
Completion 2021
Principal architect Taeyun Kim
Project architect Taeyun Kim
Construction Seum Construction Co., Ltd.
Client Gallery Aso
Photographer Donggyu Yoon
해당 프로젝트는 건축문화 2022년 2월호(Vol. 489)에 게재되었습니다.
The project was published in the February, 2022 recent projects of the magazine(Vol. 489).
February 2022 : vol. 489
Contents : RECORDS THE NATIONAL MUSEUM OF MODERN AND CONTEMPORARY ART DISCLOSES PLANS FOR 2022 국립현대미술관 2022년 전시 계획 공개 : NEWS / COMPETITION / BOOKS : SKETCH THE QUIET..
anc.masilwide.com
'Architecture Project > Single Family' 카테고리의 다른 글
| POEMS HOUSE (0) | 2022.04.28 |
|---|---|
| CASA JC (0) | 2022.04.27 |
| CASA D’EN JAUME (0) | 2022.04.22 |
| VILLA BACKYARD (0) | 2022.04.14 |
| NONG HO 17 HOUSE (0) | 2022.04.13 |
마실와이드 | 등록번호 : 서울, 아03630 | 등록일자 : 2015년 03월 11일 | 마실와이드 | 발행ㆍ편집인 : 김명규 | 청소년보호책임자 : 최지희 | 발행소 : 서울시 마포구 월드컵로8길 45-8 1층 | 발행일자 : 매일



