
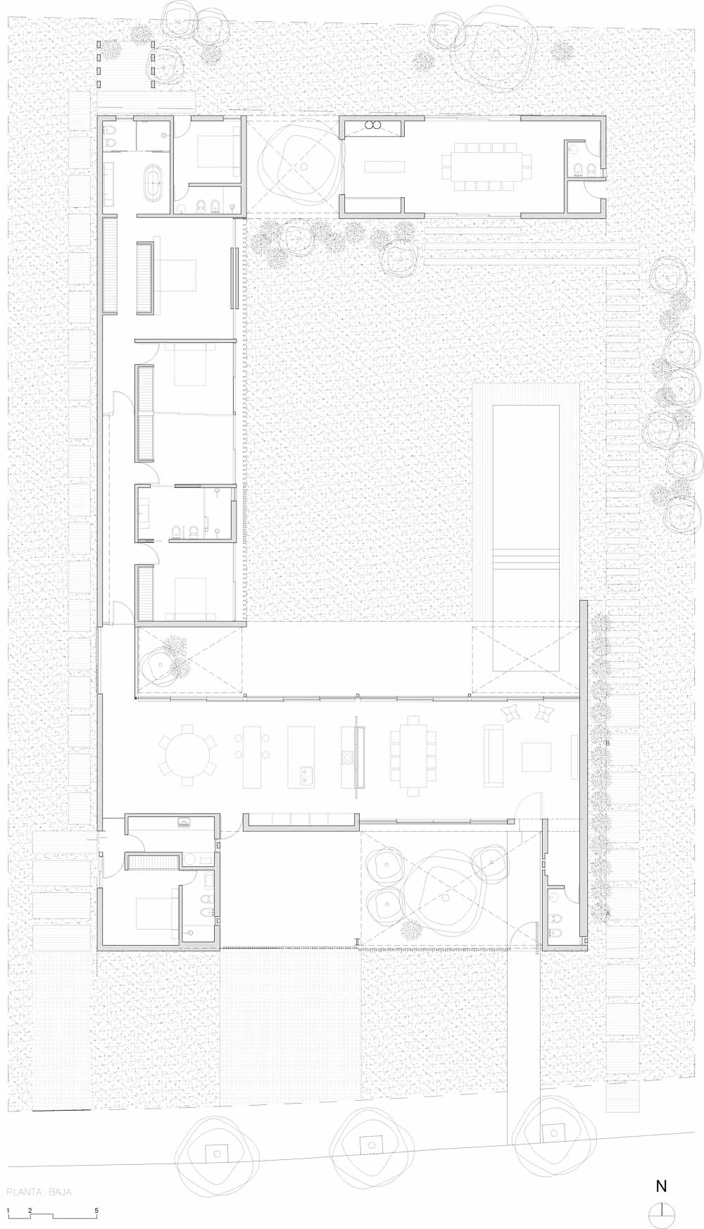
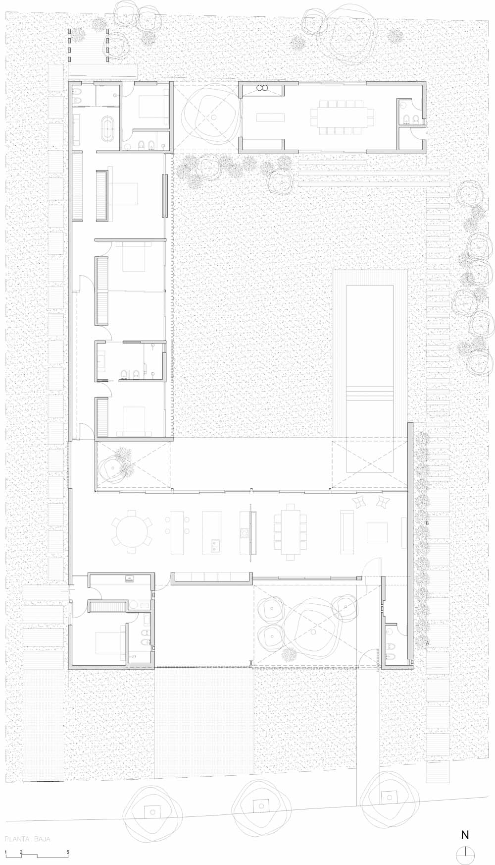
The house is set in a neighborhood located in the outskirts of the city. The program of the house is extremely interesting based on the family relationships and the characteristics of each family member. It is proposed in a plot with a north orientation for the back of it, being this a happy coincidence between orientation and the search for privacy over the street. It is designed in a U-shaped plant opened to the east, where the orientations start to define the project. The plan is defined trying that the habitable areas were surrounded by vegetation, impregnated by aromatic plants that provide a spacious area to the perception of he occupants, while the nighttime areas occupy a lateral side of the house. Kitchen and living room are separated and they keep a similar proportion, related with the relationships that suggest their inhabitants. The entrance is proposed through a patio that assures a double relation with the green in the interiors. The house can be manifested open or closed in its interior because of the presence of a mobile double filter of solar shading built with aluminum panels. Over the facade, this filter works as a closing structure and as a closure to the street, reinforcing the relation with the interior patio. The house is built with a structure composed of exposed concrete slabs supported by structural masonry and a double wall of black bricks, generating a new chromatic perception in both the interior and exterior. The roofs are plain, being composed of different heights by the fitting of the different beams, built in exposed concrete. The U-shaped patio is closed with a social and barbecue area, with an independent entrance. The house attempts to get away from the aesthetics of this type of neighborhoods based on its scale and its image, in a search for a synthesis of its morphologic and chromatic expression.

녹지와 내부의 이중적 관계를 보여주는 파티오가 있는 집, 카사 JC
이 집은 도시 외곽에 위치한 동네에 있다. 집의 프로그램은 가족의 관계와 각 가족 구성원의 특성을 기반으로 하여 매우 흥미롭다. 북향의 필지에 지어진 이 집은 방향과 도로변으로부터 프라이버시를 보장하기 위한 조화를 보여준다. 이 집의 향은 프로젝트를 정의하는 동쪽으로 열린 ㄷ자형에서 설계됐다. 이 계획은 거주 가능한 지역을 초목으로 둘러싸고, 거주자가 인식할 수 있는 넓은 외부 공간은 향기로운 식물로 가득 차 있는 반면, 어두운 영역은 집의 측면을 차지하도록 시도하는 것으로 정의된다. 부엌과 거실은 분리되어 있으며, 거주자를 암시하는 관계와 관련하여 비슷한 비율을 유지한다. 입구는 내부의 녹지와 이중적인 관계를 보장하는 파티오를 통해 제안된다. 알루미늄 패널로 지어진 태양열 차양의 모바일 이중 필터가 있기 때문에 집은 내부에서 열리거나 닫힐 수 있다. 정면에서 이 필터는 폐쇄 구조로 작동하고 거리에 대해 폐쇄적으로 작동하여 내부 파티오와의 관계를 강화한다. 이 집은 구조용 석조로 지지되는 노출콘크리트 슬래브와 검은색 벽돌의 이중벽으로 구성된 구조로 지어져 내부와 외부 모두에서 새로운 색채를 인식하도록 한다. 지붕은 노출콘크리트로 지어진 다른 보에 의해 다른 높이로 구성되어 평범하다. ㄷ자형 파티오가 닫혀 있으며 사교 및 바비큐 공간과 독립된 출입구가 있다. 집은 형태와 색채 표현의 종합을 찾기 위해 규모와 이미지를 기반으로 설계됐다.



















Architect Mondejar & Figueroa Studio
Location Córdoba, Argentina
Program Hosue
Gross floor area 445.55㎡
Completion 2020
Principal architect Enrico Kreiman, arqs.
Project architect Enrico Kreiman, arqs.
Engineer Ing. Edgard Moran.
Photographer Gonzalo Viramonte
해당 프로젝트는 건축문화 2022년 2월호(Vol. 489)에 게재되었습니다.
The project was published in the February, 2022 recent projects of the magazine(Vol. 489).
February 2022 : vol. 489
Contents : RECORDS THE NATIONAL MUSEUM OF MODERN AND CONTEMPORARY ART DISCLOSES PLANS FOR 2022 국립현대미술관 2022년 전시 계획 공개 : NEWS / COMPETITION / BOOKS : SKETCH THE QUIET..
anc.masilwide.com
'Architecture Project > Single Family' 카테고리의 다른 글
| GAHWAMANSASEONG (0) | 2022.04.29 |
|---|---|
| POEMS HOUSE (0) | 2022.04.28 |
| ASO HILLS (0) | 2022.04.26 |
| CASA D’EN JAUME (0) | 2022.04.22 |
| VILLA BACKYARD (0) | 2022.04.14 |
마실와이드 | 등록번호 : 서울, 아03630 | 등록일자 : 2015년 03월 11일 | 마실와이드 | 발행ㆍ편집인 : 김명규 | 청소년보호책임자 : 최지희 | 발행소 : 서울시 마포구 월드컵로8길 45-8 1층 | 발행일자 : 매일



