
Y House is a house that the CEO of Company D built for their employees, and it is a place to live and rest in a space that harmonizes with the natural landscape. The architect designed a space that contained the landscape and coziness using the level difference of the site and the method of removing, so that the natural landscape that stretches out in front of the site could be used for the house as much as possible.
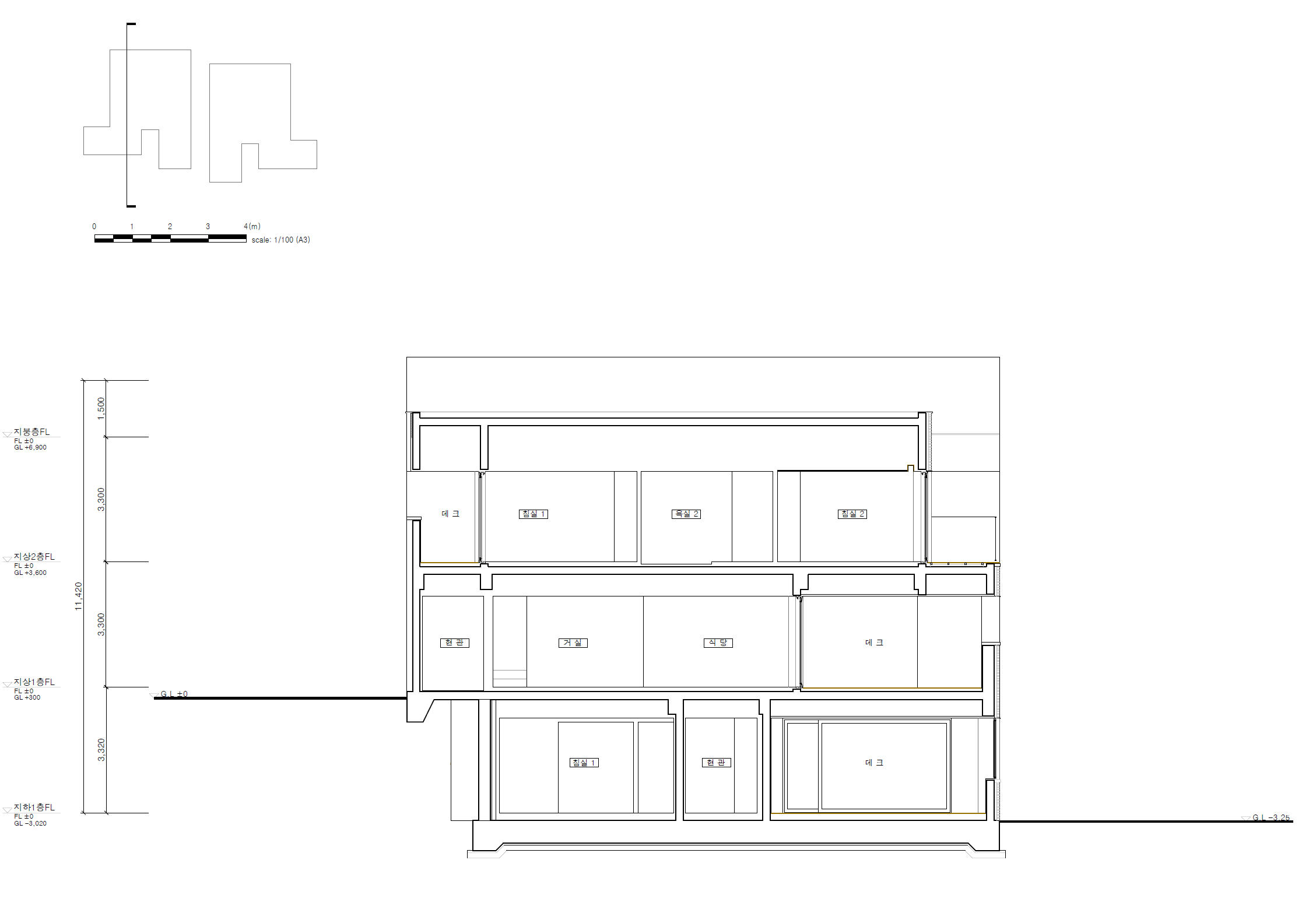
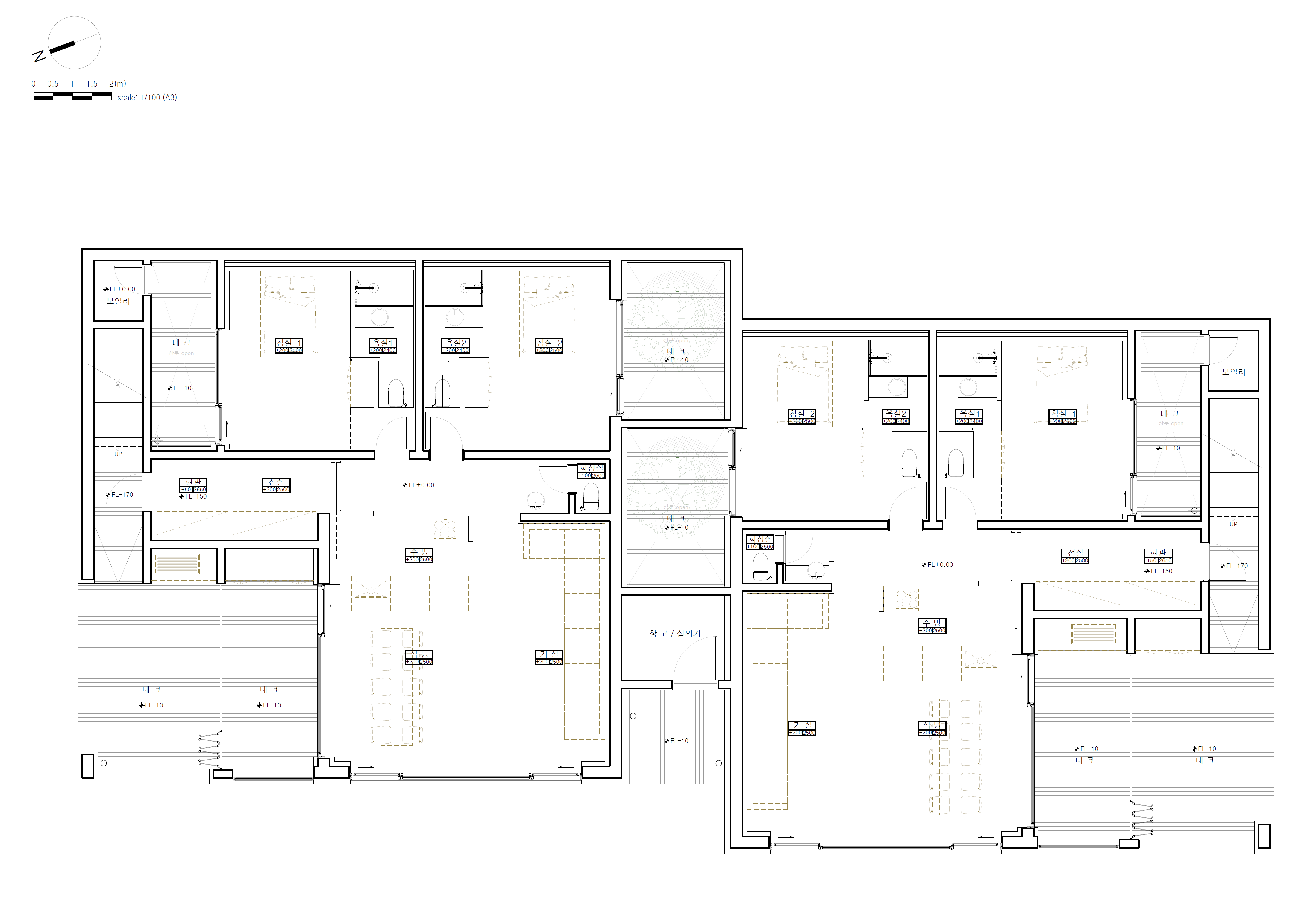
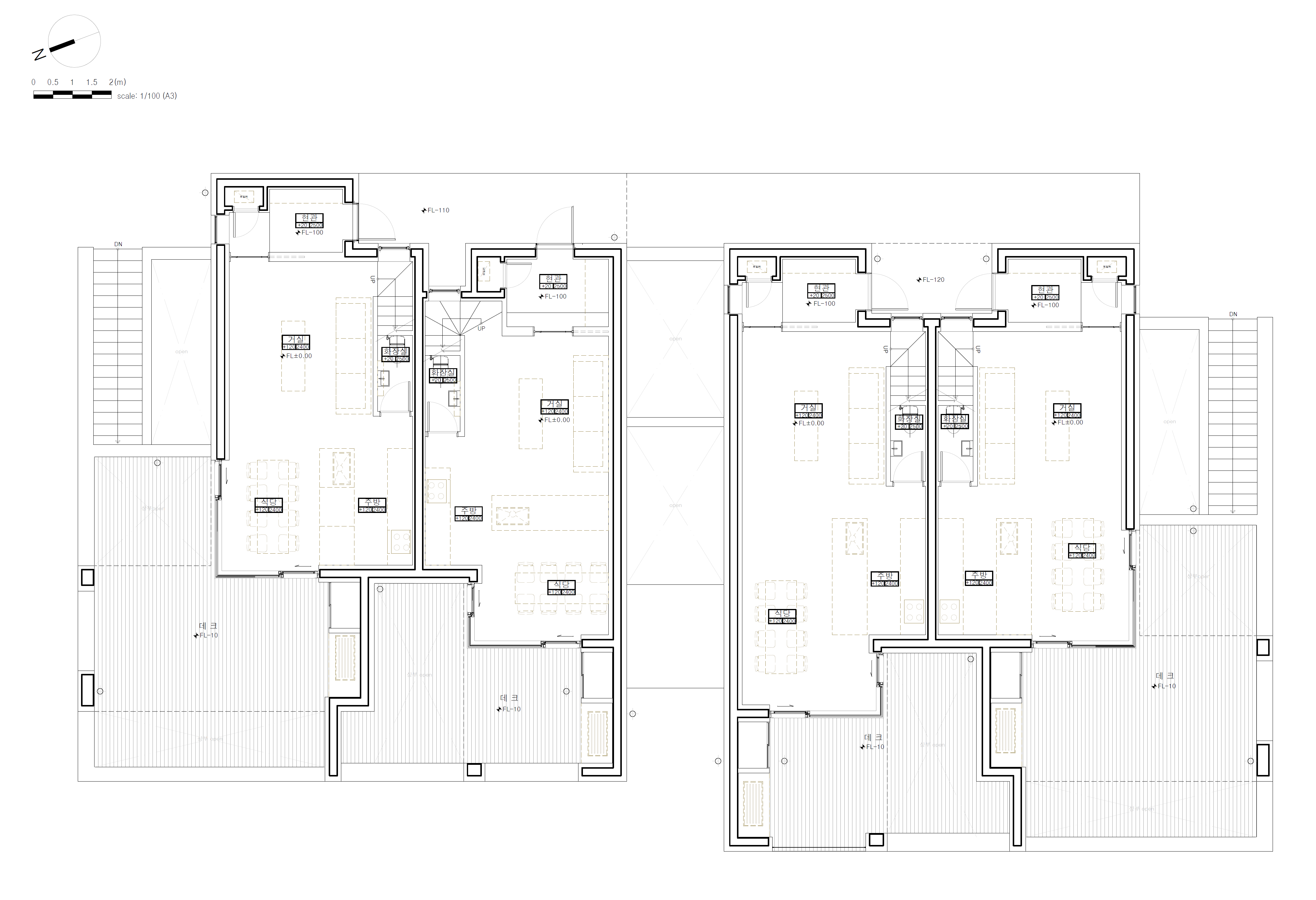
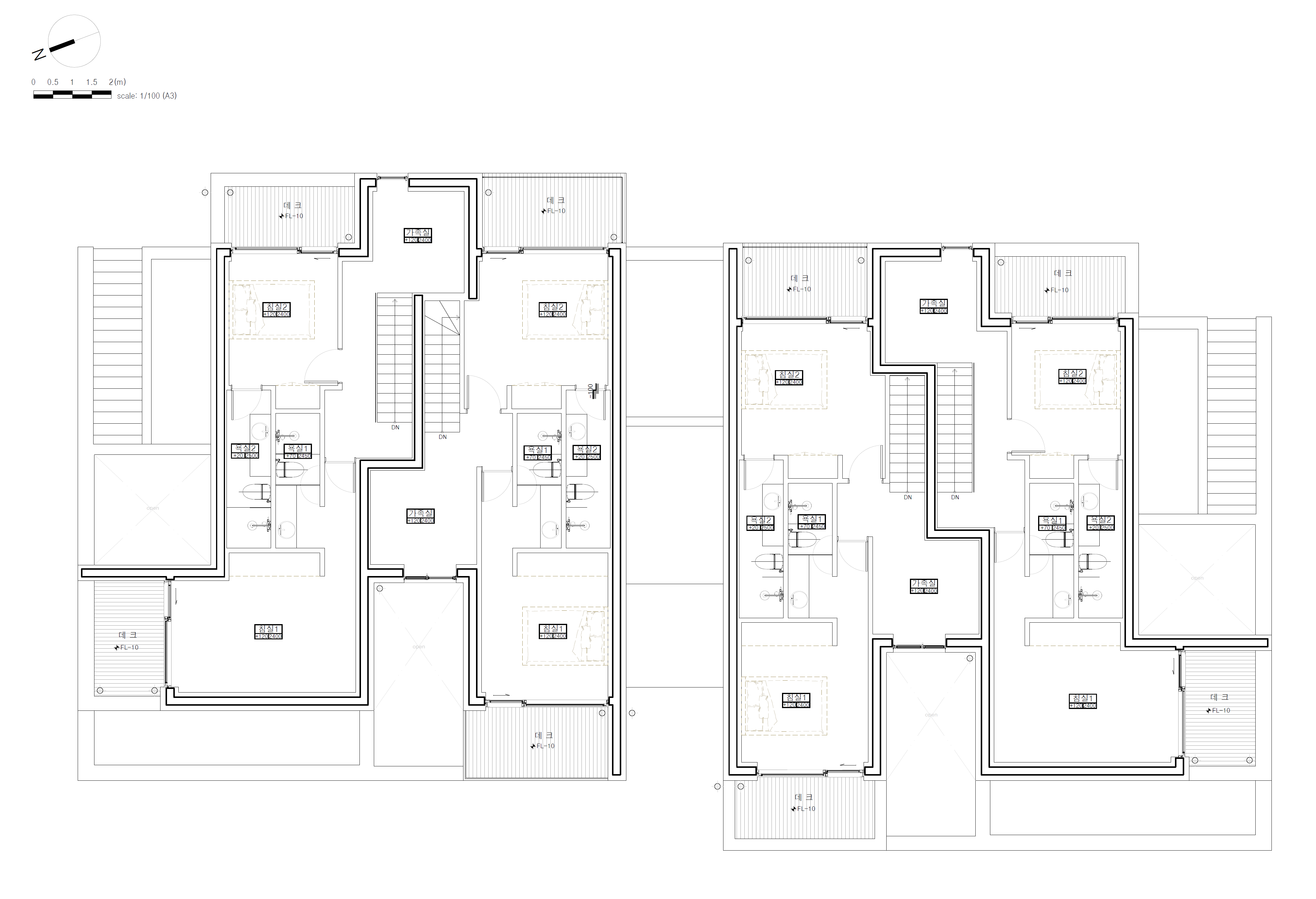
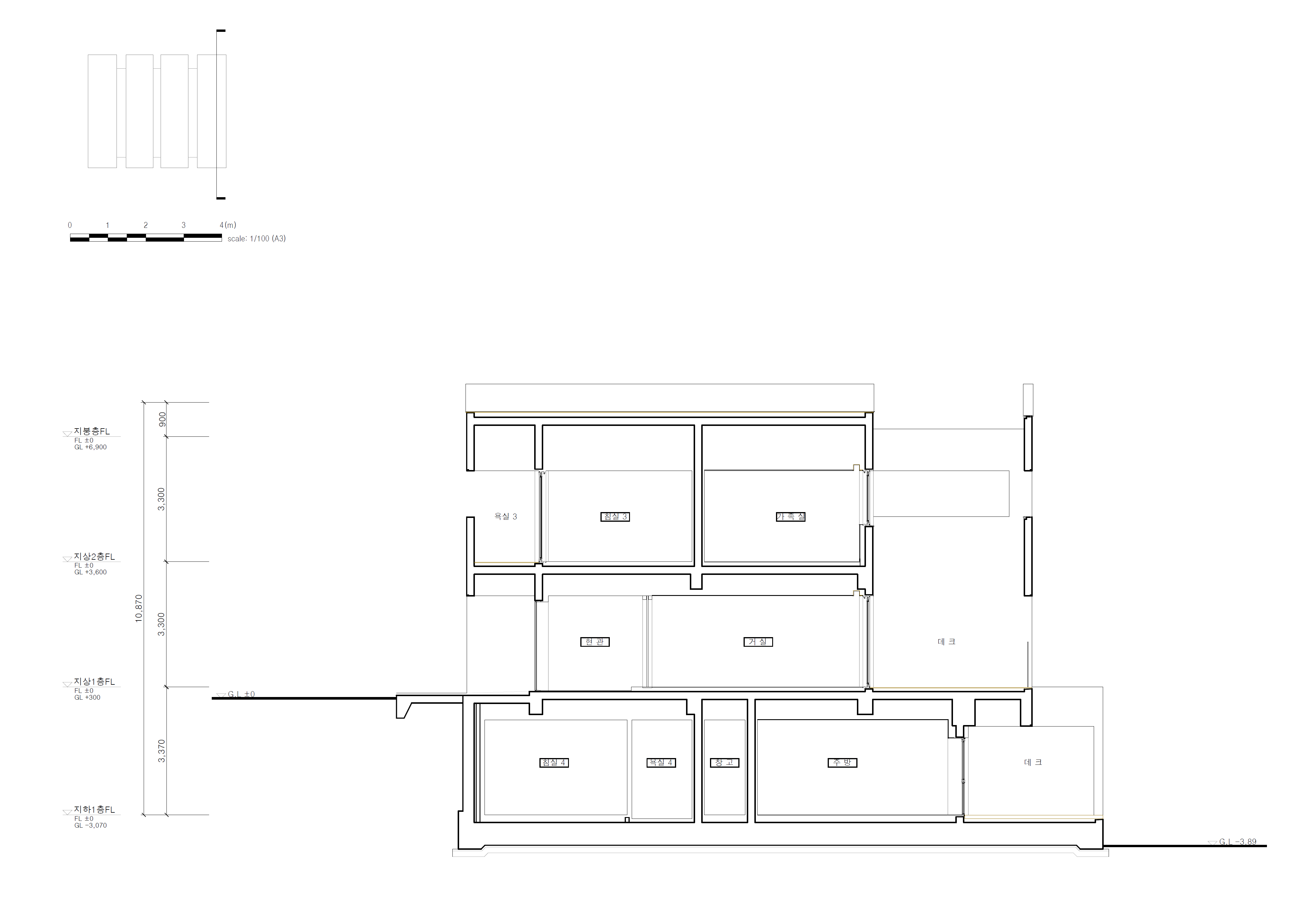
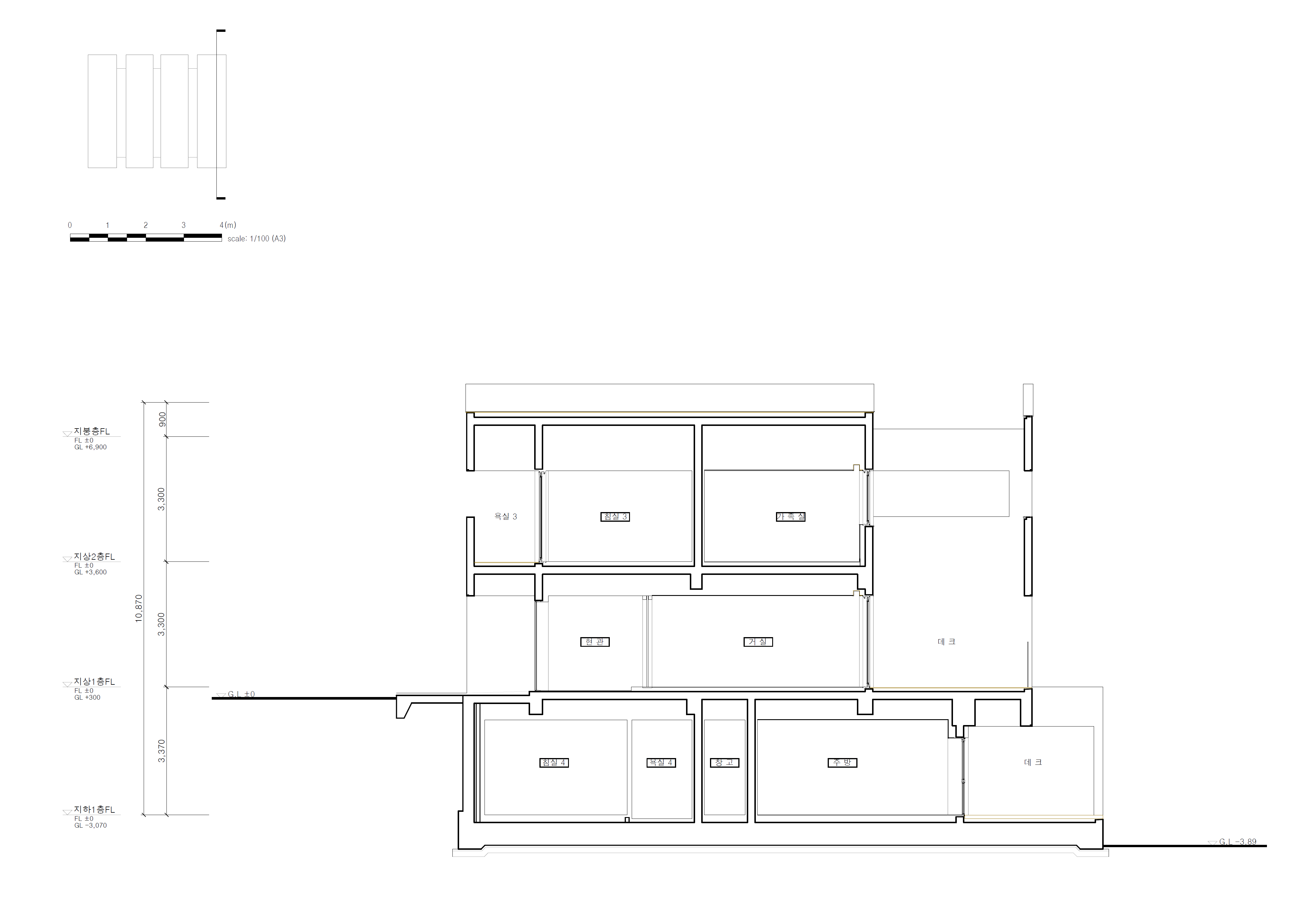
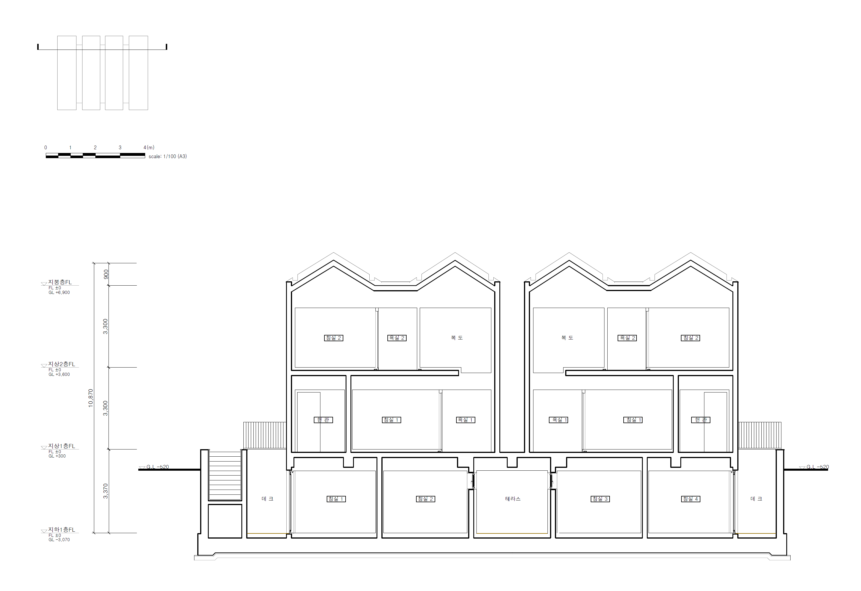
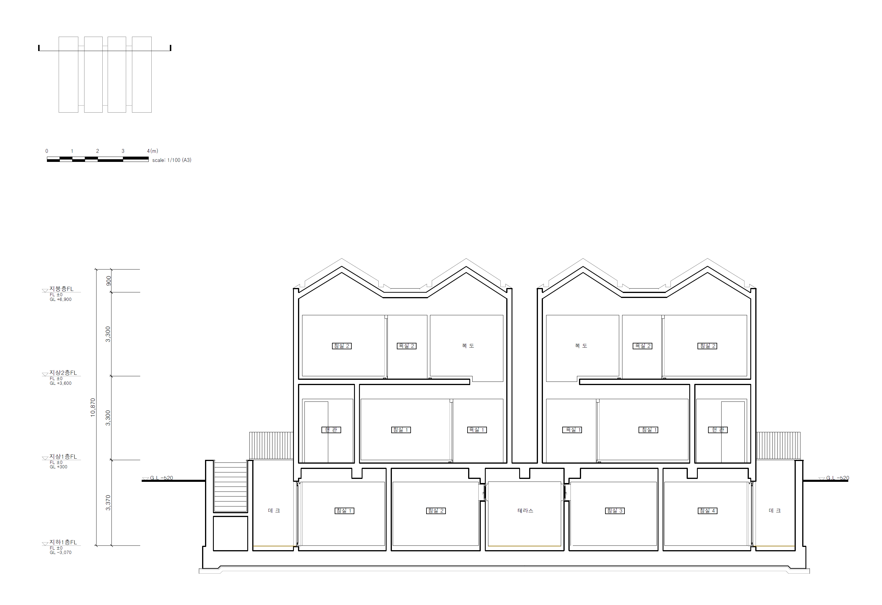
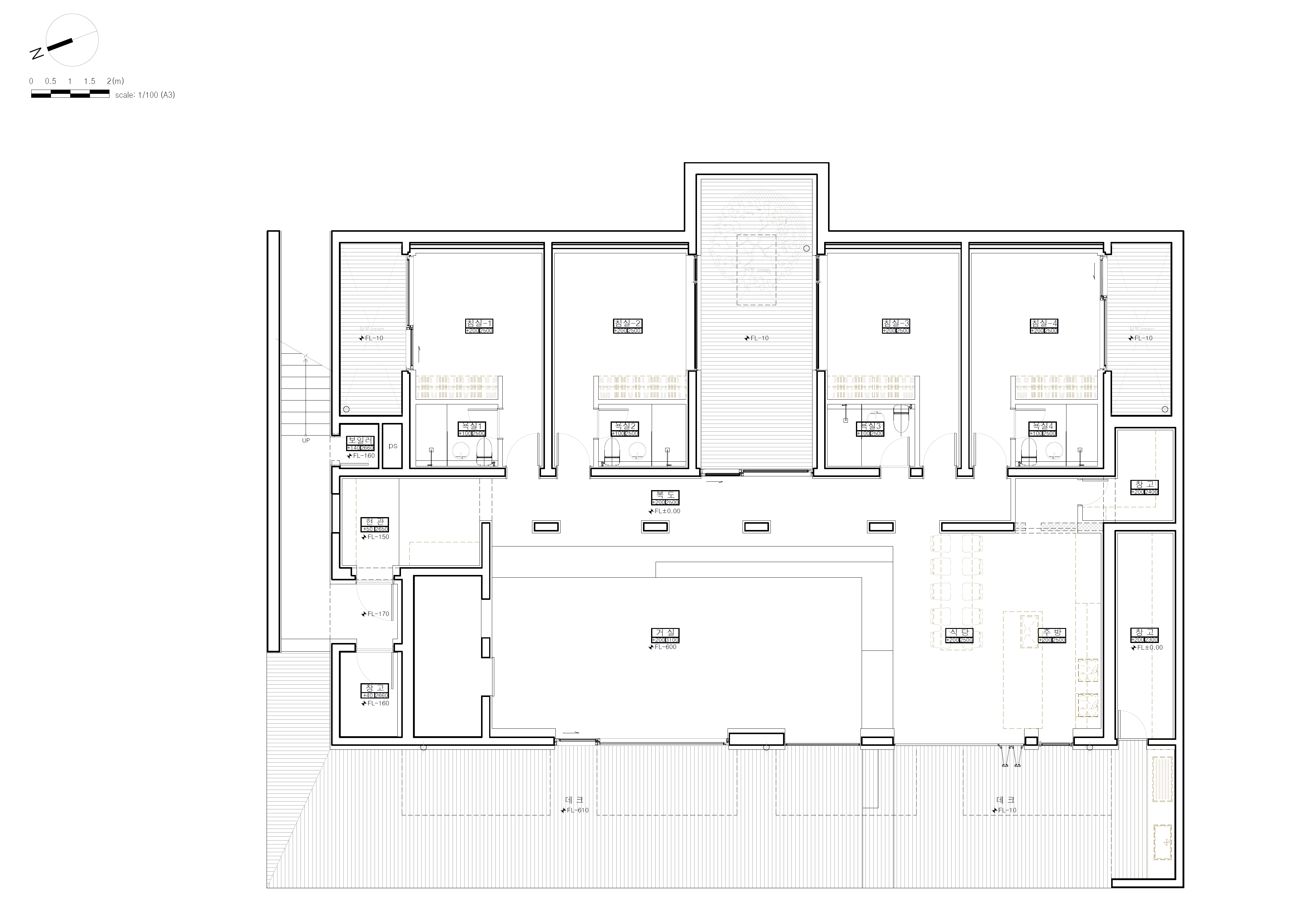
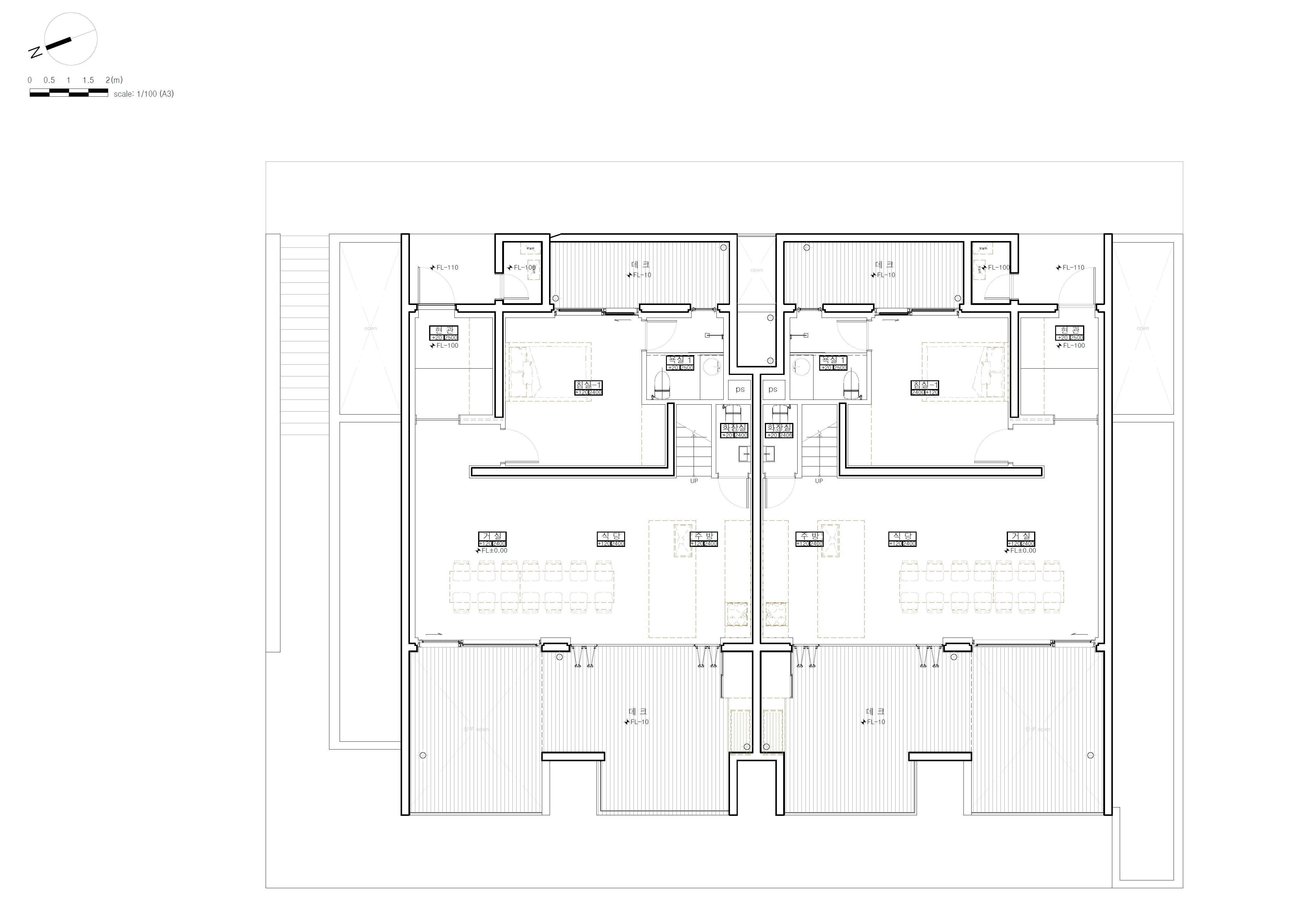
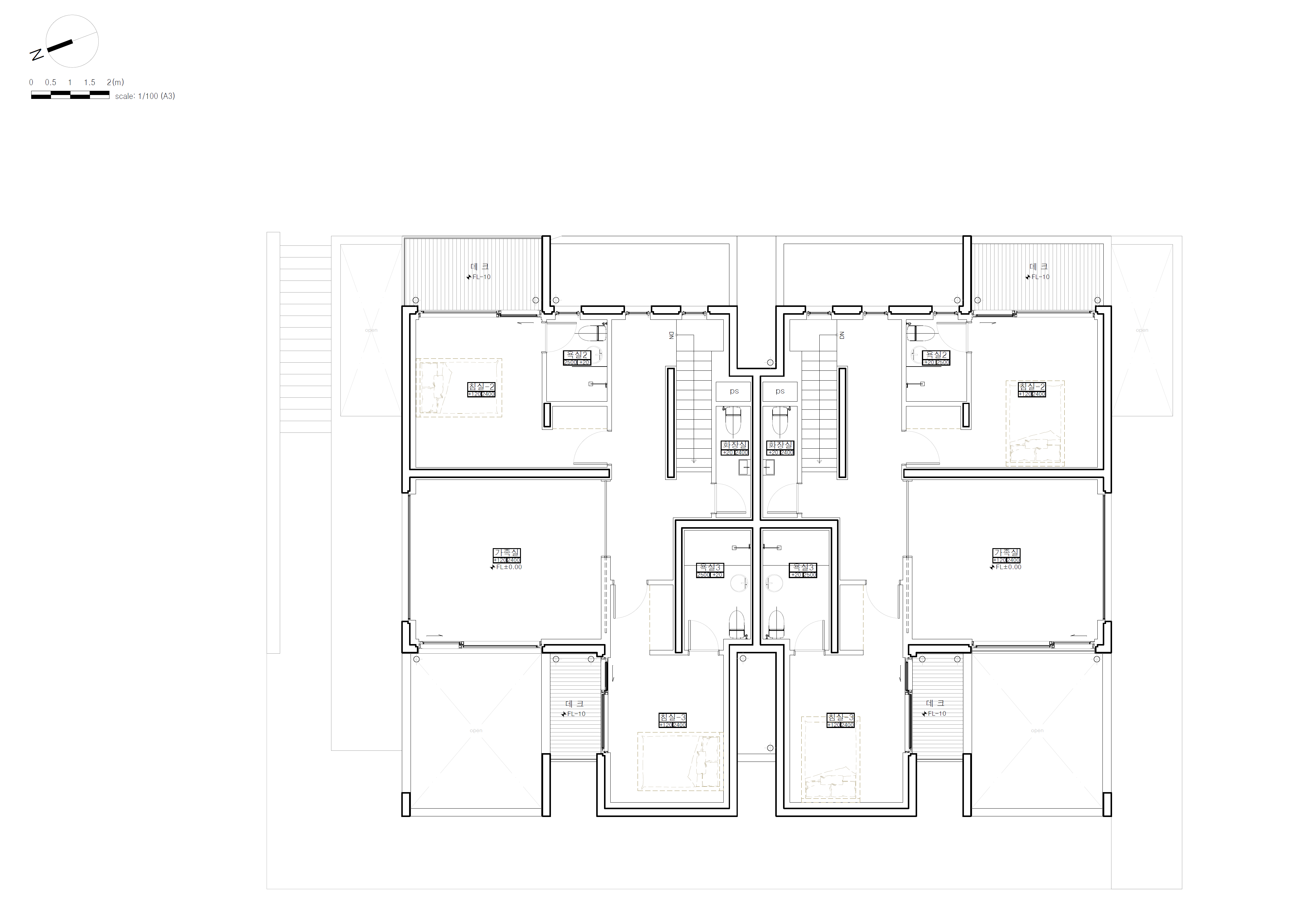
Since the surrounding of this site with a beautiful valley view is full of pensions and campers, Y House was designed as a space that keeps the natural landscape for true relaxation and secures the privacy of residents. The site has a height difference of about 3m from the road in the direction of the valley. Reflecting these characteristics of the site, Y House was designed to be open only in the direction of the valley. It looks like a closed two-story building from the road, but from the valley side, it looks like an open three-story building. This is also shown in the floor plan, where the private spaces such as the bedrooms are arranged on the roadside, and the public spaces such as the living room, dining room and barbecue terrace are arranged on the valley side. The landscape of the valley was accommodated, yet the gaze from the tourists of the valley was blocked. In addition, the main design keyword of Y House is ‘removing’. The wide window facing the valley is set-back into the interior of the mass, and the set-back space is used as a terrace. In this way, the exterior space in the form of removing the mass to the inside blocks the gazes from the outside of the building, and becomes a frame containing the landscape in the interior. The residents can see the entire natural landscape from the terrace and view the landscape in a large frame from the inside of the house. The keyword of removing was used throughout the house, and it provided gaps and spare spaces as well as spaces to comfortably enjoy nature even from the interior.
Y House is a place where one can get away from the stuffiness of the city or the typical space of apartments and feel the fresh air and nature and contain the refreshing and green natural landscape through the gaps throughout the building into a frame called a house to enjoy peace of mind.

양양 다가구주택은 D기업의 대표가 직원들을 위해 지은 집으로, 자연경관과 어우러진 공간에서 생활하며 휴식하는 곳이다. 건축가는 대지 앞에 펼쳐진 자연경관을 최대한 집을 위해, 대지의 고저차와 '덜어내기' 방법으로 경관과 아늑함을 담아낸 공간을 설계했다.
아름다운 계곡 경치를 지닌 이 대지는 주변에 즐비한 펜션들과 캠핑을 위해 찾아온 사람들이 많은 곳으로 양양 다가구주택은 진정한 휴식을 위한 자연경관과 거주자들의 사생활을 지켜주는 공간으로 설계됐다. 대지는 도로에서 계곡 방향으로 있는 약 3m 정도의 고저차가 있다. 이러한 대지의 특성이 반영되어 양양 다가구주택은 계곡 방면 부분으로만 열리도록 설계됐다. 도로 쪽에서는 닫혀있는 2층 건물처럼 보이지만 계곡 쪽에서는 개방된 3층짜리 건물로 보인다. 이는 평면에서도 드러나는데, 도로 방면으로는 침실 등 사적공간을 배치했고, 계곡 방면으로는 거실, 식당, 바비큐 테라스 등 공적공간이 배치되어 있다. 계곡의 경관은 수용하되, 계곡 관광객으로부터의 시선은 차단된 것이다. 또한, 양양 다가구주택의 주요 설계 키워드는 ‘덜어내기’다. 계곡을 향하는 넓은 창은 매스 안 쪽으로 세트백(set-back)되고, 세트백된 공간은 테라스로 이용된다. 이렇게, 매스를 안쪽으로 덜어내는 형태의 외부공간은 건물 밖의 시선은 차단하고, 내부에는 경관을 담는 프레임이 된다. 거주자들은 테라스에서는 자연경관 전체를 볼 수 있고, 집 안에서는 커다란 액자에 담겨있는 경관을 바라볼 수 있다. 덜어내는 키워드는 주택 곳곳에 사용되어, 틈과 여유를 주고 실내에서도 편하게 자연을 누릴 수 있는 공간들을 만들어낸다.
양양 다가구주택은 도시의 답답함이나 아파트의 전형적인 공간에서 벗어나 맑은 공기와 자연을 느낄 수 있는 곳이자, 건물 곳곳의 틈들을 통해 산뜻하고 파릇파릇한 자연경관을 집이라는 프레임 안에 담아내어 마음 속 안식을 즐길 수 있는 곳이다.






















Architects DANUpartners, AR-associates
Location Yangyang-gun, Gangwon-do, Republic of Korea
Site area 3,329.00㎡
Building area 532.74㎡
Gross floor area 1,389.37㎡
Height 8.50m
Building to land ratio 16.00%
Floor area ratio 25.48%
Construction period 2018. 05 - 2019. 01
Completion 2019. 01
Principal architect Wookeun Shim, Joohyoung Lee, Shinil Kang
Project architect Wookeun Shim, Joohyoung Lee, Shinil Kang
Design team Wookeun Shim, Joohyoung Lee, Shinil Kang, Dongwon Kim
Photographer Yousub Song
해당 프로젝트는 리빙즈, 디테일 02호에 게재되었습니다.
The project was published in LIVINGS, Detail 02
[BOOK] LIVINGS, Detail 리빙즈, 디테일 01호, 02호
단행본 발행 67개의 형태와 라이프스타일을 담은 주거공간, 국내외 "디테일한 주택 프로젝트"의 엮음
www.masilwide.com
'Architecture Project > Multifamily' 카테고리의 다른 글
| ELEVEN (0) | 2022.04.08 |
|---|---|
| 1+4 HOUSE (0) | 2022.04.07 |
| SAENGGAK OF SONGHAK-RI (0) | 2022.04.05 |
| RED HOUSE (0) | 2022.03.28 |
| BAN VILLA (0) | 2022.03.10 |
마실와이드 | 등록번호 : 서울, 아03630 | 등록일자 : 2015년 03월 11일 | 마실와이드 | 발행ㆍ편집인 : 김명규 | 청소년보호책임자 : 최지희 | 발행소 : 서울시 마포구 월드컵로8길 45-8 1층 | 발행일자 : 매일



