
'Yeonpungjae' is a detached house for those who needed space to raise large dogs in memory of all the people who ran and played when they were young. In the memory of the owner who lived in Hanok, the yard was reconstructed over time to establish the relationship between the natural environment around the site and the building.
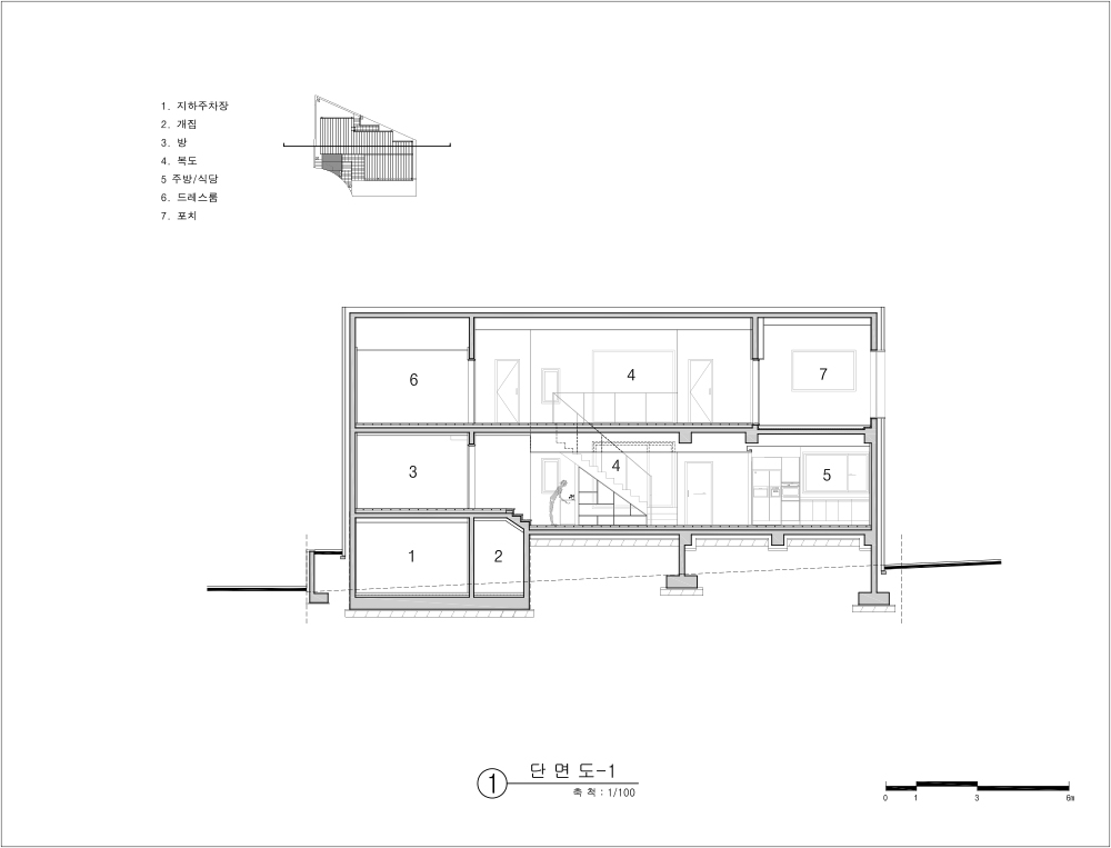
First, materials and shapes were determined by focusing on the surrounding natural environment context of the site. The landscape in the site was planned so that the natural green flow naturally leads to the house. Yeonpungjae, surrounded by Seunghaksan Mountain in the east and north, is also located in the innermost part of the home housing site development district. At the time of the plan, taking advantage of these locational advantages, an open core, which is a passageway through which flows into the center of the building, and separating public and private spaces from left to right. It is planned to create a yard with a medium that contains the surrounding natural environment, and to connect and expand indoor and outdoor spaces. The yard makes you attract nature to Yeonpungjae. It makes people, architecture, and nature live together as one. The inner and outer spaces are connected and expanded visually by always facing nature where the gaze from the inside to the outside is in contact. In the existing sloped topography, stairs were installed in the entrance space of the building to divide the hierarchy of the space, and evergreen shrubs were planted in the front yard in consideration of privacy infringement from the outside. The most attractive space is Porch, which is located in the main room and corridor on the second floor. This space adds to the depth of the connected thread and expands the inner and outer spaces as a neutral space that connects the interior and exterior nature.

‘연풍재’는 유년 시절 뛰놀던 전원을 추억하며 대형견을 기를 공간이 필요했던 이를 위한 단독주택이다. 한옥에 살았었던 건축주의 기억 속에 마당을 시간의 흐름 속에 재구성하여 대지 주변의 자연환경과 건물의 관계를 설정했다.
먼저, 대지가 갖는 주변 자연환경 컨텍스트에 집중하여 재료, 조형을 결정했다. 자연녹지의 흐름은 자연스럽게 집으로 연결되도록 대지 내 조경을 계획했다. 동쪽과 북쪽이 승학산으로 둘러싸인 연풍재는 가정택지개발지구에서도 가장 안쪽에 위치한다. 계획 당시, 이러한 장소적 이점을 활용하여 건물의 중앙에 흐름을 유입하는 통로 격인 개방된 코어를 배치하고, 좌우로 공적 공간과 사적 공간을 분리하는 방식을 택했다. 주변 자연환경을 담는 매개체로 마당을 조성하고, 실내·외 공간을 연결하고 확장할 수 있도록 계획했다. 마당은 연풍재에 자연을 끌어들이도록 만든다. 사람, 건축, 자연이 하나로 어울리며 살게 한다. 실내에서 외부를 바라보는 시선이 닿는 곳이 항상 자연을 향하도록 하여 내·외부공간은 연계되고 시지각적으로 확장된다. 기존 경사 지형은 건물의 진입공간에 계단을 설치하여, 공간의 위계를 나누고, 외부로부터의 프라이버시 침해를 고려하여 앞마당에 상록관목을 심었다. 가장 매력적인 공간은 2층 안방과 복도에 연결된 포치다. 이 공간은 실의 깊이감을 더하고, 실내와 외부의 자연을 연결해 주는 중성적인 성격의 공간으로서 내부공간과 외부공간의 확장을 이뤄준다.













Architect Atelier CIUM│건축사사무소 시움
Location 599-1, Gajeong-dong, Seo-gu, Incheon, Republic of Korea
Program House
Site area 263.3㎡
Building area 119.60㎡
Gross floor area 221.05㎡
Building scope B1, 2F
Building to land ratio 45.42%
Floor area ratio 70.96%
Design period 2017. 9 - 12
Construction period 2018. 3 - 7
Completion 2018. 7
Principal architect Jinho Kim
Project architect Junewoo Baek
Design team Shinwoo Kim, Minseok Kang
Structural engineer GWANGLIM Structure Engineering
Mechanical engineer JEONGIN MEC
Electrical engineer DAEKYUNG Electrical Design Office
Construction JUWANG Build
Client Seunggwang Yang
Photographer Jungmin Seok
해당 프로젝트는 건축문화 2022년 1월호(Vol. 488)에 게재되었습니다.
The project was published in the January, 2022 recent projects of the magazine(Vol. 488).
January 2022 : vol. 488
Contents : RECORDS NEW PROPOSAL FOR THE HOUSING PROBLEM IN SEOUL FOUND IN RURAL AREA 서울 주거 문제의 새로운 대안, 농촌에서 찾다 : NEWS / COMPETITION / BOOKS : SKETCH MY HOUSE ..
anc.masilwide.com
'Architecture Project > Single Family' 카테고리의 다른 글
| NONG HO 17 HOUSE (0) | 2022.04.13 |
|---|---|
| Country House Inpuente Iglesias (0) | 2022.04.12 |
| THE NANUM (0) | 2022.04.04 |
| PEACEFUL STREAMS (0) | 2022.04.01 |
| ROOM 36.5℃ (0) | 2022.03.31 |
마실와이드 | 등록번호 : 서울, 아03630 | 등록일자 : 2015년 03월 11일 | 마실와이드 | 발행ㆍ편집인 : 김명규 | 청소년보호책임자 : 최지희 | 발행소 : 서울시 마포구 월드컵로8길 45-8 1층 | 발행일자 : 매일



