
Haesoldang' is a simple detached house with a cozy yard with traditional emotions and is a new home for retired elderly couples built in Sejong City.
Based on the past experiences of understanding and contemplating while designing houses for a long time, the first thing to worry about was the attitude that traditional buildings had taken. The plan for Haesoldang began with the idea of a traditional building in which several houses overlap each other around the yard to form a single house. Basically, it has two yards, and it is set as an entrance yard and a courtyard, creating a calm landscape, packaging, and fence, and arranging an interior space considering the view and direction.
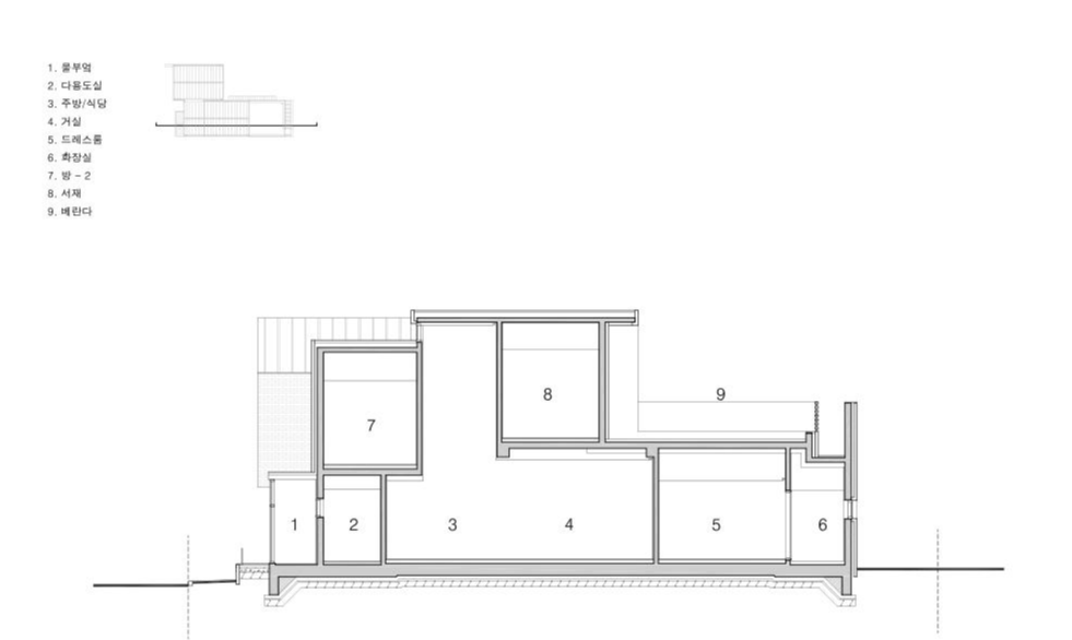
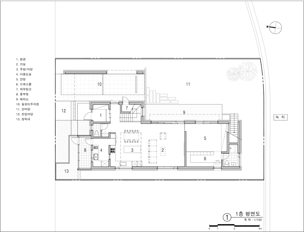
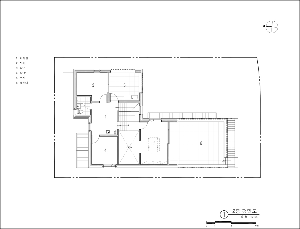
The outer space is introduced into the building in a borrowed scenery manner. The objects and textures of traditional code such as gansalmun, wildchang, hanji, and patterned wood also share the traditional concept of Haesoldang. Most of the houses in the Sejong City Housing Site Development District block are arranged adjacent to the road, and the yard is located deep inside the house. However, the access space directly entering the front door from the road is vulnerable to privacy and noise. As a solution to this part, Haesoldang takes advantage of the characteristics of a long rectangular land from north to south, separates the yard into two, and connects it through piloti. The wall of the roof tiles with a signboard of Haesoldang is a symbolic element of the entrance yard, and extends to the piloti space to naturally induce movement into the courtyard. The courtyard, which has traditional style of pear trees, glass, natural stones, and brick fences, becomes a cozy and expanded outer space in connection with the buffer green area adjacent to the south. The floor plan was also arranged by functionally zoning around the two yards and considering the view and direction first. Adjacent to the north entrance yard and the space of Jangdokdae, the front door, kitchen, multipurpose room, and water kitchen were arranged, and living room and main room were placed in the courtyard with good sunlight and beautiful view. For the client who enjoys reading, the study on the second floor also has a large veranda connected to the courtyard on the first floor.
The surrounding scenery from the veranda on the second floor with a plan is the highlight of this house. The two-story Porch space, which embodies a traditional pavilion, is a semi-internal semiexternal space where you can actively enjoy the feeling of the season and is connected to the courtyard on the first floor and urban and perceptual. The upper part of the kitchen/restaurant space, which is open up to the second floor, is a central space that organically integrates the interior space, and the ceiling created by the harmony of natural light of high-side windows and artificial light of indirect lighting is the point of the interior space chosen by the architect.
The wonderful ridges around the building naturally became the gable roofs of the building, and the form of traditional architecture in which several houses gathered to create a big picture of the whole became an inspiration for mass planning. The physical properties of red bricks that minimize unnecessary decorations and contain traces of time will record the history of future families. The interior concept, directed by gansalmun, wild window, hanji, patterned wood, and hanji lighting, creates a comfortable and cozy interior space atmosphere while encountering the exterior yard. The internal photos taken with minimal internal lighting express the traditional 1st FLOOR PLAN feeling of these materials.

‘해솔당’은 세종시에 세워진 전통적인 정서를 담아내면서 아늑한 마당을 가진 소박한 단독주택으로, 은퇴한 노부부를 위한 새로운 보금자리다.
오랜 시간 주택설계를 해오면서 이해하고 고민했던 과거 경험을 바탕으로 전통건물들이 취해왔던 자세에 대한 고민이 먼저였다. 해솔당은 여러 개의 채가 마당을 중심으로 서로 중첩되어 하나의 집을 이루는 전통건물의 방식에 착안하여 계획이 시작됐다. 기본적으로는 두 마당을 지니며, 이를 진입 마당과 안마당으로 설정하여 차분한 조경, 포장, 담장을 연출하고 조망, 향을 고려한 내부 공간을 배치했다. 외부공간은 차경 방식으로 건물 내부로 유입시킨다.
간살문, 들창, 한지, 무늬목 같은 전통 코드의 오브제와 텍스처 역시 해솔당의 전통적 개념의 결을 같이 한다. 세종시 택지개발지구 블록의 대다수 주택은 도로와 인접하게 배치되어 마당이 집 안쪽 깊숙이 위치한다. 하지만 도로에서 바로 현관으로 진입하는 공간은 프라이버시와 소음에 취약하다. 해솔당은 이러한 부분에 대한 해결책으로 남북으로 긴 장방형 대지의 특성을 살려 마당을 두 개로 분리하고 필로티를 통해 연결한다. 해솔당 현판이 설치된 기왓장 담벼락은 진입마당의 상징적인 요소이며, 필로티 공간으로 연장되어 자연스럽게 안마당으로 움직임을 유도한다. 배롱나무와 글라스류, 자연석, 벽돌 담장을 전통의 방식으로 연출한 안마당은 남쪽에 인접한 완충녹지와 연계하여 아늑하고 확장된 외부공간이 된다. 평면계획도 역시 2개의 마당을 중심으로 기능적으로 조닝을 하고 조망과 향을 우선 고려하여 배치하였다. 북쪽의 진입마당과 장독대 공간에 인접하여 현관, 주방, 다용도실, 물부엌을 배치하고 볕이 좋고 조망이 수려한 안마당에는 거실과 안방을 두었다. 독서가 취미인 건축주를 위하여 2층의 서재 역시 1층 안마당과 연결되어 있는 넓은 베란다를 두었다. 평상이 있는 2층 베란다에서의 주변 풍광은 이 집의 백미다. 전통 누각을 형상화한 2층 포치 공간은 계절감을 적극적으로 향유할 수 있는 반 내부적 반 외부적 공간으로서 1층 안마당과도 시·지각적으로 연결된다. 2층까지 열린 주방 및 식당 공간의 상부는 내부공간을 유기적으로 통합하는 중심공간이며, 고측창의 자연광과 간접조명인 인공광의 조화로 연출한 천장은 건축가가 꼽는 내부공간의 포인트다.
건물 주변의 멋진 산등성이들은 자연스럽게 건물의 형태가 지붕이 되었고, 여러 채가 모여 전체의 큰 그림을 만드는 전통건축의 형태는 매스 계획의 영감이 되었다. 불필요한 장식을 최소화하고 세월의 흔적을 곱게 담을 수 있는 적벽돌의 물성은 후대 가족의 역사를 기록할 것이다. 간살문, 들창, 한지, 무늬목, 한지조명 등으로 연출한 인테리어 콘셉트는 외부 마당과 조우하면서 편안하고 아늑한 내부 공간의 분위기를 만든다. 내부 조명을 최소화하고 찍은 내부 사진들은 이러한 소재가 주는 전통적인 느낌 그대로를 표현하여 보여준다.















Architect Atelier CIUM│건축사사무소 시움
Location 891, Dodam-dong, Sejong-si, Republic of Korea
Program House
Site area 366.8㎡
Building area 146.52㎡
Gross floor area 191.92㎡
Building scope 2F
Building to land ratio 39.94%
Floor area ratio 52.34%
Design period 2020. 8 - 12
Construction period 2021. 3 - 8
Completion 2021. 9
Principal architect Jinho Kim
Project architect Junewoo Baek
Design team Shinwoo Kim, Minseok Kang
Structural engineer BASE Structural Consultants
Mechanical engineer / Electrical engineer HANBUK Technology team
Construction JUWANG Build
Client Yangsoon Kim, Sungja Kim
Photographer Jinbo Choi
해당 프로젝트는 건축문화 2022년 1월호(Vol. 488)에 게재되었습니다.
The project was published in the January, 2022 recent projects of the magazine(Vol. 488).
January 2022 : vol. 488
Contents : RECORDS NEW PROPOSAL FOR THE HOUSING PROBLEM IN SEOUL FOUND IN RURAL AREA 서울 주거 문제의 새로운 대안, 농촌에서 찾다 : NEWS / COMPETITION / BOOKS : SKETCH MY HOUSE ..
anc.masilwide.com
'Architecture Project > Single Family' 카테고리의 다른 글
| PEACEFUL STREAMS (0) | 2022.04.01 |
|---|---|
| ROOM 36.5℃ (0) | 2022.03.31 |
| SANGDAE-DONG HOUSE (0) | 2022.03.25 |
| THE FRIYAH (0) | 2022.03.25 |
| GANGJIN SAGAK (0) | 2022.03.24 |
마실와이드 | 등록번호 : 서울, 아03630 | 등록일자 : 2015년 03월 11일 | 마실와이드 | 발행ㆍ편집인 : 김명규 | 청소년보호책임자 : 최지희 | 발행소 : 서울시 마포구 월드컵로8길 45-8 1층 | 발행일자 : 매일



