
The Sangdae-Dong house in Yuseong-gu, Daejeon, is located in a new detached housing complex with a small garden in the west. The parents and children who lived in the apartment, respectively, merged into this house to form a three-generation family. The client wanted to maintain some of the existing generation-independent life and to do so, the entire space was arranged by continuing meticulous discussions on vertical division and connection.
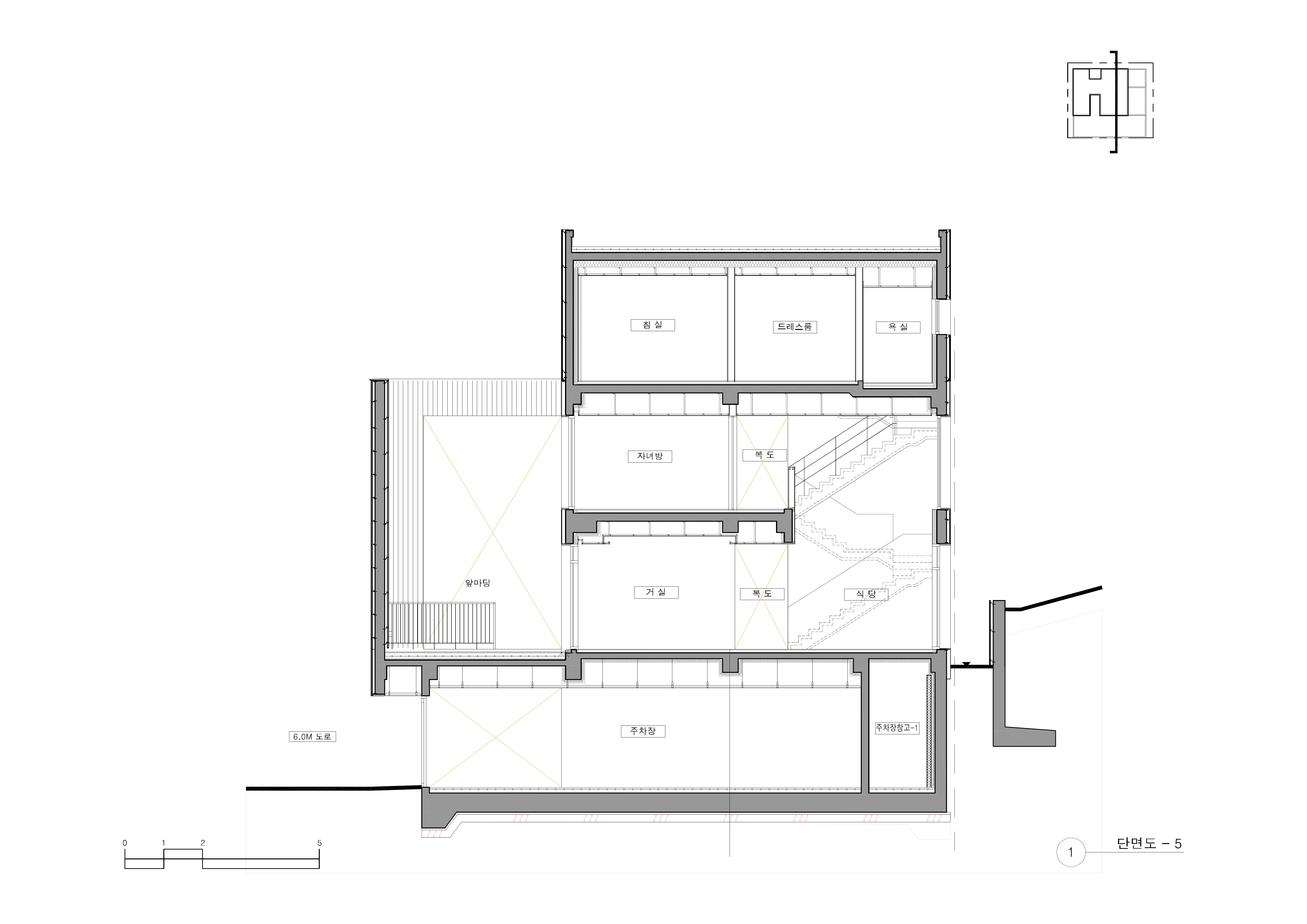
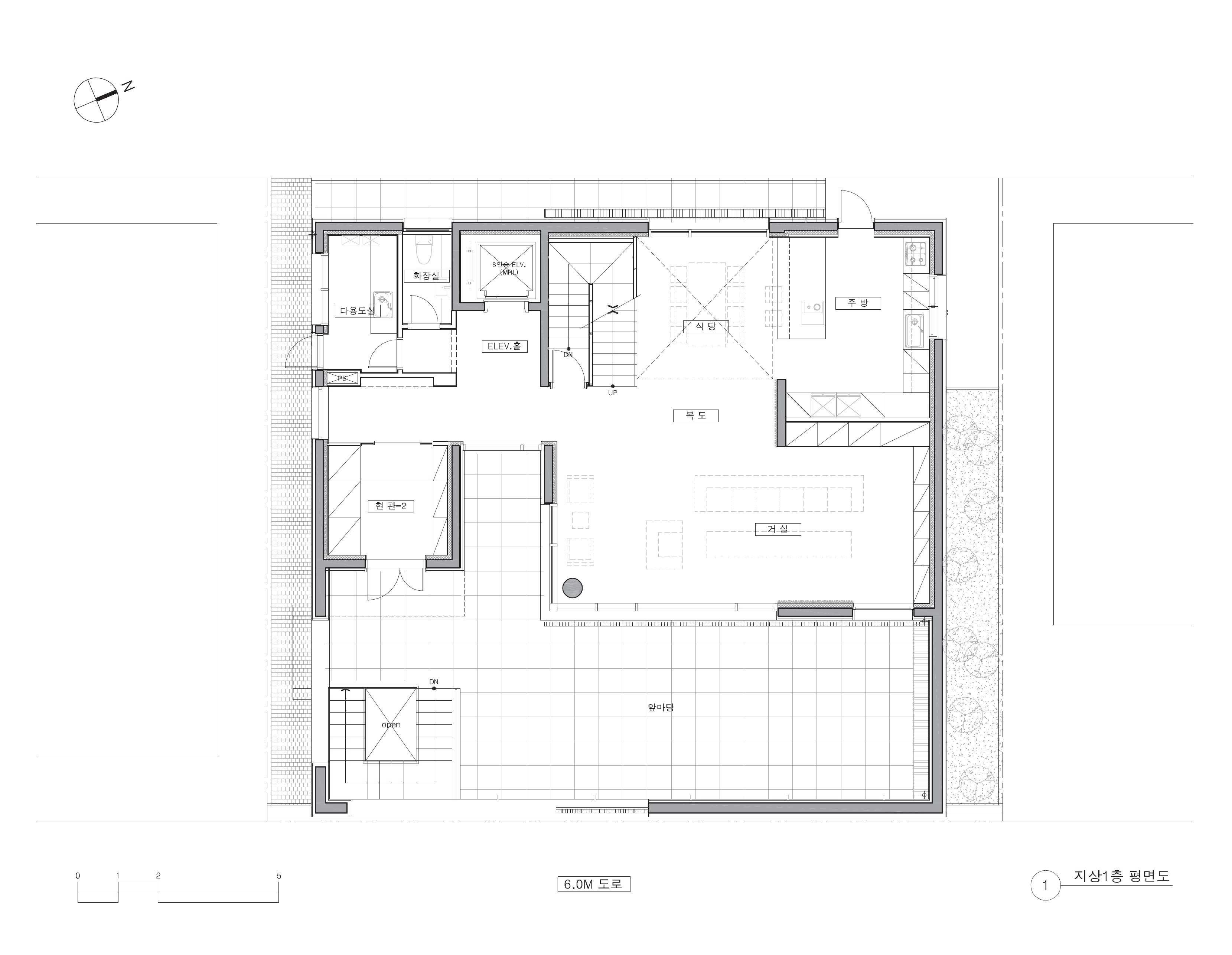
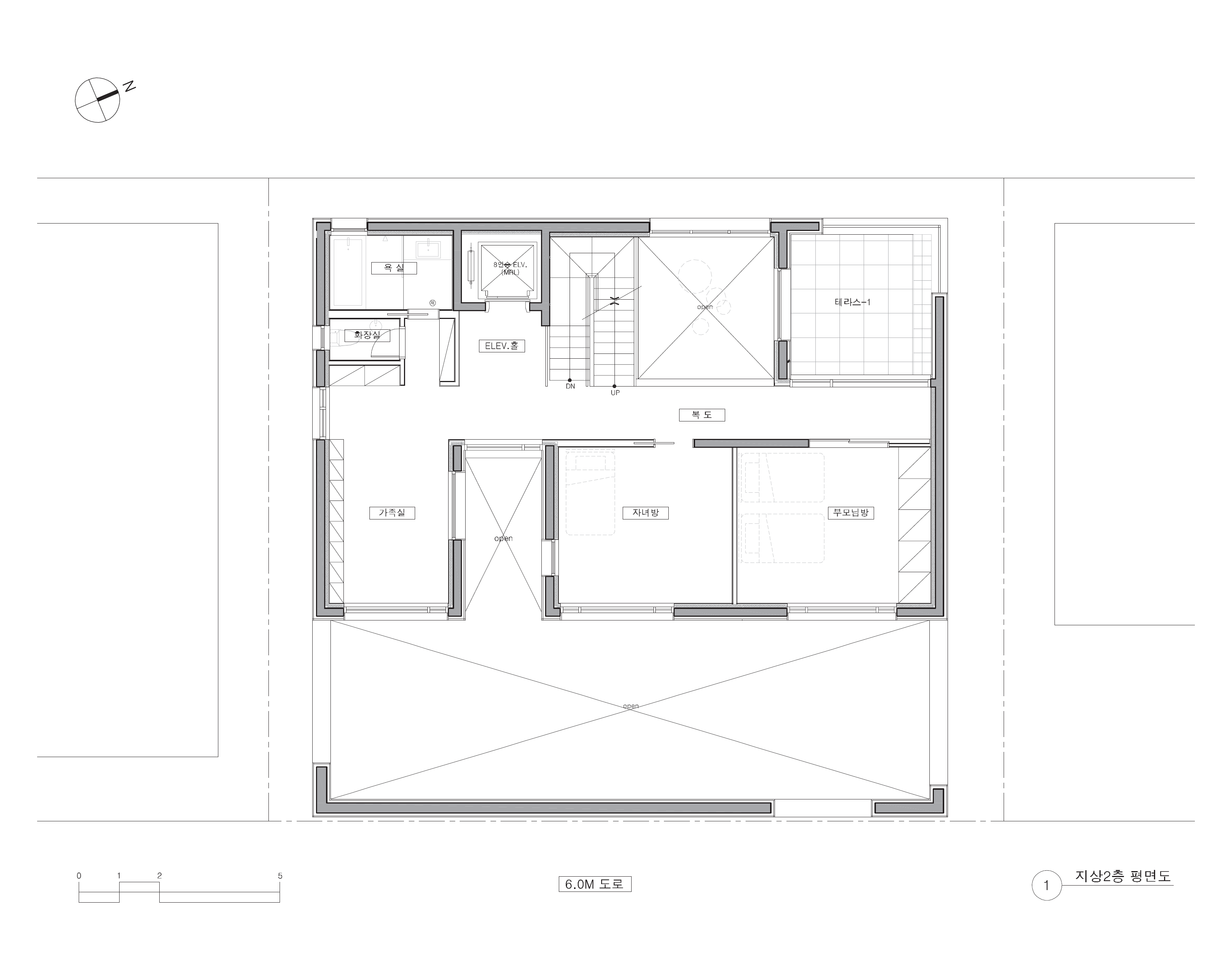
When you enter the main gate on the B1 floor, there is a parking lot and entrance, and when you enter inside, there is a guest room, hobby room, stairs and elevator. If you go up to the first floor through the external stairs, there is a yard and another entrance. This optional use of the two front doors provides flexibility in responding to the differences in time differences. The living room and kitchen on the 1st floor, facing the front yard, are where the family usually stays together, and the restaurant where the upper part is open with the stairs attracts attention from the upper and lower floors. On the 2nd floor, there is a bedroom and playground for grandparents and children, and on the 3rd floor, there is a bedroom and study for parents. The rooms on each floor share life by looking at each other through the courtyard, terrace and indoor open space. The wooden stone house has various types of yards on every four floors. The wide gate on the B1 floor is seen inside and out, and the outside space in front of the entrance becomes a small yard that communicates with the village road. The 1st floor, which has the meaning of an extended living room, matches the floor level with the living room and is finished with stone, and is surrounded by fences to protect privacy with neighbors, so you can stay in the outside space more freely. In addition, in front of the grandparents' bedroom on the 2nd floor, there is a cozy terrace yard facing the forest of the back mountain. Between the two spaces, a front window and a wide sliding door are installed, so you can experience the bedroom, the yard, and the forest at the same time. Finally, from the spacious terrace in front of the bedroom on the 3rd floor, you can see the distant city over the fence and the terrace space on the 2nd floor. Between the interior space of the house and the exterior environment is a wall-enclosed yard composed of openings of various sizes.
Therefore, residents see the outside landscape contained within the yard landscape. The small courtyard between the room and the room and the wall facing the vertical opening space inside are also provided with windows, and each room looks at each other through each other's windows. Although it is a detached house located in a square planned housing site, you can enjoy three-dimensional intersecting gazes and various landscapes through overlapping windows.

대전 유성구의 하늘마당집은 작은 동산을 서쪽에 끼고 자리 잡은 신규 단독주택 단지에 위치한다. 아파트에서 각각 생활하던 부모님과 자녀세대는 이 주택으로 합가하여 3대 가정을 이루게 되었다. 건축주는 기존의 세대간 독립적 생활을 어느 정도 유지하면서 적절히 연결되기를 원했고, 이를 위해 수직적 구분과 연계에 대한 세심한 논의를 이어가며 전체 공간을 배치했다.
지하층에 있는 대문을 들어서면 주차장과 현관이 있고, 내부로 들어가면 게스트룸, 취미실과 계단 및 엘리베이터가 있다. 외부계단을 통해 1층으로 올라가면 마당과 또 하나의 현관이 있다. 이처럼 두 개의 현관을 선택적으로 사용함으로써 시간대별 생활의 차이에 유연하게 대응하도록 한다. 전면 마당과 면하는 1층 거실과 주방은 가족이 주로 함께하는 곳이고, 계단과 함께 상부가 오픈된 식당으로는 위아래층의 시선이 서로 모인다. 2층에는 조부모와 아이의 침실과 놀이공간이 있고, 3층에는 부모의 침실과 서재가 있다. 각 층의 실들은 마당과 테라스, 실내의 열린 공간을 통해 서로를 바라보며 생활을 공유한다. 하늘마당집에는 4개의 층마다 다양한 종류의 마당이 있다. 지하층의 넓은 대문은 내외부가 투시되어 현관 앞 외부공간은 마을길과 소통하는 작은 마당이 된다. 확장된 거실로서의 의미를 갖는 1층 마당은 거실과 바닥레벨을 맞고 석재로 바닥면을 마감됐으며, 이웃과의 프라이버시 보호를 위한 담장으로 둘러싸여 있어 더 자유롭게 외부공간에 머물 수 있다. 또한, 2층 조부모님 침실 앞에는 뒷산의 숲과 면하는 아늑한 테라스 마당이 있는데, 두 공간 사이는 전면 유리창과 넓게 열리는 슬라이딩 도어가 설치되어 침실과 마당, 그리고 숲을 동시에 체감할 수 있다. 마지막으로 3층 침실 앞의 넓은 테라스에서는 담장 너머의 먼 도시풍경과 2층 테라스 공간을 바라볼 수도 있다.
주택의 실내공간과 외부 환경 사이에는 다양한 크기의 개구부로 구성된 벽으로 감싸진 마당이 있다. 따라서 거주자들은 마당 풍경 안에 담긴 외부 풍경을 보게 된다. 방과 방 사이의 작은 중정과 내부의 수직 오프닝 공간에 면하는 벽에도 창을 내어 각 실에서는 서로의 창을 통해 서로를 바라본다. 네모난 계획택지 안에 자리하는 단독주택이지만 겹쳐지는 창들을 통해 입체적으로 교차하는 시선과 다양한 풍경을 누릴 수 있다.















Architects AIM architects
Location Sangdaeseo-ro, Yuseong-gu, Daejeon, Republic of Korea
Site area 293.00㎡
Building area 137.87㎡
Gross floor area 489.69㎡
Building scope B1, 3F
Building to land ratio 47.05%
Floor area ratio 98.37%
Construction period 2018. 06 - 2019. 08
Completion 2019. 08
Principal architect Jihyeon Nam, Geunpoong Lim
Project architect Jihyeon Nam, Geunpoong Lim
Design team Hyeseong Lee, Dongo Suh
Structural engineer GWANGRIM
Mechanical engineer JINHWA ENC
Electrical engineer JINHWA ENC
Photographer Changmook Kim
해당 프로젝트는 리빙즈, 디테일 01호에 게재되었습니다.
The project was published in LIVINGS, Detail 01
[BOOK] LIVINGS, Detail 리빙즈, 디테일 01호, 02호
단행본 발행 67개의 형태와 라이프스타일을 담은 주거공간, 국내외 "디테일한 주택 프로젝트"의 엮음
www.masilwide.com
'Architecture Project > Single Family' 카테고리의 다른 글
| ROOM 36.5℃ (0) | 2022.03.31 |
|---|---|
| HAESOLDANG (0) | 2022.03.30 |
| THE FRIYAH (0) | 2022.03.25 |
| GANGJIN SAGAK (0) | 2022.03.24 |
| DAOLJAE (0) | 2022.03.24 |
마실와이드 | 등록번호 : 서울, 아03630 | 등록일자 : 2015년 03월 11일 | 마실와이드 | 발행ㆍ편집인 : 김명규 | 청소년보호책임자 : 최지희 | 발행소 : 서울시 마포구 월드컵로8길 45-8 1층 | 발행일자 : 매일



