
“What a strange-looking building,” comments the elderly lady next door.
Though it is a simple rectangular house, it must have looked strange in her eyes. Other than the bold exposure of wood, there is nothing special in its form. Some passers-by asked if we were building a hanok, and some asked if it was a cafe or an office. The house that so many were curious about was completed as a space that announces a new lifestyle.
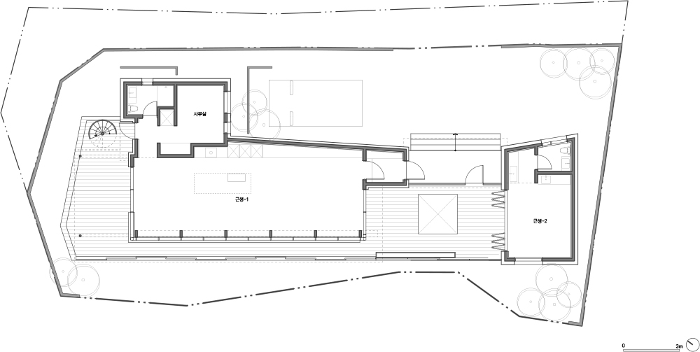
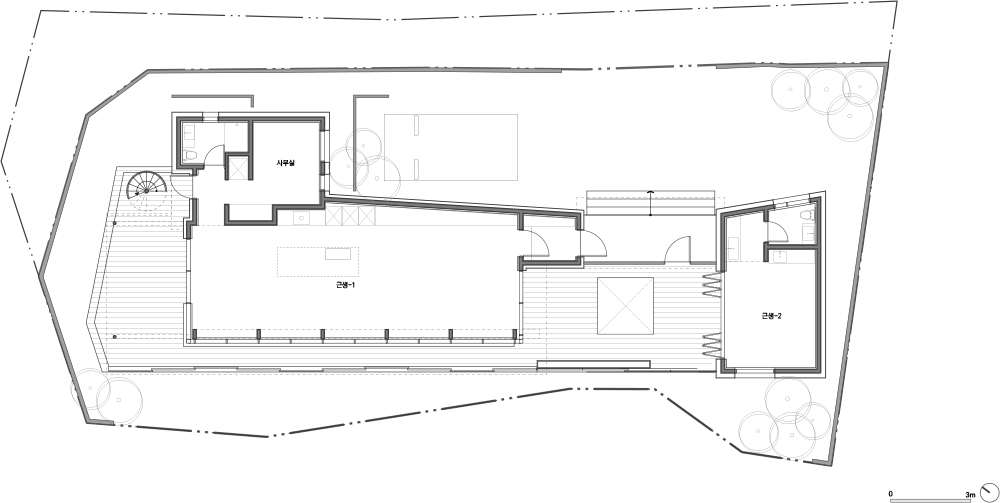
One of the mistakes made by people who dream of leaving their apartments behind for a rural life is choosing an unnatural site surrounded by a retaining wall. When you construct an embankment and make the sloping land flat and straight for the sake of a large yard, neither nature nor a village can exist. Even if there was a yard, it would be no different from ‘life in an urban apartment’. The site of ‘The FriYah’ is long and thin, and the shape of the ground is uneven. Nevertheless, the yard space facing the surrounding houses and the wonderful view of the Namhangang River does more than make amends for the shortcomings of the land.
The view of the riverside was considered top priority so that the characteristics of the long and thin site could be revealed. Unlike a functional space such as an apartment, dividing the long space with in-between space resulted in a straight house with 9 rooms. The two-story high open living room, an ostentatious space, was not planned from the start. Rather, it was designed as a single storey in consideration of usability and the plan was to install a viewing deck and bathtub on the roof of the second floor to enjoy the scenery more dramatically. The annex, which became a small but expandable space through division of space, is also a shared space where the inhabitants can spend time with their dog or gather together and share their thoughts. Thanks to the glulam pillars and beams that are exposed, it became an extroverted house, the exact opposite of the introverted houses we have been designing.
The wooden houses brought over from other countries have no exposed wood and even if they do, they are undersized and appear to be incomplete. The core of this house is the glulam columns and beams made of domestic larch. Reminiscent of the traditional custom of four trigrams, the opinion of the contractor to assemble a single 13m-long beam at once was reflected, making it possible to complete the skeleton of the house in less than half a day. Instead of using complicated fittings or ironwork, one long screw nail was sufficient. It is a simple and clear construction method. The thin, wide glulam columns and the flat beams enhance the modern sense of wood, and the rhythmically arranged rafter beams enhance the structure of the space.
To the neighborhood residents who witnessed the house being completed through a process different from an ordinary concrete structure, it became a strange and unusual house.

"참 별나게도 짓소~" 옆집 할머니가 한마디 던지고 간다. 그저 단순한 직사각형 집인데 할머니의 눈에는 이상하게 보였는가 보다. 다른 점이 있다면 목재를 과감하게 노출한 것 말고는 형태적으로 특이한 것도 없다. 지나가는 사람들이 한옥을 짓느냐고 묻기도 했고, 카페냐, 사무실이냐 묻기도 했다. 모두가 정체를 궁금해하던 집은 새로운 라이프스타일을 알리는 공간으로 완성되었다.
아파트를 버리고 전원을 꿈꾸는 사람들이 저지르는 실수 중의 하나는 옹벽이 둘러싼 자연스럽지 못한 대지를 선택하는 일이다. 넓은 마당을 갖고자 축대를 쌓고 경사진 땅을 평평하고 반듯하게 만드는 것에는 자연도, 마을도 있을 수 없다. 마당이 있다고 한들 ‘도시 아파트의 삶’과 다를 바 없다. ‘The FriYah’의 대지는 위아래로 얇고 긴 데다 땅 모양도 지글지글하다. 그럼에도 주변 집들과 얼굴을 맞댄 마당 공간과 남한강으로 펼쳐지는 멋진 조망은 땅의 단점을 상쇄하고도 남는다.
얇고 긴 대지의 특징이 그대로 드러날 수 있도록 강변 조망을 최우선 고려했다. 아파트처럼 기능적인 주택과는 달리 긴 공간을 간(間)으로 나누니 9칸 입면의 일자 집이 되었다. 2층 높이의 오픈 거실과 같은 과시적인 공간은 처음부터 고려되지 않았다. 오히려 사용성을 고려해 단층으로 구성하고 2층 옥상에 조망 데크와 욕조를 설치하여 드라마틱한 경관을 더욱 극적으로 즐기도록 하였다. 채 나눔을 통해 작지만, 확장성이 있는 공간이 된 별채는 강아지와 함께할 수도, 함께 모여 생각을 나누는 공유공간이기도 하다. 존재감을 드러낸 글루램 기둥과 보 덕에 그동안 다루어 왔던 내향적 주택과 정반대로 외향적인 집(Extrovert House)이 되도록 했다.
외국에서 들어온 목조주택에는 드러난 나무도 없고, 있다 한들 왜소하여 어딘지 생기다 만 듯하다. 이 집의 핵심은 국산 낙엽송으로 만든 글루램 기둥과 보(Beam)이다. 전통 사괘 맞춤을 연상시키듯, 13m 길이의 단일 보를 한 번에 조립하자는 시공사의 의견을 반영한 결과 반나절도 안 돼 집의 골격을 완성할 수 있었다. 복잡한 맞춤이나 철물을 사용하는 대신 긴 스크류 못 하나로 충분했다. 간단하고 명쾌한 구축법이다. 얇고 넓은 글루램 기둥과 납작한 보는 목재가 지닌 현대적 감각을 더욱 돋보이게 하였고 리듬감 있게 배치된 서까래 보는 공간의 짜임새를 높여준다. 보통의 콘크리트와는 다른 과정을 거쳐 집이 완성되는 모습을 본 동네 사람들에게는 그저 신기하고 별난 집이 된 것이다.













Architects IDS | 건축사사무소 아이디에스
Location Gaegun-myeon, Yangpyeong-gun, Gyeonggi-do, Republic of Korea
Program Neighborhood living facilities
Site area 484.00㎡
Building area 130.09㎡
Gross floor area 147.10㎡
Building scope 2F
Building to land ratio 32.44%
Floor area ratio 36.68%
Design period 2020. 1 - 6
Construction period 2020. 6 - 2021.4
Completion 2021. 9
Principal architect Dohyung Lee, Kicheol Bae
Design team Sunghyun Yoon, Sungha Kim, Minsu Myeong
Structural engineer ChangMinWoo
Construction Kyungmin
Photographer Youngchae Park
해당 프로젝트는 건축문화 2022년 1월호(Vol. 488)에 게재되었습니다.
The project was published in the January, 2022 recent projects of the magazine(Vol. 488).
January 2022 : vol. 488
Contents : RECORDS NEW PROPOSAL FOR THE HOUSING PROBLEM IN SEOUL FOUND IN RURAL AREA 서울 주거 문제의 새로운 대안, 농촌에서 찾다 : NEWS / COMPETITION / BOOKS : SKETCH MY HOUSE ..
anc.masilwide.com
'Architecture Project > Single Family' 카테고리의 다른 글
| HAESOLDANG (0) | 2022.03.30 |
|---|---|
| SANGDAE-DONG HOUSE (0) | 2022.03.25 |
| GANGJIN SAGAK (0) | 2022.03.24 |
| DAOLJAE (0) | 2022.03.24 |
| SUNSET HOUSE (0) | 2022.03.23 |
마실와이드 | 등록번호 : 서울, 아03630 | 등록일자 : 2015년 03월 11일 | 마실와이드 | 발행ㆍ편집인 : 김명규 | 청소년보호책임자 : 최지희 | 발행소 : 서울시 마포구 월드컵로8길 45-8 1층 | 발행일자 : 매일



