
The Daoljae is a house built by husband and wife live with their parents, where they lived in Yeonhui-dong, Seoul. The east-facing house has a four-story house to the south, giving it a stunning view overlooking Yeonhui-dong instead of south-facing lighting. The location of the house is also called the " Sky Yard House”, as it was located at the foot of a mountain near Gung-dong Neighborhood Park.
The 45-degree gable roof is finished with asphalt shingles. The exterior walls of the 1st floor were constructed by attaching bricks in the form of tiles onto the rain screen and cement board. The family, which have an extraordinary love for wood as a material, had mostly wooden furniture, including finishing materials of existing houses. For this reason, the house was built as a wooden house that could reduce cost and time, and was partly built in a wooden structure so that they could feel this material inside the house. The wooden pillars and beams of the living room were made in the shape of a cross for the family who are all devout Catholics.
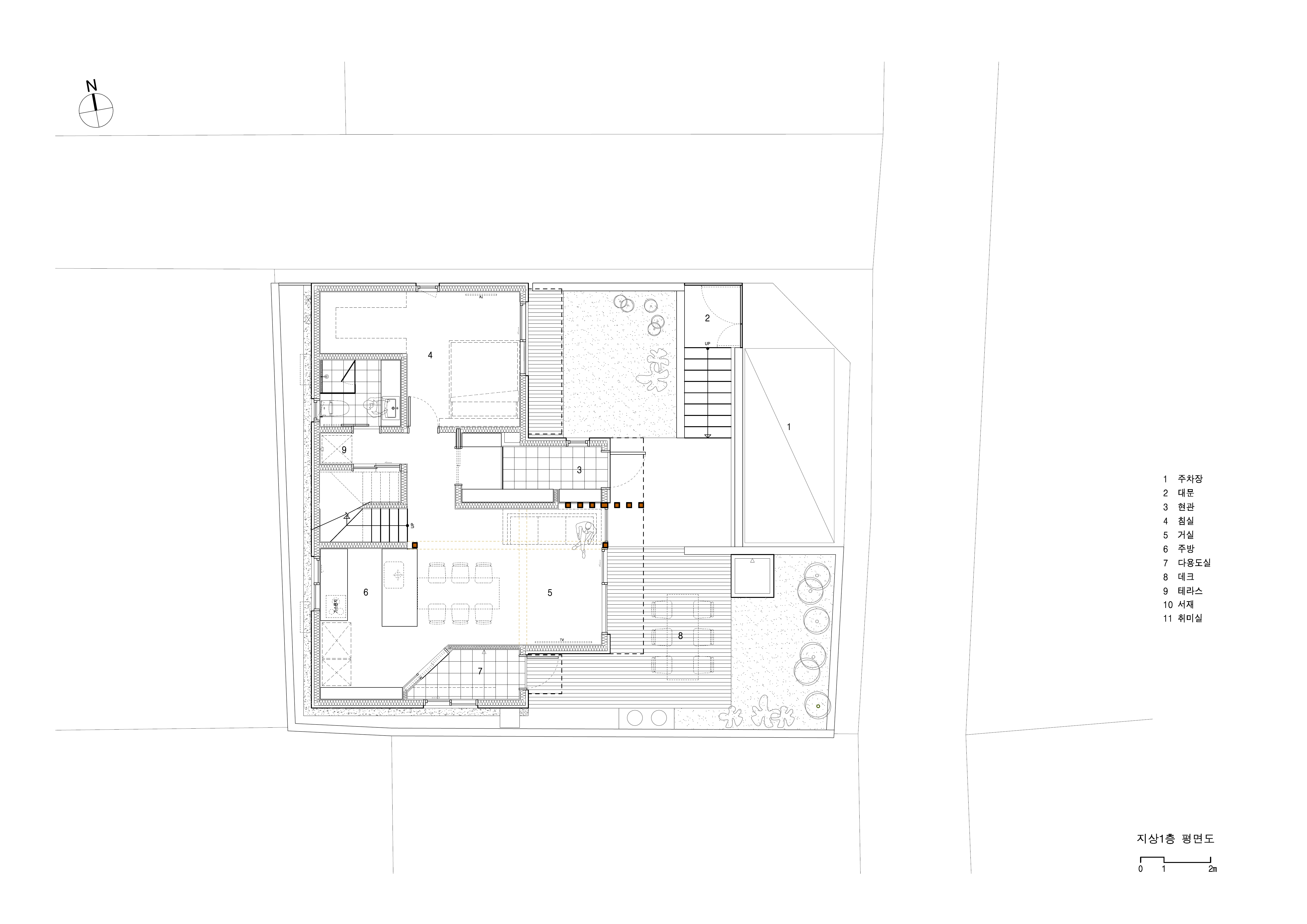
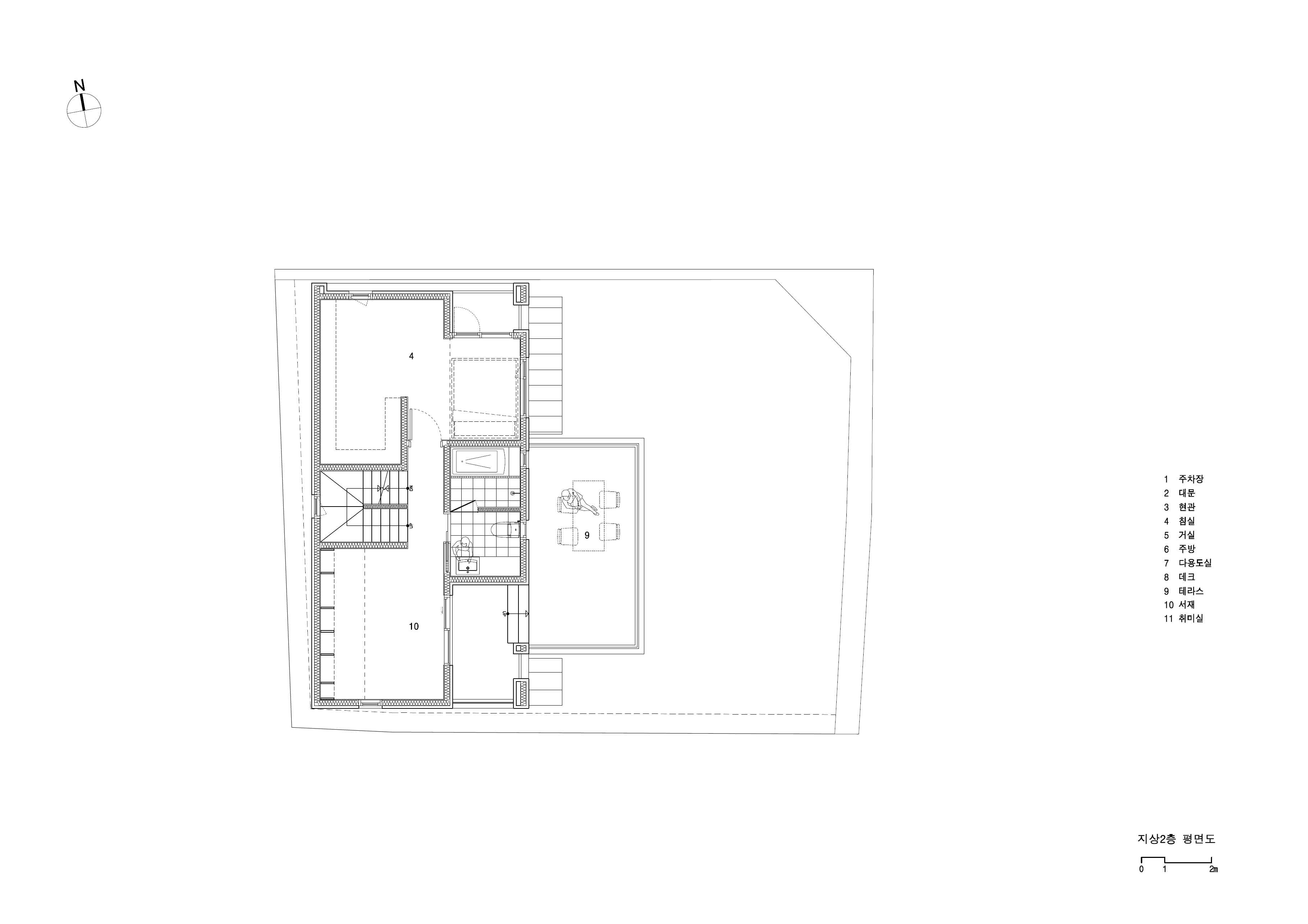
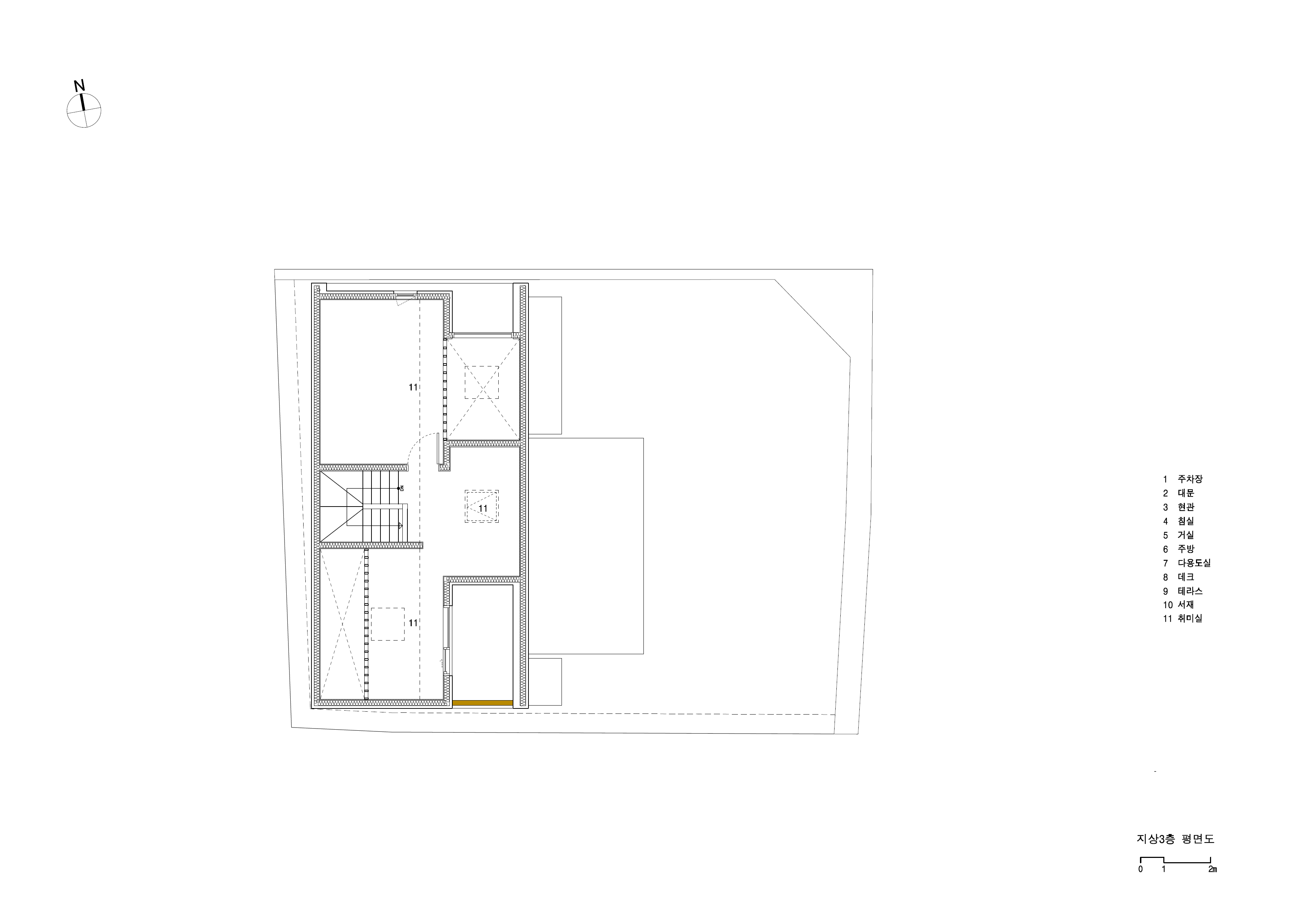
They, who makes kimchi themselves at home, asked for a utility room connected to the kitchen. The kitchen on the first floor leads to the front yard past the living room. A space to bury the crocks was provided between the front yard and the utility room. On the 1st floor, a room and bathroom as well as a private yard for the their parents were arranged along with the kitchen and living room. The 2nd floor is a space for the young couple(client), and the their bedroom was decided as the north room overlooking Yeonhui-dong, rather than the room in the south. The room in the south is being used as a study space since the door has not yet been installed, and when one goes out to the spacious terrace above the living room, a ‘sky yard’ where the wide sky of Yeonhui-dong can be seen is presented. Both of the two spaces on the second floor are connected to the third floor, which is used as the attic. Even though it is a small house, a three-dimensional detached house was created as there are split-level spaces as well as spaces with high floor heights.

다올재는 유럽에 거주하던 부부가 한국에서 거주해오던 연희동에 부모님과 함께 거주하기 위해 새롭게 지은 주택이다. 동쪽을 향하는 이 집은, 남쪽으로 4층의 주택이 있어 남향의 채광 대신 연희동이 내려다보이는 기막힌 풍경을 갖게 됐다. 집의 위치도 궁동근린공원에서 가까운 산자락이라 ‘하늘마루집’이라고 부르기도 한다.
45도의 박공지붕은 아스팔트슁글로 마감됐으며, 1층의 외벽은 타일 형태의 벽돌이 레인스크린과 시멘트보드 위에 덧붙여져 있다. 목재에 대한 애정이 남다른 이 가족은 기존 집의 마감재도 그렇고, 가지고 있는 가구들도 대부분 원목가구였다. 이러한 이유로 집은 비용과 시간을 줄일 수 있는 목조주택으로 지어졌고 이러한 자재의 느낌을 집 내부에서도 그들이 느낄 수 있도록 부분적으로 중목구조로 지어졌다. 거실의 목재 기둥과 보는 독실한 카톨릭 신자인 가족 모두를 위해 십자가 모양으로 만들어졌다.
집에서 김장을 하시는 어머니는 주방과 연결된 다용도실을 요청했다. 1층의 주방은 거실을 지나 앞마당으로 연결된다. 앞마당과 다용도실 사이에는 장독을 묻을 공간도 마련됐다. 1층은 주방, 거실과 함께 부모님을 위한 방과 욕실, 그리고 전용으로 쓸 수 있는 마당이 나온다. 2층은 젊은 부부의 공간으로, 부부침실은 남쪽이 아닌 연희동을 내려다 볼 수 있는 북쪽을 향한다. 남쪽방은 아직 문을 달지 않아 서재 공간으로 쓰고 있는데 거실 위쪽의 넓은 테라스로 나가면 연희동의 넓은 하늘이 보이는 ‘하늘마당’이 펼쳐진다. 2층 두 개의 공간은 모두 다락으로 쓰이는 3층으로 공간이 연결된다. 작은 집이지만 곳곳에 복층의 공간이나 높은 층고의 공간이 있어 입체적인 거주 공간임을 보여준다.


















Architects admobe architect
Location Yeonhui-dong, Seodaemun-gu, Seoul, Republic of Korea
Site area 169.0㎡
Building area 67.52㎡
Gross floor area 130.77㎡
Building scope 3F
Building to land ratio 39.95%
Floor area ratio 77.38%
Construction period 2019. 05 - 08
Completion 2019. 08
Principal architect Jaehyuk Yi
Design team Jaehyuk Yi, Juhwa Lee, Hyeonjong Kim
Structural engineer Duhang structural engineering
Mechanical engineer Keosaneng ENG, Youyeong Facility echnology research institute
Electrical engineer Keosaneng ENG, Youyeong Facility echnology research institute
Construction TCM global
Photographer Changmook Kim
해당 프로젝트는 리빙즈, 디테일 01호에 게재되었습니다.
The project was published in LIVINGS, Detail 01
[BOOK] LIVINGS, Detail 리빙즈, 디테일 01호, 02호
단행본 발행 67개의 형태와 라이프스타일을 담은 주거공간, 국내외 "디테일한 주택 프로젝트"의 엮음
www.masilwide.com
'Architecture Project > Single Family' 카테고리의 다른 글
| THE FRIYAH (0) | 2022.03.25 |
|---|---|
| GANGJIN SAGAK (0) | 2022.03.24 |
| SUNSET HOUSE (0) | 2022.03.23 |
| STACKED HOUSE (0) | 2022.03.22 |
| GYESAN27 (0) | 2022.03.21 |
마실와이드 | 등록번호 : 서울, 아03630 | 등록일자 : 2015년 03월 11일 | 마실와이드 | 발행ㆍ편집인 : 김명규 | 청소년보호책임자 : 최지희 | 발행소 : 서울시 마포구 월드컵로8길 45-8 1층 | 발행일자 : 매일



