
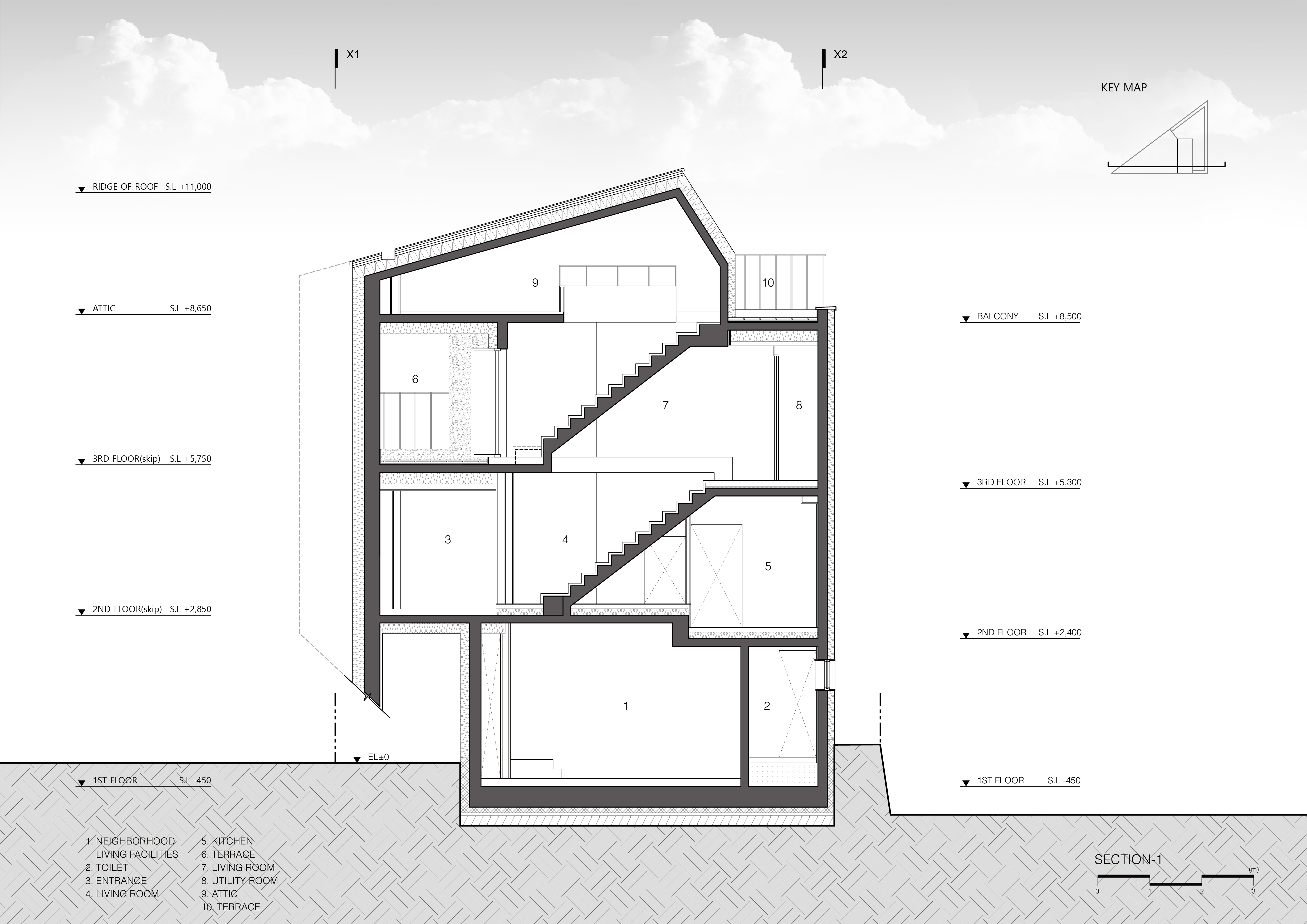
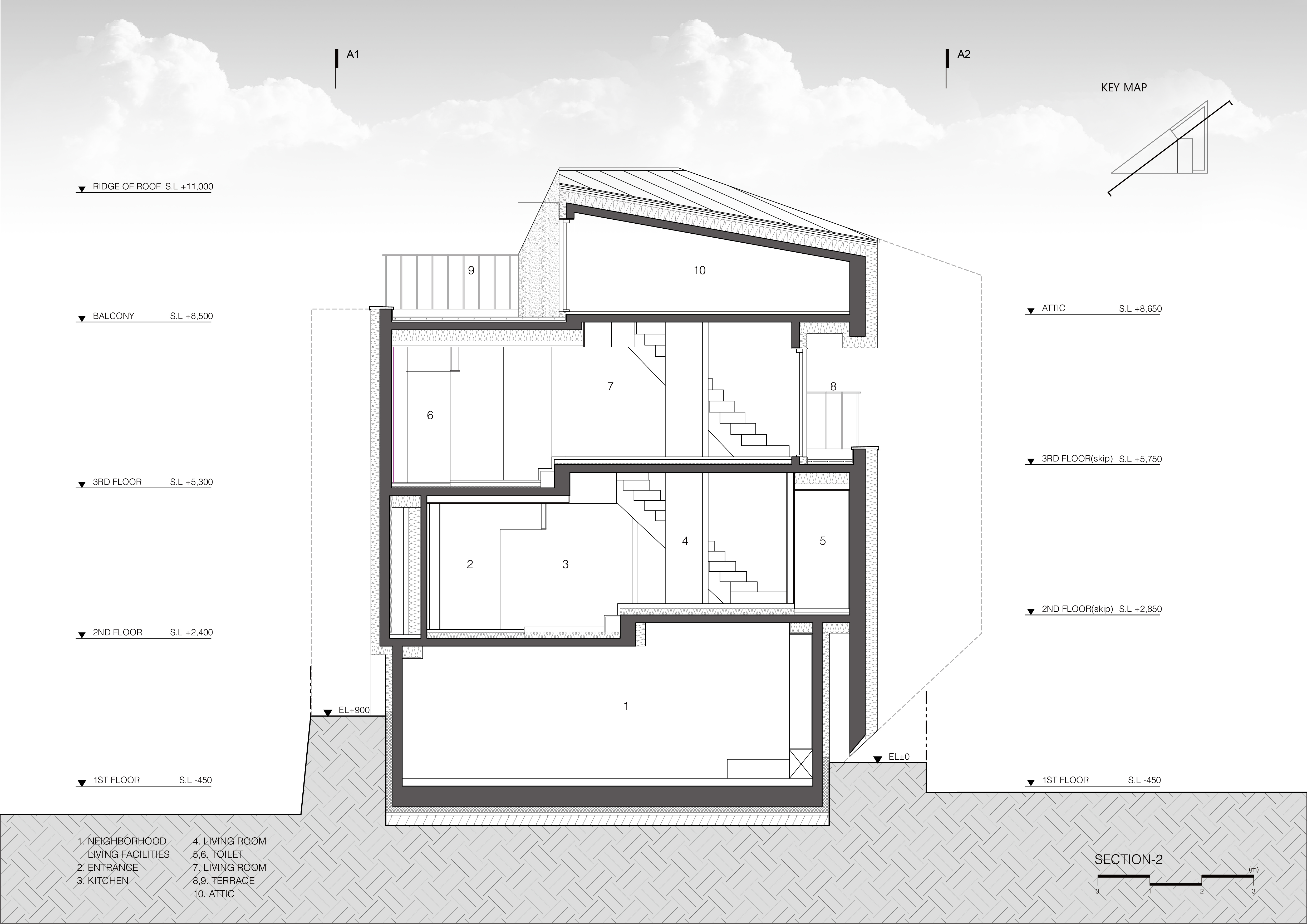
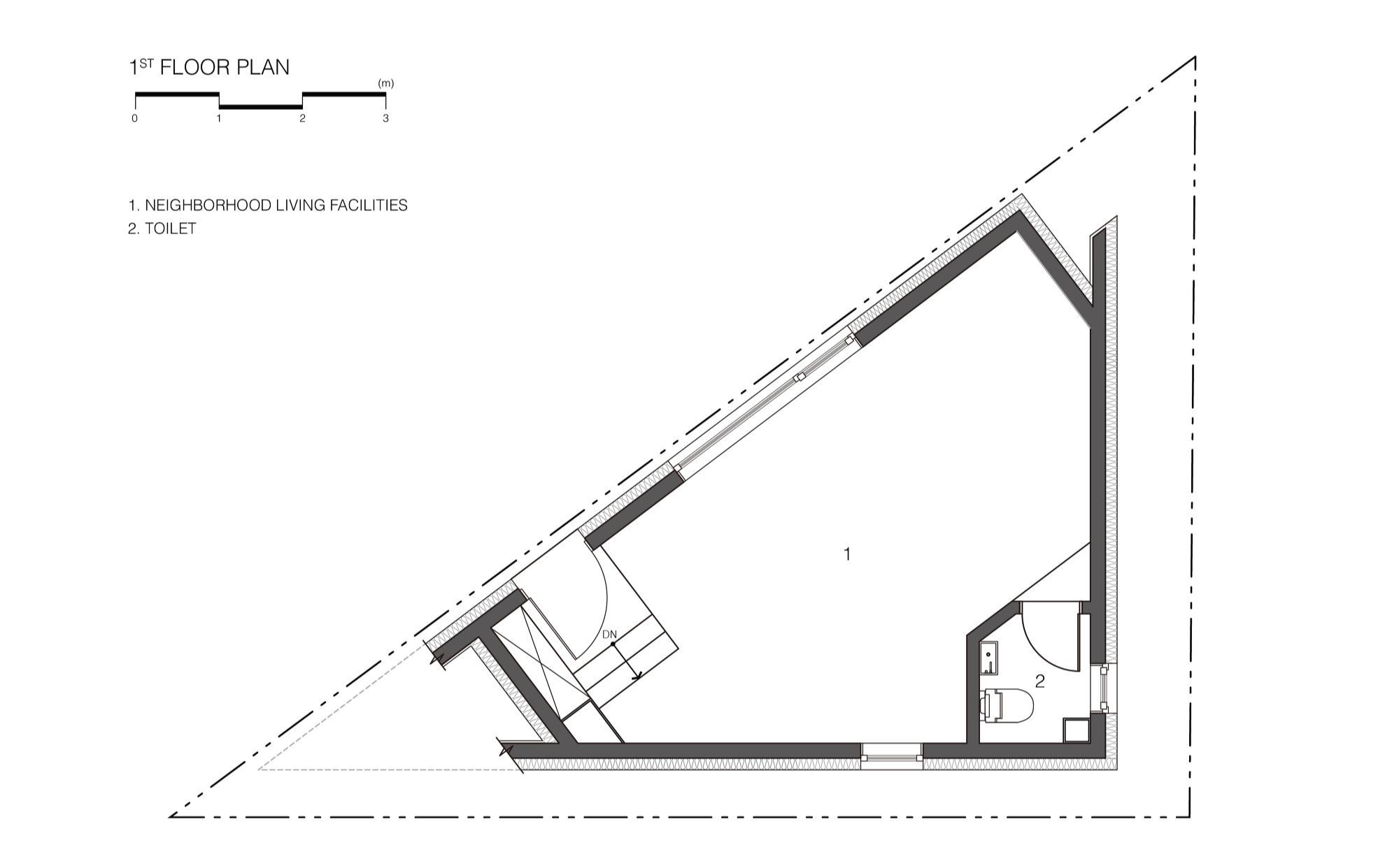
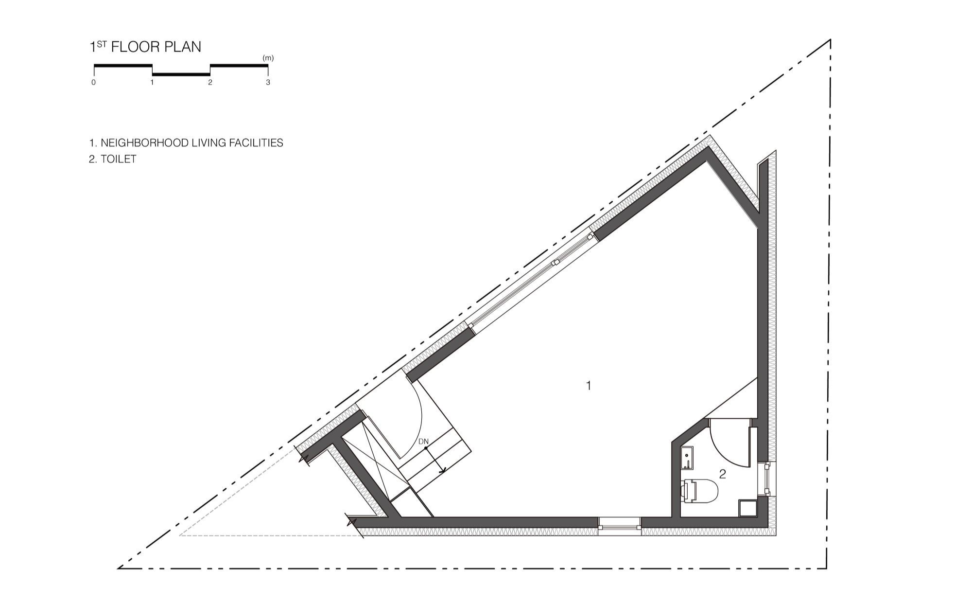
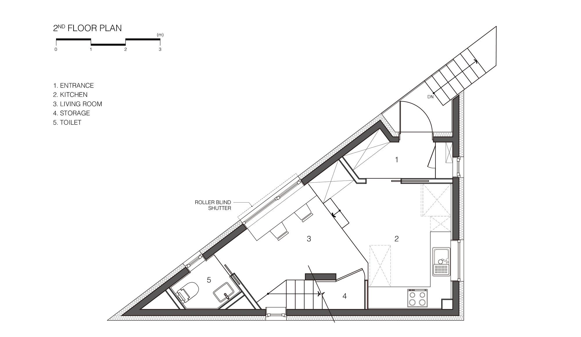
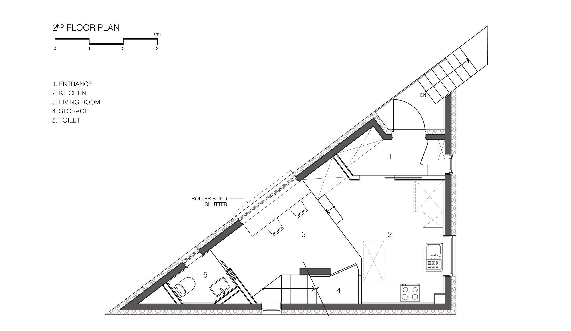
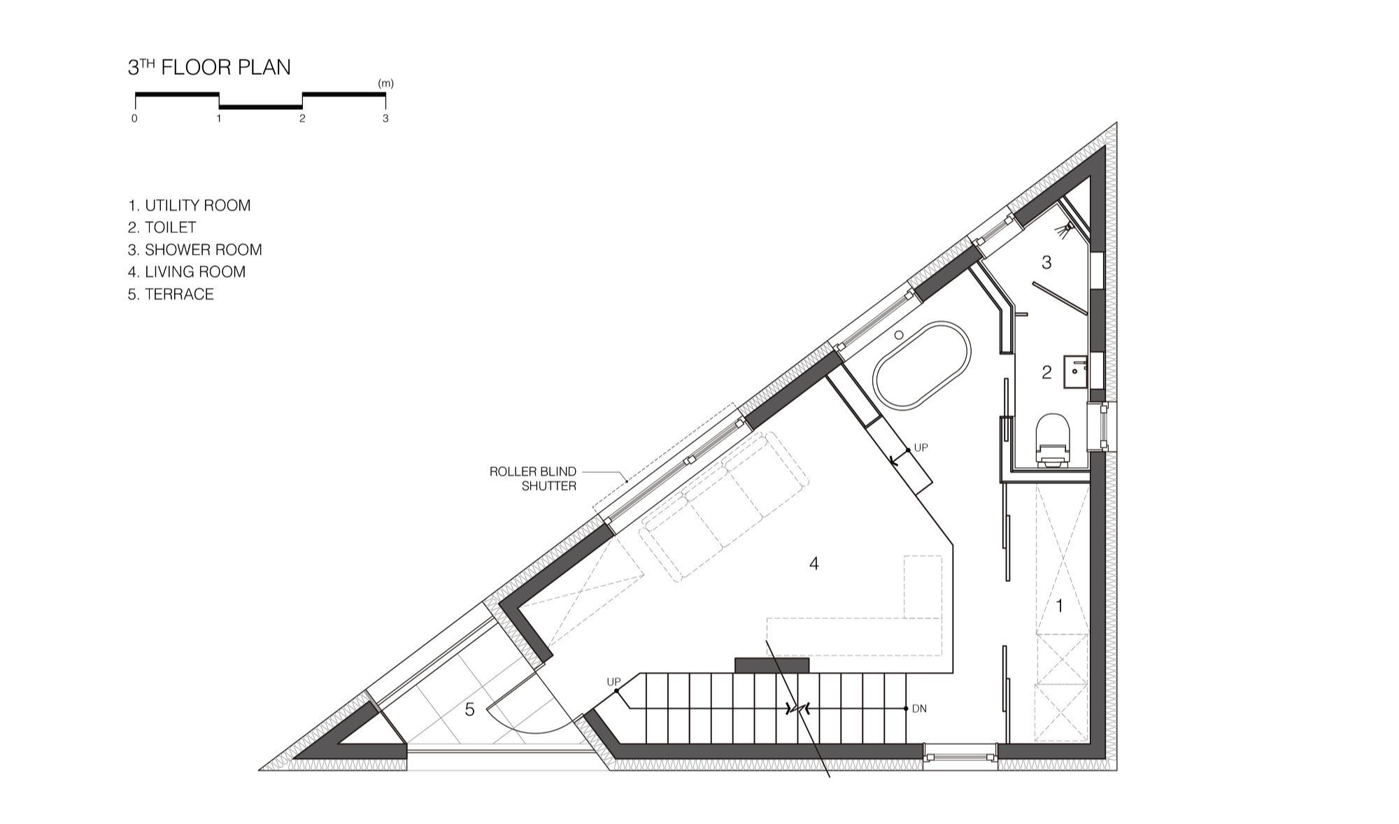
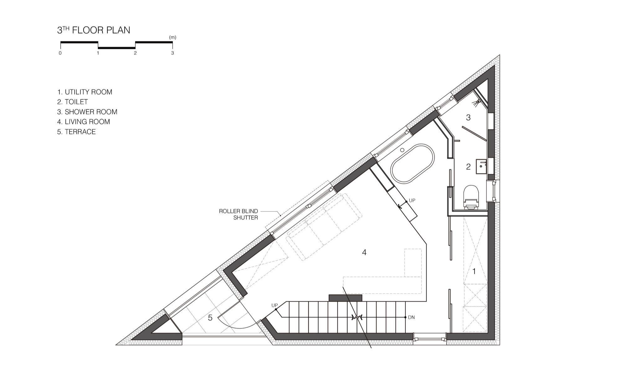
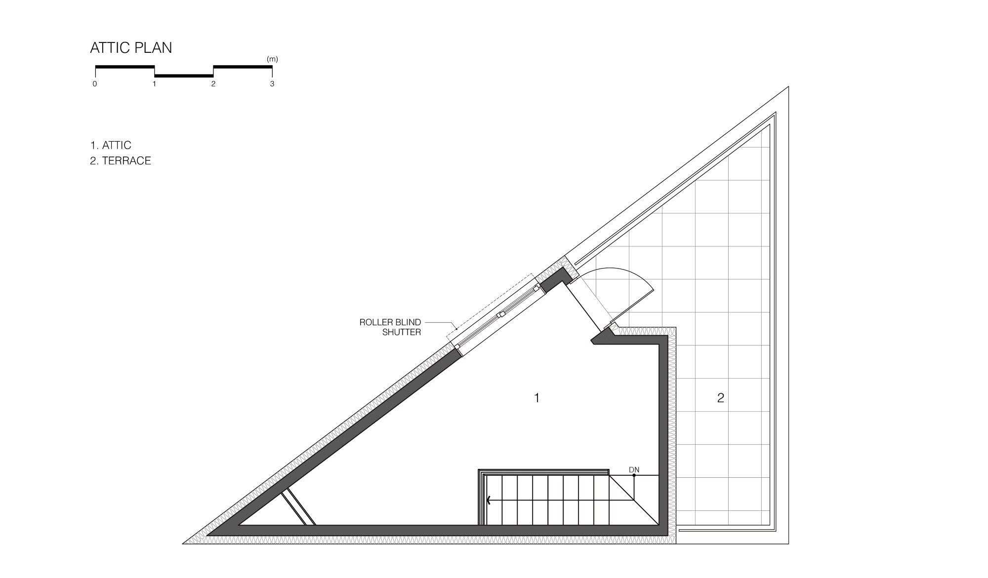
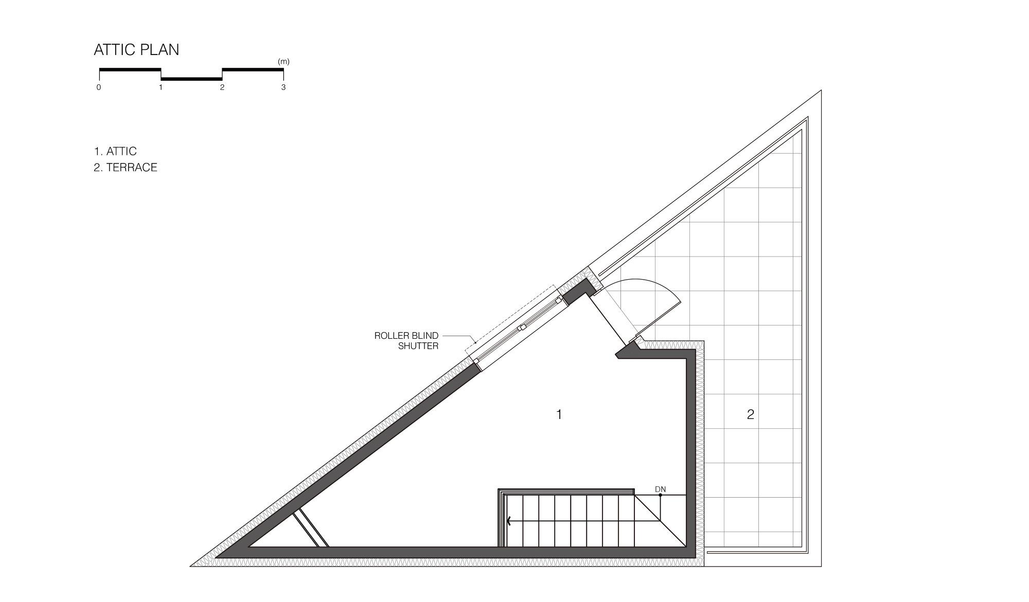
The Sunset House is for the client wanted see throught a large window to the western sky with the sunset sky. Before the house was built, the site had an old single-story house that was built a long time ago. The form of the site on the cadastral map was a complete triangle and the land was only 16.7 pyeongs. The building’s layout is already determined on such small lands. However, the location of the entrance and the composition of the interior space were important. The part where the wall from the second story to the first was diagonally cut is a design element to secure an area of the land to install the septic tank, meters, etc. In this way, Sunset House is a house that has accepted the shape of the land just as it is and also has a unique design that stands out. The building’s exterior walls are the main structure of the house’s interior and they were built with a reinforced concrete wall structure, which is morphologically free and has high rigidity. To match the concept of ‘a house unlike a house’ that the client wanted, the interior was roughly finished by exposing the concrete and finishing the surface with it, and contrarily, by applying STO external insulation and bright white lotusan paint to the exterior finish, a twist of some sorts that is felt when entering the house from the exterior was intended for. Slightly darker colors were applied for the interior’s colors and tone, providing it an industrial interior atmosphere. The floor’s tile color, texture, the color of the partially used paint and lights that go well with the color of the gray walls all harmonize with each other. The 1st floor is a small shop where rental income can be earned. After moving in, the space can be utilized as a small cafe or office, and it is a small space separate from the house. The 2nd to the 3rd floors and the attic are the house where the client lives. The open bathtub placed on the western wall also has an appropriately sized window where the evening sky can be enjoyed. The western windows, which are the largest windows on the 2nd and 3rd floors, have external electric rolling shutters that allow the sunlight from the west in summer to be blocked and they are important windows that allow the sunset in the west to be enjoyed. The fact that placing a large window in the west, which most prospective owners avoid, and enjoying the evening sky became the most important element in building the house, the fact that the feeling of ‘a house unlike a house’ was aimed to be emphasized with the interior’s dark-toned colors, and the fact that all spaces are divided by floors yet seamlessly connected are the most distinct features of this house.

노을집은 저녁 노을 하늘을 바라볼 수 있는 서쪽에 창이 큰 집을 원하는 건축주를 위한 집이다. 집이 지어지기 전 대지에는 아주 오래전에 지어진 단층짜리 구옥이 있었다. 지적도 상의 대지 형태는 완전한 삼각형 이었고 땅의 크기는 고작 16.7평이었다. 이런 작은 땅에서 건물의 배치는 이미 정해져 있다. 다만, 출입구의 위치와 실내공간 구성 배치가 중요했다. 2층에서 1층으로 벽이 사선으로 꺽여지는 부분은 정화조, 계량기 등을 설치할 땅의 면적을 확보하기 위한 디자인 요소다. 이렇게 노을집은 땅의 모양을 그대로 받아 들이면서도 유니크한 디자인의 돋보이는 집이다. 주택의 내부는 건축물의 외벽이 주요 구조이며, 형태적으로도 자유롭고 강성이 큰 철근콘크리트 벽식구조로 지어졌다. 건축주가 원했던 ‘집같지 않은 집’의 콘셉트에 맞게 내부마감은 벽의 콘크리트 노출과 면처리를 통해 거친 마감이 되게 했고 이와 반대로 외부의 마감은 STO 외단열공법과 밝은 화이트색의 로투산페인트를 적용하여 외부에서 집안으로 들어섰을 때 느끼는 반전 같은 것을 의도했다. 내부의 색감이나 톤이 약간은 어두운 칼라가 적용이 되어 인더스트리얼 인테리어 분위기가 난다. 회색 벽의 색감과 어우러지는 바닥의 타일색과 질감, 부분적으로 사용된 페인트의 색상과 조명등이 조화를 이룬다. 1층은 임대소득을 얻을 수 있는 작은 상가다. 입주 후에는 작은 카페나 소규모 사무실 등으로 쓰일 수 있으며, 집과는 독립적으로 분리된 작은 공간이다. 2층부터 3층과 다락층까지는 건축주가 생활하는 주택이다. 서측 벽면에 놓인 오픈 욕조에는 저녁 하늘을 감상할 수 있는 적당한 크기의 창도 배치되어 있다. 2층과 3층에서 가장 큰창인 서향창은 외부 전동롤링셔터가 설치되어 있어 여름철 서향의 햇빛을 막아줄 수 있으면서도 일몰 후 서측의 노을을 감상할 수 있게 해주는 중요한 창이다. 대부분 예비 건축주들이 꺼려하는 서향에 창을 크게 내어 저녁 하늘을 감상하는 것이 집짓기의 가장 중요한 요소가 된 점, 어두운 톤의 내부의 색감으로 ‘집 같지 않은 집’의 느낌을 살려내고 싶어 한 점, 모든 공간이 층으로 구분은 되어 있지만 막힘없이 연결되어 있는 점 등이 특징이다.




















Architects JoHanjun Architects
Location Ohyeon-ro, Gangbuk-gu, Seoul, Republic of Korea
Site area 56㎡
Building area 33.37㎡
Gross floor area 78.89㎡
Building scope 3F
Building to land ratio 59.58%
Floor area ratio 140.88%
Design period 2019. 07- 10
Construction period 2019.0 12 - 2020. 05
Completion 2020. 05
Principal architect Hanjun Jo
Project architect Hanjun Jo
Design team Miwha Son, Jeahyun Lee, Daeun Choi
Structural engineer Hangil Engineer
Mechanical engineer GM EMC
Electrical engineer GM EMC
Construction KSPNC
Photographer Woochul Jung
해당 프로젝트는 리빙즈, 디테일 01호에 게재되었습니다.
The project was published in LIVINGS, Detail 01
[BOOK] LIVINGS, Detail 리빙즈, 디테일 01호, 02호
단행본 발행 67개의 형태와 라이프스타일을 담은 주거공간, 국내외 "디테일한 주택 프로젝트"의 엮음
www.masilwide.com
'Architecture Project > Single Family' 카테고리의 다른 글
| GANGJIN SAGAK (0) | 2022.03.24 |
|---|---|
| DAOLJAE (0) | 2022.03.24 |
| STACKED HOUSE (0) | 2022.03.22 |
| GYESAN27 (0) | 2022.03.21 |
| WANJU HOUSE (0) | 2022.03.21 |
마실와이드 | 등록번호 : 서울, 아03630 | 등록일자 : 2015년 03월 11일 | 마실와이드 | 발행ㆍ편집인 : 김명규 | 청소년보호책임자 : 최지희 | 발행소 : 서울시 마포구 월드컵로8길 45-8 1층 | 발행일자 : 매일



