
This project has a triple role of residential, retail, and office spaces within the building complex. Located in Shirokane, Minato ward in Tokyo, it may be found at a corner of a four-way intersection on Gonohashidori - a street which extends to the south of Furukawa River. While at a first glance the street may seem to have an old-fashioned
touch to it, however, it is not as narrow as what the traditional Japanese streets may be seen as-and both facades of the building may be seen from a far distance. For this reason, it was important to design the project to portray the architectural structure as an iconic presence on the street.
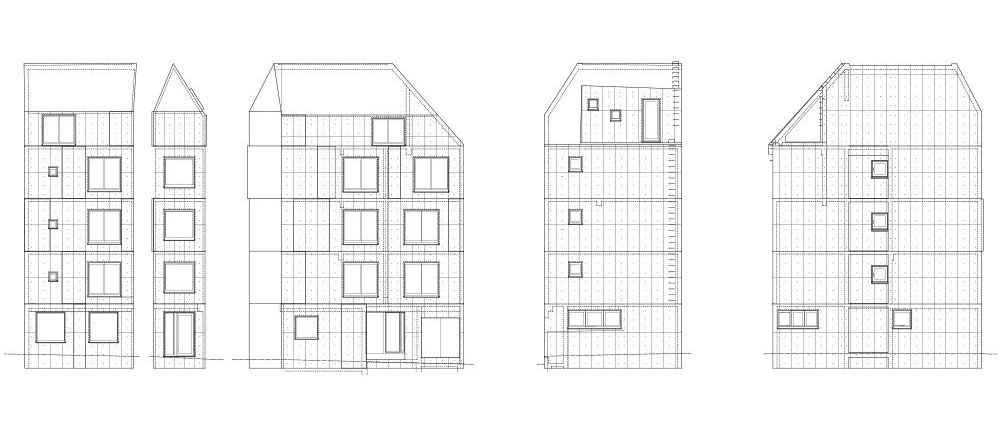
The five-stories building’s exterior is composed of RC (reinforced concrete) bearing walls, with a shimmering surface in the light-achieved by the effect of the shifting stainless-steel panels and concrete spirals design. This composition of the facade allows the shadows falling on the street to shift depending on the time of day and seasonal changes,
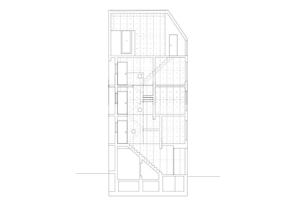
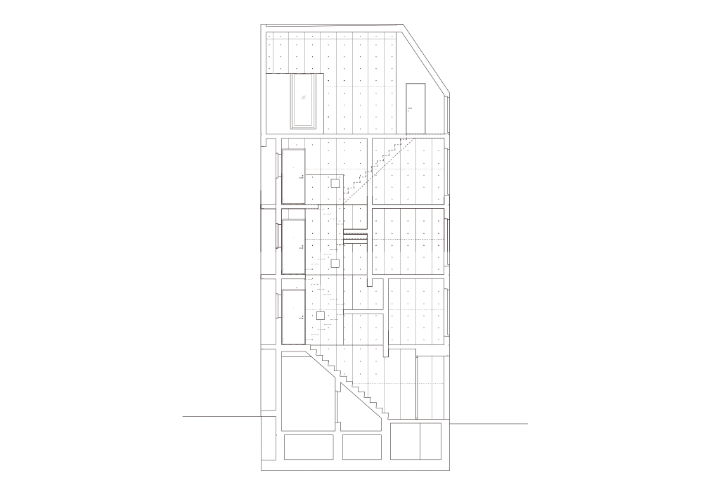
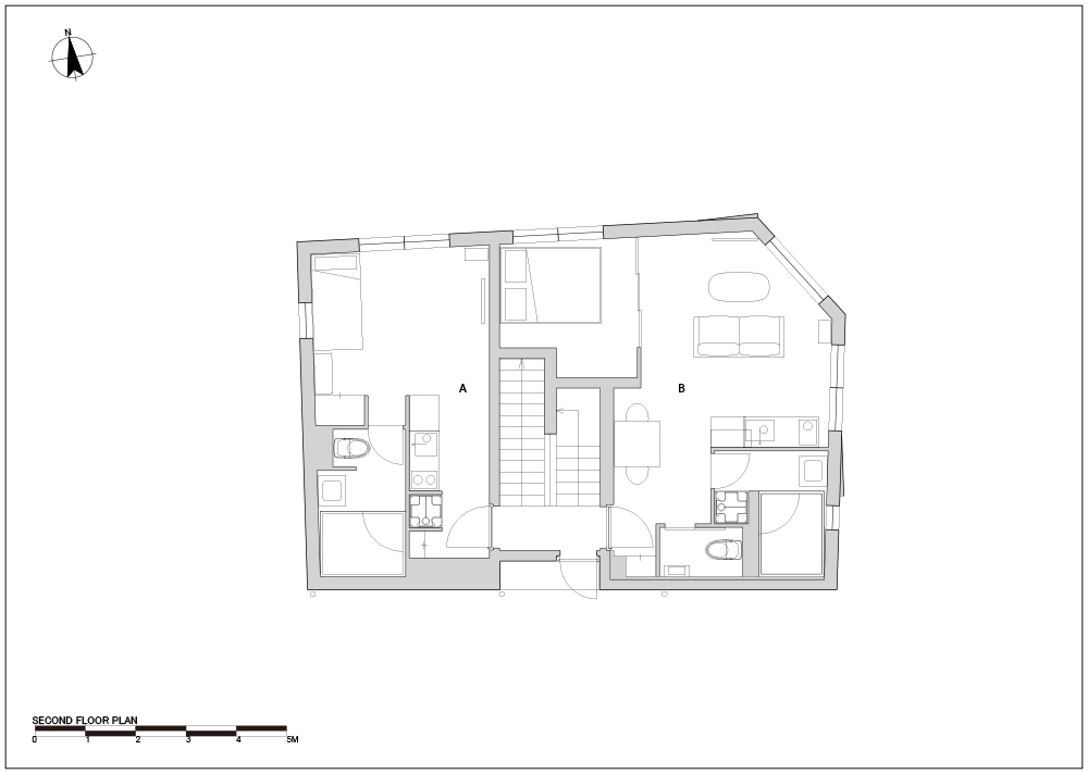
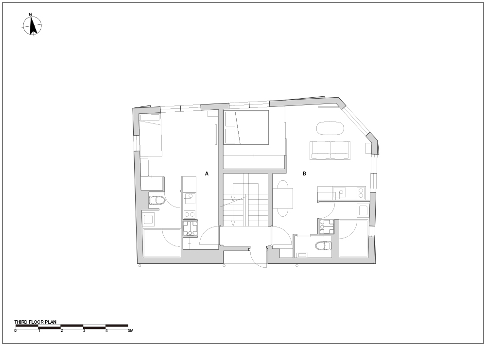
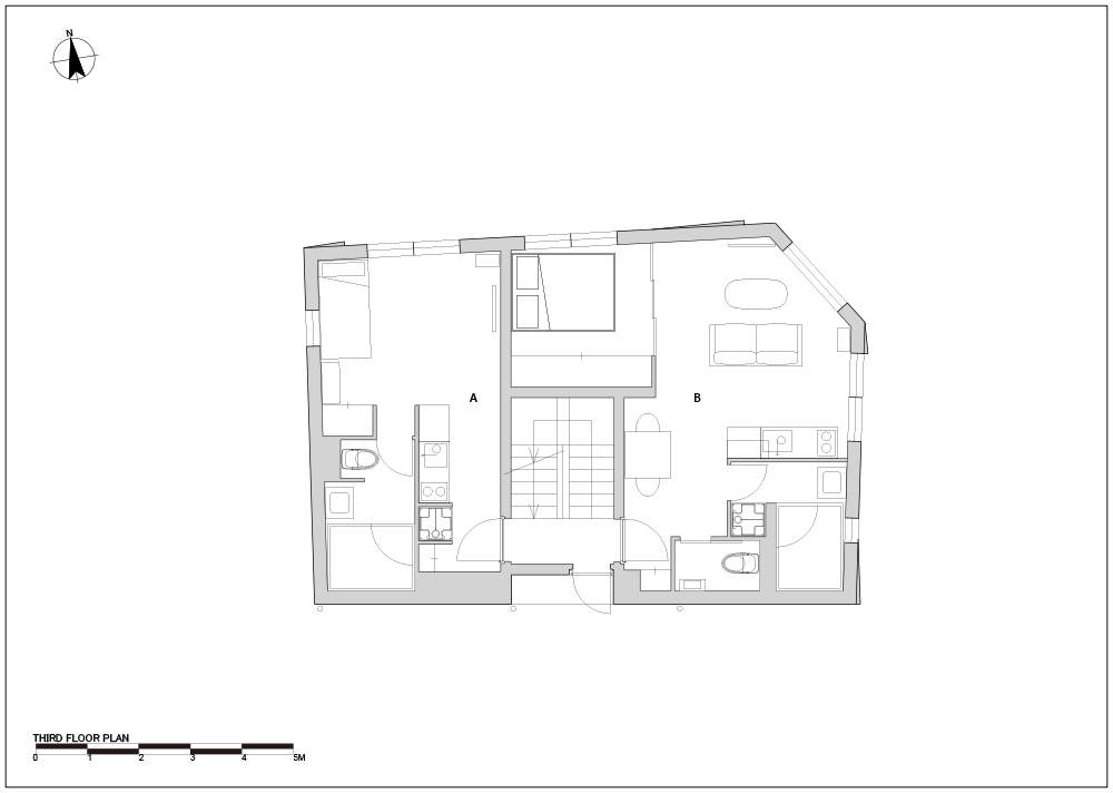
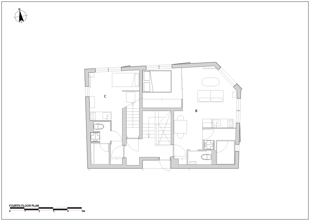
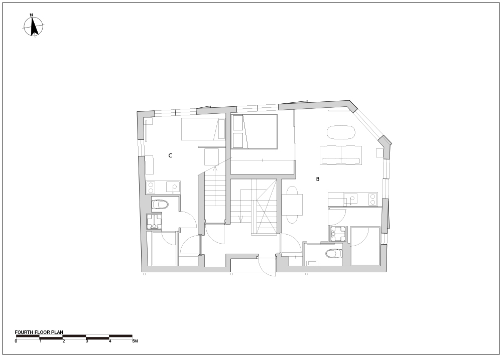
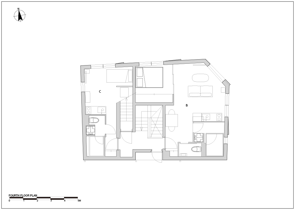
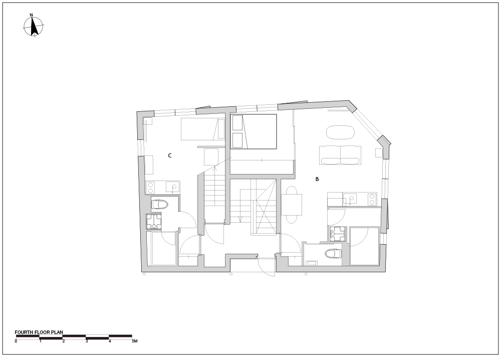
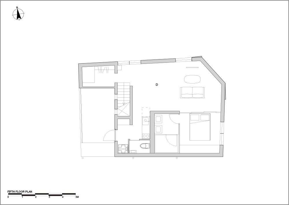
which allows for a wide variety of expressions. This design is appropriate for the lively Shirokane town and allows residents, visitors, pedestrians, cyclists, and drivers to catch the reflections of their vitality. While the first floor of the building consists of restaurant units, led inside by a glass sliding door entrance, the second to fourth floors each have two residential units. Finally, on the fourth floor, an entrance to a staircase leads up to the fifth-floor maisonette, which consists of office space.
These units range from a one-person studio to one-bedroom apartments with living, dining, and kitchen spaces. These are designed to have large openings in square forms to recreate the effect of space, light, and wind. To create a simple design with a minimal amount of waste and a high degree of spatial freedom within the architectural
structure’s composition, the bedroom and the living room have the option to be used as one single unit with the assistance of sliding walls. To emphasize the contrast of the materials, white and concrete walls are used. The spatial relationship between the room areas is therefore designed to meet any individual needs of each resident, compromising a flexible structure. In addition, consisting of a two-stories-high ceiling of 3.7 meters with a loft space, the maisonette design may likewise be used not only as an office place-but also as a residential area.
The playful use of materials in the spatial flexibility is based on the idea of minimalism in relation to the building’s surrounding environment, providing a rich and unique experience. A lifestyle with the sense of liberating freedom in space allows the residents to take the leading role in controlling the space. The dialogue between the existing architecture and the surrounding environment is firmly established through the various use of materials and the architectural structure design of the residence unit itself.

이 프로젝트는 주상복합건물로, 주거, 상가, 사무실의 세 가지 역할을 한다. 도쿄 미나토구 시로카네의 후루카와 강 남쪽으로 뻗어 있는 길인 고노하시도리 사거리의 모퉁이에 자리 잡고 있다.
이 거리는 얼핏 보기에 고풍스러운 느낌이 들지만, 일본의 전통적인 거리처럼 좁지 않고 건물의 양쪽 정면이 멀리서도 보인다. 이러한 이유로 이 프로젝트의 건축 구조를 거리의 상징적 존재로 묘사하도록 설계하는 것이 중요했다. 5층 건물의 외부는 철근콘크리트 내력벽으로 구성되어 있으며, 움직이는 스테인리스 패널과 콘크리트로 마감된 나선형 디자인의 효과로 빛을 받으면 표면이 반짝인다. 파사드의 이러한 구성은 시간과 계절의 변화에 따라 거리에 드리워지는 그림자를 변화시켜 다양한 표현을 가능하게 한다. 이 디자인은 활기찬 시로카네 마을에 적합하며 거주자, 방문객, 보행자, 자전거 이용자, 운전자가 그들의 움직임을 포착할 수 있다.
건물의 1층은 유리 미닫이문 입구를 통해 내부로 이어지는 레스토랑으로 구성되어 있으며, 2~4층에는 각각 2개의 단위 주거 세대가 있다. 마지막으로 4층의 계단 입구는 사무실 공간으로 사용되는 복층으로 이어진다. 이 세대들은 1인용 스튜디오에서 거실, 식사 공간, 주방 공간을 갖춘 침실 1개의 아파트에 이르기까지 다양하며, 공간, 빛, 바람의 효과를 재현하기 위해 정사각형 형태의 큰 개구부를 갖도록 설계되었다. 건축 구조의 구성 내에서 최소한의 데드스페이스를 만들고, 최대한 자유롭고 단순한 디자인을 만들기 위해 침실과 거실 사이에는 슬라이딩 벽을 설치하여 하나의 단일 유닛으로 사용할 수 있도록 했다. 재료의 대비를 강조하기 위해 흰색과 콘크리트 벽이 사용되었다. 따라서 방 사이의 공간적 관계는 각 거주자의 요구를 충족하도록 설계되어 유연한 구조를 타협한다. 또한, 2층 높이의 3.7m에 중이층 공간이 포함된 공간으로 구성된 복층 디자인은 사무공간은 물론 주거공간으로도 활용이 가능하다.
공간에 유연성을 부여하고 재료를 유쾌하게 사용하는 것은 건물의 주변 환경과 관련하여 미니멀리즘을 기반으로 하여, 풍부하고 독특한 경험을 제공한다. 공간의 자유로움을 느끼는 라이프스타일은 거주자가 공간을 주도적으로 사용할 수 있도록 한다. 건축물과 주변 환경 간의 대화는 다양한 재료의 사용과 단위 주거의 건축 구조 설계를 통해 확고하게 만들었다.



















Architects SASAKI ARCHITECTURE + YTRO DESIGN INSTITUTE
Location Shirokane, Minato-ku, Tokyo, Japan
Program Residential Housing, Restaurant, Office
Site area 90.97㎡
Building area 71.81㎡
Gross floor area 346.12㎡
Building scope 5F
Structure Reinforced concrete
Principal architect(SASAKI ARCHITECTURE)Ryuichi Sasaki, (YTRO DESIGN INSTITUTE)Rieko Okumura
Design team (SASAKI ARCHITECTURE)Gen Sakaguchi, Yuriko Ogura
Structure engineer (Tatsumi Terado Structural Studio)Tatsumi Terado
Completion 2020. 11
Client (Shukou Kensetsu Co.,Ltd)Nobumitsu Ohashi
Photographer Takumi Ota Photography
해당 프로젝트는 건축문화 2022년 1월호(Vol. 488)에 게재되었습니다.
The project was published in the January, 2022 recent projects of the magazine(Vol. 488).
January 2022 : vol. 488
Contents : RECORDS NEW PROPOSAL FOR THE HOUSING PROBLEM IN SEOUL FOUND IN RURAL AREA 서울 주거 문제의 새로운 대안, 농촌에서 찾다 : NEWS / COMPETITION / BOOKS : SKETCH MY HOUSE ..
anc.masilwide.com
'Architecture Project > Commercial' 카테고리의 다른 글
| Casamia Community House (0) | 2022.04.06 |
|---|---|
| ROUTE52 CC CLUBHOUSE (0) | 2022.03.28 |
| CAFE FOV (0) | 2022.03.22 |
| SUOBOOKS (0) | 2022.03.17 |
| AREUKE SPA (0) | 2022.02.16 |
마실와이드 | 등록번호 : 서울, 아03630 | 등록일자 : 2015년 03월 11일 | 마실와이드 | 발행ㆍ편집인 : 김명규 | 청소년보호책임자 : 최지희 | 발행소 : 서울시 마포구 월드컵로8길 45-8 1층 | 발행일자 : 매일



