
NATURE | CULTURE
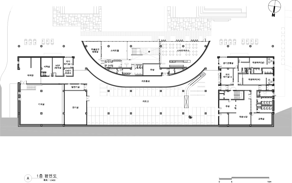
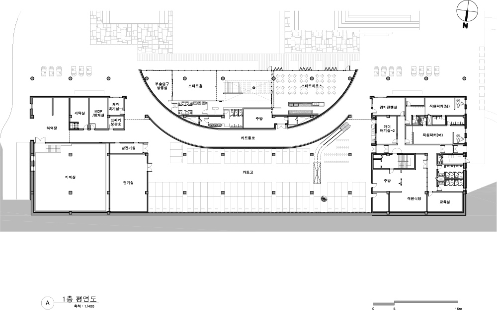
ROUTE52 CC Clubhouse is located on the highest ridge of Dangsan Mountain in Yeoju, which consists of a broad plain. Our expectations for this blessed place - the perfect location that can be easily found even from a distance offering a distant view and being able to enjoy the vast green and nature together - were unfortunately utterly blown away during the on-site survey when we found dozens of hectares of upended red-brown soil. Instead of mimicking nature sloppily by advocating the idea of ‘architecture that blends in with nature,’ we instead thought paradoxically that we should do the architecture and leave nature to nature and that this would be the most natural thing. In that site, we decided to place the long and wide concrete mass as raw as it is indifferently.
SUBLIME BEAUTY | STRONG FORM
We intended to give unpredictable beauty or inspiration. We aimed to give the material as raw as it takes on a simple form, a large, long, and tall splendor, and a bold transformation, keeping the rough surface as it is. We believed that this was the best way for architecture to blend in with nature. The rectangular and magnificent exposed concrete frame is a lens that captures nature. Tall and long-brick walls standing one after another are intended to draw attention and traffic from outside to inside, creating the depth of space.
We extended the thick roof concrete surface to form a canopy naturally and captured the sky through a large round hole in the center of the concrete. The stone pillar with wild vein patterns supporting the vertex of the canopy was designed in a diamond shape, setting the focal point of the first and last impressions.
‘Rawness’ of Concrete
Concrete is the most honest building material. It is a structure that allows the building to stand on its own and a finishing material that composes the interior and exterior of the building. Also, it is not something that can be made and assembled elsewhere but must be made in a form in the place where the building will actually be. We accepted the inconvenience of rawness and decided to present it as it is. We hollowed the long and tall concrete mass and chamfered edges to emphasize the shape, expanding the planes and making a huge hole.
‘Texture’ of Brick
A brick is a small unit, and its properties are implemented variously depending on its shape. We overlapped the walls made of cement bricks one after another into the frame of concrete and intended to create the feeling of ‘weaved texture’ felt from the huge mass and the warmth that comes from the purity of the material.
‘Wildness’ of Stone
The pillar of the main entrance that solely supports the heavy concrete canopy embodies a hard and refined crystal. The geometric shape that changes the planar shape from octagon to square and back to octagon paradoxically is the only structure with natural patterns in this building. We intended to give the feeling that the wildness, composed of intense black and white vein patterns, is well refined and tamed.

NATURE┃CULTURE
루트52 CC의 클럽하우스는 넓은 평원으로 이루어진 여주에서 가장 높은 당산의 산마루에 자리하고 있다. 멀리서도 잘 보이고, 또 멀리까지 볼 수 있는 이 천혜의 장소에 드넓게 펼쳐진 그린과 자연까지 함께할 수 있다는 기대는, 안타깝게도 수십 헥타르의 적갈색 흙이 파헤쳐진 현장 답사에서 여지없이 날아갔다. ‘자연과 어우러지는 건축물’을 내세우며 어설프게 자연을 따라하기보다 ‘우리는 건축을 하고 자연은 자연 그대로 그 위치에 두자, 그리고 이것이 가장 자연스러운 것’이라는 역설적인 생각을 하였다. 그리고 그 장소에 무심하게 날 것 그대로의 길고 넓은 콘크리트를 얹기로 했다.
SUBLIME BEAUTY┃STRONG FORM
예측할 수 없는 아름다움 또는 감흥을 주고자 하였다. 날 것 그대로의 재료에 단순한 형태, 크고 길고 높은 웅장함, 그리고 과감한 변형을 주고자 하였으며, 거친 표면을 그대로 살리고자 하였다. 이것이 건축물이 자연과 가장 잘 어우러지는
방법이라 생각하였다.
직사각형의 웅장한 노출 콘크리트 프레임은 자연을 담는 렌즈로, 그 사이 켜켜이 쌓인 높고 긴 롱브릭 벽은 외부에서 내부로 시선과 동선의 흐름을 유도하는 동시에 공간의 깊이를 연출하도록 의도하였다.
두꺼운 지붕 콘크리트 면을 확장하여 자연스러운 캐노피를 형성하고 그 콘크리트 가운데에는 큰 원형의 구멍을 통해 하늘을 담았다. 그 캐노피의 꼭짓점을 떠받치는 야성적인 베인의 돌기둥을 다이아몬드 형태로 조각하듯이 디자인하여 첫인상과 끝인상의 삼았다.
콘크리트의 ‘날 것’
콘크리트는 가장 솔직한 건축 재료이다. 건물을 자립할 수 있게 만드는 구조임과 동시에, 건물의 내외부를 구성하는 마감재이며, 어디서 만들어서 조립할 수 있는 것이 아닌, 건물이 실제로 자리할 그 자리에서 그 형태 그대로 만들어야 한다. 우리는 날 것이 주는 불편함을 수용하고, 있는 그대로 보여주기로 하였다. 길고 높은 콘크리트 덩어리의 속을 비우고, 모를 깎아 형태를 강조하였고, 면의 확장하고 큰 구멍을 내었다.
브릭의 ‘텍스처’
브릭은 하나의 작은 단위로 그 물성은 형태에 따라 다르게 구현된다. 우리는 콘크리트의 프레임 속으로 시멘트 벽돌로 만들어진 벽을 켜켜이 중첩하였고, 거대한 덩어리에서 느껴지는 ‘직조된 텍스처’의 느낌과 함께 재료의 순수함에서 오는 따뜻함을 동시에 의도하였다.
돌의 ‘야성’
육중한 콘크리트 캐노피를 홀로 떠받치고 있는 주 출입구의 기둥은 단단하고 정제된 결정을 형상화하였다. 팔각형에서 시작하여 사각형으로, 다시 팔각형으로 평면 형상이 바뀌는 기하학적인 형태는 역설적으로 이 건물에서 유일하게 자연 그대로의 모습을 하고 있다. 흑과 백이 이루는 강렬한 베인으로 구성된 야성적인 것을 잘 다듬고 조련한 느낌을 의도하였다.




















Architects Gansam Co.,LTD│(주)간삼건축종합건축사사무소
Location Jungamgil, Bungnae-myeon, Yeoju-si, Gyeonggi-do, Republic of Korea
Program Sports, Clubhouse
Site area 977,456㎡
Building area 4,918.64㎡
Gross floor area 8,369.09㎡
Building scope 3F
Principal architect Kyonam Chin
Design team Heekyung Choi, Joonseo Sohn, Byungha Lee, Billy Tan, Keunwoo Lee, Kangin Choi
Structure engineer NCS Engineering
Completion 2021
Client Kyeryong Construction Industrial
Photographer Dongwook Jung
해당 프로젝트는 건축문화 2022년 1월호(Vol. 488)에 게재되었습니다.
The project was published in the January, 2022 recent projects of the magazine(Vol. 488).
January 2022 : vol. 488
Contents : RECORDS NEW PROPOSAL FOR THE HOUSING PROBLEM IN SEOUL FOUND IN RURAL AREA 서울 주거 문제의 새로운 대안, 농촌에서 찾다 : NEWS / COMPETITION / BOOKS : SKETCH MY HOUSE ..
anc.masilwide.com
'Architecture Project > Commercial' 카테고리의 다른 글
| NGÓI SPACE (0) | 2022.04.08 |
|---|---|
| Casamia Community House (0) | 2022.04.06 |
| ESCENARIO SHIROKANE (0) | 2022.03.23 |
| CAFE FOV (0) | 2022.03.22 |
| SUOBOOKS (0) | 2022.03.17 |
마실와이드 | 등록번호 : 서울, 아03630 | 등록일자 : 2015년 03월 11일 | 마실와이드 | 발행ㆍ편집인 : 김명규 | 청소년보호책임자 : 최지희 | 발행소 : 서울시 마포구 월드컵로8길 45-8 1층 | 발행일자 : 매일



