
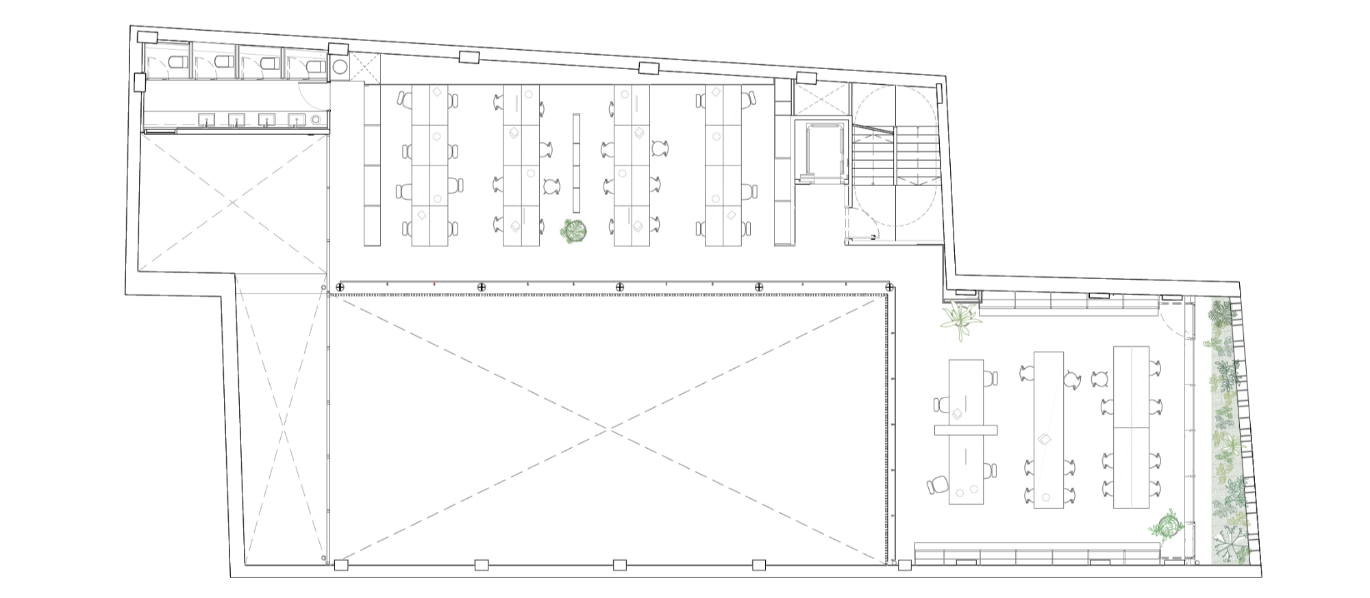
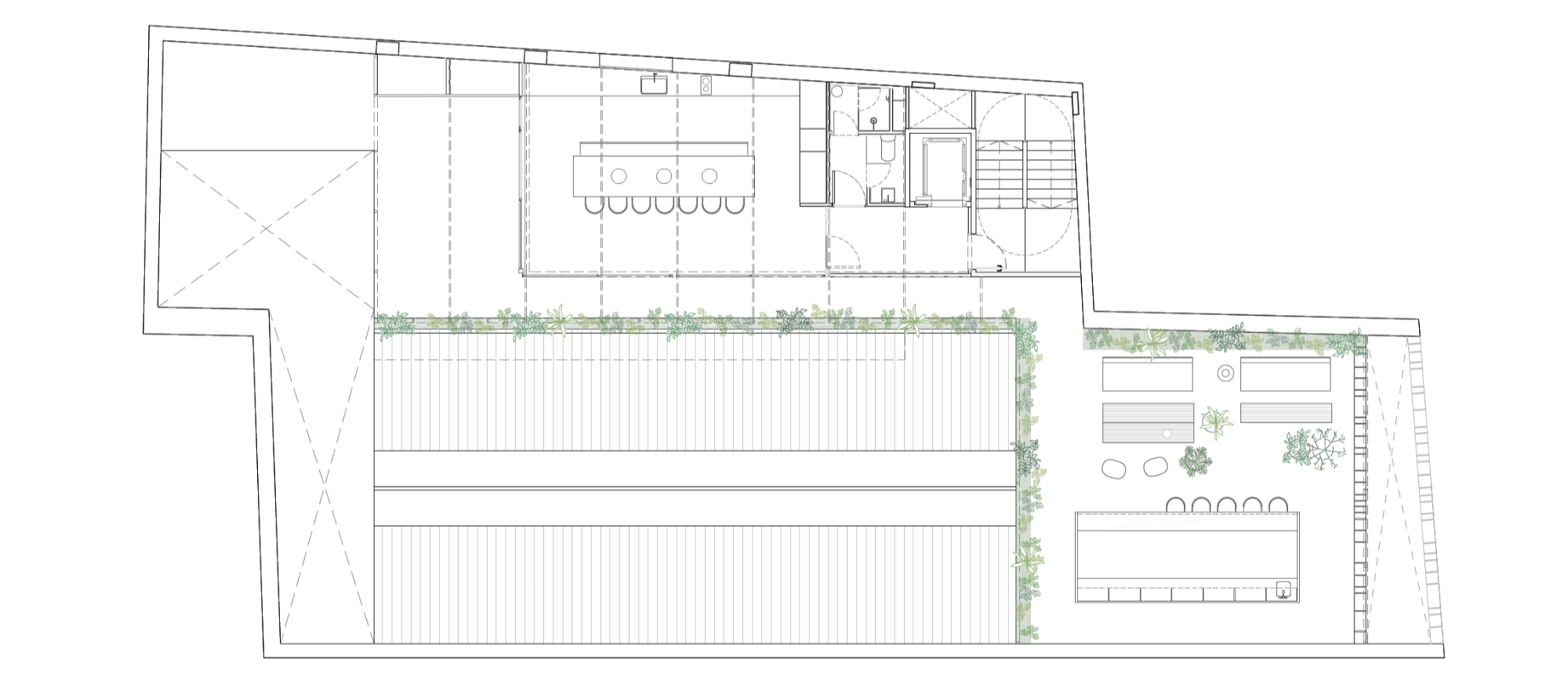
SOLER Project was developed in a particular space: an old warehouse next to an annexed area in the back, in Palermo, neighborhood, in Buenos Aires city, Argentina. The building had to contain the offices, deposits and exhibit areas for a Company, that designs and trades textile products. The proposal aimed to create an intimate world of its own, maintaining the diverse activities and company’s assets, in a dense urban context. One of the main project design themes was the construction of emptiness as a resource to integrate people and work teams. Among this, the void emerges as a revealing resource of diverse experiences and artistic interventions based on textile design, the central company’s hub.
Through the enhancement and recycling of the warehouse a huge volume was created to place the main room, where the company’s product exhibition and diverse events take place, and alternative work spaces are conceived. This great empty luminous space, let us work in various scales and renew it by providing additional uses. Two levels were built on the adjoining property where the closed offices and workstations are located. The new construction is delicately juxtaposed without competing or fading. Large windows, high ceilings, and work-optimized open floor plans mark the territory where creative thinking unfolds. The facade, facing the street, is presented silently. Transparent and opaque at the same time, it is constituted by reflective vertical columns of irregular rhythm, creating a plastic sensation at the look of the eye. Behind, a terrace with great vegetation multiplies with the reflective game. With a translucent configuration, the facade strips the building from its frontal perspective, while as passing through, it becomes quiet, giving space to the lush vegetation.

Soler Textiles Office는 아르헨티나 부에노스아이레스 시에 있는 팔레르모의 오래된 창고에서 개발되었다. 이 건물에는 섬유 제품을 설계하고 거래하는 회사의 사무실과 전시 공간이 있어야 했다. 이 제안은 밀도 높은 도시 맥락에서 다양한 활동과 회사의 자산을 유지하면서 자신만의 친밀한 세계를 만드는 것을 목표로 했다. 프로젝트 설계의 주요 테마 중 하나는 사람과 작업팀을 통합하는 자원으로서의 공허함을 구성하는 것이었다. 그 중 보이드는 기업의 중심인 섬유 디자인을 기반으로 다양한 경험과 예술적 개입의 자원으로 등장한다.
창고의 증축과 재활용을 통해 회사의 상품 전시회와 다양한 행사가 열리는 메인 공간을 배치하기 위한 거대한 볼륨을 만들고 대체 작업 공간을 했다. 이 광활한 공간을 다양한 스케일로 작업하고 추가적인 용도를 제공하여 새롭게 리모델링했다. 폐쇄된 사무실과 워크스테이션이 위치한 인접한 건물 위에 두 개의 층이 증축됐다. 새로운 건물은 섬세하게 나란히 배치되어 있다. 큰 창문, 높은 천장, 그리고 작업에 최적화된 탁 트인 평면은 창의적인 사고가 펼쳐지는 영역을 나타낸다. 거리에 면해 있는 정면이 조용히 펼쳐져 있다. 투명함과 불투명함을 동시에 불규칙한 리듬의 반사 수직 기둥으로 구성되어 있어 조형적 감각을 나타낸다. 뒤편에는 초목이 우거진 테라스가 반사적으로 어우러져 있다. 반투명 구성의 파사드는 무성한 초목이 자랄 수 있는 공간을 제공한다.





























Design ANA SMUD
Location Palermo, Buenos Aires, Argentina
Covered area 1,210㎡
Semi-covered area 15㎡
Uncovered area 205㎡
Construction start 2017
Completion 2019
Project team Ana Sol Smud, Alberto Smud, Sasha Molczadzki, Camila Jalife, Agustina Falcón, Milagros Ratto, Leila Matzkin.
Lighting consultant Pablo Pizarro
Landscaping consultant Estudio Bulla
Builder Alberto Smud
Interior design Agustina Gentilli, Marilina Martignone, Taller Numeros Primos, Huup lighting, Helmut furniture, Sticotti, Herbarium plants, Broca furniture.
Photographer Fernando Schapochnik
'Interior Project > Office' 카테고리의 다른 글
| Oficinas Maflow Spain Automotive (0) | 2022.06.10 |
|---|---|
| Shin Eo Ji Dang (0) | 2022.05.25 |
| EG (0) | 2022.02.10 |
| D-A Studio in Infante Santo Avenue, Lisbon (0) | 2022.01.27 |
| Purun Office (0) | 2022.01.24 |
마실와이드 | 등록번호 : 서울, 아03630 | 등록일자 : 2015년 03월 11일 | 마실와이드 | 발행ㆍ편집인 : 김명규 | 청소년보호책임자 : 최지희 | 발행소 : 서울시 마포구 월드컵로8길 45-8 1층 | 발행일자 : 매일



