
Infante Santo Avenue is placed on the tangency of the old Necessidades Palace, linking the plateau where the Basilica and the Garden of Estrela are located, to the banks of the Tagus River. It was opened, in 1949, following the Plan Director for Lisbon, coordinated by the Russian-Polish urbanist Étienne de Gröer. The new axis, thought as a circular road on the perimeter of the historical city, was ripped throughout an accidental topography producing a tabula-rasa of the existent urban fabric. The arches of the former eighteenth-century aqueduct were also demolished, creating areas for modern movement architecture experiences that featured Lisbon, since the 1950s.
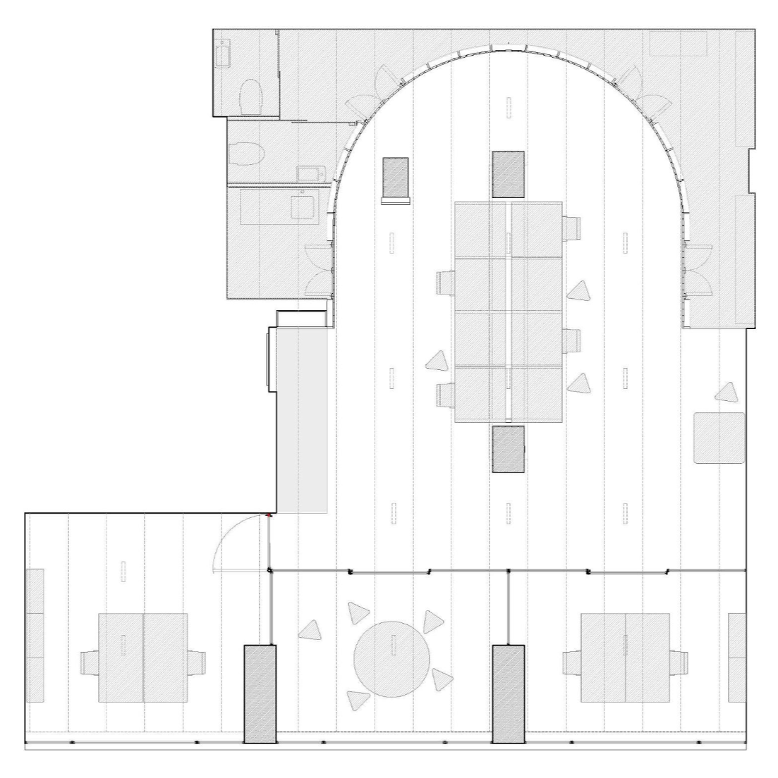
D-A Studio [Domitianus-Arquitetura, Lda] is integrated in a multifunctional building, designed by Miguel Pestana and Nuno Vieira da Fonseca, in 1964, as part of the plan of the new boulevard. The twelve-floor block disposes of a square garden in front of it, resulting from its deployment in place. A double high celling arcade characterize the building entrance level, providing a passageway with stores and coffee shops. D-A Studio is in the first level of this gallery, opening itself to the surroundings through wide glassed windows. Inside there is a peculiar atmosphere resulting from the smooth light filtered by the arcade space.
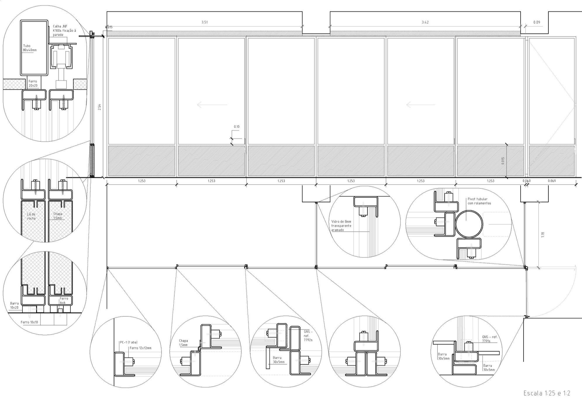
The project took advantage of this circumstance. A sequence of three-room offices occupies the closer strip to the windows, releasing the central area as the main working space. Steel frame panels and glass provide the transparency of offices, allowing the continuity of the natural light inside the Studio.
In the opposite side there is a curved wood wall delimiting the core of the Studio. This tectonic wall, which suggest an apse, hides the functional areas - the pantry, the toilets, and the storeroom. The concrete structure of the building was used to support a large working table that occupies the Studio open space. The pillars surfaces were tiles coated, reflecting light brightness, and softening its presence in the middle of the space. The pavement and ceiling acoustic surfaces neutrality enhance the contrast between the cool temperature of tiles, and the warm coziness of wood, provides diversity in the space ambience.
At night the Studio is revealed to the outside. Electric led lights up the space recreating the x-ray effect, exposing the Studio intimacy to the Avenue frenzy.

D-A Studio는 12층 규모의 건물 1층에 위치해 있다. 앞에는 정사각형의 정원이 있고, 이중 높이의 셀링 아케이드는 건물 입구 레벨을 특징짓고 상점과 카페가 있는 통로를 제공한다. 스튜디오는 넓은 유리창을 통해 주변 환경에 개방되어 있다. 내부는 아케이드 공간에 의해 걸러지는 부드러운 빛으로 인해 독특한 분위기가 감돈다.
이 프로젝트는 이러한 상황을 이용했다. 방 3개로 구성된 사무실은 창에 더 가까운 스트립을 차지하여 중앙 영역을 주요 작업 공간으로 사용한다. 스틸 프레임 패널과 유리는 사무실의 투명도를 제공하여 스튜디오 내부의 자연광에 자연광을 끌어들인다. 반대쪽에는 스튜디오의 핵심을 구분하는 구부러진 나무 벽이 있다. 후진(後陣, Apse: 교회(성당) 건축에서 가장 깊숙히 위치해 있는 부분으로서, 내진 뒤에, 주보랑에 둘러싸인 반원형 공간)을 암시하는 이 구조적 벽은 탕비실, 화장실 및 창고와 같은 기능적 영역을 숨겨준다. 건물의 콘크리트 구조는 스튜디오의 열린 공간을 차지하는 큰 작업 테이블을 지지하는 데 사용된다. 기둥 표면은 타일로 코팅되어 빛을 반사한다. 노면과 천정 음향 표면의 중립성은 타일의 시원한 온도와 나무의 따뜻한 아늑함 사이의 대비를 강화하여 공간 분위기의 다양성을 제공한다.
밤에는 스튜디오가 외부에 공개된다. 전기 LED가 공간을 밝혀 엑스레이 효과를 재현하여 스튜디오의 친밀함을 거리에 노출시킨다.















Architects D-A Studio(Domitianus- Architecture, lda)
Principal architect Paulo Tormenta Pinto, Rosa Maria Bastos
Completion 2021
Carpentry Antonio Daniel
Steel structures Armindo Fragoso
Constructor Belmiro Teixeira
Networks Nuno Inácio
Photographer Inês d’Orey
'Interior Project > Office' 카테고리의 다른 글
| Soler Textiles Office (0) | 2022.03.18 |
|---|---|
| EG (0) | 2022.02.10 |
| Purun Office (0) | 2022.01.24 |
| Cabinette Co-Working (0) | 2022.01.24 |
| CONISHA showroom & office (0) | 2022.01.20 |
마실와이드 | 등록번호 : 서울, 아03630 | 등록일자 : 2015년 03월 11일 | 마실와이드 | 발행ㆍ편집인 : 김명규 | 청소년보호책임자 : 최지희 | 발행소 : 서울시 마포구 월드컵로8길 45-8 1층 | 발행일자 : 매일



