
CONISHA is a Korean cosmetics brand that specializes in the research and development of skincare products with importance in the basics and ingredients. Their journey, which began in 013, was not fast as they insist on only good ingredients, but they are building customer satisfaction and achieving growth every year at their own pace.
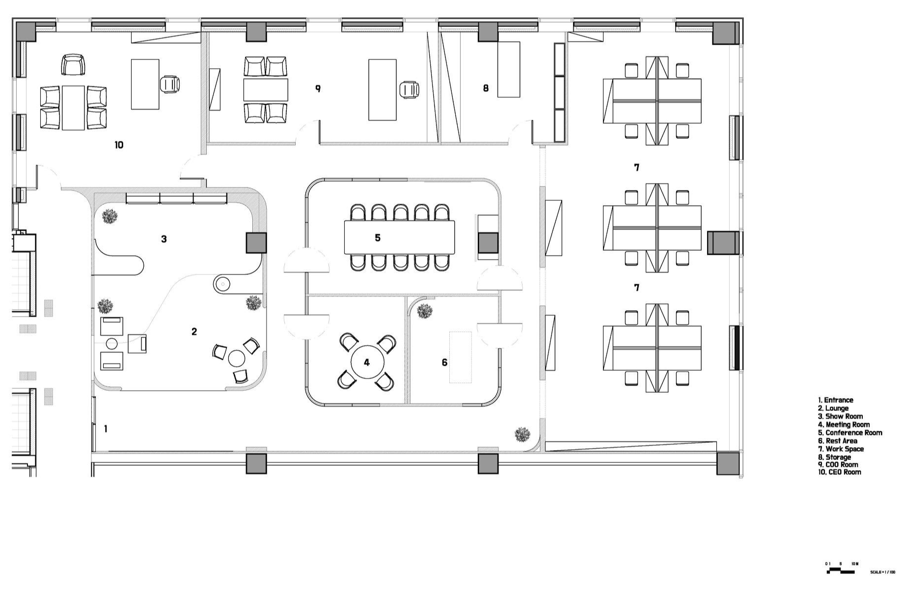
CONISHA office shows aggressive marketing will to the extent that 99m² out of the 360m² space is made up of showrooms and meeting spaces. A lot of thought was given to show the sentiment of the brand CONISHA, and to be able to show a professional and trendy sentiment in the area of the buyers visiting CONISHA or the employees inside.
As a brand specializing in skincare products, the atmosphere and texture of the finishing materials of the interior design were aimed to be shown as natural as possible. In addition, the configuration of showrooms with video conferencing in mind, which has become more useful in the era of COVID19, was made to emphasize the image of the brand as much as possible in marketing meetings with global buyers.
A total of 12 curved walls were applied to CONISHA office. The curved shapes using wood, metal, and glass express the physical properties of the material as it is, and also show the brand’s image of pursuing easy accessibility even though despite being high-quality products, and at the same time creates a natural circulation flow in the space. Of course, as per the basic nature of an office, a separate rest space is also reflected in consideration of the privacy, relaxation, convenience and comfort of the workers.
There are some essential matters that must exist in an office as long as the interior space permits.
That is to create a free work environment by separating the circulation of executives and employees, and to plan a pleasant space that can be used as a space for communication and healing outside of the work area.
In that sense, CONISHA’s lounge that is connected to the showroom, hopes to become a pleasant space for its users.

코니샤는 기본과 성분에 중요성을 두고 화장품을 연구, 개발하는 대한민국 기초화장품 전문 브랜드다.
코니샤 오피스는 360㎡의 공간 중에 99㎡의 면적에 쇼룸과 미팅공간을 구성하고 있다. 코니샤를 방문하는 바이어들이나, 직원들의 영역에서 화장품 분야에 전문적이고, 트랜디한 감성을 보여줄 수 있는 브랜드가 지닌 감성을 보여주고자 했다. 재료를 중요시하는 기초화장품 전문 브랜드인만큼, 인테리어 디자인에서도 마감재가 갖고 있는 분위기와 질감을 최대한 자연스럽게 보여주고자 했다. 또한, 코로나 시대에 활용도가 높아진 화상회의를 염두에 둔 쇼룸 구성은 세계 바이어들과의 마케팅 회의에서도 브랜드의 이미지를 최대한 부각시켜줄 수 있도록 했다.
코니샤 오피스에는 총 12개의 곡선벽체가 적용되었다. 나무와 금속 그리고 유리를 사용한 곡선의 형태들은 재료 그대로의 물성을 표현하기도 하며, 완성도 높은 제품임에도 쉬운 접근성을 추구하는 브랜드의 이미지를 보여줌과 동시에, 공간에서 자연스러운 동선의 흐름을 만들어 주기도 한다. 물론, 오피스라는 기본 성격에 맞추어 업무의 편의성과 쾌적성 그리고 근무자의 프라이버시와 휴식을 고려한 별도의 휴게공간도 반영되어 있다.















Design STUDIO IMA
Location Cheongna-dong, Seo-gu, Incheon, Republic of Korea
Design team Jaehyeon Ahn, Hoyong Lee, Yeonghyeon Kim
Building area 360㎡
Design period 2021. 07
Completion 2021. 09
Constructor STUDIO IMA
Client CONISHA
Photographer STUDIO IMA
Floor finish pvc tile
Wall finish easy clean plaint + texture paint
Ceiling finish vp
'Interior Project > Office' 카테고리의 다른 글
| Purun Office (0) | 2022.01.24 |
|---|---|
| Cabinette Co-Working (0) | 2022.01.24 |
| Moët Henness (0) | 2022.01.17 |
| Microsoft House (0) | 2022.01.04 |
| Goodman Castellana Offices (0) | 2021.12.21 |
마실와이드 | 등록번호 : 서울, 아03630 | 등록일자 : 2015년 03월 11일 | 마실와이드 | 발행ㆍ편집인 : 김명규 | 청소년보호책임자 : 최지희 | 발행소 : 서울시 마포구 월드컵로8길 45-8 1층 | 발행일자 : 매일



