
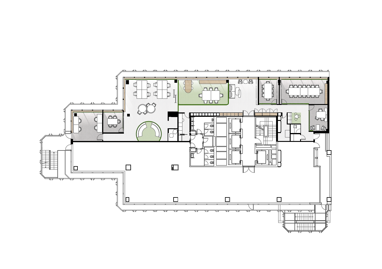
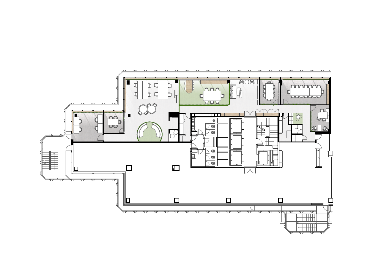
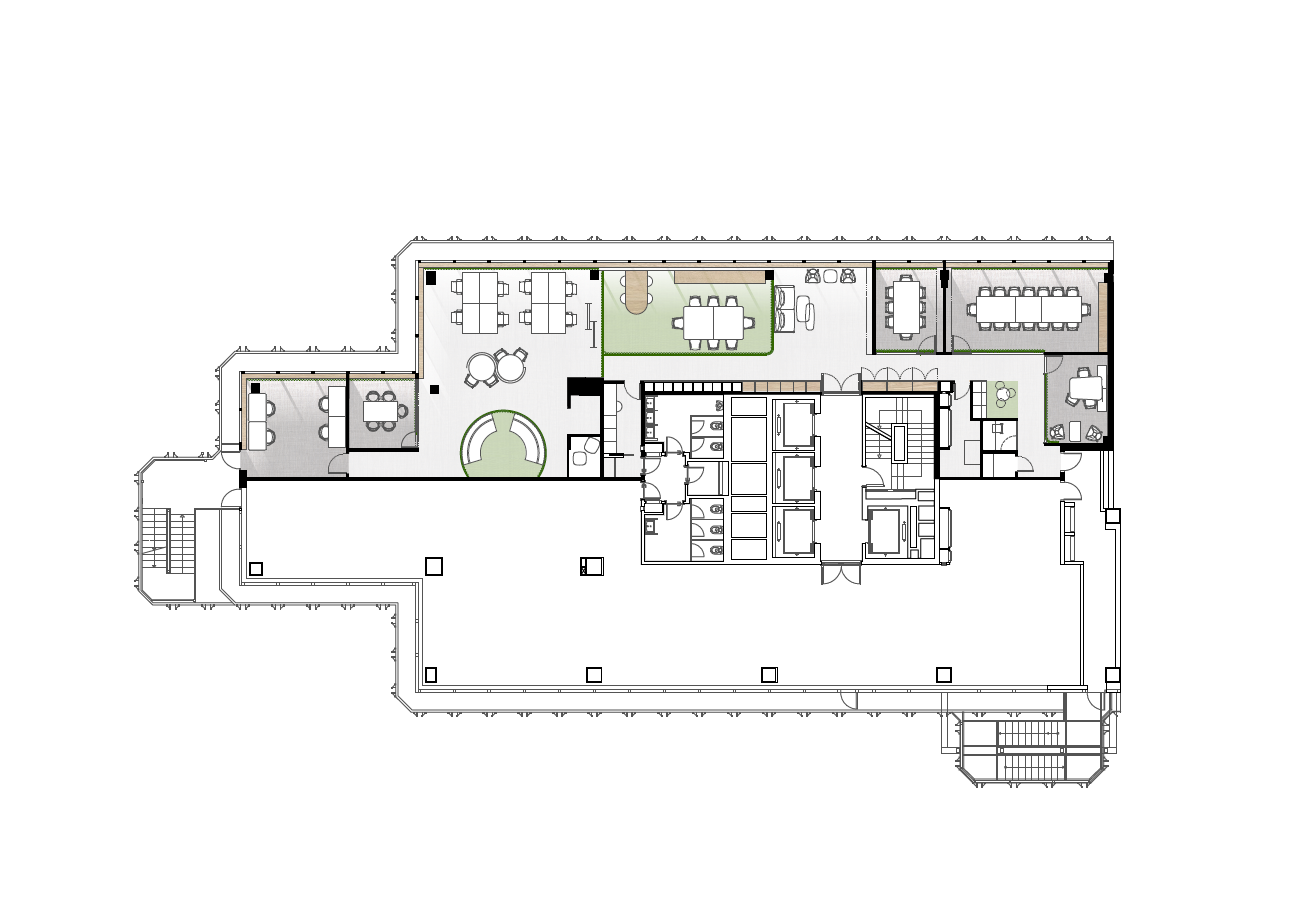
The main characteristic of the new Goodman offices in the Paseo de la Castellana in Madrid is to respond to the new demands of the workspaces in these days and age.
The space is divided into two work areas, one for exclusively private use and a work area (meeting rooms) where visitors are received. These two spaces are joined by the Open Space which is a large open, and flexible space where all kinds of activities are combined. This space serves as a reception, a leisure room, a dining room, for spontaneous meeting rooms.
There are no fixed workstations, there is no paper, and the need to combine teleworking results in multifunctional spaces that are configured and used according to different needs.

스페인 마드리드 Paseo de la Castellana에 있는 새로운 Goodman 사무실의 주요 특징은 이 시대의 작업 공간의 새로운 요구에 부응하는 것이다.
공간은 2개의 작업 공간으로 나뉜다. 하나는 독점적으로 사용하는 작업 공간이고 다른 하나는 방문객을 접대하는 미팅룸이다. 이 두 공간은 크게 열린 공간과 모든 종류의 활동이 결합된 유연한 공간으로 연결된다. 이 공간은 리셉션, 레저 룸, 식당, 즉석 회의 공간으로 사용된다.
고정된 워크스테이션도 없고 종이도 없으며 재택근무를 결합해야 하는 필요성으로 인해 다양한 요구에 따라 구성되고 사용되는 다기능 공간이 생긴다.















Architects ZOOCO ESTUDIO
Location Madrd, Spain
Completion 2020
Design team Miguel Crespo Picot, Javier Guzmán Benito, Sixto Martín Martínez
Collaborator María Larriba, Jorge Alonso
Construction NIMBO PROYECTOS SL
Illlumination ZOOCO ESTUDIO
Furniture ZOOCO ESTUDIO
Photographer Imagen Subliminal
'Interior Project > Office' 카테고리의 다른 글
| Moët Henness (0) | 2022.01.17 |
|---|---|
| Microsoft House (0) | 2022.01.04 |
| BLUE Communications (0) | 2021.12.16 |
| Office PUUR interior architects (0) | 2021.12.08 |
| Baksters Office (0) | 2021.12.02 |
마실와이드 | 등록번호 : 서울, 아03630 | 등록일자 : 2015년 03월 11일 | 마실와이드 | 발행ㆍ편집인 : 김명규 | 청소년보호책임자 : 최지희 | 발행소 : 서울시 마포구 월드컵로8길 45-8 1층 | 발행일자 : 매일



