
MUN Architects transforms a 4 story shop house into a computer vision business support office. Located in the middle of the hectic city of Bangkok, Thailand. The typical low ceiling shop house building has been reprogrammed and refurbished for Baksters. Started by emptying the building, removing some unwanted floor slabs, and keeping the original reinforced concrete post and beam structure. The timber walls are introduced as a buffer from the brick walls being used in the whole alley to create a sense of being enclosed by natural material.
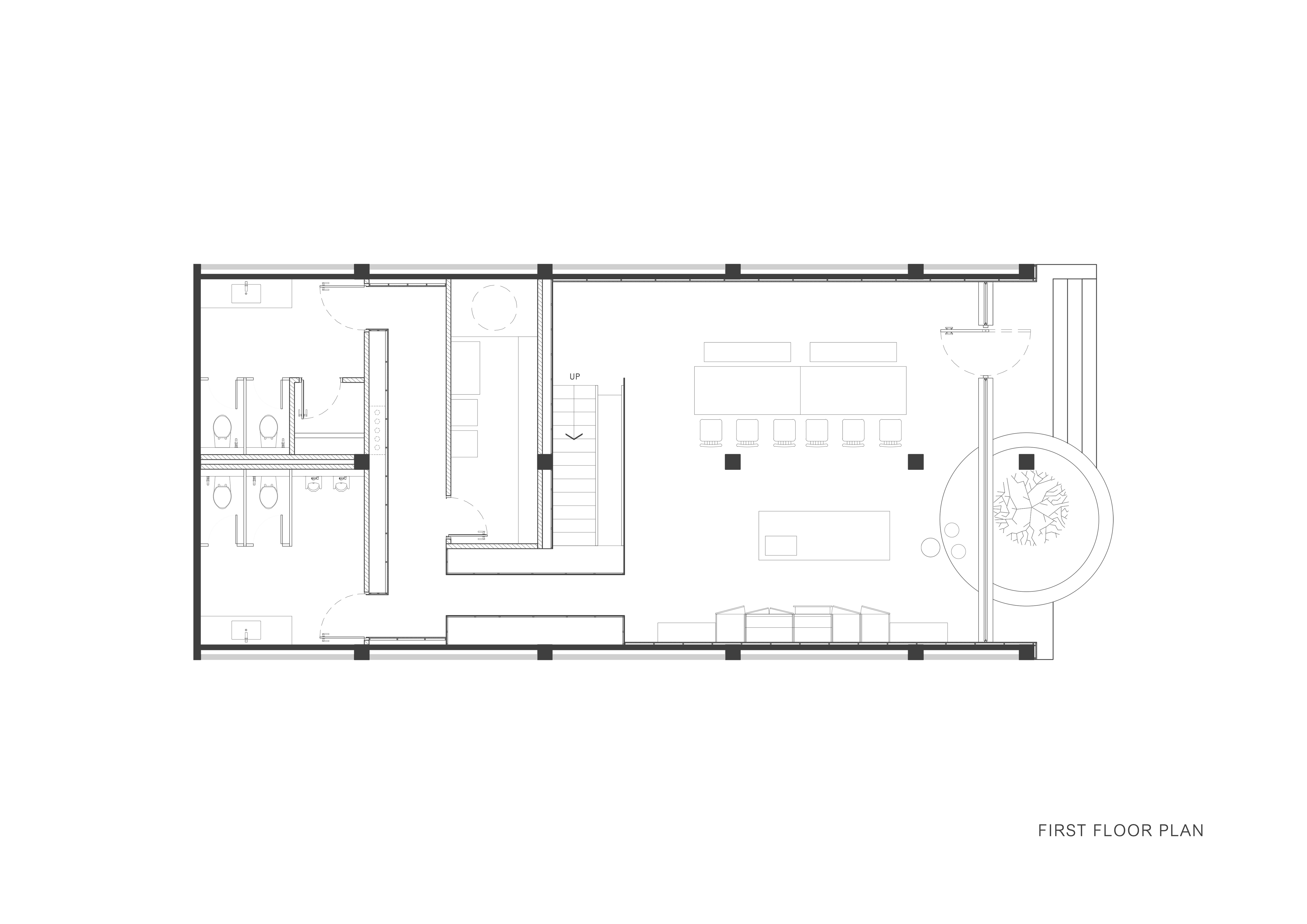
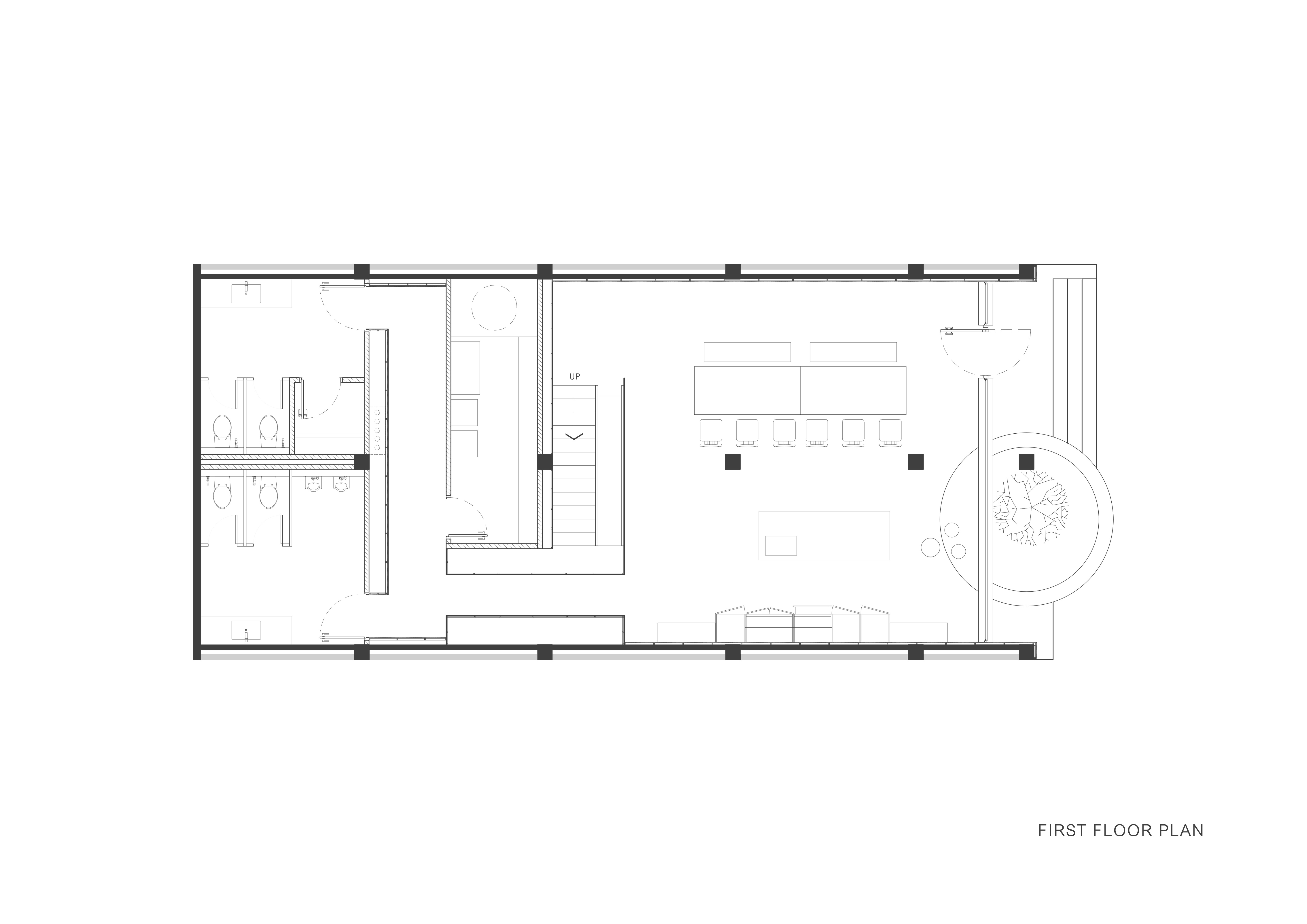
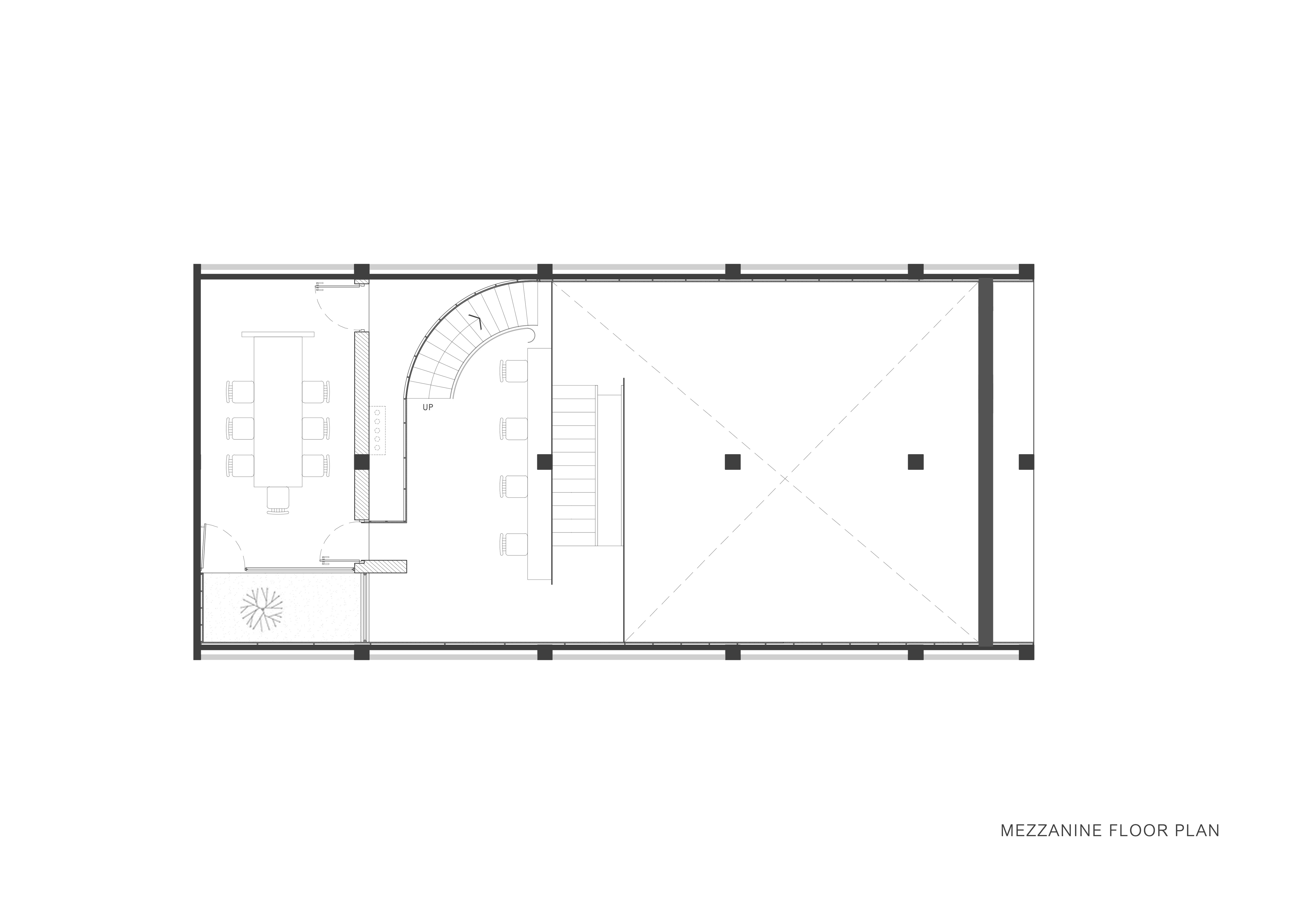
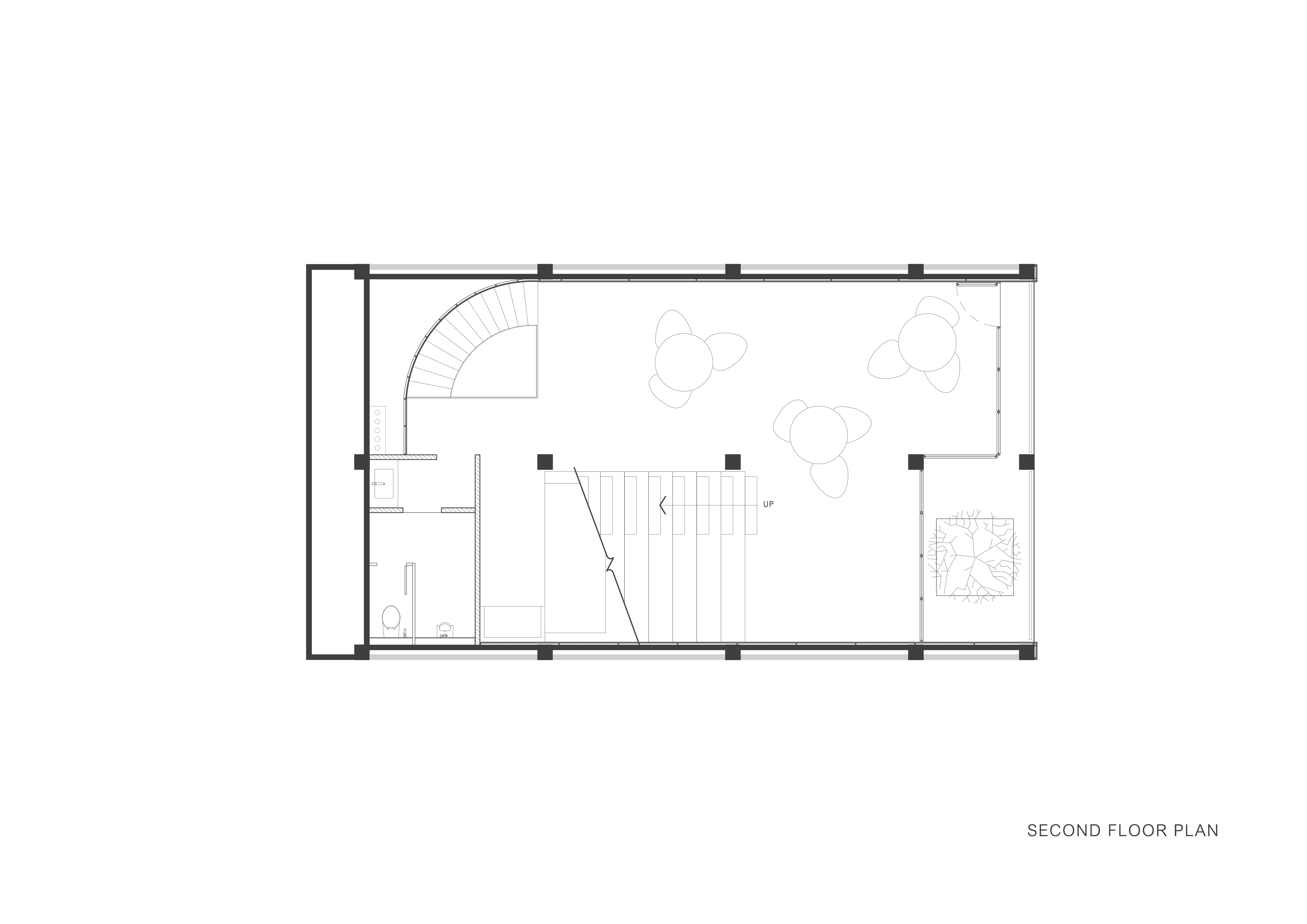
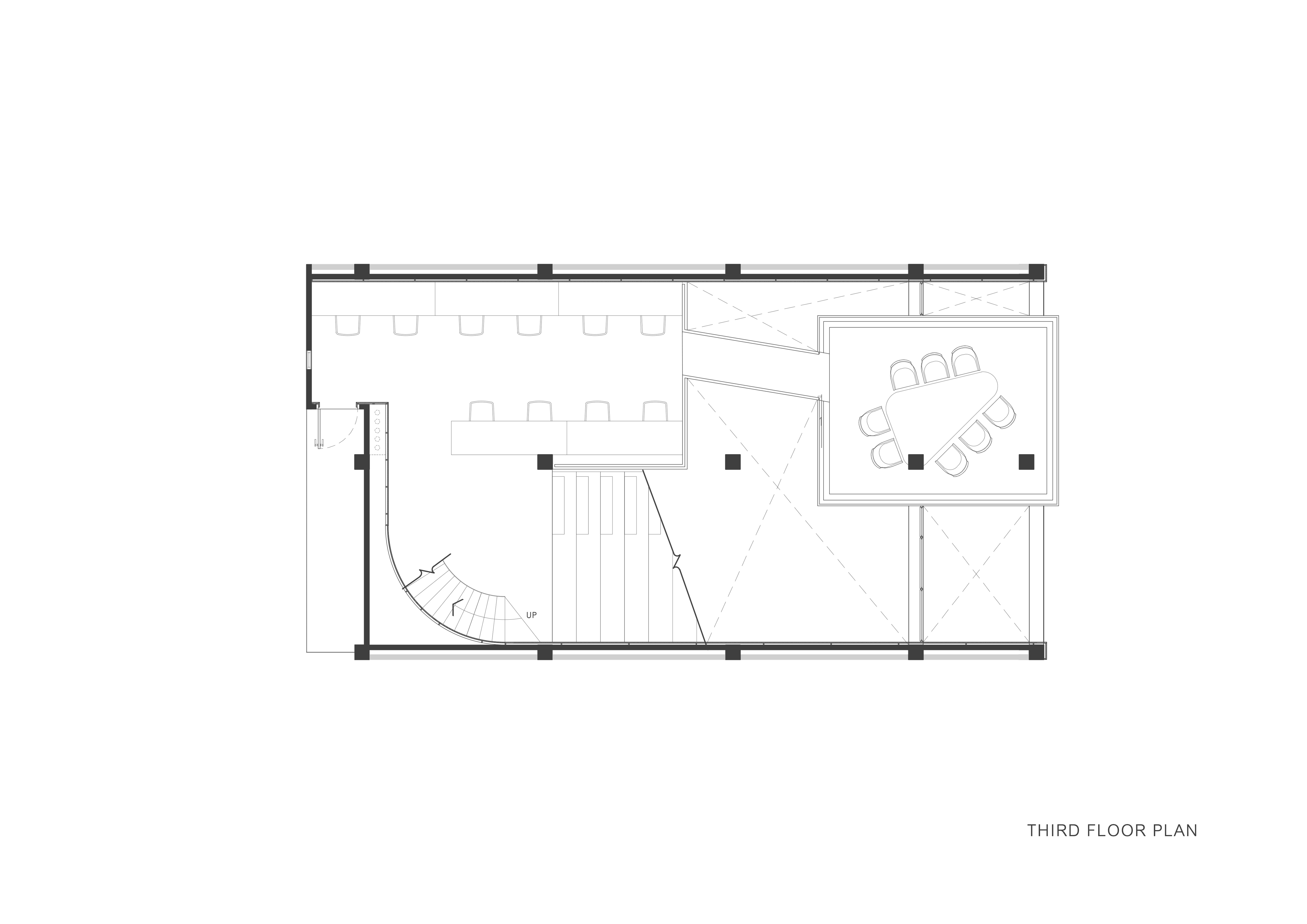
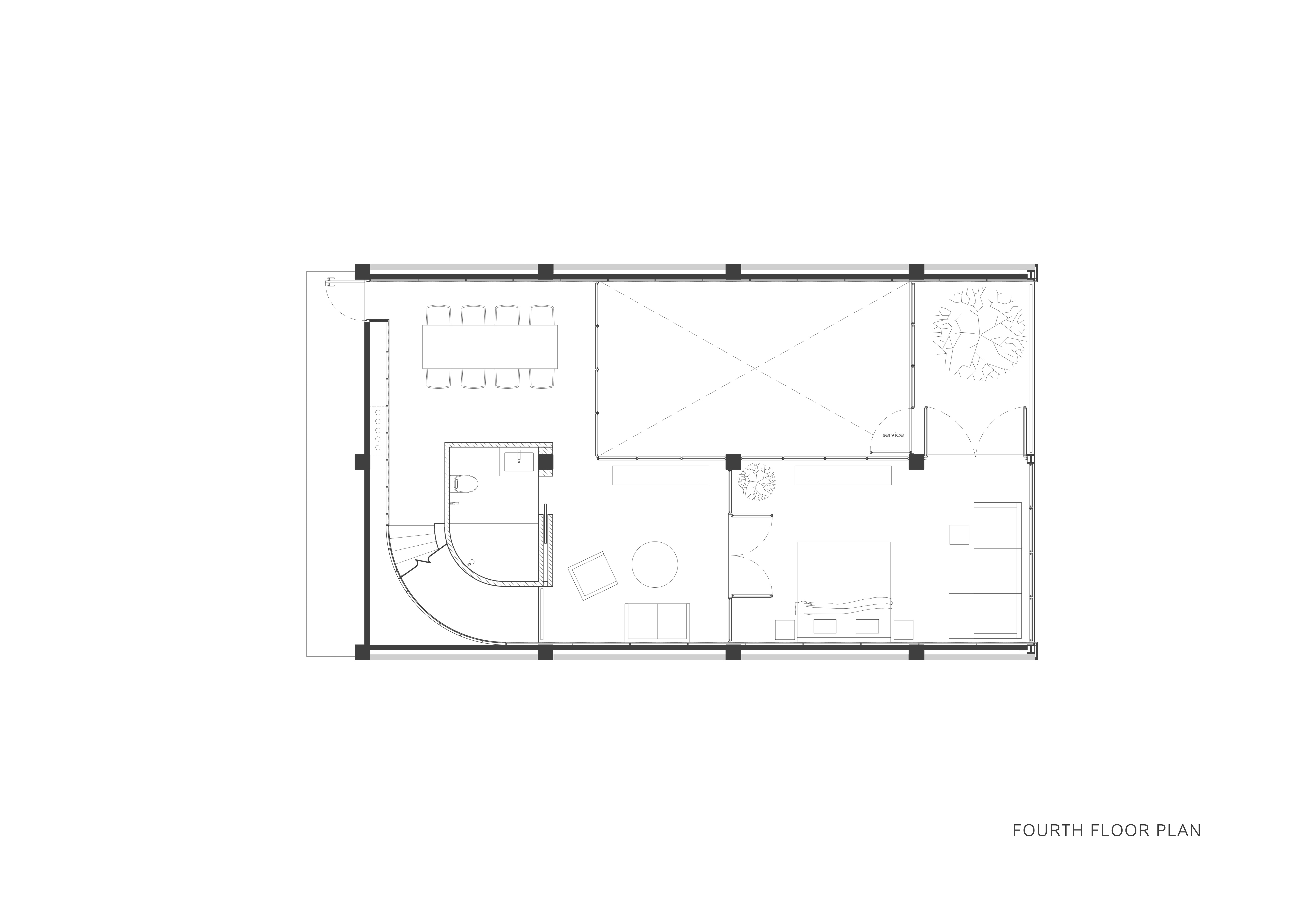
The sequence of going into the building has been reorganized. The first floor is the main dining area for staff. It can also be used for parties or events. At the mezzanine floor, a meeting room and desks are lightened up by natural light from a small enclosed opening space. When reaching the second floor, the first impression is to experience a tall space to the roof slab with a strip of a skylight casting shadows of the galvanized gratings on a vast timber wall. This is the only area that carpet tiles are used. This common space will turn into a workshop for children during the weekend. The corporate colors are shown on the floor. Gradient blue, green, and a red circle are interpreted as water, forest, and the sun. The third floor is mainly for workstations with a connecting bridge as a transition space to the floating meeting room. All trees planted in the project are intended to be seen from every functional space within the building. When walking up through the curved staircase to the fourth floor, the staff will be welcomed by a small rectangle skylight giving a sense of intimacy to the narrow space. This floor is for a meeting room and a bedroom for staff who want to stay overnight.
Natural lights play the main role in interior spaces. The staff can experience how lights react when filtered by leaves, galvanized gratings, fabric, or when they come and move in different angles creating patterns of shadows throughout the day. With the hope to create "consciousness" in oneself.

태국 방콕의 도심 한복판에 위치한 Baksters Office는 4층짜리 상가를 컴퓨터 비전사업 지원 사무실로 탈바꿈한 프로젝트다. 전형적인 낮은 천장의 상점 건물은 Baksters를 위해 리모델링됐다. 건물을 비우고 일부 바닥 슬래브를 제거하고 원래의 철근 콘크리트 기둥과 보 구조를 유지하는 것으로 시작했다. 골목 전체에 사용되는 벽돌벽의 완충재로 목재 벽을 도입하여 천연소재로 둘러싸인 느낌을 연출했다.
건물로 들어가는 진입순서가 개편됐다. 1층은 직원들의 메인 다이닝 공간이다. 파티나 이벤트에도 사용할 수 있다. 메자닌 층의 회의실과 책상은 폐쇄된 작은 개방 공간에서 들어오는 자연광으로 환하게 밝혀져 있다. 2층으로 올라가면 넓은 목재 벽에 아연 도금 격자의 그림자를 드리우는 채광창이 있는 지붕 슬래브까지의 높은 공간을 경험할 수 있다. 이것은 카펫 타일이 사용되는 유일한 공간이다. 이 공용 공간은 주말 동안 아이들을 위한 작업실로 바뀐다. 바닥에 회사의 색상이 표시되어 있다. 파랑, 초록, 빨강 원의 그러데이션은 물, 숲, 태양으로 해석된다. 3층은 주로 플로팅 회의실로의 전환 공간으로 연결 다리가 있는 워크스테이션이 주를 이룬다. 프로젝트에 심어진 모든 나무는 건물 내의 모든 기능 공간에서 볼 수 있도록 의도됐다. 곡선형 계단을 통해 4층으로 올라가면 좁은 공간에 친밀감을 주는 작은 직사각형 채광창이 직원들을 반긴다. 이 층은 회의실과 숙박을 원하는 직원을 침실이 있다.
자연광은 실내 공간에서 중요한 역할을 한다. 직원은 나뭇잎, 아연 도금 격자, 천으로 걸러지거나 또는 빛이 왔다 갔다 하여 하루 종일 그림자 패턴을 만드는 다른 각도로 움직일 때 어떻게 반응하는지 경험할 수 있다. 자신 안에 "의식"을 만들어 내고자 하는 희망과 함께.
























Architects MUN Architects
Location Bangkok, Thailand
Program Shophouse renovation, Office
Site area 155㎡
Building area 150㎡
Gross floor area 420㎡
Building to land ratio 96%
Design period 2020. 02 - 2020. 06
Construction period 2021. 02 - 2021. 10
Completion 2021.10
Principal architect Podjanarit Nimitkul, Charunwat Mauleekulprairoj
Project architect Krissada Tansunsathien
Design team Sasiwan Panya, Ruchira Sawaengphet, Phatcharapong Paiprasert
Structural engineer Work of Work Co.,Ltd.
Mechanical engineer Work of Work Co.,Ltd.
Electrical engineer Work of Work Co.,Ltd.
Construction Work of Work Co.,Ltd.
Client Baksters Co.,Ltd.
Photographer Soopakorn Srisakul
'Interior Project > Office' 카테고리의 다른 글
| BLUE Communications (0) | 2021.12.16 |
|---|---|
| Office PUUR interior architects (0) | 2021.12.08 |
| Pontevedra Town Hall Offices (0) | 2021.11.24 |
| Recollective Inc. Office (0) | 2021.11.19 |
| STGM Architects Head Office (0) | 2021.11.18 |
마실와이드 | 등록번호 : 서울, 아03630 | 등록일자 : 2015년 03월 11일 | 마실와이드 | 발행ㆍ편집인 : 김명규 | 청소년보호책임자 : 최지희 | 발행소 : 서울시 마포구 월드컵로8길 45-8 1층 | 발행일자 : 매일



