
신어지당은 더 시너지스트의 공간 이름이다.
新語之堂 즉, 새로운 공간언어를 고민하고 창출하기 위해 모인 디자이너 집단 및 공간이라는 의미를 가지고 있다.
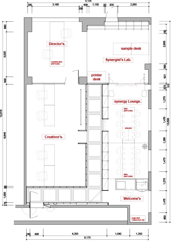
이 공간을 디자인함에 있어 전이공간(轉移空間)은 이 곳에서 저 곳으로의 동적 이동의 개념뿐 아니라 이러함에서 저러함으로의 심적 변화의 개념을 고민하고 그것을 공간화하고자 하였다. 어쩌면 몇 걸음, 몇 초 일지 모르는 그 순간이 이 전과 다름을 느끼게 하는 전이공간을 디자인하였다. 그러한 의미에서 전이공간은 명상적이기도, 철학적이기도 하며 가볍기도 무겁기도 하다. 공간을 설계할 때 가변성을 둔다는 것은 행위의 다양성을 수용한다는 것과 공간에 재미를 부여한다는 것, 서로 다른 시간대의 역할을 교차시키는 것이다. 가변성을 충족시키기 위해서는 행위에 대한 분석과 심리에 대한 관찰, 기술적 해결과 심미적 절충이 요구된다. 가변적 요소로서의 45도 거울은 전이공간의 90도로 꺾인 벽 너머를 인지하게 하고, 서비스 공간의 불필요한 시각적 노출을 덮어주며, 전체 공간의 인상을 만든다. 전이공간 바닥은 징검다리 같은 바닥재와 그 사이를 채우는 화산석을 계획하였다. 힘을 들이지 않고 걸음 폭을 바꾸지 않고도 사이사이의 화산석을 인지하며 걸음을 내디딜 때 낮은 조도 속에서 자신의 걸음에 집중하게 되며 외부와의 자연스러운 심리적 전환을 통해 공간 변화를 인지시키고자 하였다. 업무공간을 디자인할 때, 업무를 보는 공간만큼이나 중요한 공간이 완충 공간이다. 다양한 방식으로의 업무 형태를 지원하고, 다양한 방향으로의 사고를 유발하며, 어떠한 행위도 강요하지 않는 일상과 업무의 경계 그 어디쯤에서 완충 역할을 해줄 공간이 필요하며 신어지당에서는 다실이 그 역할을 한다. 혼자의 다실은 명상 같은 공간이며, 여럿의 다실을 마당 같은 공간이다. 하나의 기능만이 아닌 행위와 목적, 시간을 수용할 수 있는 다목적 공간으로서의 다실을 계획하였다. 다실을 계획함에 있어 공간의 가변성은 필수적이었다. 미팅이나 회의뿐 아니라 특강, 세미나 등 공간에서 일어날 다양한 프로그램을 수용할 수 있도록 공간의 확장성을 고민하였다. 그 방법을 우리의 전통 디테일에서 찾았다.
“안고지기문”
미닫이와 여닫이를 복합화 한 이 방식에서 기인해 다실과 샘플실 두 공간은 확장 및 중첩되어 공간에 기능과 재미를 더한다. 다실을 오를 때 무릎을 편하게 해주는 공간의 요소인 낮은 계단으로 다듬이 돌을 두었다. 쓰임을 다했다고 버려질 수 있는 어떤 것들도 바라보는 이에 의해 그 쓰임이 달라질 수 있음에 대해 디자이너는 한 번 더 깨달아야 하지 않을까 하는 의도에서 계획하였다. 어떤 이에겐 수 십 년 간, 단정하게 주름을 펴고 근심을 쏟아내 두들겨대는 일상의 물건이었을 다듬이 돌이, 신어지당에서는 공간의 한 요소가 되어 이 곳을 오르내리는 이의 움직임을 돕는다. 신어지당의 벽 마감재는 합판으로 계획하였다. 합판의 면을 그대로 노출해 날 것의 기분을 취하기도 하고, 합판에 묵직하게 올린 색은 먹과 같은 어둠을 취한다. 이렇게 같은 재료를 다른 느낌으로 보여주며, 공간을 통일감 있으면서도 다채롭게 느끼도록 하였다.신어지당의 업무 공간 외의 공간은 조명을 최소화하여 계획하였다. 빛과 형태가 만드는 그림자가 공간 여기저기에서 나름의 존재감을 드러내는 시간에 집중할 수 있음이 그 이유이다.

Synergy Space is the name of the space of the Synergist.
The Synergist (新語之堂, Shin Eo Ji Dang) has the meaning of a space and group of designers gathered to debate and create a new spatial language'. In designing this space, we gave a lot of thought to the transition space and spatializing not only the concept of physical movement form one place to another but also the concept of psychological change from being in one state to another. The transition space was designed so that that moment, which could be just a few steps of a few seconds, could make one feel different from before. In that sense, the transition space is both meditative and philosophical, as well as light and heavy. Giving variability when designing a space means accommodating the diversity of actions, adding interest to the space, and intersecting the roles of different times. Achieving variability requires analysis of behavior, observation of psychology, technical solutions, and aesthetic compromise. The 45-degree mirror as a variable element allows one to perceive beyond the 90-degree angled wall, covers unnecessary visual exposure of the service space, and creates an impression of the entire space. The floor of the transition space was planned with a floor material that resembles stepping stones and volcanic rocks filling the space between them. The aim was to make one concentrate on their own footsteps under the low light as they effortlessly step forward without having to change their stride, acknowledging the volcanic rocks, and to allow one to perceive the spatial change through the natural psychological transition from the outside. When designing a workspace, the buffer space is just as important as the actual workspace. There is a need for a space that can support various forms of work, inspire various ways of thinking, and does not impose any action. A space that is somewhere along the boundary between daily life and work, and a space that can act as a buffer zone. For the Synergist, this is the tea room. Alone, the tea room is a meditation space, and for many people, it is a space courtyard-like space. The tea room was planned as a multipurpose space that can accommodate not just function, but also action, purpose, and time. Variability of space was essential in planning the tea room. We considered the expandability of the space to accommodate not only meetings and conferences, but also various programs such as special lectures and seminars. We found the solution in Korea's traditional details.
“Angojigi Door”
Due to this method, which combines a sliding door and a hinged door, the tea room and the sample room are expanded and overlapped, adding function and amusement to the space. A fulling stone was placed as a low stairway, which is an element of the space that relaxes the knees. This element was planned by the designer as a reminder that all things that can be thrown away as they no longer have a use can also be used in a new way depending on the viewer. The fulling stone, which would have been an everyday object that some may have used for decades to smooth out wrinkles and pour out their concerns while beating the clothes, becomes an element of space in the Synergist and helps those going up and down this place. The wall finish of the Synergist was planned with plywood. Some faces of the plywood are exposed to provide a raw feeling, and some were heavily colored to give a darkness. In this way, the same materials are presented in different ways, making the space feel unified yet diverse. All spaces other than the workspace of the Synergist were designed to have minimal lighting. The reason for this is that one can focus better when the shadows created by light and form reveal their own presence throughout the space.














Design : the Synergist
Construction : the Synergist
Location : 26 Seongbuk-ro 6-gil. Seoungbuk-gu, Seoul, South Korea
Gross floor area : 110m2
Project Scope : 2F
Completion : 2021
Photographer : Kiwoong Hong
'Interior Project > Office' 카테고리의 다른 글
| mude office (0) | 2022.09.19 |
|---|---|
| Oficinas Maflow Spain Automotive (0) | 2022.06.10 |
| Soler Textiles Office (0) | 2022.03.18 |
| EG (0) | 2022.02.10 |
| D-A Studio in Infante Santo Avenue, Lisbon (0) | 2022.01.27 |
마실와이드 | 등록번호 : 서울, 아03630 | 등록일자 : 2015년 03월 11일 | 마실와이드 | 발행ㆍ편집인 : 김명규 | 청소년보호책임자 : 최지희 | 발행소 : 서울시 마포구 월드컵로8길 45-8 1층 | 발행일자 : 매일



