
The primary goal of this design was to incorporate abundant views of nature into the living space of the residents, enriching their daily life. This residence melts into the landscape on an equal standing with natural elements, balancing relaxed comfort and stillness.
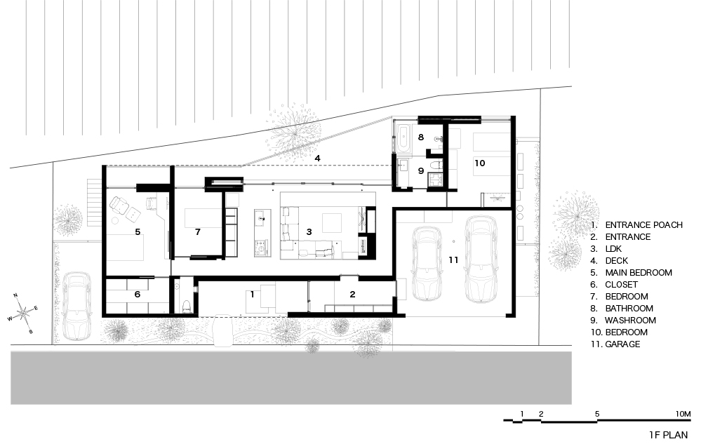
The exterior has a simple beauty that blends seamlessly into its natural surroundings. At the same time, its strength sets off the secondary nature (gardens) created by the resident, a landscape designer. The man-made stream running through the front garden plays an important role in linking the residential neighborhood with the surrounding natural environment of Tsukuba. Mt. Tsukuba towers beyond broad plains in this rice-growing region of Ibaraki Prefecture. The shape of the property dictated a simple floor plan with rooms arranged in a line parallel to the street, offering views of the landscape from anywhere in the house. Because part of the site was sloped, it would normally have been necessary to build a retaining wall to prepare the site for building. We took advantage of the situation by instead creating a floor that juts out from the foundation to “float” in midair. The elevated, open living space and balcony naturally draw the eye to the rice fields and forest visible in the distance, encouraging awareness of the changing natural world, connection to the broader universe, and one’s place as part of nature.
In contrast, the living room floor is sunken, so that when sitting on the sofa to look outside, one has the sense of being immersed in nature. Small variations as the design moves smoothly from living room, up a step, and onto the deck mimic the ambiguous boundaries when moving from den-like-interior to veranda to garden in a traditional Japanese home, while also crafting diverse situations for experiencing the connection to nature. In addition to making use of the natural landscape, we planted an eight-meter-tall hackberry tree on the north side of the deck terrace, enhancing the sense of depth when looking out from the living room. The client’s addition of “secondary nature” around the house further enlivens the space. The combination of an elegant modern design with natural materials such as wooden furniture and a stone volume above the fireplace allows architectural beauty and natural beauty to balance each other and set each other off to best advantage.
The design makes maximum use of natural light and ventilation, with air conditioning playing a backup role. High-quality insulation is another element that lowers the home’s environmental impact. Respecting nature and living modestly are crucial for protecting the environment, and we believe they are within reach for everyone.

빌라 츠쿠바는 풍부한 자연 경관을 거주 공간으로 통합하여 일상생활을 풍요롭게 만드는 집이다. 이 집은 자연 요소와 동등한 위치에서 풍경에 녹아들어 편안함과 고요함의 균형을 유지하는 공간이다.
외관은 단순한 아름다움으로 자연환경과 매끄럽게 조화를 이룬다. 동시에, 그 강점은 조경 디자이너인 건축주가 만들어낸 2차적 자연(정원)으로 이어진다. 정원에 흐르는 인공 수로는 주거 공간과 츠쿠바의 주변 자연환경을 연결하는 중요한 역할을 한다. 벼농사 지역인 이바라키현의 넓은 평야 너머로 츠쿠바산이 우뚝 솟아 있다. 대지의 형태에 따라 거리와 평행하게 방을 배치한 이 집은 집 안 어디에서나 풍경을 볼 수 있다. 부지의 일부가 경사져 있었기 때문에 일반적으로 건축할 부지에 옹벽을 건설해야 했겠지만, 대신 기초에서 공중에 “떠 있는” 바닥을 만드는 것으로 조건을 활용했다. 높고 열린 생활 공간과 발코니는 자연스럽게 멀리 보이는 논과 숲으로 시선을 끌어 변화하는 자연을 감상하고, 더 넓은 우주와의 연결을 유도하며 자연의 일부로서의 개인의 위치에 대한 인식을 상기시킨다.
반면, 거실 바닥은 움푹 패여 있어 소파에 앉아 밖을 내다보면 자연 속으로 빠져드는 듯한 느낌을 받을 수 있다. 거실에서 계단 위쪽으로 한 층, 그리고 데크로 자연스럽게 이동하는 작은 변형은 전통적인 일본 주택의 서재 인테리어에서 베란다, 정원으로 이동할 때 모호한 경계를 모방하는 동시에, 자연과의 연결을 경험할 수 있는 다양한 상황을 만든다. 자연경관을 살리는 것 외에도, 데크 테라스 북쪽에 8m 높이의 팽나무를 심어 거실에서 밖을 내다볼 때의 깊이감을 더했다.
건축주의 집 주변에 “2차적인 자연”이 추가되어 공간이 더욱 활기를 띠게 되었다. 우아하고 모던한 디자인과 목재 가구 등의 천연 소재와 벽난로 위의 석조 볼륨의 조합은 건축미와 자연미가 서로 균형을 이루고 장점만을 살려준다.
자연 채광과 통풍을 최대한 활용할 수 있도록 계획하여 에어컨은 보조 역할을 한다. 고품질 단열재는 주택이 환경에 미치는 영향을 줄이는 또 다른 요소이다. 자연을 존중하고 겸손하게 생활하는 것은 환경을 보호하는 데 중요하며, 우리는 이것이 모두의 손에 달려 있다고 믿는다.












Architects Naoi Architecture & Design Office
Location Ibaraki Prefecture, Japan
Program Single family House
Building area 311.32㎡
Gross floor area 156.54㎡
Design period 2018. 12 - 2019. 11
Construction period 2019. 12 - 2021. 1
Completion 2021. 1
Principal architect Katsutoshi Naoi, Noriko Naoi
Structure Wooden, Steel
Structural engineer Nawaken gym
Interior design Naoi Architecture & Design Office
Landscape design sora-niwa
Photographer Hiroshi Ueda
해당 프로젝트는 건축문화 2021년 12월호(Vol. 487)에 게재되었습니다.
The project was published in the December, 2021 recent projects of the magazine(Vol. 487).
December 2021 : vol. 487
Contents : RECORDS MESSAGES OF SYMBIOSIS, CONNECTION, AND BALANCE WITHOUT WALLS 구획을 벗어나 보여지는 공생, 연결, 균형의 메시지들 : NEWS / COMPETITION / BOOKS : SKETCH VLADIVOSTOK S..
anc.masilwide.com
'Architecture Project > Single Family' 카테고리의 다른 글
| WALDEN HOUSE (0) | 2022.03.10 |
|---|---|
| GANGHOEHEON (0) | 2022.03.08 |
| TELLURIDE GLASS HOUSE (0) | 2022.03.07 |
| Summmoru (0) | 2022.03.07 |
| HOUSE VIEW (0) | 2022.03.03 |
마실와이드 | 등록번호 : 서울, 아03630 | 등록일자 : 2015년 03월 11일 | 마실와이드 | 발행ㆍ편집인 : 김명규 | 청소년보호책임자 : 최지희 | 발행소 : 서울시 마포구 월드컵로8길 45-8 1층 | 발행일자 : 매일



