
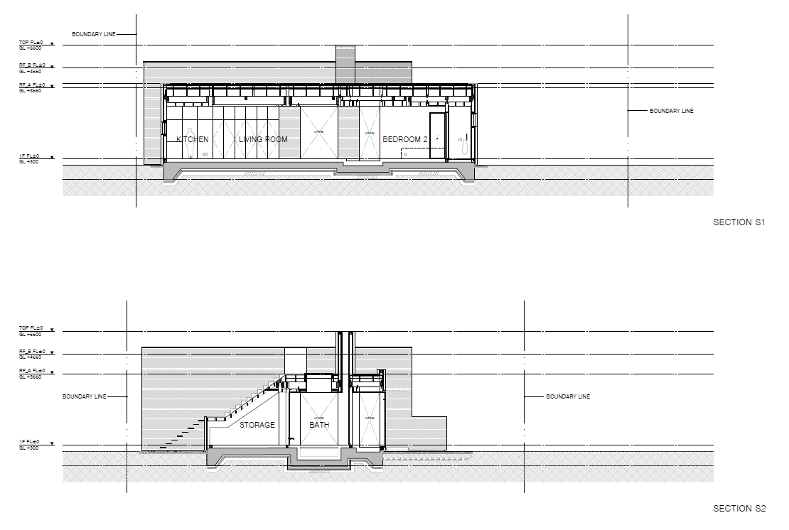
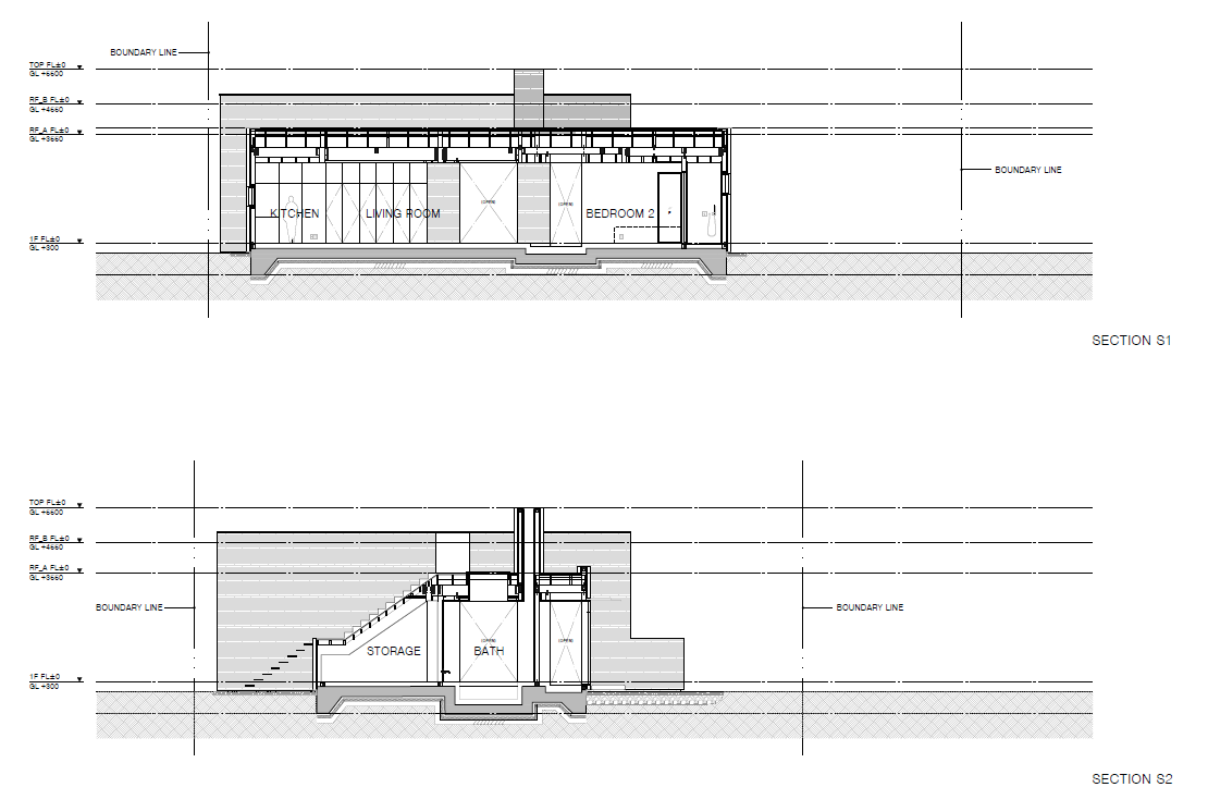
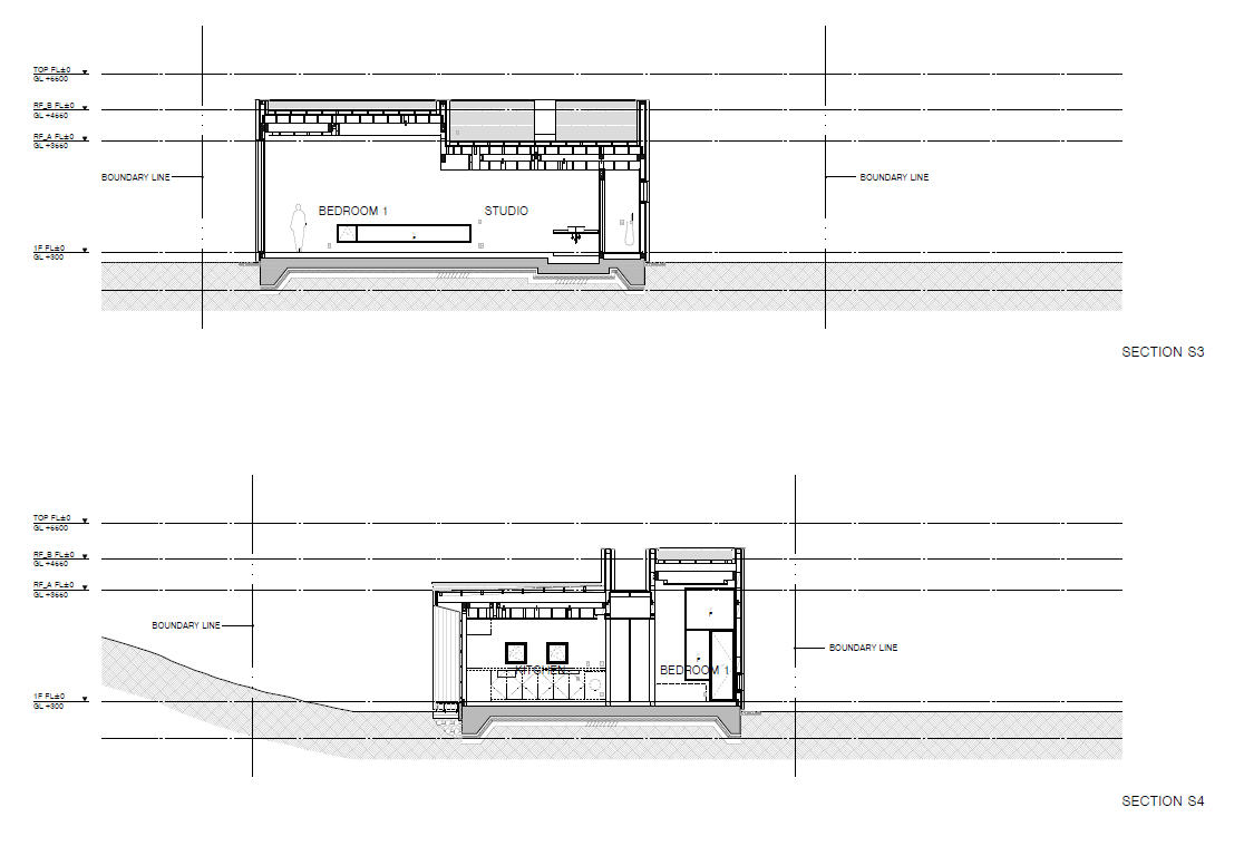
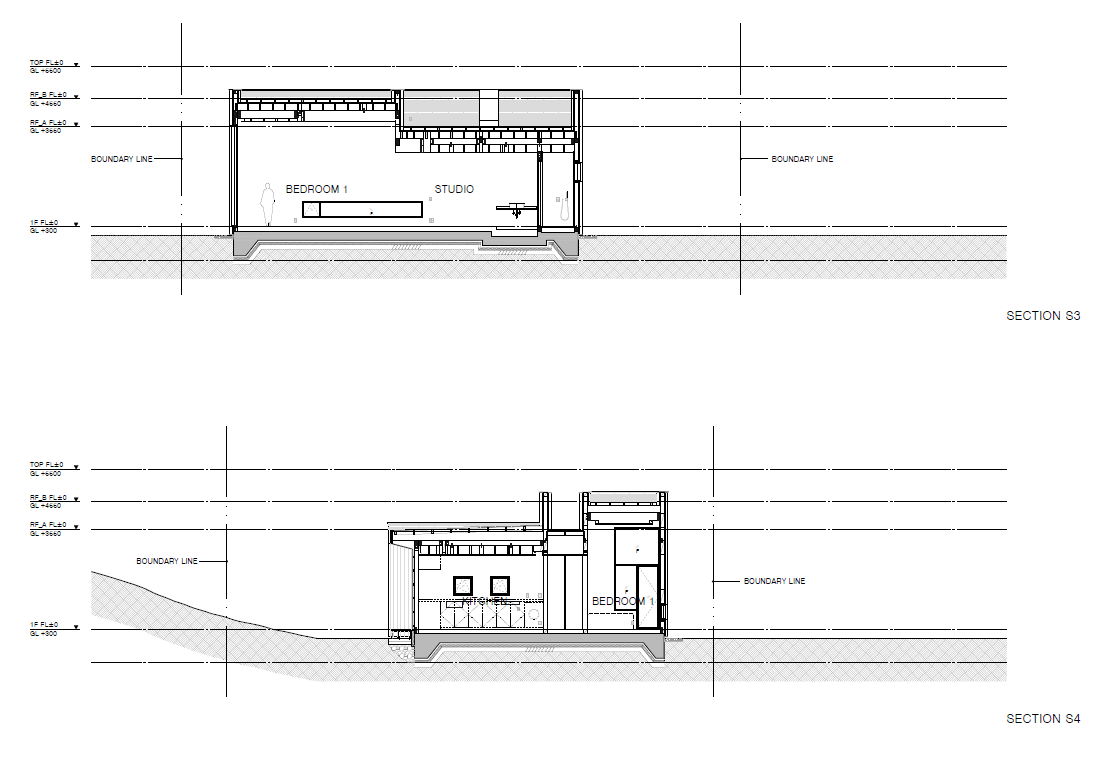
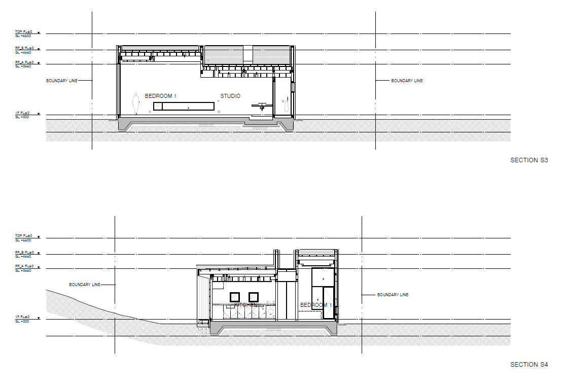
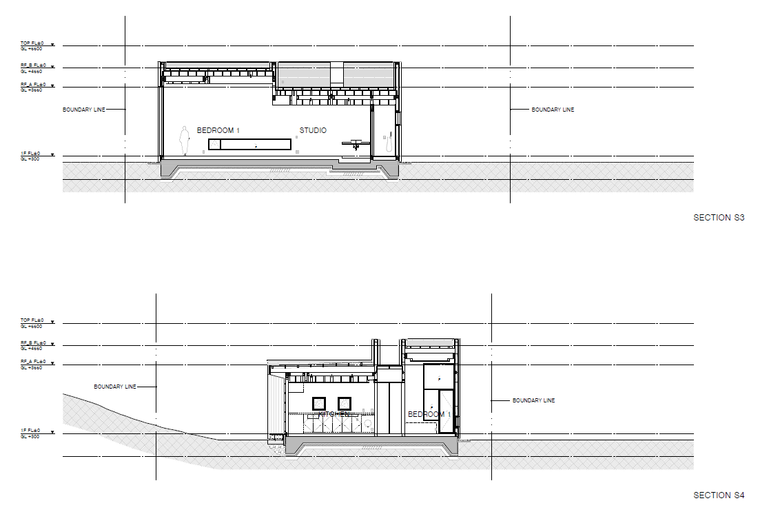
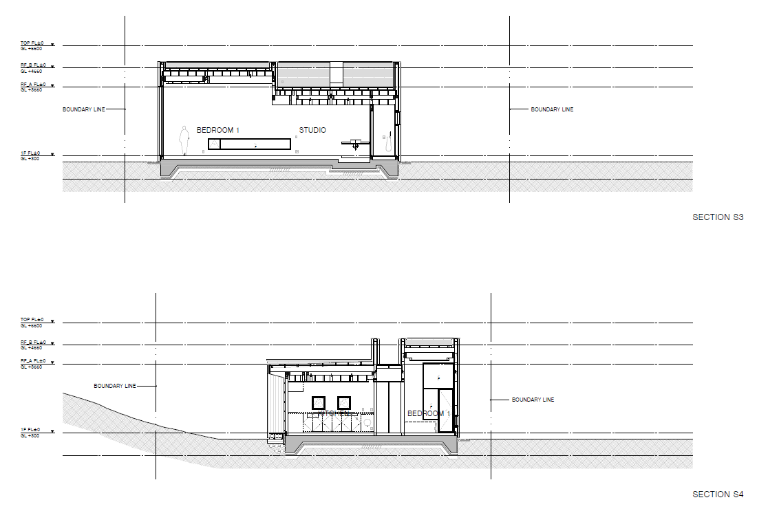
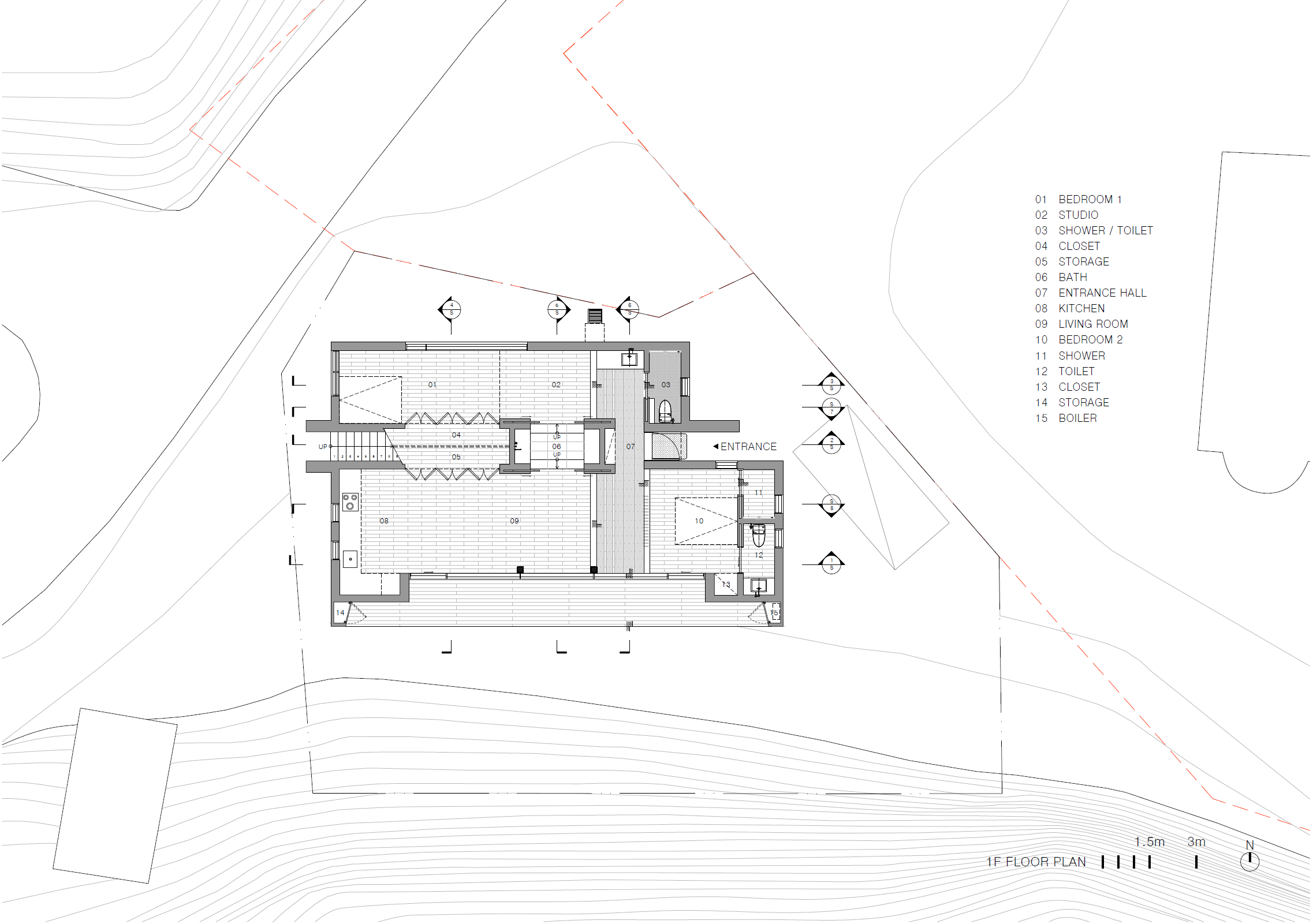
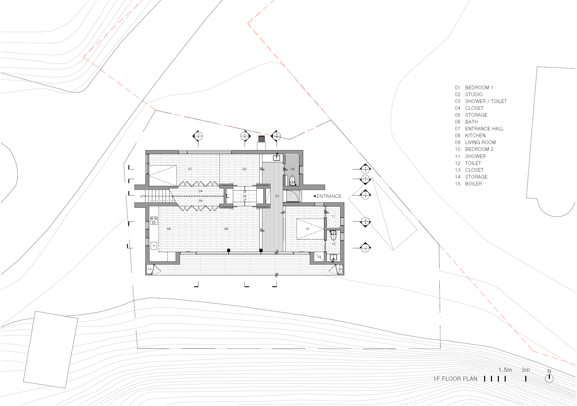
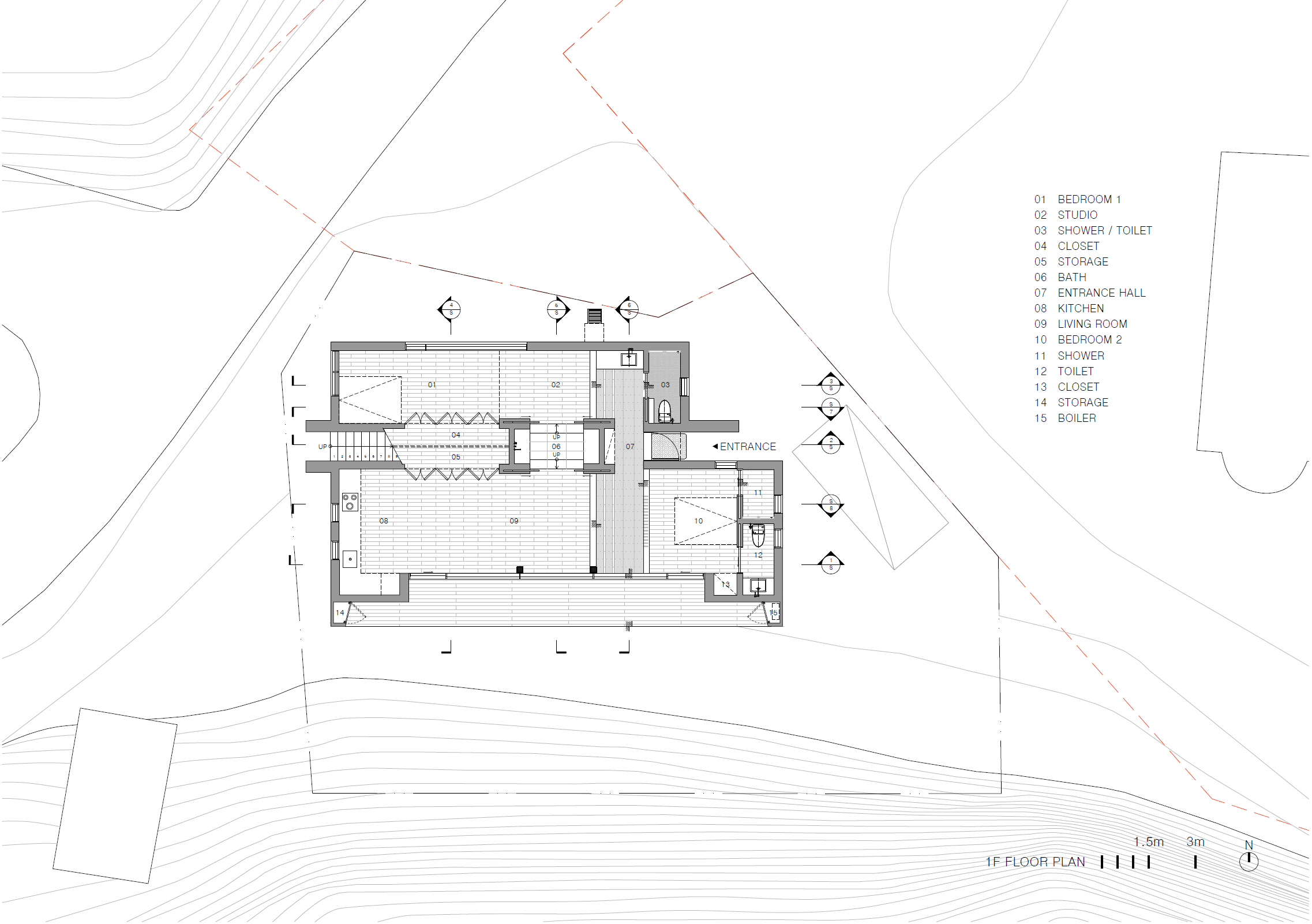
The “Summmoru” is located in Sagyeri, Andeok-myeon, Seogwipo-si, Jeju-do. Following the coast covered with basalt hammered by waves and entering the village, there is a site in front of a small, rough hill covered with grass swayed by the wind. After the first glance, the floor plan of this house, which seems ordinary, is actually a little different. The house is largely divided into two spaces, one side facing the rough hillside, and the other side with a tall window framing the high sky and sunset. All walls except in the toilets and warehouses have been removed so that the house can be used as a pleasant open space. However, the heights of the floor and ceiling were used to distinguish the rooms. ‘Bedroom 1’ and the ‘studio’ were divided by the height of the ceiling, and the ‘living room’ and ‘bedroom 2’ were separated by placing a lower corridor between them. The corridor was given a function by connecting the two spaces and the main entrance. ‘Bedroom 2’ is the master bedroom for the client, and a louver is used to cover a certain part of the space, but keeps the open comfortableness.
To divide it into two spaces, an external staircase was located on the center line and the lower part of the staircase was planned as a warehouse. The two spaces are not completely blocked because a bathtub is placed in the center to separate them and create a frame facing the rough hillside. The eaves and decks were planned by pushing a part of the house over a long horizontal window to protect it from rain, wind, and the sun allowing a view out over the rough hills while avoiding rain from the outside. The external staircase leading to the rooftop goes through the open space after leaving the house, and on the staircase on both sides of the narrow and high wall, you can climb up completely looking at the sky. When you arrive at the rooftop, you can see the unfolding sky and the rough hills from a high prospect. In addition, the sea on the north side, which was blocked by the surrounding buildings, is finally visible, and the intentional solo of nature through architecture can be appreciated once again as an integrated orchestra.
After the construction work was over, landscapers came in to build stone walls and clear the site during construction. In order to connect the rough hills and house a little closer, the walls that were previously piled up as the boundaries of the hills were trimmed, and the rough hills and the house are harmonized through the landscaping.

‘섬모루’ 주택은 제주도 서귀포시 안덕면 사계리에 위치한다. 파도에 부딪히는 현무암으로 덮인 해안을 따라오다 마을 안쪽으로 들어오면 바람에 흔들리는 풀로 덮인 작고 거친 언덕이 있고 그 바로 앞, 대지가 자리한다. 북동측으로 산방산이 잘 보이며 남측에 거친 언덕을 마주한다. 언덕, 하늘, 노을, 풀, 바다, 산방산으로 나누어 계획하기로 했다. 얼핏 평범해 보이는 이 집의 평면은 사실 조금 색다르다. 집을 크게 두 개의 공간으로 나누어 한쪽은 거친 언덕을 향하여 가로로 긴 통창을, 한쪽은 높은 하늘과 노을을 볼 수 있도록 세로로 높은 통창을 배치했다. 약 100m2(약 30평) 규모의 집을 쾌적한 열린 공간으로 사용할 수 있도록 화장실과 창고를 제외한 모든 벽을 없앴다.
하지만 실은 구분할 수 있도록 바닥과 천장의 높낮이를 활용했다. ‘침실-1’과 ‘스튜디오’는 천장의 높낮이로 구분했으며, ‘거실’과 ‘침실-2’는 한 단 낮은 복도를 사이에 둠으로써 공간을 구분했다. 복도는 두 개의 공간과 주 출입구를 연계하여 기능을 부여했다. ‘침실-2’는 건축주의 주 침실로서 루버를 활용하여 일정 부분 가려주되 열려 있는 쾌적함을 유지하고자 했다. 두 개의 공간으로 나누기 위하여 중심선을 따라 외부 계단을 배치하고 계단 하부는 창고로 계획했다. 두 공간은 완전히 막지 않고 중앙에 욕조를 배치하여 구분하고 거친 언덕 쪽을 향한 프레임이 되도록 했다. 가로로 긴 통창 너머 비, 바람 그리고 태양으로 보호하기 위해 집의 일부를 밀어 넣는 방식을 통해 처마와 데크를 계획하고 외부에서도 비를 피하며 거친 언덕을 바라볼 수 있게 했다. 옥상으로 가는 외부 계단은 집을 나와 열린 공간을 지난 뒤 좁고 높은 벽이 양 옆에 있는 계단을 통해 온전히 하늘만을 보며 오르게 된다. 옥상에 오르면 펼쳐진 하늘을 볼 수 있도록 했으며, 거친 언덕을 높은 시선에서 볼 수 있다. 또한, 주변 건물들로 인해 가려졌던 북측 앞 바다가 비로소 보이게 되며 건축을 통한 의도적인 자연의 독주를 다시 한 번 통합적인 오케스트라로 감상할 수 있게 된다.
건축공사가 끝나고 조경공사가 들어와 돌담을 쌓고 공사 중 대지를 정리했다. 거친 언덕과 집은 조금 더 가깝게 연결될 수 있도록 기존에 언덕과 경계로 쌓여있던 담을 다듬고, 조경을 통해 거친 언덕과 집이 어우러진다. 거친 언덕이 집의 주인공이 되어 제주 방언으로 언덕을 뜻하는 모루라는 단어를 섬에 붙여 주택의 이름을 ‘섬모루’로 했다.













Architects NOMAL
Location Seogwipo-si, Jeju-do, Republic of Korea
Site area 332㎡
Building area 97.11㎡
Gross floor area 97.11㎡
Building scope 1F
Building to land ratio 29.25%
Floor area ratio 29.25%
Completion 2020. 01
Principal architect Seyeon Cho, Minyuk Chai, Bokki Lee
Project architect Seyeon Cho, Minyuk Chai, Bokki Lee
Mechanical engineer Chung Rim Engineering
Electrical engineer CunIL MEC
Construction TRUST Construction
Photographer Kyung Roh
해당 프로젝트는 리빙즈, 디테일 01호에 게재되었습니다.
The project was published in LIVINGS, Detail 01
[BOOK] LIVINGS, Detail 리빙즈, 디테일 01호, 02호
단행본 발행 67개의 형태와 라이프스타일을 담은 주거공간, 국내외 "디테일한 주택 프로젝트"의 엮음
www.masilwide.com
'Architecture Project > Single Family' 카테고리의 다른 글
| VILLA TSUKUBA (0) | 2022.03.08 |
|---|---|
| TELLURIDE GLASS HOUSE (0) | 2022.03.07 |
| HOUSE VIEW (0) | 2022.03.03 |
| O1 (0) | 2022.03.02 |
| Sena House (0) | 2022.02.21 |
마실와이드 | 등록번호 : 서울, 아03630 | 등록일자 : 2015년 03월 11일 | 마실와이드 | 발행ㆍ편집인 : 김명규 | 청소년보호책임자 : 최지희 | 발행소 : 서울시 마포구 월드컵로8길 45-8 1층 | 발행일자 : 매일



