
The location of the site is Songsan-ri, Dongmyeong-myeon, Chilgok- gun, Gyeongsangbuk-do, and is surrounded by factories, with the Jungang Expressway passing by. On the opposite side of the factories and the site, mountains and fields are beautifully spread out, making it appear as if things of opposite atmospheres are facing each other. The initial plans were inspired by the unique conditions of the location. Most importantly, we planned a detached house that did not at all mix with the site that sits amidst factories.
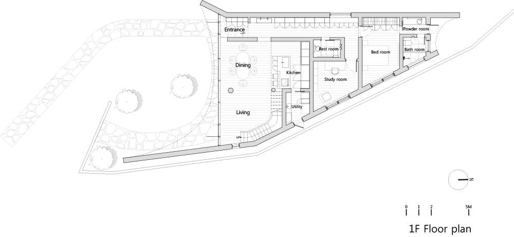
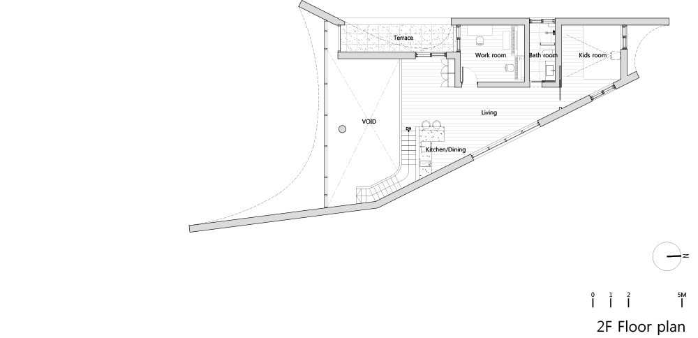
The site is triangular in shape, wide in the south, but narrows toward the north. The space to place a residential building was limited, and there was no free space after establishing the area where the building could be legally placed and putting the required program on the site. So, rather than making a big yard, we created several small yards, allowing the user to experience a yard in various spaces. Three yards were planned: the main entrance yard on the south side, the secondary entrance yard as you enter from the north, and the narrow yard that opens to nature on the second floor. The internal program, for which there was no space due to the yard, was moved to the second floor. The concept of the form of the house and the yard plan is to take the shape of the land as it is, to turn it into architecture, and to remove parts of the building using an intentional curve. By filling the space emptied by the curve with a yard, the intention was for the interior and exterior spaces to interpenetrate.
In the elevation plan, the windows facing the factories and highway were extremely limited, and temporary concrete walls were erected to block the view and noise. Round eaves and wide windows were installed to the south using the concrete temporary walls erected on both sides. The rounded shadows inside, which are created as the incident angle of light changes over time, makes the space more impressive, and the eaves, which act as round frames, and curves of nature naturally continue when looking at nature from the inside. The large window open to nature on the south side, makes it spatially and visually wider, and the boundary between interior and exterior feel vague. At the same time, light is actively introduced to enrich the space. Also, the area of the second floor is smaller than that of the first floor, so the cross-sectional plan is also planned with a curved roof, resulting in the ceiling height being different for each space and creating a three-dimensional sense of space. The floor plan was designed to meet the needs of various users. A meticulously crafted house provides a convenient living environment, but the moment one feels the need to change the space, it loses its flexibility. We thought that it would be advantageous to plan so that the building could be used for various purposes other than residential during its long lifetime. We wanted the space to be designed as a space that could accommodate all the different uses, such as the owner’s request for three generations to live together, the practice space of the client who is a vocalist, and a space for children to run around. Therefore, the common space was planned as an empty space with no clear purpose to enhance the flexibility of the space, and the ceiling height, the size of the room, and the materials were put into careful consideration.

대지는 경북 칠곡군 동명면 송산리로, 대지 주변은 공장으로 둘러싸여 있고, 또 옆으로는 중앙고속도로가 지나가고 있다. 공장들과 대지의 반대편으로 산과 들이 아름답게 펼쳐져 있어 상반된 분위기의 것들이 대치하고 있는 모양이었다. 독특한 입지 조건이 초기 계획에 영감을 주었다.
대지는 삼각형 모양으로 남쪽은 넓었지만 북쪽으로 갈수록 좁아지는 형태였다. 주택부지로 건물을 앉힐 수 있는 공간이 한정적이기도 했고, 법적으로 건물을 앉힐 수 있는 영역을 설정하고 요구하는 프로그램을 대지 위에 넣어보니 여유 공간이 없었다. 그래서 마당을 크게 만들기보다는 작은 마당을 여러 개로 분산해서 다양한 공간에서 마당을 느낄 수 있게 했다. 남쪽 주 출입 마당과 북쪽 도로에서 들어오는 부 출입 마당, 2층의 자연으로 열린 좁은 마당까지 마당을 3개 계획했다. 마당으로 인해 자리를 찾지 못한 내부 프로그램은 2층으로 옮겨졌다. 마당 계획과 함께 이 집의 형태적 컨셉은 땅의 형상을 그대로 가져와서 건축화하고 그 위에 의도된 곡선을 사용해 건물을 덜어낸 형태다. 곡선을 통해 비워진 공간은 마당으로 채우고 내외부 상호관입을 의도하였다.
입면계획은 공장과 고속도로 쪽으로 창을 극히 제한하고 콘크리트 가벽을 세워 시선과 소음을 차단했다. 양쪽으로 세워진 콘크리트 가벽을 이용해서 남쪽으로 둥근 처마와 전면 창을 설치했다. 시간의 흐름에 빛의 입사각이 변화하면서 생겨나는 내부의 둥근 그림자는 공간을 더 인상적으로 만들었고, 내부에서 자연을 바라볼 때 둥근 프레임인 처마와 자연의 곡선이 자연스레 이어졌다. 자연으로 열려있는 남쪽의 큰 창은 안과 밖의 경계가 모호하게 느껴지도록 설계되어 공간적으로 또 시각적으로나 더욱 확장된 공간이 될 수 있드록 의도했다. 동시에 빛을 적극적으로 유입시켜 공간을 더욱 풍요롭게 했다. 2층 면적은 1층 면적에 비해 작아 단면계획 또한 곡선 형태의 지붕으로 계획하여 각 공간마다 천장고를 달리해서 입체적 공간감을 느낄 수 있게 하였다. 평면계획은 다양한 사용자의 요구에 맞게 계획하였다. 세밀하게 짜인 집은 편리한 주거환경을 제공하지만 공간 변화의 필요성을 느끼는 순간 융통성이 없어진다. 건물의 긴 생애 동안 주거 외의 다양한 용도로 사용할 수 있도록 계획하는 것이 바람직하다고 생각했다. 3대가 생활할 수 있도록 해달라는 건축주의 요구와 성악가인 건축주의 연습공간, 어린아이들이 뛰어놀 수 있는 공간 등 그밖에 어떤 용도로 사용하더라도 수용할 수 있는 공간으로 계획되었으면 했다. 그래서 공용공간은 뚜렷한 목적이 없는 늘 비워진 공간으로 계획해 공간의 융통성을 제고하고 천장의 높이, 실의 크기, 재료 등을 고려하여 계획했다.















Arctitects YoungJong architects | 영종건축사사무소
Location Songsan-ri, Dongmyeong-myeon, Chilgok-gun, Gyeongsangbuk-do, Republic of Korea
Program Single family house
Site area 421㎡
Building area 125.08㎡
Gross floor area 196.1㎡
Building scope 2F
Building to land ratio 29.71%
Floor area ratio 46.57%
Design period 2020. 4 - 12
Construction period 2021. 2 - 8
Completion 2021. 8
Principal architect Youngjong Park
Project architect Youngjong Park
Interior Design Saebyeok Woo
Structural engineer (Artec structure) Haseok Jeon
Mechanical engineer Seung Jin Eng
Electrical engineer Seung Jin Eng
Construction Daesik Ahn
Client Daesik Ahn
Photographer Namsun Lee
해당 프로젝트는 건축문화 2021년 12월호(Vol. 487)에 게재되었습니다.
The project was published in the December, 2021 recent projects of the magazine(Vol. 487).
December 2021 : vol. 487
Contents : RECORDS MESSAGES OF SYMBIOSIS, CONNECTION, AND BALANCE WITHOUT WALLS 구획을 벗어나 보여지는 공생, 연결, 균형의 메시지들 : NEWS / COMPETITION / BOOKS : SKETCH VLADIVOSTOK S..
anc.masilwide.com
'Architecture Project > Single Family' 카테고리의 다른 글
| TELLURIDE GLASS HOUSE (0) | 2022.03.07 |
|---|---|
| Summmoru (0) | 2022.03.07 |
| O1 (0) | 2022.03.02 |
| Sena House (0) | 2022.02.21 |
| Family House in the River Valley (0) | 2022.02.18 |
마실와이드 | 등록번호 : 서울, 아03630 | 등록일자 : 2015년 03월 11일 | 마실와이드 | 발행ㆍ편집인 : 김명규 | 청소년보호책임자 : 최지희 | 발행소 : 서울시 마포구 월드컵로8길 45-8 1층 | 발행일자 : 매일



