
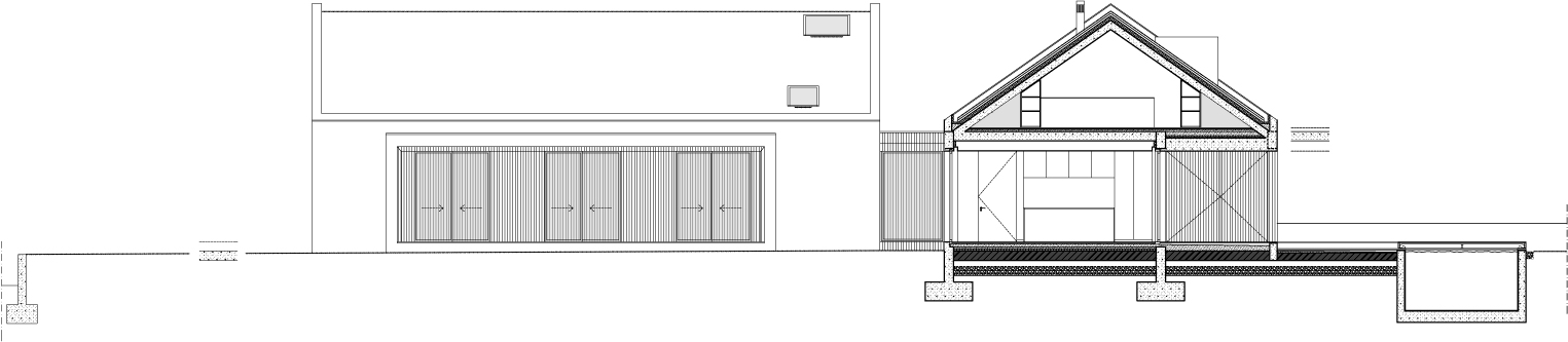
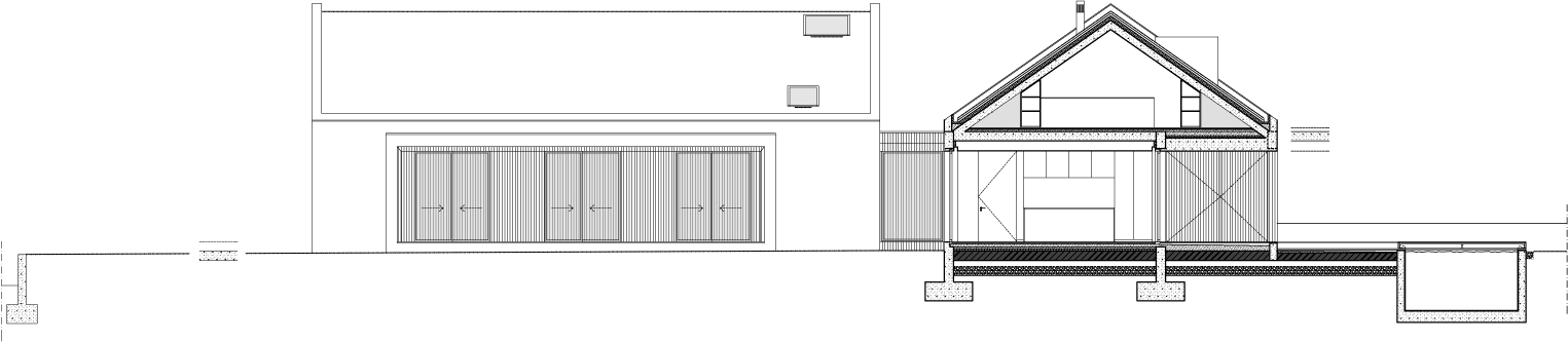
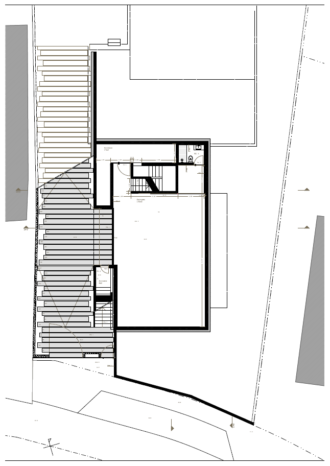
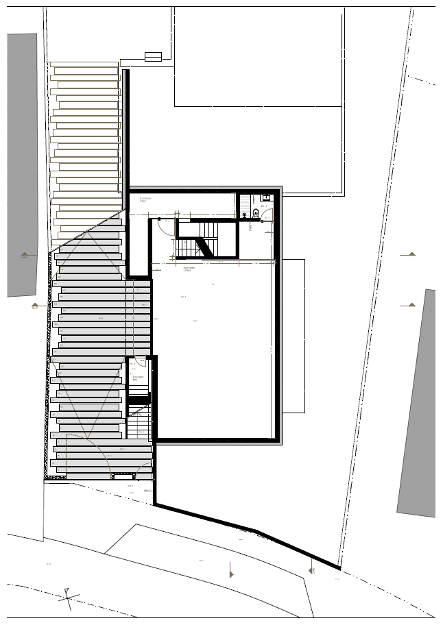
A place, that arises from an elevated plan in relation to the street, and opens itself onto a field, is defined by the large trees that give us visual sensations, experienced as a result of the various colour palettes that each season brings. A set of volumes draw the house that embodies a recognisable archetype and divides the intimate and social area, separating the bedrooms from the kitchen and living rooms. These volumes are organised in different orientations in search of the best relationship between them, and each other with the outside. The contrast between the raw concrete facades and the interior of the house creates an intimate tactile sensation, experienced through the patios, the skylights and the stairs. The social area extends to the outside and to the upper floor, creating a variety of living spaces and proximity to the householders. The intimate area, on the other hand, confines a covered outdoor space providing privacy and allowing, simultaneously, natural light to flood the interior. In order to intensify the relationship with nature, the house evokes the simplicity and sobriety that characterises the surroundings.

씨지 하우스는 골목 경사지를 따라 배치되어, 넓고 개방된 평야를 향하고 있는 집이다. 거주자들은 각 계절이 불러오는 다양한 색상의 팔레트같은 자연을 바라보며, 시각적 감흥을 주는 거대한 경험들로 이 집에서의 삶을 채워간다. 건축물의 형태는 전형적인 이 지역 집의 형태지만, 침실을 주방과 거실로부터 분리되어 사적, 사회적 공간을 구분한다. 이 구분된 공간의 형태는 서로간의, 그리고 서로 외부로의 가장 최적의 관계를 가질 수 있는 방향을 갖도록 다른 방향을 향하고 있다. 가공되지 않은 콘크리트 외벽과 집 내부 인테리어는 파티오, 천창 그리고 계단을 통해 경험되는 내밀한 촉감을 형성하도록 대조를 이룬다. 먼저, 골목길과 면하는 사회적, 공공적인 공간은 다양한 생활 공간들과 집주인들에게 접근성을 만들어주며 외부와 경사지 위의 공간으로 확장된다. 반면, 가족들의 사적인 공간은 사생활을 지키도록 외부와의 공간은 제한되지만, 풍부한 자연광을 내부로 이끄는 다양한 창호들이 계획되어 있다. 단순하면서도 냉철하게 특징되는 집의 형태는 이러한 자연과의 관계를 더욱 돈독하게 만들어준다.




















Architect Pedro Henrique Arquitecto
Location Arrifana, Santa Maria da Feira, Portugal
Site area 4,000㎡
Building area 280㎡
Gross floor area 420㎡
Construction period 2017 - 2020
Completion 2020
Principal architect Pedro Henrique
Project architect Mário Alves
Design team Ana Guedes
Structural engineer Eng. Artur Brand
Mechanical engineer Eng. José leite Santos
Electrical engineer Eng. José leite Santos
Construction Blink_House
Photographer Ivo Tavares Studio
해당 프로젝트는 리빙즈, 디테일 01호에 게재되었습니다.
The project was published in LIVINGS, Detail 01
[BOOK] LIVINGS, Detail 리빙즈, 디테일 01호, 02호
단행본 발행 67개의 형태와 라이프스타일을 담은 주거공간, 국내외 "디테일한 주택 프로젝트"의 엮음
www.masilwide.com
'Architecture Project > Single Family' 카테고리의 다른 글
| Sena House (0) | 2022.02.21 |
|---|---|
| Family House in the River Valley (0) | 2022.02.18 |
| House L&D (0) | 2022.02.15 |
| Santo Tirso House (0) | 2022.02.14 |
| House G (0) | 2022.02.11 |
마실와이드 | 등록번호 : 서울, 아03630 | 등록일자 : 2015년 03월 11일 | 마실와이드 | 발행ㆍ편집인 : 김명규 | 청소년보호책임자 : 최지희 | 발행소 : 서울시 마포구 월드컵로8길 45-8 1층 | 발행일자 : 매일



