
The site is situated in a gap between family houses that form the banks of the Dyje River. Steep terrain of the plot has the original terrace landscaping with stonewalls. The surrounding houses are mainly family houses or blocks of flats with one or two floors.
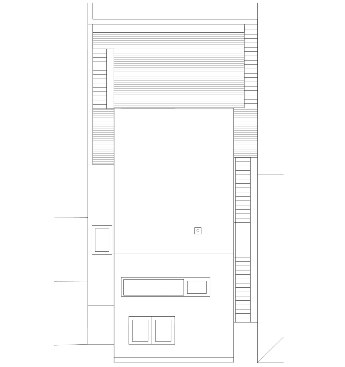
The house has three floors facing the waterfront side and one floor facing the slope side. The northern part of the house, which faces the waterfront, is sloped, forming a sloping roof, which follows the neighbouring roofs' shape. From the opposite, slope side, the roof is flat. The roof is entirely green, optically transitioning into a rising garden above the house. Cut into the green roof are two asymmetrically placed windows of children's rooms and living space. The eastern wall of the house is extended and recessed. As a result, the illumination of the bedroom and the corridor on the second floor is possible. The main living area is located on the top floor, and it is connected to the outdoor terrace and the garden on the southern side. The living space benefits from the absence of partition, which creates two advantages. One, the sunlight floods the room from the southern side, from the garden through the glass wall in the dining area. Two, to the north, it offers impressive views of the valley. The entrance is situated on the waterfront street. An outdoor staircase takes the residents to the terraces and gardens above the house. Next to the entrance on the 1st floor, a study with a large window is exposed to the sunlight from the waterfront. On the 2nd floor, there is a master bedroom with a private bathroom, a guest room, two children's rooms, a large bathroom and a room for housework. Inserted in the living space on the 3rd floor is a closed stall. Kitchen cabinets and a fireplace are partly inbuilt into the stall. The load-bearing structure is made of reinforced concrete and steel. On the façade, black aluminium cladding sheets were used. On the green roof, several layers of drainage, filtration and protective films were employed.

녹색지붕을 가진 리버밸리 하우스는 타이아 강 유역에 형성된 주거지 틈새에 자리 잡았다. 집이 들어선 대지는 가파른 지형에 돌담이 있고, 테라스 조경이 있었다. 주변 주택은 리버밸리 하우스와 비슷한 단독주택이거나 1층 또는 2층의 아파트같은 공동주택이다. 리버밸리 하우스는 강가를 향하며, 경사면을 따라 3개의 층으로 나뉜다. 강가를 향한 집의 북쪽은 대지의 경사진 부분과 동일하게 경사진 녹색 지붕으로 디자인됐다. 반면, 반대쪽 경사면의 지붕은 평평하다. 지붕은 완전히 녹색으로 덮여 있는데, 이는 집 위로 솟아오르는 작은 녹색 정원 같이 보이기도 한다. 녹색 지붕에는 아이 방과 거실에 비스듬한 지붕의 형태를 따라 만들어진 두 개의 비대칭 창문이 있다.
집의 동쪽 벽은 확장되고 움푹 들어가는데, 2층의 침실과 복도로 쓰인다. 집에 중심인 거실은 최상층(3층)에 위치하며, 남쪽의 야외 테라스와 정원과 연결된다. 주거공간 안에는 벽으로 구분되어 있지 않는데, 이는 남쪽 정원에서부터 햇빛이 식당 안의 유리벽을 통해 깊게 스며서 방을 비출 수 있도록 만들며, 북쪽으로 보이는 협곡의 사이의 인상적인 풍경을 집 내부에서 바라볼 수 있도록 만든다.
강가와 접한 부분에 집의 입구에서부터 야외 계단을 통해 가족들은 집 위의 테라스와 정원으로 이동할 수 있다. 1층 출입구 옆에는 커다란 창문이 있는 서재가 수변에서 나오는 햇빛에 노출돼 있고, 2층에는 전용 욕실이 딸린 침실, 객실, 어린이 방 2개, 대형 욕실, 가사용 공간 등이 있다. 3층 거실 공간에는 막혀 있는 작은 방이 있다. 주방 캐비닛과 벽난로는 부분적으로 이 작은 방에 설치되어 있다. 집은 철근 콘크리트와 강철로 하중을 지지하는 구조이며, 입면에는 검은색 알루미늄 외피 시트가 사용됐고, 녹색 지붕에는 배수, 여과, 보호필름 등이 층을 이룬다.


















Architects Kuba & Pilař architekti
Location Czech Republic
Site area 439㎡
Building area 125㎡
Gross floor area 186㎡
Building scope 3F
Completion 2019
Principal architect Tomáš Pilař, Ladislav Kuba, Norbert Walter
Project architect Tomáš Pilař, Ladislav Kuba, Norbert Walter
Photographer BoysPlayNice
해당 프로젝트는 리빙즈, 디테일 01호에 게재되었습니다.
The project was published in LIVINGS, Detail 01
[BOOK] LIVINGS, Detail 리빙즈, 디테일 01호, 02호
단행본 발행 67개의 형태와 라이프스타일을 담은 주거공간, 국내외 "디테일한 주택 프로젝트"의 엮음
www.masilwide.com
'Architecture Project > Single Family' 카테고리의 다른 글
| O1 (0) | 2022.03.02 |
|---|---|
| Sena House (0) | 2022.02.21 |
| House CG (0) | 2022.02.16 |
| House L&D (0) | 2022.02.15 |
| Santo Tirso House (0) | 2022.02.14 |
마실와이드 | 등록번호 : 서울, 아03630 | 등록일자 : 2015년 03월 11일 | 마실와이드 | 발행ㆍ편집인 : 김명규 | 청소년보호책임자 : 최지희 | 발행소 : 서울시 마포구 월드컵로8길 45-8 1층 | 발행일자 : 매일



