
The design starts with the aim to create an environment that in-spires persons that want to break with regular ideas and the tradi-tional life. Thus, we can see in the main room how the picture frames and curtains are inverted to question the conventional and make the co-workers reflect about how we see ‘normal’ in our lives.
On the other hand you can recognize a clear wink to the past with an interior that brings the 70’s with a retrofuturistic look to the present like if the visitor would enter a time machine to be transported to the future in a space that seeks to transmit a vi-brant, joyful and unconventional energy.
You can at the same time feel a touch of irony in the space that connects perfectly with the different furniture and lighting items from Houtique with the Wink lamps, Arco chairs and Déjà-Vu stool.
Last but not least, a reference to the movie ‘Playtime’ is to be highlighted with its representation of Paris from the 60/70’s in which the main character at one point of the movie has a meet-ing in an office full of ‘Cabinettes’ that are presented like a laby-rinth in which he get lost, ending up in an exhibition.

디자인은 규칙적인 아이디어와 전통적인 삶에서 벗어나고자 하는 사람들에게 영감을 주는 환경을 만드는 것을 목표로 시작됐다. 안방에서 액자와 커튼이 어떻게 반전되어 기존의 방식에 의문을 제기하고 동료들이 우리 삶의 '정상'을 어떻게 바라보는지에 대해 성찰하게 만드는 방식을 볼 수 있다. 또한, 방문객은 타임머신에 탑승하는 듯한 70년대 레트로퓨처틱한 인테리어를 통해 활기차고 즐겁고 파격적인 에너지를 전달하고자 하는 의도를 발견할 수 있으며, Houtique의 윙크 램프, 아르코 체어, 데자뷰 스툴 등 다양한 가구와 조명이 완벽하게 연결되는 공간에서 아이러니함을 동시에 느낄 수 있다.












Design Masquespacio
Location Valencia, Spain
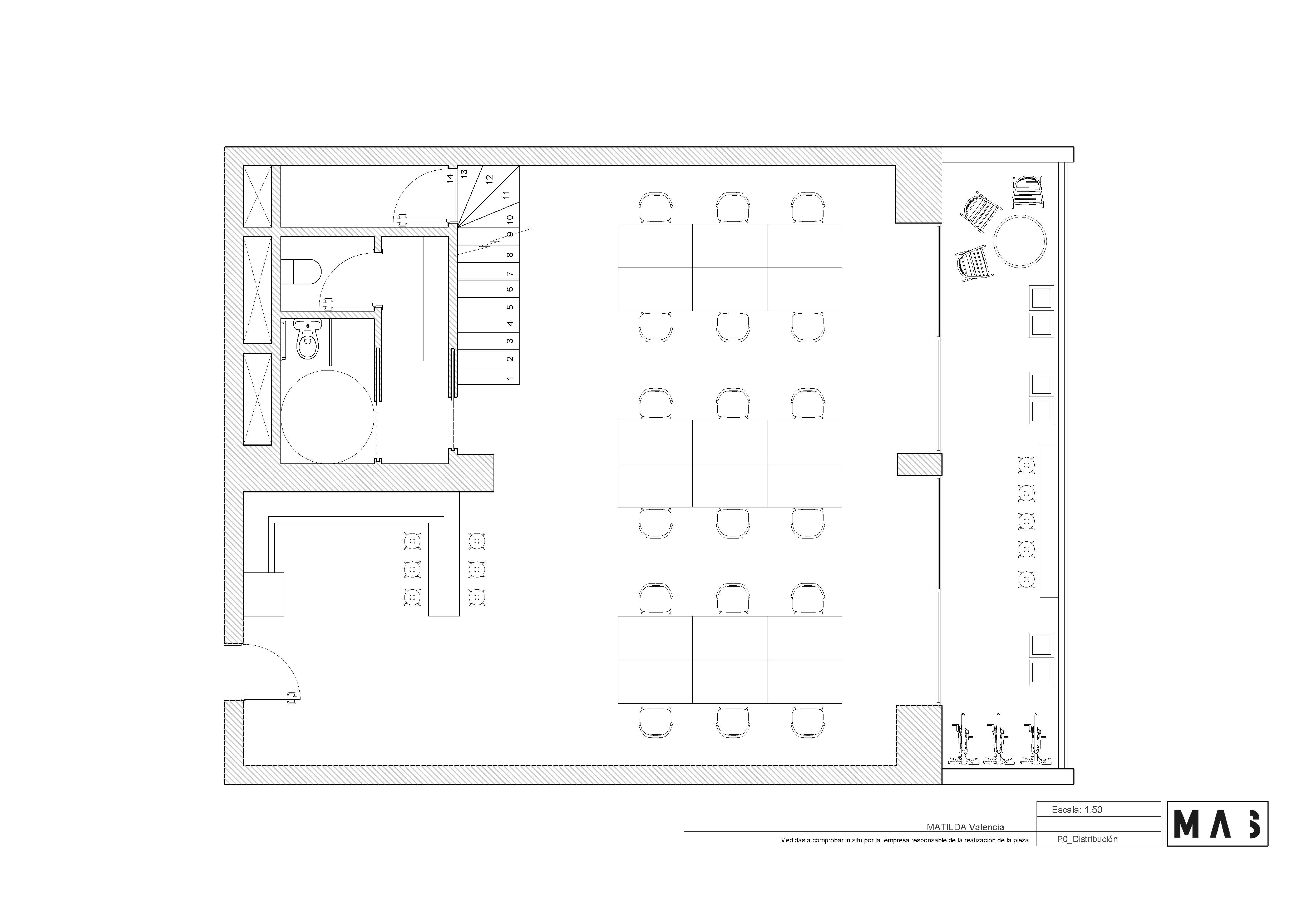
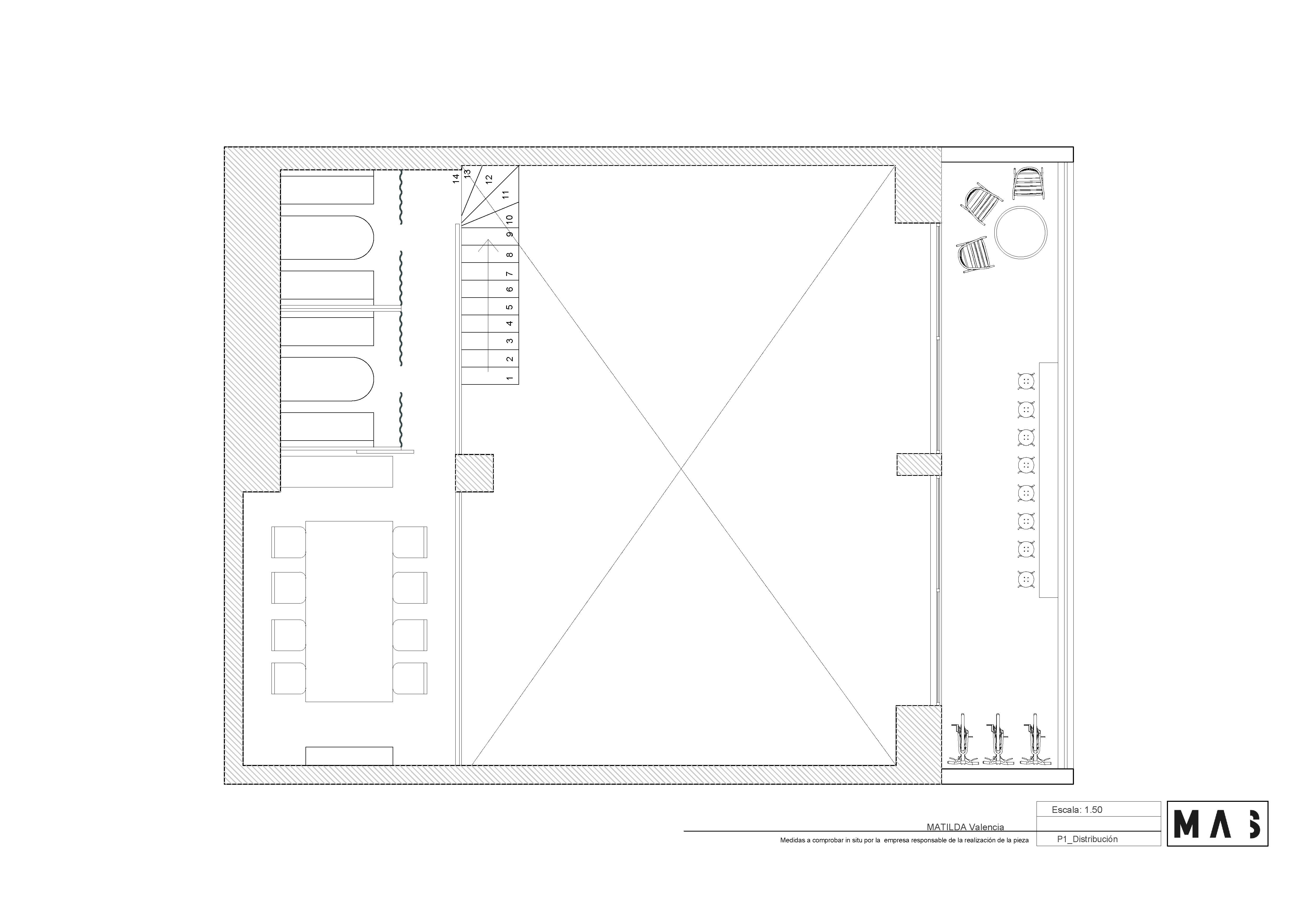
Building area 200㎡
Completion 2020. 07
Client Cabinette
Photographer Luis Beltran
Lamps Houtique
Custom-made furniture Masquespacio(Design), Houtique(Production)
Chairs & Stools Houtique
Chairs Co-Working Really Nice Things
'Interior Project > Office' 카테고리의 다른 글
| D-A Studio in Infante Santo Avenue, Lisbon (0) | 2022.01.27 |
|---|---|
| Purun Office (0) | 2022.01.24 |
| CONISHA showroom & office (0) | 2022.01.20 |
| Moët Henness (0) | 2022.01.17 |
| Microsoft House (0) | 2022.01.04 |
마실와이드 | 등록번호 : 서울, 아03630 | 등록일자 : 2015년 03월 11일 | 마실와이드 | 발행ㆍ편집인 : 김명규 | 청소년보호책임자 : 최지희 | 발행소 : 서울시 마포구 월드컵로8길 45-8 1층 | 발행일자 : 매일



