
Our view of a company shifted from the simple space-oriented perspective of viewing it as the separation between a working and resting area, between those who stay and those who visit, or employees and executive offices, to considering the influence that a space with a special purpose of a company should have and viewing it from the viewpoint of those using the space.
People think about what kind of space they want their company to be seen as, and what kind of space they want to work in, and the representative of a company thinks about how they want this space to be seen or what kind of space they want to provide as they lead their employees or welcome guests from outside.
Around the time we started to agonize over such matters, we met the Purun Office Project, and began to draw while agonizing over a circulation plan with the optimal system for users.
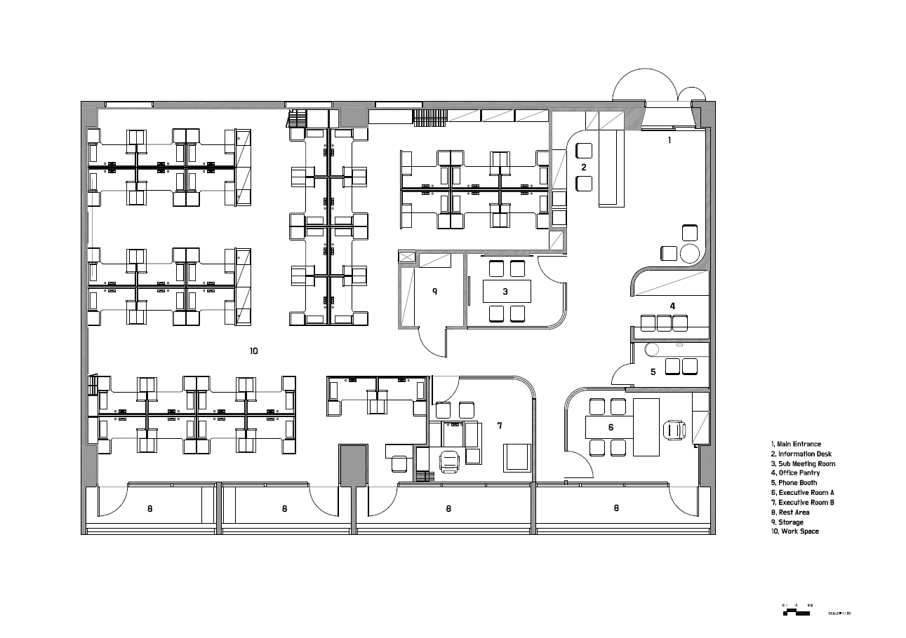
Purun Office’s space is not small, but as it is a place where many employees gather and work together, creating great synergy, a layout that could secure maximum efficiency was required for this synergy.
We seek to secure concentration in each work spaces and create convenience and functionality in gathering spaces. Oftentimes, we constantly share thoughts with the users about the characteristics of the company, the nature of the work, and the lifestyles of employees so that the office we design can become a space for growth and recovery.
We were able to create Purun Office, by thinking a step further so that a special space of a company could bring people a sense of belonging to those gathered there, and be considered a place where even communication of work is also pleasant.

인천광역시 서구 청라에 위치한 푸른 오피스 프로젝트는 사용자에게 최적의 시스템을 갖춘 동선계획이라는 고민에서 시작됐다. 푸른 오피스는 작지 않은 공간이지만, 그 만큼 많은 직원들이 모여서 일하는 곳으로, 커다란 시너지가 발생되며, 그러기 위해서는 최대의 효율성을 확보하기 위한 레이아웃이 필요했다. 각자 일하는 곳에서의 집중성을 확보하고, 모이는 장소에서의 편의성과 기능성을 만들어내기 위해 고민한 프로젝트다. STUDIO IMA가 디자인 하는 사무실이 성장과 회복의 공간이 될 수 있게 회사의 특징과 업무 성격과 직원들의 생활 패턴 등에 대해 사용자와 끊임없이 의견을 나누어 회사라는 특수한 공간이 그 곳에 모인 사람들에게 소속감을 심어주고, 업무의 소통까지도 즐거운 곳 이라고 여겨질 수 있는 공간을 디자인했다.















Design STUDIO IMA
Location Cheongna-dong, Seo-gu, Incheon, Republic of Korea
Design team Jaehyeon Ahn, Hoyong Lee, Yeonghyeon Kim
Building area 280㎡
Design period 2021. 10
Completion 2021. 12
Constructor STUDIO IMA
Photographer 서준우
Floor finish pvc tile
Wall finish easy clean plaint + texture paint
Ceiling finish vp
'Interior Project > Office' 카테고리의 다른 글
| EG (0) | 2022.02.10 |
|---|---|
| D-A Studio in Infante Santo Avenue, Lisbon (0) | 2022.01.27 |
| Cabinette Co-Working (0) | 2022.01.24 |
| CONISHA showroom & office (0) | 2022.01.20 |
| Moët Henness (0) | 2022.01.17 |
마실와이드 | 등록번호 : 서울, 아03630 | 등록일자 : 2015년 03월 11일 | 마실와이드 | 발행ㆍ편집인 : 김명규 | 청소년보호책임자 : 최지희 | 발행소 : 서울시 마포구 월드컵로8길 45-8 1층 | 발행일자 : 매일



