
Indonesian coffee culture is now rapidly growing, especially in big cities. Coffee shops appear anywhere in Jakarta due to the high demand of coffee consumption. Only a few coffee brands don’t just serve coffee as a product, but more than that, they also offer various coffee experiences.
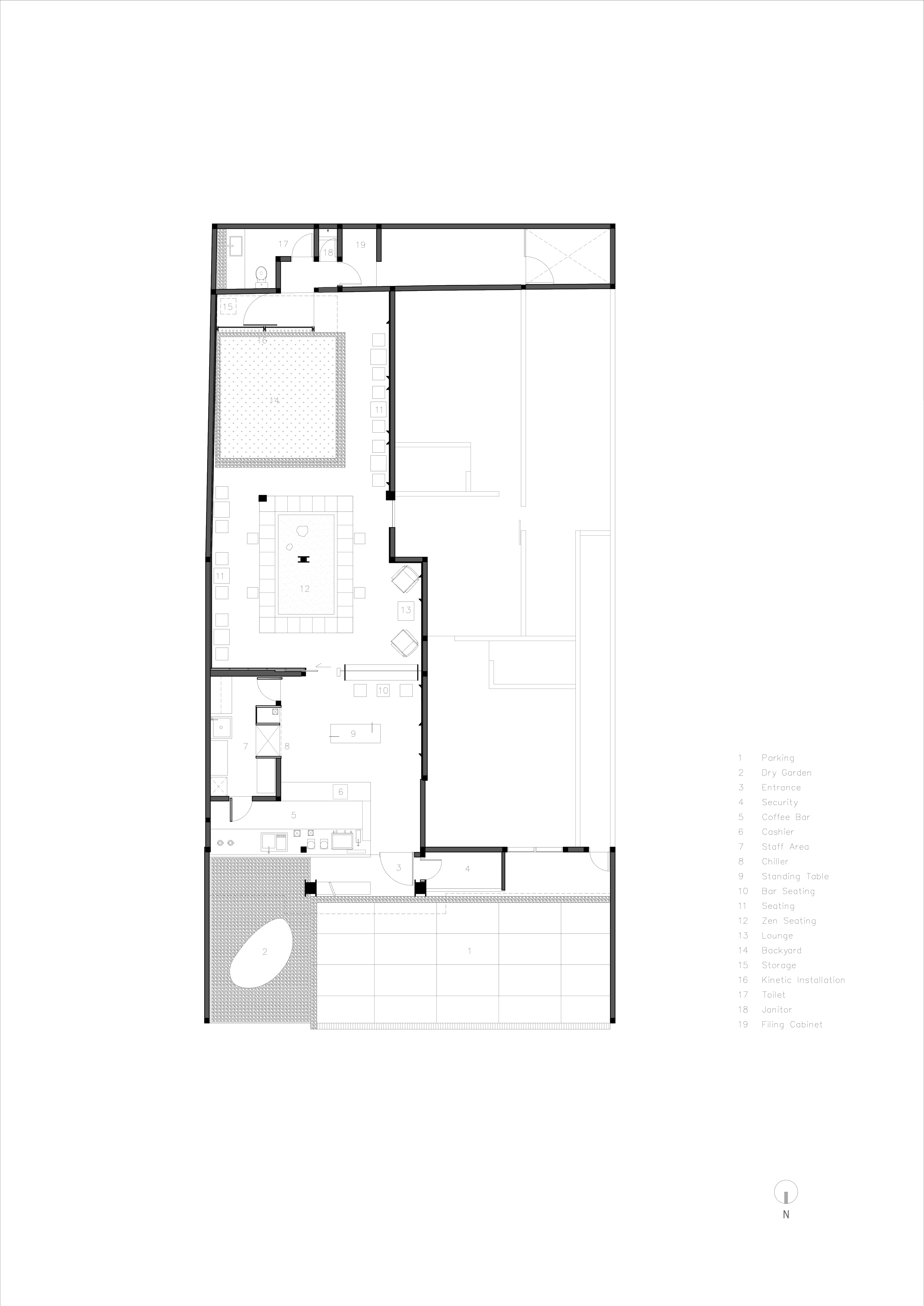
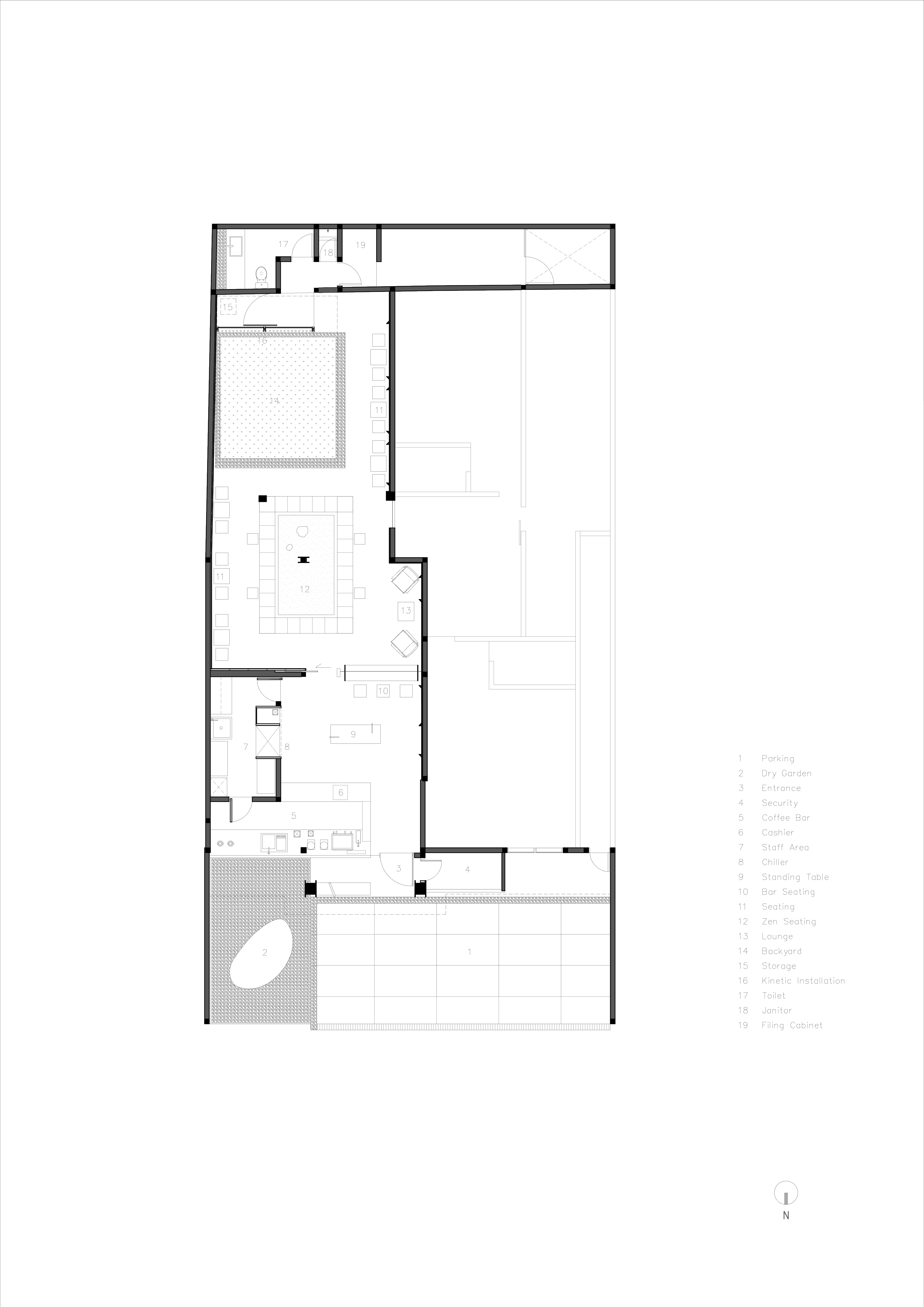
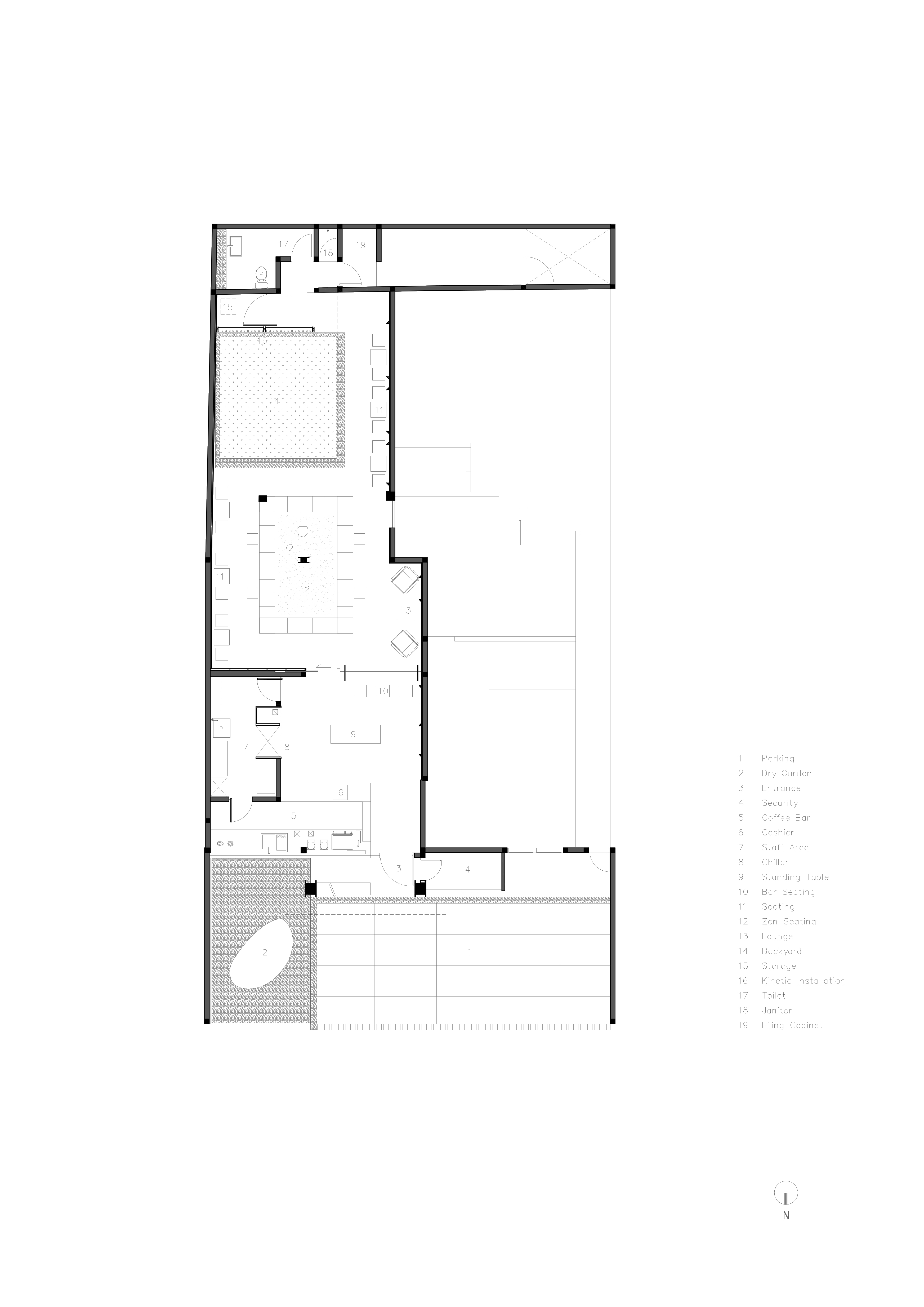
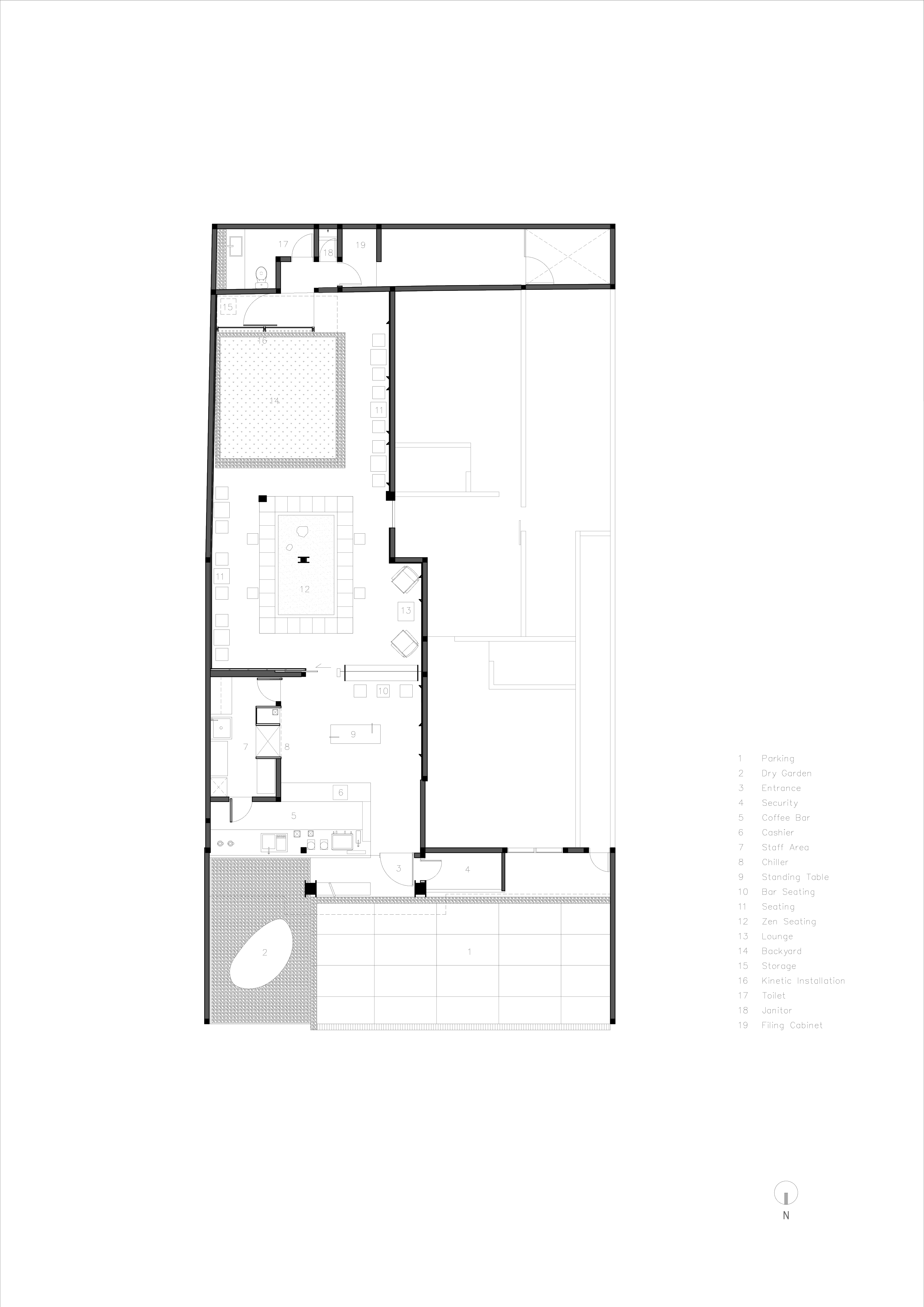
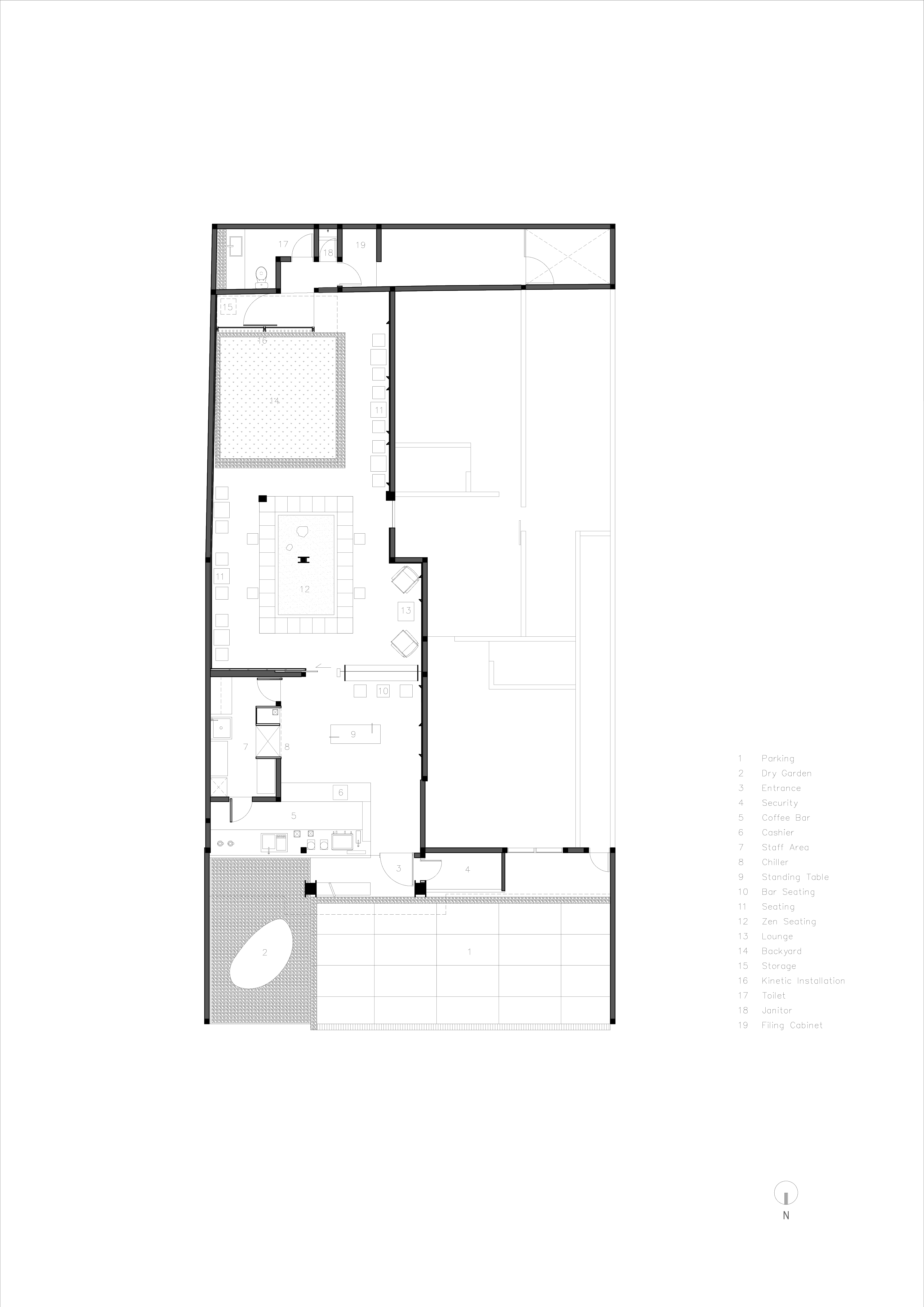
Kisaku is a coffee and social space located in the heart of Jakarta business district, a fairly dense environment, with a target market of workers. The place is a manifestation of adaptive reuse of an old and humble one storey residential house into an open and welcoming coffee shop. Kisaku emerged as an oasis in the middle of the crowded metropolitan city, focusing on coffee-to-go sales and serves as a pleasant space for contemplation during the day and social space after office hours.
Kisaku is a Japanese word that means positive, open, and friendly. The interior is aimed to build the brand identity by creating a sense of place that is simple, open and warm for customers to enjoy coffee. Most coffee shops are usually designed to maximize the sitting capacity, to create a lively atmosphere. Kisaku, on the other hand, provides “emptiness” and enhances minimalism to create a contemplative space experience. It is created by eliminating decoration and bringing back aesthetics value into the composition of architectural space, form and minimalist details. A monochrome colour palette of white textured paint and concrete tiles was selected to create a quiet and contemplative space of Kisaku, balanced with the warmth of natural oak wood.
The design embraces the spirit of the past existing place, it begins with understanding the existing house that looks ordinary is nothing but extraordinary. Through a careful adaptive reuse interior and facade preservation, the designer aims for people to come here as they come to a home-feel like environment, not a busy commercial coffee shop. With the absence of walls, open layout, and highly transparent front shop that shows the inside activity of the coffee making process, a modest coffee-home appears as an open and welcoming place in the neighborhood.
“Light and hanging” architectural concept is actualized through meticulous construction detail. Long white coffee counter was lifted up from the ground with illuminated skirting and pebbles to create the feel of a floating bar. Various slim furniture are placed around an empty Zen garden at the center of the sitting space to create an openness throughout the whole area. The wall and ceiling of the sitting area is treated with tilted pieces of wood plank to bring warmth into the space and create a unique thin plane composition.
A kinetic installation is hung above the coffee bar to represent the crow of the Kisaku logo and bring a slow and hypnotizing dynamism into the room. The installation is composed of 25 moveable bone-shape wood frames and thin acrylic wings, suspended from the ceiling with thin wires. The steel wires are connected to individually controllable motors that raise and lower the ends of each lamella, allowing various “flying” movement patterns to be performed.

인도네시아의 커피 문화는 현재 대도시에서 빠르게 성장하고 있다. 커피 소비에 대한 높은 수요로 인해 자카르타 어디에서나 커피숍을 볼 수 있다. 커피를 단순히 상품으로만 제공하는 것이 아니라 다양한 경험을 제공한다.
Kisaku는 근로자를 대상으로 하는 매우 밀집된 환경인 자카르타 비즈니스 지구의 중심부에 위치한 공간이다. 이 장소는 낡고 소박한 1층 주거용 주택을 개방적이고 친근한 커피숍으로 리모델링한 곳으로 커피 테이크아웃 판매를 중심으로 북적이는 도심 속 오아시스로 떠오르고 있다. 낮에는 즐거운 사색의 공간, 업무 시간 이후에는 사교 공간으로 기능하고 있다.
Kisaku는 긍정적이고 개방적이며 친절하다는 뜻의 일본어다. 인테리어는 고객들이 커피를 즐길 수 있도록 심플하고 개방적이며 따뜻한 공간감을 만들어 브랜드 아이덴티티 구축을 목표로 하고 있다. 대부분의 커피숍은 일반적으로 좌석 수를 최대화하여 활기찬 분위기를 조성하도록 설계되는 반면 Kisaku는 "공허함"을 제공하고 미니멀리즘을 강화하여 사색적인 공간 경험을 만든다. 장식을 제거하고 건축 공간, 형태 및 미니멀리스트 세부 사항의 구성에 미적 가치를 되살려냄으로써 만들어진다. 흰색 질감의 페인트와 콘크리트 타일의 모노크롬 색상을 선택하여 자연 참나무의 따뜻함과 균형을 이루는 Kisaku의 조용하고 사색적인 공간을 연출했다.
디자인은 과거의 기존 장소의 정신을 포용하고 평범해 보이는 기존 주택이 특별할 뿐임을 이해하는 것에서 출발한다. 세심한 적응형 재사용 인테리어 및 외관 보존을 통해 디자이너는 사람들이 바쁜 상업 커피숍이 아닌 집과 같은 환경을 느끼길 바랐다. 벽이 없고 개방된 배치와 커피 제조 과정의 내부 활동을 보여주는 매우 투명한 전면으로 인해 동네의 수수한 커피숍은 개방적이고 환영받는 장소가 된다.
"빛과 매달림"의 건축 개념은 세심한 시공 디테일을 통해 구현된다. 흰색의 긴 커피 카운터는 조명이 둘러져 있고, 자갈로 인해 바닥에서 들어 올려져 떠있는 바 느낌을 준다. 앉는 공간 중앙의 텅 빈 젠 가든(일본의 정원 양식)을 중심으로 다양한 슬림 가구를 배치하여 전체 공간에 개방감을 부여한다. 좌석 공간의 벽과 천장은 기울어진 나무 판자로 처리되어 공간에 따뜻함을 가져다주고 독특한 평면 구성을 만든다.
Kisaku 로고의 까마귀를 나타내는 키네틱 설치물이 커피 바 위에 걸려 방에 느리고 최면적인 역동성을 가져다 준다. 이 설치물은 25개의 움직일 수 있는 뼈 모양의 나무 프레임과 얇은 아크릴 날개로 구성되어 있으며 얇은 와이어로 천장에 매달려 있다. 강철 와이어는 각각의 프레임 끝을 올리거나 내리는 개별 제어 가능한 모터에 연결되어 다양한 "비행" 동작 패턴을 수행할 수 있다.













Architects Seniman Ruang
Location Kebayoran Baru, South Jakarta, Indonesia
Completion 2019
Photographer Mario Wibowo
'Interior Project > Cafe&Restaurant' 카테고리의 다른 글
| Shuck Shuck (0) | 2021.12.14 |
|---|---|
| Sliced Pizza- Terogong (0) | 2021.12.13 |
| DOT Coffee Station #1 (0) | 2021.12.09 |
| Went To See The Gypsy (0) | 2021.12.07 |
| NURIDAL (0) | 2021.12.07 |
마실와이드 | 등록번호 : 서울, 아03630 | 등록일자 : 2015년 03월 11일 | 마실와이드 | 발행ㆍ편집인 : 김명규 | 청소년보호책임자 : 최지희 | 발행소 : 서울시 마포구 월드컵로8길 45-8 1층 | 발행일자 : 매일



