
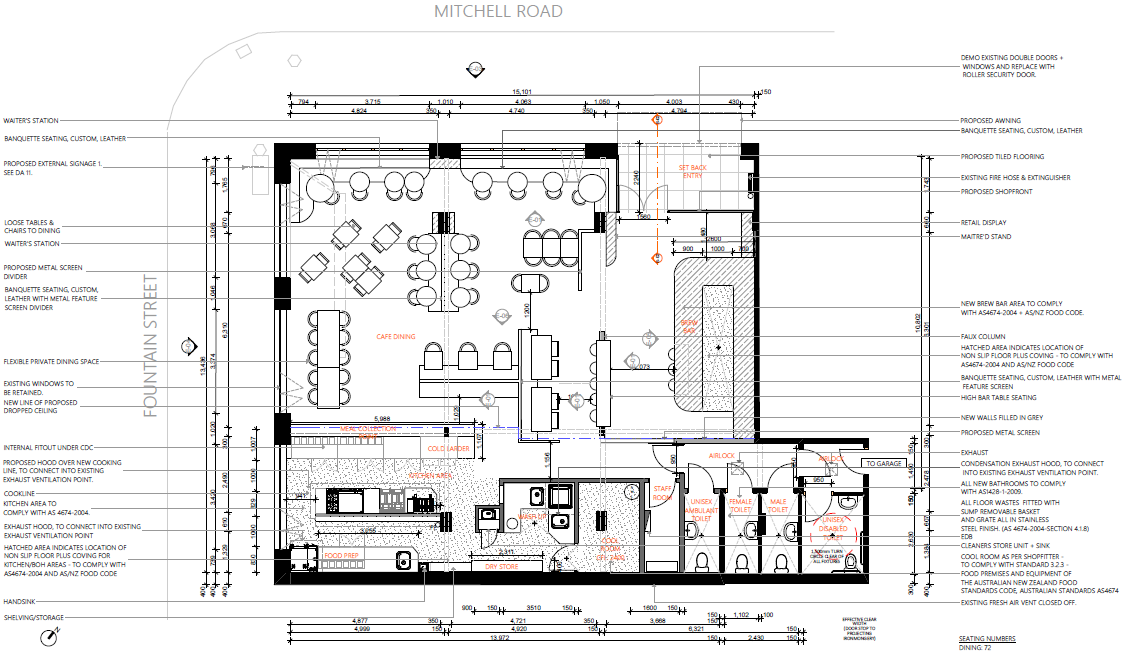
A contemporary yet classic flagship café for the Gypsy Espresso coffee roasters brand, with the focus centering around a one of a kind coffee brew bar that showcases the brand’s coffee as well as the cutting-edge mod bar coffee system. The client wanted to focus on well finished, simple, high quality materials to juxtapose against the industrial warehouse aesthetic of the site.
Located in a warehouse conversion in the trendy inner west suburb of Alexandria the clients wanted to really play-off and underscore the existing space. Leaving exposed timber ceilings and polishing back the mixed concrete and terrazzo flooring to reveal the varied aggregates. All new materials were chosen to integrate seamlessly with this existing structural fabric, from the close weave rattan for the screens, the European oak veneer to the ivory leather cushions and the grey terrazzo for the brew bar. The main focus of this venue was undoubtedly the Brew Bar – a sleek stand-alone bar dedicated to coffee service, completely custom built and clad in grey terrazzo. It features a Mod Bar custom built into the joinery which is a pour over coffee system where the bulk of the coffee machinery is hidden below the bench creating a much cleaner aesthetic and allowing the baristas to interact more with the customers.

현대적이면서도 클래식한 집시 에스프레소 커피 로스터 브랜드의 플래그십 카페로, 브랜드의 커피와 최첨단 모드 바 커피 시스템을 선보이는 독특한 커피 브루 바를 중심으로 한다. 건축주는 잘 마무리된 단순하고 고품질의 자재에 집중하여 현장의 산업 창고 미관과 대비되길 원했다.
건축주는 호주 뉴 사우스 웨일즈 주 시드니의 도심 교외 지역인 Alexandria의 창고에 위치한 기존 공간을 강조하기를 원했다. 노출된 목재 천장을 남겨두고 혼합 콘크리트와 테라조 바닥을 다시 연마하여 다양한 골재를 드러냈다. 스크린을 위한 밀착 직조 등나무, 유럽식 오크 베니어부터 아이보리 가죽 쿠션, 브루 바의 그레이 테라조에 이르기까지 기존 구조용 패브릭과 매끄럽게 통합되도록 모든 새로운 재료가 선택됐다. 이 공간의 주요 초점은 의심할 여지없이 Brew Bar였다. 이 세련된 독립형 바는 커피 서비스 전용이며 완전히 맞춤 제작되고 회색 테라초로 덮여 있다. 커피머신의 대부분이 바 아래에 숨겨져 더욱 깔끔한 심미성을 연출하고 바리스타가 고객과 더 많이 상호 작용할 수 있도록 하는 푸어 오버(Pour Over: 분쇄된 원두에 물을 부어 커피를 추출하는 방법) 시스템이 내장된 Mod Bar가 특징이다.








Architects Guru Projects
Location Sydney NSW, Australia
Completion 2020
Photograhper Damian Flanagan
'Interior Project > Cafe&Restaurant' 카테고리의 다른 글
| Kisaku (0) | 2021.12.10 |
|---|---|
| DOT Coffee Station #1 (0) | 2021.12.09 |
| NURIDAL (0) | 2021.12.07 |
| Deco Temple(Elixir Bunn Coffee Roasters) (0) | 2021.12.06 |
| JIGI Poke Restaurant (0) | 2021.12.03 |
마실와이드 | 등록번호 : 서울, 아03630 | 등록일자 : 2015년 03월 11일 | 마실와이드 | 발행ㆍ편집인 : 김명규 | 청소년보호책임자 : 최지희 | 발행소 : 서울시 마포구 월드컵로8길 45-8 1층 | 발행일자 : 매일



