
Cafe Nuridal's second space is a space with the concept of a cafe in the morning and a wine bar at night. The owner is obsessed with yellow. You can see more clearly by looking at the first space of Nuridal. The architect wanted to make the second space of Nuridal even more yellow. As I talked about yellow with the owner before planning the design, it began to look like Van Gogh, who was fascinated by yellow. Thus, the space of Nuridal's second store began to design by covering Van Gogh's view of the world, which expressed his love and passion for yellow, in Nuridal's own expression method. Van Gogh's work contains purity and intensity of yellow colorfully. The Yellow House, which was Van Gogh's workspace and residence, may have been seen by everyone at least once. Van Gogh is said to have been fascinated by the yellow house space because when he enters the space, the intense sunlight brightened him and everything around him. The sunlight that came through the yellow curtain dyed the room golden and Paul Gauguin, who lived with him for a while, said he thought it smelled really good in this space when he woke up in the morning.

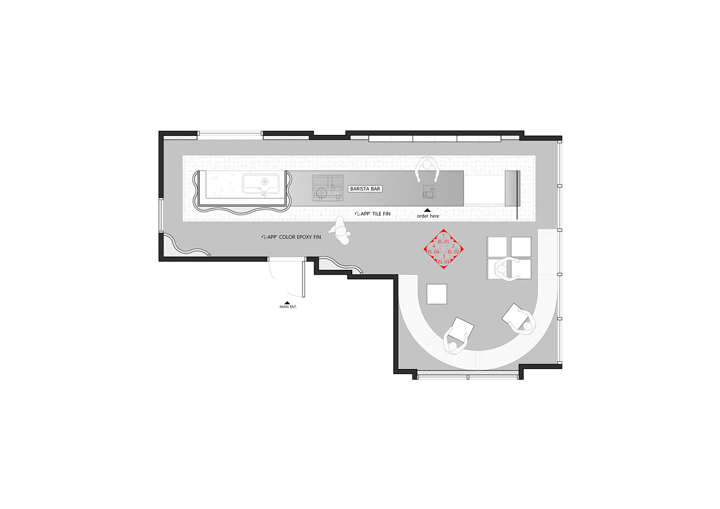
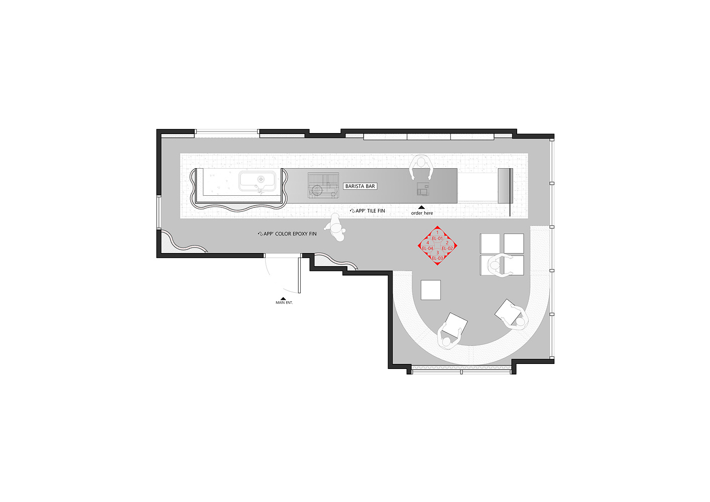
Taking advantage of the fact that the front of the 5th and 6th floors are all windows, the architect wanted to give the space a feeling of yellow golden light spreading through the yellow glass when the sun rises like Gogh's yellow house. Yellow-colored glass was placed on the barista bar on the fifth floor facing the customer when he first entered the space, and it was intended that customers would receive the golden light directly during the day. Gogh also boldly used yellow in his "Night Cafe" painting. The cafe of the night was an art space where many artists, including Gogh, gathered every night to talk about the world of their works with alcohol at a dark night like Montmartre in Paris. Gogh is said to have expressed the human warmth flowing out of this "Night Cafe" with yellow lights.

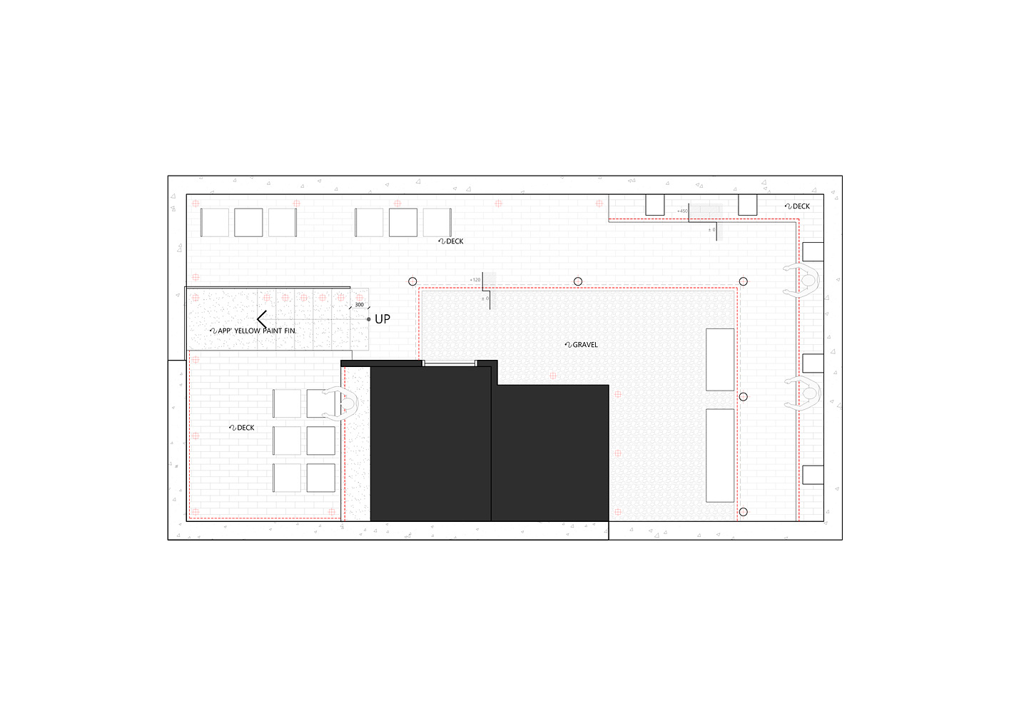
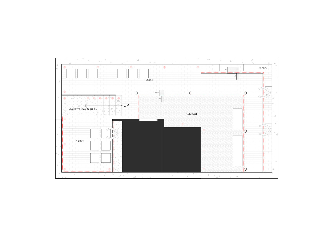
The sixth floor is a space consisting only of seating spaces where customers can sit and enjoy coffee or wine. During the day, it has a golden light that spreads into space, and in the evening, it intended to feel like the golden light emits light and illuminates the space. The wall was designed in a wave shape to convey the feeling of golden light being counted through indirect lighting from the yellow wave wall. I hoped that the second space of Nuridal would be a space like the sun that lights everything up in the bright morning and a space that gives cozy and warm sensibility in the dark night.

카페 누리달의 두번째 공간은 아침에는 카페, 밤에는 와인바가 되는 콘셉트의 공간이다. 건축주는 노랑색에 푹 빠져 있다. 누리달 첫번째 공간을 보면 더 확실히 알 수 있다. 건축가는 누리달 두번째 공간은 더욱 더 노랑색으로 물 들어있는 공간을 만들고자 했다. 디자인을 기획하기 앞서 건축주와 노랑색에 대한 이야기를 나누다 보니 마치 노랑색에 매료되어 있는 반 고흐가 이야기하는 것처럼 보이기 시작했다. 그리하여, 누리달 2호점 공간은 노랑색에 대한 사랑과 열정을 자신 의 작품에 표현한 반 고흐의 세계관을 누리달만의 표현 방법으로 입혀 디자인을 시작하게 됐다.

반 고흐의 작품에는 노랑색의 순수함과 강렬함이 다채롭게 담겨져 있다. 반 고흐의 작업공간 겸 거주지였던 '노란 집', 이 작품은 모두가 한번씩은 본적이 있는 작품일 것이다. 반 고흐가 이 노란집 공간에 매료된 이유는 자신이 이 공간 속으로 들어올 때면 강렬한 태양빛이 자신과 주변의 모든 것들을 환하게 만들어주었기 때문이었다고 한다. 노란색 커튼을 통해 들어온 햇살은 방 안을 황금색으로 물들이고 그와 잠시 동거를 했던 폴 고갱은 아침에 잠에서 깰 때면 이 공간 속에서 정 말 좋은 향기가 난다고 생각했다고 한다.

건축가는 지상 5층과 6층 전면이 모두 통창으로 되어있어 햇빛이 전면으로 들어온다는 장점을 살려, 고흐의 노란 집처럼 해가 떠있는 시간에는 누리달 공간의 지상 5층으로 들어오는 햇빛이 노랑유리에 통과하여 공간에 노랑색 황금빛이 퍼지 는 듯한 느낌을 주고자 했다. 노랑컬러유리를 고객이 이 공간에 처음 들어왔을 때 마주하는 5층의 바리스타 바에 배치하 여, 낮에는 고객들이 그 황금빛을 직접적으로 받도록 의도했다. 고흐는 '밤의 카페' 그림에서도 노란색을 과감히 사용했다. 그 밤의 카페는 파리의 몽마르트처럼 어두운 밤이 되면 고흐 를 포함한 많은 예술가들이 모여 술과 함께 자신들의 작품세계에 대하여 이야기하는 모습을 매일 밤 볼 수 있던 예술의 공간이었다. 고흐는 이 '밤의 카페'에서 흘러나오는 인간적인 따스함을 노란 불빛으로 물들여 표현했다고 한다.

6층은 고객들이 앉아 커피, 또는 와인을 즐길 수 있는 좌석 공간으로만 이루어진 공간이다. 낮에는 공간 속으로 퍼진 황 금빛을 머금고 있다, 저녁에는 그 황금빛이 발광하여 공간을 밝혀주는 느낌을 의도했다. 벽을 물결 쉐입으로 디자인하여, 그 노랑 물결벽에서 간접조명을 통해 황금빛이 세어 나오는 느낌을 전달하고자 했다. 누리달 두번째 공간은 밝은 아침엔 모든 것을 밝혀주는 태양 같은 공간, 어두운 밤엔 아늑하고 따뜻한 감성을 심어주는 공간이 되길 바랐다.





Studio WANDERLUST
Location Songpa-daero 452 in Songpa-gu, Seoul
Use Cafe, Bar
Area 113.45㎡ / 34.36py
Design period 2020. 11
Construction period 2020. 12
Designer WANDERLUST Han Hye-soo, Jang Hyun-ju
Design INTOEX / Yunjun Yang, Jungseon Jeon
Design team WANDERLUST
Construction WANDERLUST Han Ye-sol
Photographer MO STUDIO
'Interior Project > Cafe&Restaurant' 카테고리의 다른 글
| DOT Coffee Station #1 (0) | 2021.12.09 |
|---|---|
| Went To See The Gypsy (0) | 2021.12.07 |
| Deco Temple(Elixir Bunn Coffee Roasters) (0) | 2021.12.06 |
| JIGI Poke Restaurant (0) | 2021.12.03 |
| Kinoya Izakaya (1) | 2021.12.01 |
마실와이드 | 등록번호 : 서울, 아03630 | 등록일자 : 2015년 03월 11일 | 마실와이드 | 발행ㆍ편집인 : 김명규 | 청소년보호책임자 : 최지희 | 발행소 : 서울시 마포구 월드컵로8길 45-8 1층 | 발행일자 : 매일



