
A person I knew as the sister I met in New York contacted me as soon as returned from New York. She said that she owns three hotels and wants to leave the fourth one to me. As for the fourth, it is a project that started with a consensus to make it a real boutique hotel in New York. When the client requested that there should be five rooms on one floor, I argued that I would be able to receive more money if she could reduce the number of rooms by one for more than three months. It contains the parts that were usually dissatisfied with the small sized hotel, the sound of the room in the hallway, and the efforts to change the problems such as the closedness and auxiliary facilities of small hotels in a more innovative way. In fact, many small and medium-ized hotels after this April Hotel try to imitate the previously unused red brick finish, but it is the composition of space that may still be one of the most loved hotels by people for decades.
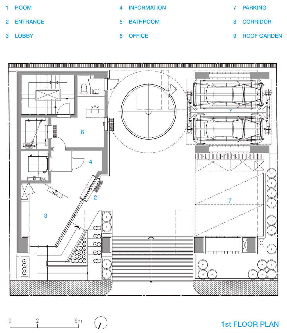
The way to enter a little lower from the access road gives the impression of entering a private and private space. The ramp for the disabled is designed to remind the landscaping and a small alleyway along with the stairs. In the lobby, the slab level difference once again gives the feeling of being in a space different from the space you feel when standing in front of the reception. This level difference is an attempt to maximize the feeling of a space where the entire room 1, located in the upper part of the lobby, is lowered with slabs from the entire floor and entered the room. Although there are only four rooms on each floor, when you open the door from the hallway, the bed is not visible and faces the balcony space of each room. With the balcony space in the middle, one side is a bedroom space and the other side is a bathroom space, so ventilation and light can be provided through the balcony space. This attempt is a spatial device unique to Hotel April that allows guests to be free in the areas of ventilation and light while protecting the privacy of guests through the balcony space that screens the eyes from the outside. The height of the second floor could be secured up to 5m due to the maximum height limit of Gangnam-gu just before the start of construction. Therefore, it was planned as a full-fledged spa space or a space where you can drink wine, etc. The top floor tried to create an individual rooftop outdoor space, but it was not realized due to circumstances. I was satisfied with creating a specialized room with an exhibition room and a duplex room using the high floor height of the second floor. As an architect who is usually very interested in hotel space, I hope that one day, a true boutique hotel space, a complex cultural space, will be established in Seoul, and I hope that it will be remembered as the April Hotel, the place where I tried to start it.

사월호텔
뉴욕에서 처음 만나게 된 지인이 호텔을 맡겨보고 싶다며 설계를 의뢰한 프로젝트다. 건축주는 이미 3개의 호텔을 가지고 있었고, 네 번째로 지어질 이 호텔만큼은 뉴욕에 있는 부티크 호텔처럼 만들고 싶어 했다. 한 층당 방이 다섯 개는 있어야 한다는 건축주 요청과 방 개수를 하나만 줄이고 객실 당 이용 금액을 더 높이자는 제안 사이에서 석 달의 시간이 흘렀던 프로젝트이기도 하다. 평소 호텔에서 불만이었던 부분들, 복도에서 방의 소리가 들린다든지, 소규모 호텔들에서 느껴지는 폐쇄성, 부대시설 등을 좀 더 혁신적으로 바꾸려는 노력들이 고스란히 담겨있다. 사실 이 사월호텔 이후의 많은 중소규모 호텔들이 이전에는 잘 쓰이지 않았던 붉은 벽돌마감재로 흉내내려고 하지만 사월호텔이 지어진 지 십 년이 넘도록 아직도 사람들에게 가장 사랑받는 호텔 중 하나일 수 있는 것은 이 호텔만의 공간구성 때문일 것이다.
진입도로에서 조금 낮아지도록 진입하는 방법은 사적이고 은밀한 공간으로 들어서는 느낌을 준다. 장애인을 위한 램프는 계단과 함께 조경이자 작은 골목길을 연상시킬 수 있도록 디자인됐다. 로비에서 다시 한 번 낮아진 슬라브 단차는 리셉션 앞에 서 있을 때 느껴지는 공간과 다른 공간에 있는 듯한 느낌을 부여한다. 이 레벨 차이는 로비의 상부에 위치한 1호실 전체를, 전층의 슬라브를 낮추고 방에 들어가면 오히려 단이 낮아지는 공간의 느낌을 극대화하고자 한 시도다. 각층 복도에서 방문을 열면 침대가 보이지 않고 각 방마다의 발코니 공간을 마주하게 했다. 그 발코니 공간을 가운데 두고 한쪽은 침실공간, 반대쪽은 화장실 공간을 배치하여 환기와 채광을 발코니 공간을 통해서 하게끔 계획했다. 이러한 시도는 외부로부터의 시선을 스크리닝 해주는 발코니 공간을 통해서 투숙객의 사생활을 지키되 환기와 채광이라는 부분에서 자유로울 수 있도록 해주는 사월호텔만의 공간적 장치다. 공사 시작 직전, 강남구의 최고 높이제한 조정에 의해서 2층의 층고를 5m까지 확보할 수 있었기에 본격적인 스파 공간이나 와인 등을 마실 수 있는 공간으로 계획했다. 최상층은 개별적인 옥상 야외공간을 만들고자 시도했으나 사정 상 실현되지는 못했다. 단지 2층의 높은 층고를 활용한 전시 가능한 방과 복층형 방으로 특화된 객실을 만드는 것으로 만족했다. 평소 호텔 공간에 많은 관심이 있는 건축가로서 언젠가는 건축가가 생각하는 복합문화공간인 진정한 부티크 호텔이 서울에 자리 잡기를 소망하며 그 시도를 처음으로 시도했던 작품으로 사월호텔을 기억한다.










Architect Archigroup MA
Location Yeoksam-dong, Gangnam-gu, Seoul, Republic of Korea
Program Hotel
Site area 331.00㎡
Building area 198.51㎡
Gross floor area 1,998.28㎡
Building scope B1, 11F
Building to land ratio 59.97%
Floor area ratio 574.97%
Design period 2008. 4 - 2009. 3
Construction period 2009. 3 - 2010. 6
Principal architect Byungan You
Design team Hongsup Chung, Sanggyeong Lee, Younghwan Lee, Seokgon Song, Hyejin Kim, Jiseon Kang
Structural engineer Hi Structural Engineers
Mechanical engineer Mido Technology Office
Electrical engineer Kodeok Engineering
Civil engineer Chamsol Engineering
Construction Woosin Construction
해당 프로젝트는 건축문화 2021년 7월호(Vol. 482)에 게재 되었습니다.
The project was published in the July, 2021 issue of the magazine(Vol. 482).
July 2021 : vol. 482
Contents : RECORDS 2021 SEOUL LIVING DESIGN FAIR 2021 서울리빙디자인페어 : NEWS / COMPETITION / BOOKS : SKETCH BETWEEN PERSON AND ARCHITECTURE / NIKITA BATRAKOV 사람과 건축 사이..
anc.masilwide.com
'Architecture Project > Commercial' 카테고리의 다른 글
| OKLM LUXE PENSION (0) | 2021.10.26 |
|---|---|
| HAEUNDAE 1336 (0) | 2021.10.25 |
| SEOKWOONDONG NEIGHBOURHOOD LIVING FACILITY_LEE YANG-JI'S KITCHEN SCHOOL (0) | 2021.08.06 |
| LEEDO SAU (0) | 2021.07.23 |
| ACRE (0) | 2021.07.21 |
마실와이드 | 등록번호 : 서울, 아03630 | 등록일자 : 2015년 03월 11일 | 마실와이드 | 발행ㆍ편집인 : 김명규 | 청소년보호책임자 : 최지희 | 발행소 : 서울시 마포구 월드컵로8길 45-8 1층 | 발행일자 : 매일



