
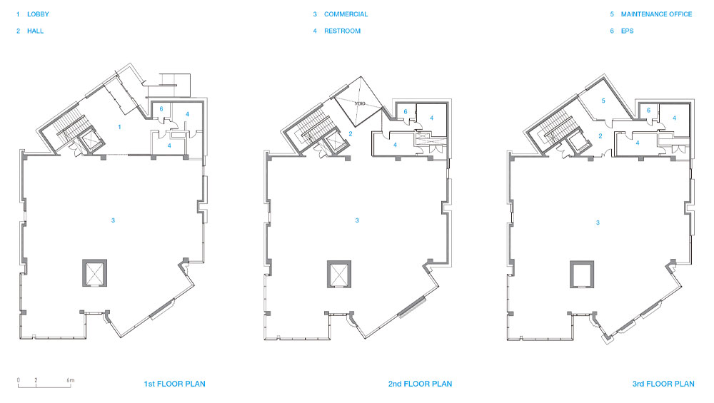
The Haeundae 1336, built near Jung-dong Station, is in a vibrant place with large supermarkets and commercial facilities, and is located in an area with active changes. The site is also a place that is changing from a commercial area to a residential area. It has found a way to break away from the image of a so-called ‘shopping arcade’ and contribute to the urban landscape even a little under limited conditions. The site is shaped like an irregular parallelogram and is diagonally adjacent to the front road. Consequently, the front, left and right sides were all exposed to the front road, and it could pressurize or make the surrounding feel closed, as it was excessively larger than the roadside environment and surrounding buildings. Having an elevation that has enough space to install signboards may be a may be a preferable condition for business operators. However, the method of informing the public about the building in an architectural way was chosen rather than directly through signs.
The building that is segmented into four squares looks like two or three buildings combined, depending on the direction it is viewed from. The mass of the separated building was differentiated by using different materials such as glass, bricks, and granite. The main entrance of the front side is finished with a transparent curtain wall made of low-iron glass, and an external space is created along the road sidewalk, accentuating the openness inside and outside the building. The multilateral use of the vertical windows and brick masonry was designed to harmonize with adjacent buildings. The brick facade is the result of taking into consideration when pedestrians and users look up at the building from up close, or when viewed from the road at eye level. The vertical granite lines used on the back and left sides highlight the color and texture of the material. The interior space is a variable space that responds to the changing requirements, as well as a division corresponding to the irregular form of the site. This internal variability was designed with a reinforced concrete long span structure to build a wide and highly utilizable space without columns, and the split-level part connecting the third and fourth floors was designed so that the two spaces can be organically integrated when necessary.
It is a commercial-purpose neighborhood living facility commonly seen in cities, a so-called ‘mercantile shop’, and the space or form of these buildings is positioned as a kind of ‘type’ for us. It is a project that has found connectivity with the surrounding environment that only this place has within the constraints given by the program of a neighborhood living facility.

조적과 수직창의 다변적인 활용이 돋보이는 근린생활시설, 해운대1336
해운대 중동역 근처 세워진 이 근린생활시설은 대형 마트와 상업시설이 들어서 있는 활기찬 곳이며, 변화가 활발한 지역에 위치한다. 대지는 상업지역에서 주거지역으로 변화하는 곳이기도 하다. 건축가는 소위 ‘상가’의 이미지에서 탈피하고 제한된 조건 안에서 조금이나마 도시의 경관에 기여하는 방안을 찾아냈다. 대지는 불규칙한 형태의 평행사변형 모양으로 전면도로에 사선으로 접해있다. 이로 인해 전면, 좌측 및 우측면이 모두 전면 가로에 노출되어 있었고, 가로변의 환경과 주변 건물보다 지나치게 비대하게 지어져 주변에 중압감과 폐쇄감을 줄 수 있는 상황이었다. 간판을 설치할 여유가 있는 입면을 가진다는 것은 사업자 입장에서 선호하는 조건일 수 있다. 하지만 건축가는 간판으로 건물을 직설적으로 알리는 방법보다는 건축적 방법으로 공공에게 건물을 알리는 방법을 택했다.
4개의 정방형으로 분리된 건물은 보는 방향에 따라 2개 또는 3개의 건물이 결합한 듯 보인다. 분리된 건물의 매스는 유리, 벽돌, 화강석의 서로 다른 재료를 사용하여 그 차이를 두었다. 정면의 주 출입구 부분에는 저철분 유리로 만들어진 투명 커튼월로 마감하고, 도로 보행로를 따라 외부공간이 조성되어 있어, 건축물 안팎으로 개방감을 강조한다. 벽돌 조적 부분, 수직창의 다변적인 활용은 인접 건물과의 조화를 위해 디자인됐다. 깊이감과 음영이 강조된 벽돌 입면은 보행자와 사용자가 건물을 가까이서 올려다보거나, 도로에서 시선 높이에서 바라봤을 때를 고려한 것이다. 배면과 좌측면에 사용된 수직 방향의 화강석 줄다듬은 자재의 색상과 질감을 돋보이게 만든다. 내부 공간은 불규칙한 대지 형상에 대응하는 구획과 더불어, 변화하는 요구 조건에 대응하는 가변적인 공간이다. 이러한 내부의 가변성은 철근콘크리트 장스팬 구조로 설계되어 기둥이 없는 넓고 활용도 높은 공간을 구축했으며, 3층과 4층을 연결하는 복층 부분은 필요시 2개의 공간이 유기적으로 통합되어서 사용되도록 설계됐다.
도시에서 흔히 볼 수 있는 상업적인 목적의 근린생활시설, 소위 ‘상가’라고 불리는 건축물이며, 이러한 건축물의 공간 또는 형태는 일종의 ‘유형’으로 우리에게 자리 잡고 있다. 근린생활시설이라는 프로그램이 주는 제약 안에서 이곳만 가진 주변 환경과의 연계성을 찾아낸 프로젝트다.







Architect QJARCHITECTURE
Location Jwadong-ro, Haeundae-gu, Busan, Republic of Korea
Program Commercial Facilities
Site area 1,418㎡
Building area 494.25㎡
Gross floor area 1,874.43㎡
Building scope 4F
Building to land ratio 34.85%
Floor area ratio 132.19%
Design period 2020. 4 - 7
Construction period 2020. 9 - 2021. 4
Completion 2021. 4
Principal architect Kyuho Choi
Project architect Kyuho Choi, Jeunghye Park
Design team Kihoon Lee
Structural engineer Dawoo structural engineering
Mechanical engineer JungYeon Engineering
Electrical engineer JungYeon Engineering
Construction Baekwoo Construction
Client NIK
Photographer Kyungsub Shin
해당 프로젝트는 건축문화 2021년 8월호(Vol. 483)에 게재되었습니다.
The project was published in the August, 2021 issue of the magazine(Vol. 482).
August 2021 : vol. 483
Contents : RECORDS 2021 KOREA YOUNG ARCHITECT AWARD 문체부, 2021 젊은 건축가상 발표 : NEWS / COMPETITION / BOOKS : SKETCH THE SHAWSHANK REDEMPTION / CRISTINA CORREA FREILE 쇼생..
anc.masilwide.com
'Architecture Project > Commercial' 카테고리의 다른 글
| SHIROIYA HOTEL (0) | 2021.11.02 |
|---|---|
| OKLM LUXE PENSION (0) | 2021.10.26 |
| APRIL HOTEL (0) | 2021.10.08 |
| SEOKWOONDONG NEIGHBOURHOOD LIVING FACILITY_LEE YANG-JI'S KITCHEN SCHOOL (0) | 2021.08.06 |
| LEEDO SAU (0) | 2021.07.23 |
마실와이드 | 등록번호 : 서울, 아03630 | 등록일자 : 2015년 03월 11일 | 마실와이드 | 발행ㆍ편집인 : 김명규 | 청소년보호책임자 : 최지희 | 발행소 : 서울시 마포구 월드컵로8길 45-8 1층 | 발행일자 : 매일



