
The existing OKLM Pension was operated targeting family travelers with four separate buildings near Vivaldi Park, and the owner, differentiating from this, proposed a new space of ‘rest’ for small groups of travelers such as couples and friends. As the site is surrounded by mountains where hiking is restricted, the view towards personal space is blocked, and it had the conditions that allowed a spatial plan using the level difference of the sloped ground.
When we first visited the site in August, it was in the middle of summer, but we couldn’t remember any harsh words such as blazing sun or scorching heat due to the rain. Like the rain in summer, like the empty spaces in the stone walls of Jeju Island, or like an empty lot in the city, ‘rest’ is usually wrapped with negative meanings in everyday life, but it is also a time that is heard and filled because nothing is forced. A ‘space of rest’ that goes well with Au calme, which means ‘quiet’ or ‘calm’ in French, could be a design that fills everyday life, which seems solid, with empty spaces, giving a slightly empty and loose everyday life.
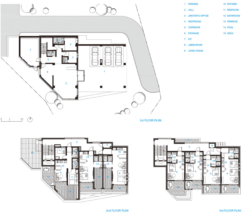
The first floor was planned in the form of a cafeteria as a lobby and management space that functions as a hub of the entire pension complex, and a simple breakfast can be serviced here in the future. The second floor consists of pool villa type rooms with a private pool, and the size, depth and water color of the pools were planned while considering OKLM’s target customers and image, based on the analysis of pool villa examples and cases in Korea. The third floor was made as a spa type with jacuzzis, where the view can be enjoyed. In the backyard, which can easily be accessed even from the second floor using the level difference, exterior hot tubs were placed with the forest as their background, and the rooftop was planned to have a rooftop garden installed in the future to allow the meaning of ‘OKLM’ be contained in the empty spaces that contain three-dimensional levels and various sceneries.

쉼의 다양한 형태와 색을 담아낸 휴식공간, 오캄럭스 펜션
기존의 오캄(OKLM) 펜션은 비발디파크와 인접한 4개 동의 독채형 펜션으로 가족 단위의 여행객을 타깃으로 운영되고 있었고, 건축주는 이와 차별화해서 연인 및 친구 등 소규모 단위의 여행객을 위한 ‘쉼’의 공간을 새롭게 짓고자 했다. 대지는 산행이 통제되는 산으로 둘러싸여 있어 개인공간으로의 시선이 차단되고 있으며, 경사지의 레벨차를 이용한 공간계획이 가능한 조건을 가지고 있었다.
처음 현장을 방문했던 8월은 여름의 한 가운데였지만 내리는 비로 인해 땡볕, 폭염 같은 따끔거리는 단어들이 생각나지 않았다. ‘쉼’이란 여름의 빗줄기처럼, 제주 돌담의 빈 공간처럼, 도시의 공터처럼 보통 일상 안의 마이너스 의미로 겉포장하고 있지만, 아무것도 강요되지 않기 때문에 들리고 채워지는 시간이기도 하다. 프랑스어로 ‘고요한’, ‘한적한’을 뜻하는 Au calme과 어울리는 ‘쉼의 공간’이란 늘 그런 일상처럼 견고해 보이지만 그 안에 빈 공간들을 채워 넣어 조금은 허전하고 헐렁한 일상을 부여하는 디자인이라 생각했다.
1층은 전체 펜션 단지의 허브 역할을 하는 로비 및 관리공간으로 카페테리아 형태로 계획되었고, 향후 간단한 조식서비스가 가능하다. 2층은 객실 내 프라이빗 풀이 있는 풀빌라 타입으로 국내 풀빌라들의 사례 분석을 토대로 오캄의 타깃과 이미지를 고려한 풀의 크기와 깊이, 물의 색을 계획했다. 3층은 전망을 즐길 수 있는 자쿠지가 있는 스파 타입으로 구성되어 있다. 레벨차를 이용해 2층에서도 쉽게 진입할 수 있는 뒷마당에는 야외 온수풀이 숲을 배경으로 배치되었고, 옥상은 향후 루프탑 가든을 설치하여 입체적인 레벨과 다양한 풍경을 담은 빈 공간들 안에 ‘오캄’의 의미를 담았다.











Architect WIZSCALE ARCHITECTS
Location Gureop-ri, Seo-myeon, Hongcheon-gun, Gangwon-do, Republic of Korea
Program Accommodation
Site area 1,543㎡
Building area 288.57㎡
Gross floor area 563.00㎡
Building scope 3F
Building to land ratio 18.70%
Floor area ratio 36.49%
Design period 2018. 9 - 2019. 6
Construction period 2019. 7 - 2020. 12
Completion 2021. 2
Principal architect Sunkwang Kim, Younguk Jeon
Project architect Seongmin Joo
Photographer MasilWIDE(Yongsu Kim)
해당 프로젝트는 건축문화 2021년 8월호(Vol. 483)에 게재되었습니다.
The project was published in the August, 2021 issue of the magazine(Vol. 482).
August 2021 : vol. 483
Contents : RECORDS 2021 KOREA YOUNG ARCHITECT AWARD 문체부, 2021 젊은 건축가상 발표 : NEWS / COMPETITION / BOOKS : SKETCH THE SHAWSHANK REDEMPTION / CRISTINA CORREA FREILE 쇼생..
anc.masilwide.com
'Architecture Project > Commercial' 카테고리의 다른 글
| NEYA PORTO HOTEL (0) | 2021.11.03 |
|---|---|
| SHIROIYA HOTEL (0) | 2021.11.02 |
| HAEUNDAE 1336 (0) | 2021.10.25 |
| APRIL HOTEL (0) | 2021.10.08 |
| SEOKWOONDONG NEIGHBOURHOOD LIVING FACILITY_LEE YANG-JI'S KITCHEN SCHOOL (0) | 2021.08.06 |
마실와이드 | 등록번호 : 서울, 아03630 | 등록일자 : 2015년 03월 11일 | 마실와이드 | 발행ㆍ편집인 : 김명규 | 청소년보호책임자 : 최지희 | 발행소 : 서울시 마포구 월드컵로8길 45-8 1층 | 발행일자 : 매일



