
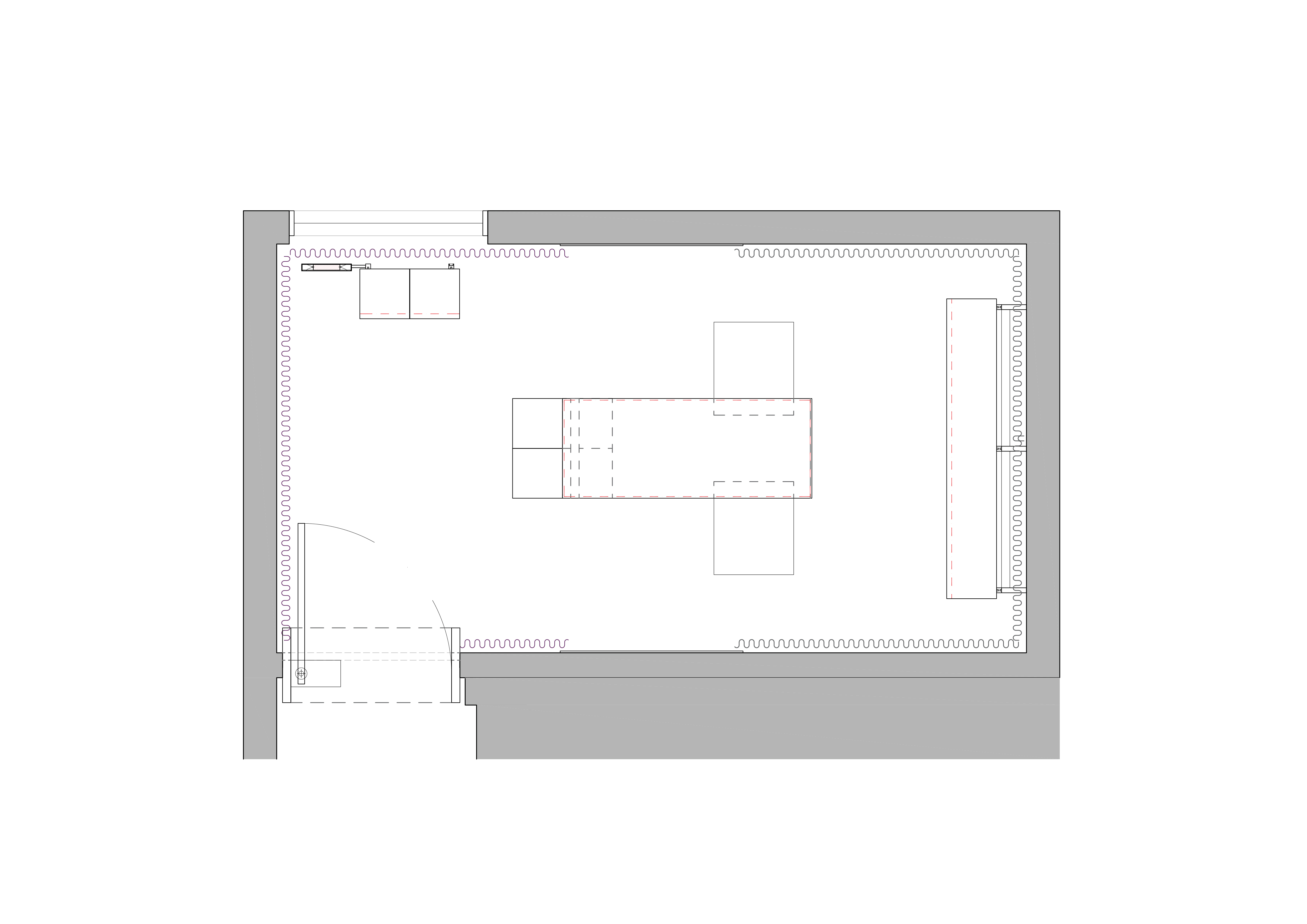
It’s a select shop for VIP customers. DMIL related existing beauty brand products could be demonstrated or selected. It’s DMIL’s own brand (PB product) showroom and a space where business gets progressed as well. Since it is a concept for VIP guests, the space was planned under the concept of a " safe" containing valuable items. The furniture is shaped like a safe, whether it is a table or a shelf, and the numbering engraved on the safe is also a meaningful number, which is the anniversary of the company or the birthdays of the members.
If the existing office look is a neutral monotone, the VIP room has emphasized to be a special space by using navy purple, the point color of DMIL company. The wall was covered with velvet curtains and a mirror was added to expand the narrow space. Symmetric mirrors reflect each other and expand infinitely. A table is placed in the center so that when the displayed product is selected, you can do business on it.
VIP 손님을 위한 셀렉 샵이다. DMIL과 연관된 기존 뷰티 브랜드제품을 시현하거나 셀렉 할 수 있다. 또한 DMIL 자체 브랜드(PB상품)의 쇼룸 겸 비즈니스가 이루어지는 공간이기도 하다. VIP 손님을 위한 컨셉이기 때문에 귀중한 물건을 담은 ‘금고’의 컨셉으로 공간을 기획했다. 가구는 테이블이던 선반이던 금고의 모양을 하고 있으며 금고에 새겨진 넘버링 또한 의미있는 숫자로 회사의 기념일이거나 구성원들의 생일로 되어있다.
기존 오피스의 룩은 중성적인 모노톤이라면 VIP룸은 DMIL 회사의 포인트 컬러인 네이비 퍼플색을 활용해 특별한 공간임을 강조했다. 벽면은 벨벳 소재의 커튼으로 두르고 좁은 공간을 확장시키기 위해 거울을 덧붙였다. 대칭하여 붙인 거울은 서로를 반사하여 무한하게 확장된다. 디피된 상품을 셀렉하면 상품에 대한 비즈니스를 할 수 있도록 중앙에 테이블을 배치했다.









Studio Plainoddity
Location Sinsa-dong, Gangnam-gu, Seoul, Republic of Korea
Use SELEC SHOP
Site area 11㎡
Design period 2021. 02. 22 - 2021. 03. 15
Construction period 2021. 04. 05 - 2021. 04. 09
Material Wall_Velvet curtain, floor_carpet, Door_Guro iron plait, Painted furniture setting, Neon sign
Construction Plainoddity
Client DMIL
Photographer Yongjoon Choi
'Interior Project > Retail' 카테고리의 다른 글
| Magmode of Hangzhou Kerry Center store (0) | 2021.11.12 |
|---|---|
| L'OCCITANE Shibuya (0) | 2021.11.01 |
| d — 2 Store (0) | 2021.10.01 |
| Kanishka Oybek Store (0) | 2021.09.30 |
| Showroom Papier Tigre (0) | 2021.09.07 |
마실와이드 | 등록번호 : 서울, 아03630 | 등록일자 : 2015년 03월 11일 | 마실와이드 | 발행ㆍ편집인 : 김명규 | 청소년보호책임자 : 최지희 | 발행소 : 서울시 마포구 월드컵로8길 45-8 1층 | 발행일자 : 매일



