
Born in 2004, in the heart of the historic center of Salerno, Southern Italy, d — 2 carefully recreates an eclectic excursion in the selection of exclusive products, timeless icons and news of the latest trends, showcasing special projects, unique collaborations and emerging talents of the retail philosophy.
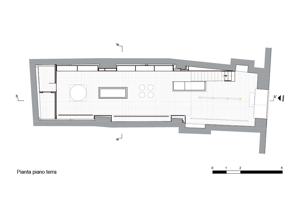
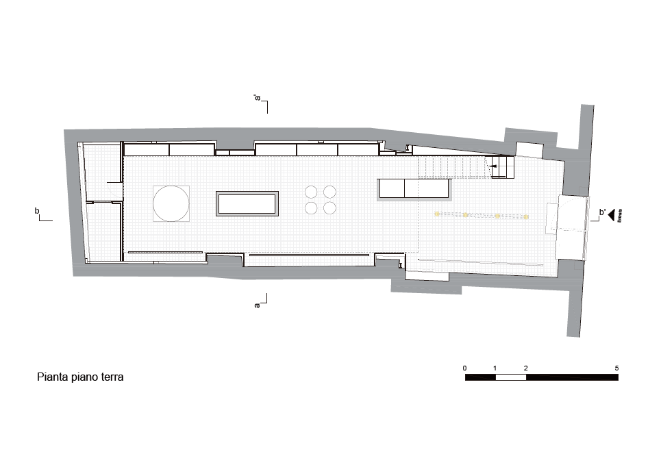
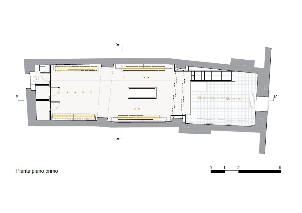
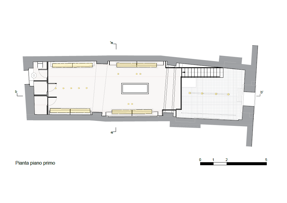
The store's interior renovation, located in a historic building, develops on two levels for a total area of 105 sqm. At the entrance of the building, a tiled grid on the floor and partially on the wall, enhances the enlongated-shape character of the space. The massive pre-existing structure of the mezzanine, becomes the decisive factor separating the different moods of the two levels. Completely covered in alveolar polycarbonate, it is conceived as a large lighting fixture which, by intensity dimming, can be perceived as pleasantly indefinite and diaphanous. The staircase is characterized by a painted steel handrail that varies along its path. The mezzanine floor, is designed as a more intimate and welcoming space: it combines traditional materials, like wall surfaces in raw plaster and a wooden floor, with more contemporary ones, as with the fitting rooms covered in aluminium and mirrors, or the clothes exhibitors made of Alucore panels, all in continuity with the ground floor.

2004년에 탄생한 이탈리아 남부 살레르노(Salerno)의 역사적인 중심지의 심장부에 위치한 d — 2는 특별한 프로젝트, 독특한 협업 및 소매 철학의 떠오르는 재능을 보여주면서 독점 상품, 시대를 초월한 아이콘 및 최신 트렌드의 뉴스를 선택하는 절충주의 여행을 신중하게 재현하고 있다.
역사적인 건물에 위치한 매장의 인테리어 리노베이션은 총 105㎡의 두 개 층으로 진행됐다. 건물의 입구에는 바닥과 벽의 타일 격자가 있어 공간의 긴 형태 특성을 향상한다. 기존의 거대한 메자닌 구조는 두 층의 서로 다른 분위기를 구분 짓는 결정적 요소가 된다. 폐포 폴리카보네이트로 완전히 덮인 조명기구는 밝기 조절을 통해 쾌적하게 무한하고 비좁은 것으로 인식될 수 있는 대형 조명 기구로 간주된다. 계단은 경로를 따라 다양한 도색된 강철 난간이 특징이다.
메자닌 층은 좀 더 친밀한 공간으로 설계됐다. 회반죽이나 나무 바닥의 벽 표면과 같은 전통적인 재료와 알루미늄과 거울로 덮인 피팅룸이나 알루코어 패널로 만들어진 의류 전시와 같은 현대적인 재료를 조화롭게 사용했으며, 모두 1층과 연속된다.













Architects Apt5 Architettura
Location Salerno, Italy
Building area 105㎡
Gross floor area 110㎡
Design period 2018
Construction period Late 1800s - 1900
Completion 2019
Principal architect arch. Giovanni Mondillo - arch. Mario Pompele - arch. Ernesto Valitutti - Consultants: arch. Nunziante Vitale
Project architect arch. Giovanni Mondillo - arch. Mario Pompele - arch. Ernesto Valitutti
Design team arch. Giovanni Mondillo - arch. Mario Pompele - arch. Ernesto Valitutti ; Consultants: arch. Nunziante Vitale
Client Triangle s.r.l.
Photographer Cristina Cusani
'Interior Project > Retail' 카테고리의 다른 글
| L'OCCITANE Shibuya (0) | 2021.11.01 |
|---|---|
| DMIL VIP SELEC SHOP (0) | 2021.10.06 |
| Kanishka Oybek Store (0) | 2021.09.30 |
| Showroom Papier Tigre (0) | 2021.09.07 |
| QUARTZ CO. (0) | 2021.09.06 |
마실와이드 | 등록번호 : 서울, 아03630 | 등록일자 : 2015년 03월 11일 | 마실와이드 | 발행ㆍ편집인 : 김명규 | 청소년보호책임자 : 최지희 | 발행소 : 서울시 마포구 월드컵로8길 45-8 1층 | 발행일자 : 매일



