
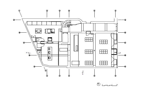
Papier Tigre, a contemporary stationery brand, is rehabilitating its showroom on rue des Filles du Calvaire in the Marais, in the heart of Paris. It brings together a sales area, a space dedicated to custom products and the workshop in the back. The modularity of the space is the guiding thread of the architectural concept developed by Cent15 architecture. The architects’ desire is to find a legible solution that highlights the Papier Tigre products by simple use of raw materials. They transform the existing building and gives it a new writing that brings image and renewal. The free plan highlights the various presentation modules of the products that come to inhabit it. These are mobile for a better distribution and appropriation of the place by its users and interchangeable in order to easily rearrange the presentation proposals. Adapted to the existing slope of the store, the modules offer a dynamic to the project; a real ascent of the visitor. The furniture, key element of the project, provides a screened area between architecture and sculpture. The architecture proposes an experience. The passer-by identifies the shop from the outside thanks to the new enlarged and lightened facade. It clears the border between outside and inside and invites the public to enter in to the shop.
Three spaces are created within the showroom. They are at the same time independent of each other and unified by a singular spatial scenography. The first space is public, it is the shop. The products of the stationery are presented on six mobile modules in vibrated stainless steel 160cm (l) x 80cm (L). This modular system exposes the objects, organizes the space and defines the circulations in the heart of the shop. In the lower part, the furniture has a closed storage space. In the upper part, stackable tubular frames on top of each other support the ribbed glass sheet shelves. They can be deployed in two different frames, the entire width of the module, or the half. The cable trays, on which hang a light system, are lowered one meter from the ceiling of 3m40. They accentuate the visual perspectives created by the modules and allow to obtain a precise and directional light on the exhibited object. The second space is actually more intimate. Here, the user creates his own custom objects. A counter of a french pine essence emphasizes the change of space and use. It is accompanied by a substructure of the ceiling in corrugated sheets of translucent polyester, recycled material. The spirit of the place is confined, the materials warmer, the light more diffused and immersive. By playing on different intensities, the compression and expansion of space, architects offer an experiential and sensitive architecture, a buffer zone that starts the last space: the stationery manufacturing workshop. This last sphere is reserved for employees. A large part is bathed in natural light by a zenithal supply of glass blocks, trace of an old Parisian courtyard in the heart of the project. The expansion is at its maximum, it encourages the visitor to observe the machines, the craftsmen, the savoir-faire of Papier Tigre through a curtain with flexible and transparent plastic straps. The views are clear. The workshop, visible from the street, participates in the transversal reading of the showroom and the opening of it to the outside. Cent15 architecture takes the side of minimalism to highlight Papier Tigre’s highly distinctive identity by working particularly on the homogeneity of materials, lighting atmospheres, and visual perspectives.

컨템포러리 문구 브랜드 Papier Tigre가 파리 중심부의 마레(Marais)의 뤼 드 필즈 뒤 칼베어(rue des Filles du Calvaire)에 쇼룸을 재건했다. 판매 공간, 주문 제품 전용 공간, 뒤쪽에 있는 워크숍 등이 한데 모여 있다. 공간의 모듈성은 Cent15 architectur에 의해 개발된 건축 개념이다. 건축가의 바람은 간단한 원료 사용으로 Papier Tigre의 제품을 돋보이게 하는 읽기 쉬운 설루션을 찾는 것이다. 기존의 건물을 변형시키고 이미지와 갱신을 보여주는 새로운 글씨를 제공한다. 제품의 다양한 프레젠테이션 모듈을 강조한다. 이들은 사용자가 장소를 더 잘 분배하고 사용할 수 있도록 이동성이 있으며 쉽게 재 정렬하기 위해 상호 호환이 가능하다. 가게의 기존 경사도에 맞춰 조정된 모듈은 프로젝트에 역동성을 제공한다. 프로젝트의 핵심 요소인 가구는 건축과 조각 사이에 차폐된 공간을 제공한다. 건축은 경험을 제안한다. 새롭게 확장되고 밝아진 외관 덕분에 지나가는 사람에게 쉽게 눈에 띈다. 외부와 내부의 경계를 허물고 대중을 매장 안으로 외부와 내부의 경계를 허물고 대중을 가게 안으로 들어오게 한다.
쇼룸 내에는 세 개의 공간이 조성되어있다. 이들은 동시에 서로 독립적이며 단일 공간 풍경으로 통일된다. 첫 번째 공간은 공공장소이고, 가게이다. 문구류 제품은 진동 스테인리스 스틸 160cm x 80cm(L)로 6개의 이동형 모듈에 전시되어 있다. 이 모듈식 시스템은 제품을 노출하고 공간을 정리하며 가게 중심부의 순환을 정의한다. 아랫부분은 가구의 수납공간이 있다. 상부에는 쌓을 수 있는 튜브형 프레임이 리브형 유리 시트 선반을 지지한다. 모듈의 전체 너비 또는 절반의 두 가지 다른 프레임에 배치할 수 있다. 조명 시스템이 걸려 있는 케이블 트레이는 3.4m의 천장으로부터 1m 아래에 달려있다. 모듈에 의해 생긴 시각적 관점을 강조하고 전시된 제품에 정확하게 방향성 있는 빛을 제공한다. 두 번째 공간은 좀 더 친밀한 공간이다. 여기서 사용자는 자신만의 커스텀 제품을 만든다. 프랑스 소나무 에센스의 카운터에서는 공간과 사용의 변화를 강조한다. 재활용 소재인 반투명 폴리에스터의 골판지 천장의 하부 구조를 함께 제공한다. 장소의 정신은 제한되고, 재료는 더 따뜻해지고 빛은 더 확산되어 몰입감을 준다. 건축가는 공간의 압축과 확장이라는 서로 다른 강도를 이용해 마지막 공간인 문구 제조 작업장을 시작하는 버퍼 존인 경험적이고 민감한 공간을 제공한다. 이 마지막 영역은 직원 전용입니다. 프로젝트의 중심부에 있는 오래된 파리 안뜰의 흔적인 유리 블록의 천정을 통해 많은 부분들이 자연광에 휩싸여 있다. 팽창이 최고조에 달해 방문객들이 유연하고 투명한 플라스틱 끈이 달린 커튼을 통해 기계, 공예가, Papier Tigre의 노하우를 관찰할 수 있다. 거리에서 볼 수 있는 작업공간은 쇼룸을 가로질러 외부로의 개방에 참여한다. Cent15 architecture는 재료의 동질성, 조명 분위기, 시각적인 관점을 활용하여 Papier Tigre의 매우 독특한 정체성을 강조하기 위해 미니멀리즘의 측면을 취한다.











Architects Cent15 architecture
Location Paris, France
Completion 2019
General enterprise Arc Construction, Locksmith, Metalinox
Materials Vibrated stainless steel, galvanized steel, Batipin, polyester
Lighting iGuzzini
Client Papier Tigre
Photographer Christophe Caudroy
'Interior Project > Retail' 카테고리의 다른 글
| d — 2 Store (0) | 2021.10.01 |
|---|---|
| Kanishka Oybek Store (0) | 2021.09.30 |
| QUARTZ CO. (0) | 2021.09.06 |
| Uniprix Kieu Truong pharmacy (0) | 2021.08.23 |
| Le Manoir (0) | 2021.08.18 |
마실와이드 | 등록번호 : 서울, 아03630 | 등록일자 : 2015년 03월 11일 | 마실와이드 | 발행ㆍ편집인 : 김명규 | 청소년보호책임자 : 최지희 | 발행소 : 서울시 마포구 월드컵로8길 45-8 1층 | 발행일자 : 매일



