
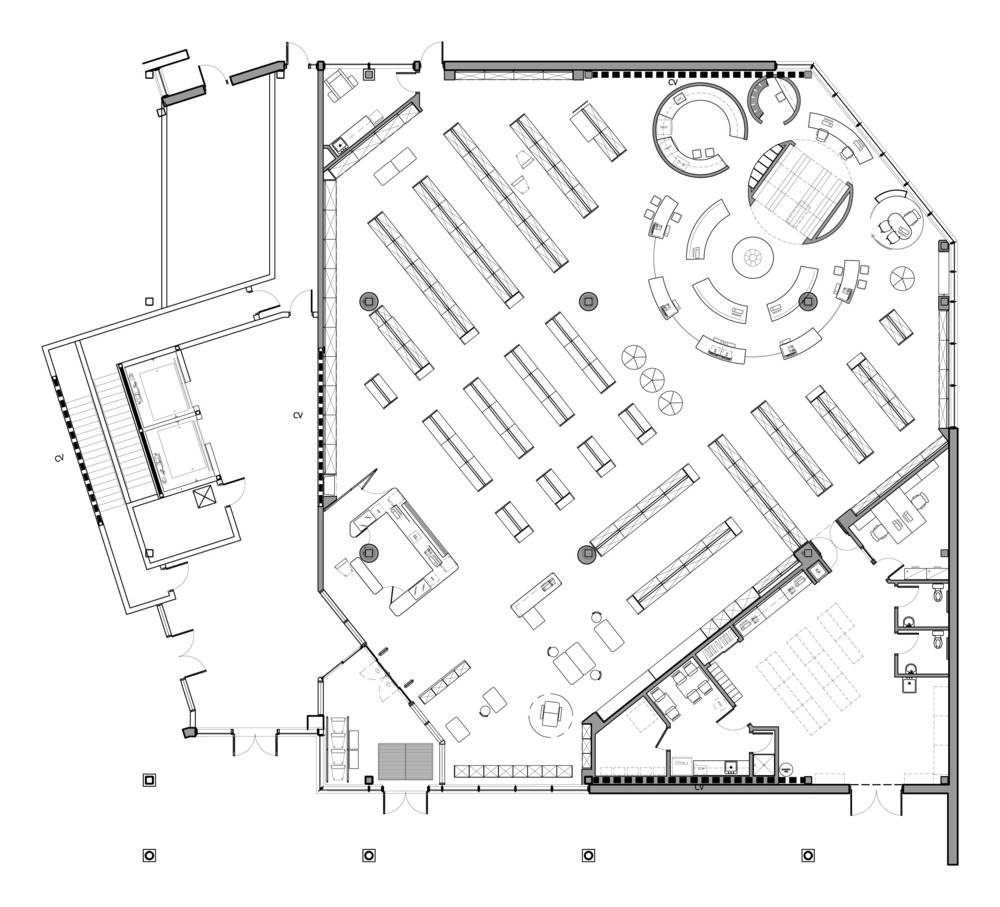
Created by the firm Jean Lessard, creative designers, the Uniprix pharmacy located in Quartier DIX30, on the outskirts of Montreal, stands out from the usual design of this type of superstore because it challenges accepted notions.

Advertising campaigns are enhancing the image of closeness of the family pharmacist. Still, insists Jean de Lessard, who is known for his radical experimentations, it must be demonstrated: “We wanted the space to reflect the human side of the profession, that it becomes an empathetic place, simple and collective, unpretentious, allowing the pharmacists to be more accessible and be seen by their patients.” To heighten the social dimension of the act, the designer thus chose to make of the laboratory the focal point, and consequently, a place for socializing amongst neighbours.

Harmony in roundness
The design was modulated by some feng shui[1] principles, such as organizing the space to promote a smooth circulation of the energy flow (Ch’i). The laboratory consists of a grouping of circles around which one can walk, including a magistral medicine side room and the pharmacist’s favorite, an ergonomic pillbox, which she finds has a retro look; there is also a storage room and a circular glass air-lock looking office with a sliding door, for private consultations.

For Ch’i activation, light is key according to feng shui. The laboratory is positioned in the north part where soft natural light comes in from large windows. The use at this spot of the colour blue and steel is auspicious too, the north being associated in feng shui to the water and metal elements. In addition, the reflection of light on the polished steel of the pillbox softens the visual impact of a volume with such an impressive mass. The yellow-colored fabric that covers the wall of the magistral medicine side room brings balance to the laboratory area colder in appearance. Placement of the furniture is far from accidental: high furniture positioned at the periphery and low-profile units offer an unobstructed line of view of the laboratory and the pharmacists.

Circularity of the yin and the yang
Simplifying the reading of the space and the products plus optimizing the merchandising factor took months of research, volumetric studies and discussions. These aspects stem from the pharmacist and the designer’s wish for a cololful and refined place, in a simple fashion. Kieu Truong believes that it is possible for banners to humanize their store as she did to improve the customer experience.

Such as "objets carefully arranged in space," in Jean de Lessard’s words, the custom display furniture brings a lively note. Behind their apparent simplicity of form, the shelves and counters built by cabinet-maker Héritage did present many technical challenges themselves subject to intensive research. Further, colouring preparation called for a rigorous sampling process, until the proper shade for each colour was achieved. "Those pastel colours are a perfect balance to Kieu Truong’s personality, a true ball of energy! The colour acts as a gentle counterpoint to her vivacious personality, interplaying with the yin and the yang," comments the designer.

That there are no products around the laboratory area may surprise at first, but clutter is to be avoided. “The reason is that we consciously wanted to dissociate the mercantile aspect of the professional act of the pharmacist. Listening, professionalism and human warmth prevail over product”, says Jean de Lessard, as he concludes. Conveying fluidity and openness to preserve the natural brightness, the immaculate walls are, moreover, devoid of any advertising materials, leaving the space to harmony.

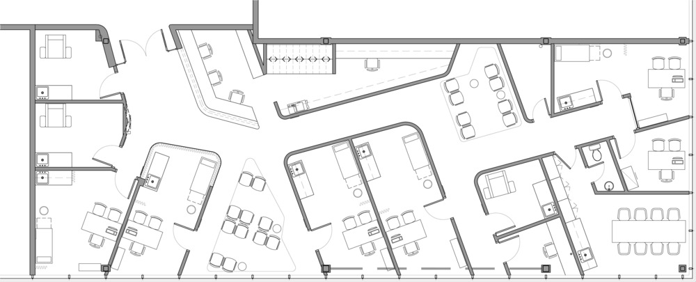
Jean de Lessard also designed the Centre Médical Alexandre, owned too by the pharmacist. He sought to animate this clinic located on the first floor with the same spirit of clarity and simplicity, selecting similar volumes and materials for continuity. A sense of movement and the rounded walls energize the place in a non-aggressive manner. The round scheme is used for furniture, just as it was used in the pharmacy. The wooden slats ceiling of the waiting room in the south part is another auspicious architectural detail. Wood brings structure, warmth and brightness without oppressing the Ch’i. In feng shui, the south part benefits from the strong presence of the wood element and is, by extension, beneficial to all of those present in the space.

Jean Lessard가 만든 Uniprix 약국은 몬트리올 외곽의 Quartier DIX30에 위치해 있으며, 일반적인 가게 디자인과는 차별화되는 개념으로 디자인됐다.

광고 캠페인은 약사의 친밀감 이미지를 높이고 있다. 그러나 급진적인 실험으로 유명한 Jean de Lessard는 공간이 직업의 인간적인 면을 반영하고, 단순하고 집단적이고, 가식적이지 않은 장소가 되어 약사들과 환자들에게 더 쉽게 접근할 수 있고, 보여질 수 있게 되기를 원했다. 따라서, 사회적 차원을 높이기 위해 실험실을 콘셉트로 이웃들의 사교 장소로 선택했다.

원형의 조화
디자인은 풍수지리의 원칙에 의해 조정되었는데, 예를 들어, 원활한 에너지 순환을 촉진하기 위한 공간 구성 등이 그것이다. 이 실험실은 주변이 걸어갈 수 있는 원들로 구성되어 있는데, 약사가 좋아하는 약방, 복고풍의 인간공학적 알약상자 등이 있으며, 보관실과 미닫이문이 달린 원형 유리 에어로크 사무실이 있어 사적인 상담을 받을 수 있다.

풍수지리에서 '기'의 활성화를 위한 핵심은 빛이다. 큰 창을 통해 부드러운 자연광이 들어오는 북쪽에 위치하고 있다. 이 지점에서 파란색과 강철을 사용하는 것도 길조이며 북쪽은 풍수에서 물과 금속 요소와 관련이 있다. 또한 필박스의 광택 처리된 강철에 반사된 빛은 인상적인 질량을 가진 볼륨의 시각적 충격을 완화시켜준다. 의술실 벽면을 덮고 있는 노란색 천은 공간의 균형을 더욱 차갑게 보이게 한다. 가구 배치는 우연이 아니다. 주변에 높은 가구가 배치되어 있고 낮은 프로파일의 장치는 실험실과 약사에게 방해가 되지 않는 시야를 제공한다.

음과 양의 순환
공간과 제품을 단순화하고 상품화 요소를 최적화하는 데 수개월에 걸친 연구와 토론이 필요했다. 이는 심플하면서도 다채롭고 세련된 공간을 원하는 약사와 디자이너의 바람에서 비롯됐다. Kieu Truong은 고객 경험을 개선하기 위해 배너를 통해 매장을 인간답게 만들 수 있다고 믿는다.

Jean de Lessard의 말처럼 "공간에 세심하게 배치된 오브제들"과 같은 맞춤형 디스플레이 가구는 생동감 넘치는 음을 선사한다. 외관상 단순해 보이는 형태 뒤에는 캐비닛 제작자인 Héritage가 만든 선반과 카운터는 겉으로 보기엔 단순하지만 그 이면에는 집중적인 연구가 필요한 기술적 문제들이 있었다. 또한 각 색상에 적합한 음영이 얻어질 때까지 채색 과정에는 엄격한 샘플링 과정이 필요했다. "파스텔 색상은 Kieu Truong의 성격과 완벽한 균형을 이루는 진정한 에너지다. 이 색상은 음과 양이 어우러져 활기찬 성격에 대한 부드러운 대조를 이룬다."라고 디자이너가 설명했다.

연구실 주변에 제품이 없다는 것은 처음에는 놀랄 수 있지만 이는 어수선함을 피하고자 한 것이다. “그 이유는 약사의 직업적 행위의 상업적 측면을 의식적으로 분리하고 싶었기 때문이다. 제품보다 경청, 전문성, 인간의 따뜻함이 우선이다.”라고 Jean de Lessard가 결론을 지었다. 또한 자연의 밝기를 유지하기 위해 유동성과 개방성을 전달하며 흠잡을 데 없는 벽에는 광고가 전혀 없어 공간이 조화를 이룬다.

Jean de Lessard는 또한 약사가 소유한 Centre Médical Alexandre를 설계했다. 1층에 위치한 이 클리닉을 동일한 명료함과 단순함의 정신으로 애니메이션화하고 연속성을 위해 유사한 볼륨과 재료를 선택했다. 움직이는 느낌과 둥근 벽은 공격적이지 않은 방식으로 장소에 활력을 준다. 원형 구조는 약국에서 사용했던 것처럼 가구에 사용된다. 남쪽 대기실의 나무 널빤지 천장은 또 다른 건축적 디테일이다. 목재는 억압되지 않은 구조와 따뜻함, 밝음을 가져다준다. 풍수에서 남쪽은 목재 요소가 강하게 존재하여 그 공간에 있는 모든 사람들에게 유익함을 가져다준다.
Designer Jean de Lessard, creative designers
Location Brossard, Canada
Building area Pharmacy_752.5㎡, Medical Center_260㎡
Cabinetwork Pharmacy Héritage Ébénisterie Architecturale
Cabinetwork Medical Center Regency Ébénisterie
Shelf Pharmacy Équipement Boni
Lighting Au Courant Lighting
Glass Renaissance Glassworks
Stainless steel Gagnon Spécialités
General contractor Construction Mikado
Client Kieu Truong, pharmacist owner, Uniprix
Photographer Adrien Williams
'Interior Project > Retail' 카테고리의 다른 글
| Showroom Papier Tigre (0) | 2021.09.07 |
|---|---|
| QUARTZ CO. (0) | 2021.09.06 |
| Le Manoir (0) | 2021.08.18 |
| Headfoneshop (0) | 2021.08.11 |
| JEWERLY SHOP DD GOLD (0) | 2021.08.10 |
마실와이드 | 등록번호 : 서울, 아03630 | 등록일자 : 2015년 03월 11일 | 마실와이드 | 발행ㆍ편집인 : 김명규 | 청소년보호책임자 : 최지희 | 발행소 : 서울시 마포구 월드컵로8길 45-8 1층 | 발행일자 : 매일



