
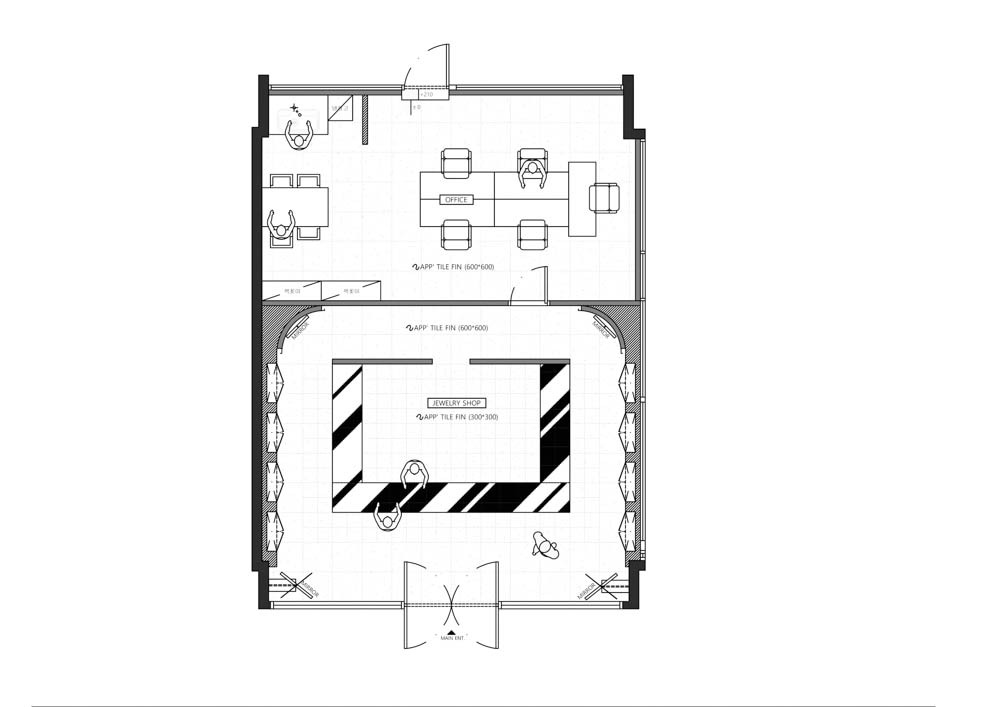
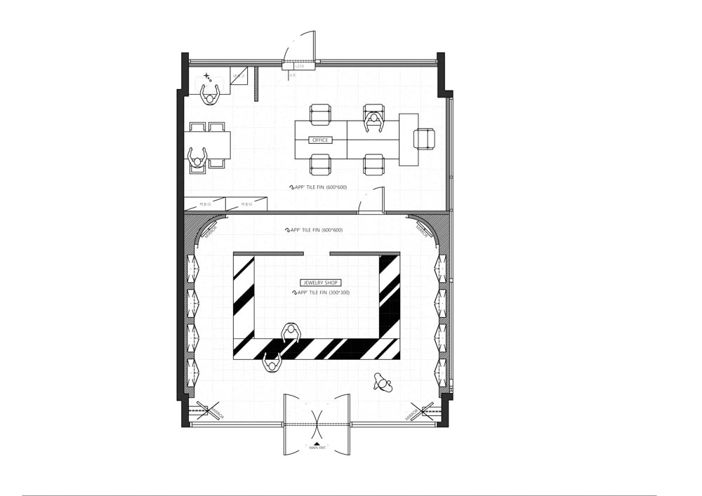
Spatial design can give a differentiated identity to a space with innovative ideas and concepts, but we also think that it is important to solve the answer with a smart and reasonable approach in many given situations and constraints. In that sense, this DD Gold project seemed to be a project that drew a reasonable design plan under various conditions. The client’s requests were adamant. Considering the fact that it is located on the first floor of a large commercial building, to have an impact strong enough to draw people’s attention among the shops lined up on either side, and a bright illumination level that would allow the jewelry to stand out in the light. The site was about 23 pyeongs, but under the condition of using it as both an office and a shop, there were decisive factors that affected the design. The area of the shop, which became smaller to about 14 pyeongs, and the 4,100mm floor height, which is too high for the jewelry to receive direct lighting from up close.

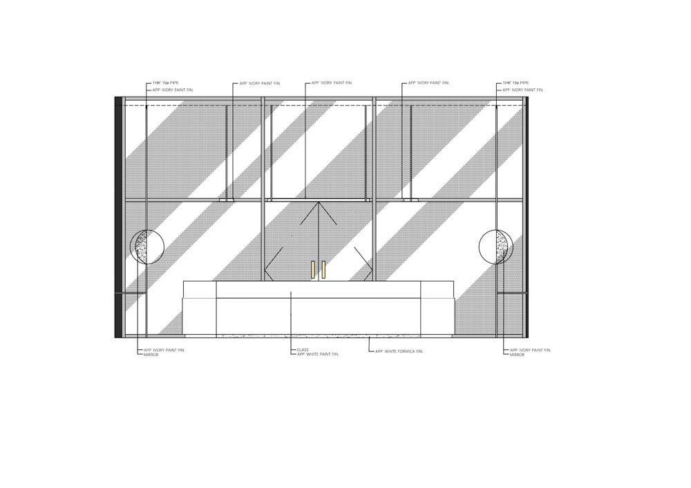
Using the fact that the high floor height meant a wider signboard area on the facade, we thought of a concept where a majestic gold wave cascades down the front side of the facade and is continued to the inside. The gold wave continues into the space and extends deep inside the interior of the shop, and has a design accent point with a form that flows down to the floor again on the wall that splits the office and the shop. This allowed us to draw a design that solves the problem of the facade, a low ceiling that shines the main jewelry shelf as well as the interior signage wall. In addition, a circular-shaped mirror design was layered with the gold round walls in the four corners of the space to serve as a sub role that strengthens the gold wave that runs through the center of the space. Within an ivory tone, which has a neat mood, gold was used as an accent finishing material in various ways, including polishing and hairline, to complete DD Gold's unique, simple yet impactful design that allows the jewelry to stand out.

공간디자인은 획기적인 아이디어와 컨셉으로 공간에 차별화된 아이덴티티를 줄 수도 있지만 주어진 많은 상황들과 제약들 속에서 똑똑하고 합리적인 방안으로 접근하여 그 해답을 풀어나가는 것또한 중요한 방법이라고 생각한다. 이번 디디골드 프로젝트는 그러한 의미에서 보았을 때 여러가지 조건들 속에서 합리적인 디자인방안을 도출한 프로젝트였다고 생각한다. 클라이언트의 요청사항은 확고했다. 큰 상가건물의 1층에 위치한다는 점을 고려하여 양 옆으로 줄지어 늘어선 상가들 사이에서 사람들의 눈길을 사로잡을 임팩트와 쥬얼리들이 빛을 받아 돋보일 수 있을 정도의 환하고 밝은 조도. 사이트는 23평정도 규모였지만 오피스와 샵을 함께 사용한다는 조건 하에 샵에 해당하는 면적은 14평 정도로 더욱 협소해졌고 그에 반해 쥬얼리가 가까이서 직접 빛을 받기에는 너무나 높은 4100mm에 달하는 층고가 디자인에 관여하는 결정적인 요소였다.

층고가 높았던 만큼 파사드에서도 넓은 간판영역이 있었음을 활용하여 웅장한 골드 웨이브가 파사드 전면을 타고 내려오다 그 흐름이 이어져 내부까지 이어지는 개념을 떠올렸고 공간 안까지 이어진 골드웨이브는 샵 내부까지 깊숙이 이어지다 오피스와 샵을 가르는 벽에서 다시 바닥으로 타고 내려오는 형태로 하나의 디자인포인트를 가지고 파사드, 메인 쥬얼리장을 비추는 낮은천장, 내부 사이니지월까지 해결하는 디자인을 이끌어냈다. 또한 공간의 네 모퉁이에는 원형 쉐입을 활용한 거울 디자인이 골드 라운드월과 레이어드되어 공간 가운데를 가로지르는 골드웨이브에 힘을 싣어주는 서브역할을 의도했다. 깔끔한 무드의 아이보리 톤 안에서 포인트마감재로 골드를 폴리싱, 헤어라인 등 다양하게 활용하여 쥬얼리가 돋보일 수 있는, 심플하면서도 임팩트있는 디디골드만의 디자인을 완성했다.

















Studio WANDERLUST
Location Okjeongdong-ro 7da-gil, Yangju-si, Gyeonggi-do, Republic of Korea
Program Jewellery showroom
Site area 77.84m2
Building scope 1F
Design period 2021. 2. 2 ~
Construction period 2021. 3. 2 ~ 2021. 3. 31
Completion 2021. 4
Project Director WANDERLUST Hyeonju Jang, Hyesu Han
Design team WANDERLUST
Construction WANDERLUST
Photographer MO STUDIO
'Interior Project > Retail' 카테고리의 다른 글
| Le Manoir (0) | 2021.08.18 |
|---|---|
| Headfoneshop (0) | 2021.08.11 |
| Classic Creations (0) | 2021.08.09 |
| Kki Sweets and The Little Dröm Store (0) | 2021.08.03 |
| Toyou bookstore (0) | 2021.07.21 |
마실와이드 | 등록번호 : 서울, 아03630 | 등록일자 : 2015년 03월 11일 | 마실와이드 | 발행ㆍ편집인 : 김명규 | 청소년보호책임자 : 최지희 | 발행소 : 서울시 마포구 월드컵로8길 45-8 1층 | 발행일자 : 매일



