
Kki Sweets sells beautifully handcrafted Japanese - inspired French mousse cakes, and The Little Dröm Store offers art and design driven knick-knacks. And they share a space at the School of the Arts (SOTA) building in Singapore.

While the design brief is simple – the two brands share a storefront, and thus they need to retain their distinctive identities and yet not look like two completely separate entities – the key challenge is to create an appropriate work that meets the standards of the award-winning SOTA building, and to create something new despite the influence of such a commanding piece of architecture. The solution lies in American literary critic Harold Bloom's ‘Anxiety of Influence’. Bloom had warned against the paralysing anguish, doubt and self-consciousness that masterful precursors inevitably instil in young poets, and offered six methods of creative misprision to overcome this struggle.

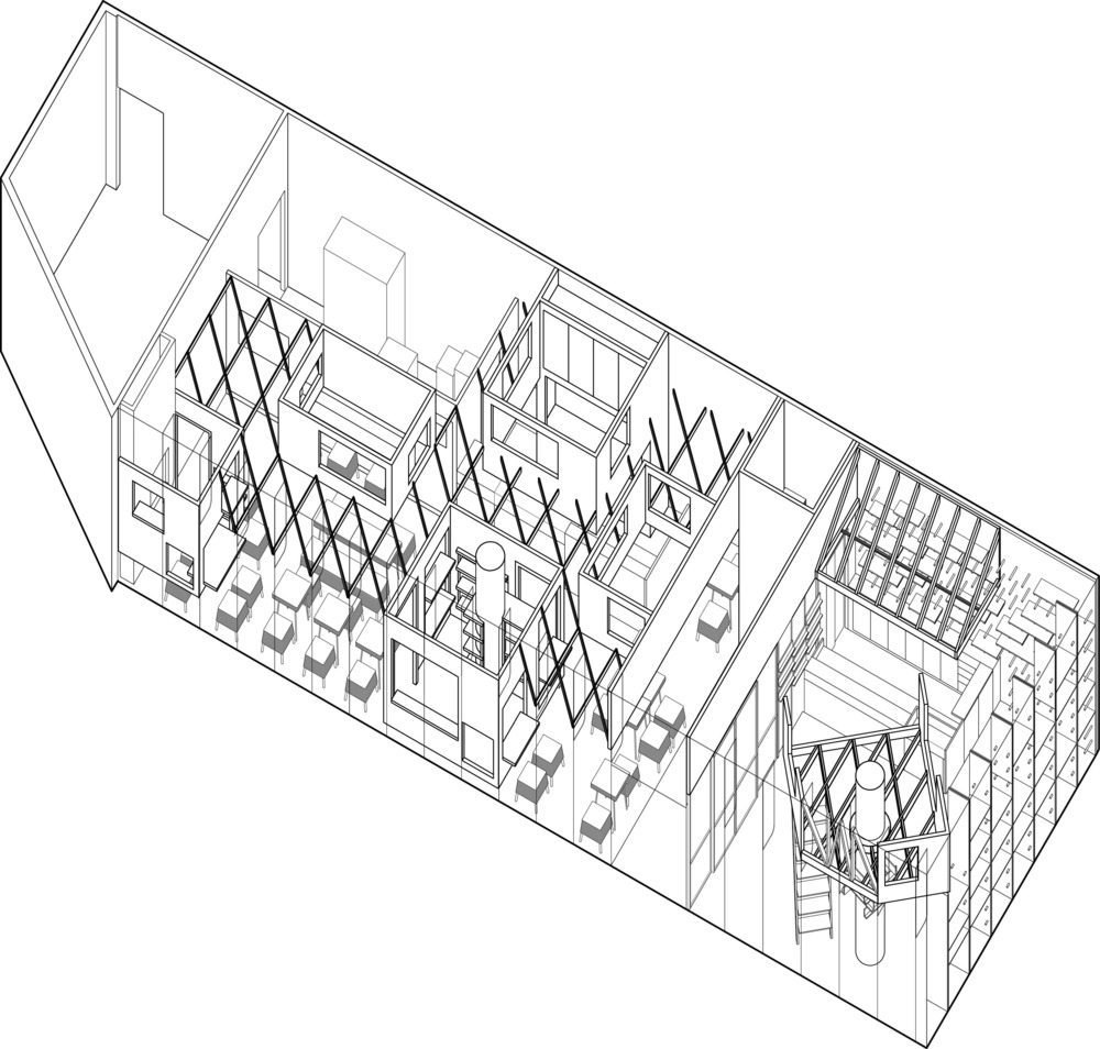
Using two of Bloom's methods – ‘Daemonisation’ (or “counter-sublime” which looks at the original source of inspiration that will naturally supersede the precusor) and ‘Apophrades’ (or "return of the dead" which is about direct engagement with the end objective of confronting the original design) – PRODUCE taps into the deep structure of SOTA and seeks not only to formulate an alternative interpretation of the building typology but to provide a diagram from which SOTA can be read. The result is a shop space for Kki Sweets and The Little Dröm Store that is a distillation of the SOTA building into its most essential diagram – a datum plane and the volumes that it segregates (i.e. the essence of SOTA’s architecture is a triple-layered parti with performance auditoriums at the base and classrooms on top. The middle layer, the datum plane, is an open mezzanine looking down at the auditorium foyers).

The datum plane within the shop is designed as a porous trellis so that the entire diagram can be observed and experienced from within. In the Kki Sweets section, volumes above the plane hints at the imaginary while the volumes below are adapted to practical requirements of eating and merchandising, forming tables and shelves, intimate interiors, and close-knitted exteriors. The plane continues into The Little Dröm Store inversely. Instead of forming voids, it occupies a volume that forms the floor of a “tree house" (a theme closely related to the brand).

With the idea of the datum plane linking the two shops at a higher level, the shops are actually conceived as separate and independent entities on the ground. They are seen as occupying an open space, and separated by an “internal street" leading in from the main door with their frontage and signage orientated toward each other. This street-like space extends into KKI, meandering between the volumes of rooms.

The primary materials used are maple veneered plywood for the volumes and solid pine strips for the trellis. They are selected for their light colour so that the structure acts like a blank canvas on which the two shops can fill with colours with their variety of products. The light coloured maple and pine also helps contrast with the darker colours of the SOTA atrium. Despite the visual lightness the timber volumes convey, there are actually steel hollow section framework within. Supports to the ground are disguised as table legs and doorframes to achieve a “lifted” effect.

Kki Sweets는 일본에서 영감을 받은 아름다운 수제 프렌치 무스 케이크를 판매하고 The Little Dröm Store는 예술 및 디자인 중심의 장식품을 제공한다. 그리고 그들은 싱가포르의 SOTA(School of the Arts) 건물에서 공간을 공유한다.

디자인 개요는 간단하지만 두 브랜드는 매장을 공유하므로 고유한 아이덴티티를 유지하면서도 완전히 별개의 두 개체처럼 보이지 않아야 한다. 수상 경력에 빛나는 SOTA 빌딩의 기준에 맞는 적절한 작품을 만드는 것이 핵심 과제이며, 건축물의 강력한 영향에도 불구하고 새로운 작품을 만들어야 했다. 그 해답은 미국 문학평론가 해롤드 블룸의 '영향의 불안'에 있다. 블룸은 뛰어난 선구자들이 젊은 시인들에게 필연적으로 심어주는 마비되는 고뇌, 의심, 자의식에 대해 경고하고 이 투쟁을 극복하기 위한 6가지 창의적 오감 방법을 제시했다.

Bloom의 두 가지 방법, 즉 'Daemonism'(또는 '반승적(反承的)'을 사용하여 전조를 자연적으로 대체할 영감의 원천을 찾는 방법)과 'Apophrade'(또는 '죽은 자의 귀환(return of the dead)'을 사용하여 SOTA의 심층 구조를 활용하고 건물 유형에 대한 대안적인 해석을 공식화할 뿐만 아니라 다이어그램을 제공한다. 그 결과 기준 평면과 분리되는 볼륨을 활용한 Kki Sweets와 The Little Dröm Store를 위한 공간이 탄생했다. (즉, 이 건축물의 본질은 삼중 레이어이다. 바닥에는 공연 강당이 있고 상단에는 교실이 있다. 중간층인 기준층은 강당 로비가 내려다보이는 개방형 메자닌(Mezzanine)구조이다.)

매장 내 기준 평면은 내부에서 전체 다이어그램을 관찰하고 경험할 수 있도록 다공성 격자로 설계됐다. Kki Sweets의 공간에서 평면 위의 볼륨은 상상을 암시하는 반면 아래 볼륨은 식사 및 상품화, 테이블 및 선반 형성, 친밀한 인테리어 및 긴밀하게 짜여진 외부의 실제 요구 사항에 맞게 조정됐다. 평면은 Little Dröm Store로 계속 이어진다. 보이드를 형성하는 대신 '나무집'(브랜드와 밀접한 관련이 있는 테마) 바닥을 이루는 볼륨을 차지한다.

더 높은 수준에서 두 상점을 연결하는 기준 평면의 아이디어로 상점은 실제로 지상에서 분리되고 독립적인 개체로 인식된다. 열린 공간을 점유하는 것으로 보이며 정면과 간판이 서로를 향하도록 정문에서 이어지는 "내부 거리"로 구분된다. 이 거리 같은 공간은 방의 볼륨 사이를 구불구불하게 Kki Sweets로 확장된다.

사용된 주요 재료는 메이플 베니어 합판과 격자용 솔리드 소나무 스트립이다. 두 상점이 다양한 제품으로 색상을 채울 수 있는 빈 캔버스처럼 보이도록 밝은 색상을 선택했다. 밝은 색상의 단풍나무와 소나무는 SOTA 아트리움의 어두운 색상과 대조를 이룬다. 목재 볼륨이 전달하는 시각적인 가벼움에도 불구하고 실제로 내부에 강철 중공 섹션 프레임워크가 있다. 지면에 대한 지지대는 테이블 다리와 문틀로 위장하여 "들어 올려진" 효과를 얻는다.

Architects PRODUCE
Location Singapore
Site area 136㎡
Completion 2014
Photographer Edward Hendricks, CI&A Photography
'Interior Project > Retail' 카테고리의 다른 글
| JEWERLY SHOP DD GOLD (0) | 2021.08.10 |
|---|---|
| Classic Creations (0) | 2021.08.09 |
| Toyou bookstore (0) | 2021.07.21 |
| Uvée - Optometry Clinic (0) | 2021.07.15 |
| Mumokuteki Concept Bookstore (0) | 2021.07.13 |
마실와이드 | 등록번호 : 서울, 아03630 | 등록일자 : 2015년 03월 11일 | 마실와이드 | 발행ㆍ편집인 : 김명규 | 청소년보호책임자 : 최지희 | 발행소 : 서울시 마포구 월드컵로8길 45-8 1층 | 발행일자 : 매일



